成都为什么在全国房地产市场异军突起,遥遥领先?成都嘉禾滨湖颂售楼处_预约看房【2025年成都新房二手房成交情况及2025年成都新房走势】

搜狐焦点德阳站

2025-09-03 08:11:09

购房群

买房如何避坑,加入购房群,看看他们怎么说

立即进群

嘉禾滨湖颂售楼处电话028-83516246「来电尊享优惠活动」☎

☎【置业经理】:15928896133「微信同步」☎

温馨提示:为了给您提供更高更好的接待服务质量,看房请提前致电售楼处预约!

【有免费看房车接送服务,如需预约,请致电售楼处】

成都为什么在全国房地产市场异军突起,遥遥领先?

天下未治蜀先治,天下未涨蜀先涨。西南,是中国的大后方,成都,就是这个大后方的核心。

从地理上来说,武汉往西的中国地域,大部分被高原丘陵和荒漠覆盖,气候温和又适宜人居的,除了狭长的关中平原,只有天府之国的四川盆地。

因此,成都除了吸附川内的城市,还包括甘肃、新疆、云南、贵州、重庆等地。虽然这些地方也不是中国富裕省份,但掏空6个钱包,举家支持,也是不小的购买力。

成都现在房产市场三级分化,第一类是核心资产,止跌横盘或小幅上涨都有,补涨的苗头已经出现了,这类资产受大环境影响很大,也是市场风向标,随时被人关注。

第二类是优质产品,表现不一,涨跌幅取决于之前的价格泡沫大小,像北门几个改善楼盘涨跌就很小,没有大涨过自然不会大跌,而以天新为代表的新开发区域、次新盘往往入市价格偏高,止跌压力比较大。

第三类是完全丧失流动性的小区,集中在五城区,只有居住价值,一年成交几套,探讨涨跌意义不大,成交数据比较偏离真实市场情况。

2024年二手房总成交231376套,90㎡以下的占比45.91%,90-140㎡的占比30.64%;总价200万以内的占比70.67%。并且,2010年-2019年的房源,成交最多,占比52.2%。

但今年4月,成都成交的二手房中,90㎡以下 的占比54.07%,90-140㎡的占比37.18%,总价200万以内的占比85.67%,其中100-150万的占比最多27.44%。(数据来源:好好选房)

与去年相比,成交的面积和总价都有所增长,极刚需经过几年的释放已经初见顶初改需求开始在二手房端释放,预计未来还将进一步走强。

当然,二手房的价格平稳仅仅只均价,随着行情的高涨,不同区域版块之间的价差也逐渐明显,核心城区尤其是高新南、锦江区、成华区等挂牌价和成交均价都呈现出价上涨的趋势。

据克而瑞四川的统计,今年2月仅有金融城、攀成钢、外金沙、大源、麓湖5个板块的二手房成交均价超过了2.5万元,前三依次是麓湖2.89万元/㎡、金融城2.73万元/㎡、攀成钢2.59万元/㎡;3月就攀成钢和金融城就突破了3万元,分别为3.12万元/㎡和3.02万元/㎡。同时,成华区是5+2区中二手房成交周期最短的,同比缩减为169天;天府新区则是最长的,同比增加为233天。

对于2025年成都购房者

刚需:优先考虑主城区地铁沿线次新房,或外围高性价比新盘。

改善/豪改:关注核心区优质新盘(如现房或准现房,价格低产品一般也是优质新房),避免高位接盘非稀缺性豪宅。

卖房者:非核心区房源建议适时出货,核心区次新房可观望至下半年政策窗口期。

2、刚需客群:优先二手房,上半年为窗口期

上半年挂牌放量较多,优质房源不断出现,不追求极致价格,从而考虑综合性价比的话,是可以考虑的关键节点。

3、刚改群体:主城新房窗口期短,需择机抄底

主城区新房供应减少,但产品迭代加速(如得房率提升、功能空间优化),总价300-500万区间竞争激烈,需警惕价格虚高项目。

除非有长期看好了的缘分之选,那么建议时机或为传统淡季的年中。届时最新供地已呈现,政策应出尽出,新房处于疲态,价格抄底机会多。

4、改善/豪改群体:核心区新盘优先,下半年警惕高位风险

土拍价格是还会涨,但是否击鼓传花?未来能否保值,存在很大的不确定性。带入自住属性考虑买入豪宅的话,精神压力会小很多。

但单纯从豪宅的价格时机来看,建议年初年末。

年初开发商推盘节奏较慢,核心区高端项目蓄客压力大,开盘价格尚未完全透支预期。

四季度抄底溢价项目,若市场分化加剧,年底部分高价项目可能因去化压力降价(如总价1000万+房源或降价10%-15%),但需关注房企资金链风险。

警惕楼面价虚高的伪豪宅。

5、风险提示——

信心比黄金重要,积极情绪得到修复,温和看涨成为主流舆论,房段子对此表示谨慎看多成都楼市。

但随着市场分化加剧,需警惕外围区域库存压力及房企资金链风险;利率政策若转向或影响短期需求释放。

2025年成都楼市将呈现“核心区稳中有升、外围区域承压,新房高端化、二手房刚需化”的格局,政策托底与市场分化仍是主基调。

2024城南人居标杆之作

嘉禾地产湖居系巅峰力作 重塑城南居住标准

项目坐标|19号线牧华路站地铁上盖|

成都·大源南生态住区·公园地铁复合社区

-----------------

【核心参数】

占地面积:约5.8万㎡(87亩)

规划户数:837席

建筑形态:10-17层小高层

梯户配置:两梯两户纯板式

车位配置:1:1.7黄金配比

容积率:低密2.0

绿化体系:35%绿地覆盖率

物业服务:绿诚物业(3.6元/㎡/月)

空间效能:110%超高得房率

层高标准:3.15米舒居尺度

交付标准:2900元/㎡臻装标准

预计交付:2025年12月

【开发商实力】

嘉禾地产——成都高净值人群居住解决方案专家

作为本土实力房企,先后打造金沙壹品、嘉禾华府等标杆项目,此次携湖居系作品首进城南,以公园生态住区理念,引领大源南品质生活新风尚。

【地段价值】

占据大源南稀缺低密住区,坐享成熟城市配套。区域汇聚高端住宅群落,形成纯粹改善型居住圈层。三地铁立体交通网络,无缝对接城市核心资源。

【全能配套】

立体交通:19/5号线双地铁已运营,22号线(规划中);"四纵四横"路网贯通全城

生态资源:紧邻300亩华府生态公园(建设中),坐拥怡心湖上游优质水系

商业矩阵:10分钟内直达中海环宇坊/世豪广场等7大商业综合体

教育配套:棠湖怡心实验中学(9年制)等优质学府环伺

人文地标:蔚蓝艺术中心、国际品牌酒店集群

【产品亮点】

国际大师操刀园林设计,打造2万㎡立体景观中庭。300米超大楼间距,保证户户观景视野。纯板式结构设计,实现100%南北通透。

【臻装户型】

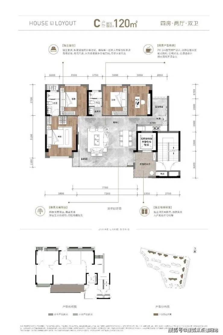
建面约120㎡四房两厅两卫

·独立电梯前室设计,10㎡专属归家空间

·7.7米全景阳台,引阳光入室

·270°L型观景阳台,四季美景尽收

·5.1米主卧开间,配备独立衣帽间

建面约143㎡四房两厅三卫

·15㎡空中花园式电梯厅

·9.8米全景落地窗,首创市场纪录

·双套房设计,主次卧均配独立卫浴

嘉禾滨湖颂售楼处电话028-83516246「来电尊享优惠活动」☎

☎【置业经理】:15928896133「微信同步」☎

温馨提示:为了给您提供更高更好的接待服务质量,看房请提前致电售楼处预约!

【有免费看房车接送服务,如需预约,请致电售楼处】

全部

相关资讯

报名成功
稍后会有专业的置业顾问联系您
返回楼盘

频道导航

返回首页

看房小程序

APP下载

电话拨通后,请您手动拨打分机号

确定拨打电话

电话号码:

分机号:(可能需要拨分机号)