成都稀缺酒店资源——映江南:开高端酒店的老板看过来 ,建面24661平1.7个亿拿下, 星级配套️绝版资产

搜狐焦点德阳站

2025-10-19 19:34:54

购房群

买房如何避坑,加入购房群,看看他们怎么说

立即进群

☎售楼处电话028-83516246「来电尊享优惠活动」☎

☎【置业经理】:15928896133「微信同步」☎

温馨提示:为了给您提供更高更好的接待服务质量,看房请提前致电售楼处预约!

【有免费看房车接送服务,如需预约,请致电售楼处】

免责声明:(本文章所用信息图片来源于网络,如有侵权请联系本网站及时删除)

??成都绝版全配套酒店物业??

??【2025绝版酒店资产】全城首开??

———————————————————

??【绝版物业|碾压全城】??

•?唯一款|绝版酒店,顶流配套?

•?地铁口|三轨交汇,人流汇聚?

•?财富地|成北新消费活力区?

•?正中轴|天府大道北中轴封面?

•?产业芯|六大千亿产业环伺,价值稳涨?

•?带人潮|百万产业人群,自带流量?

•?旅游点|网红打卡点,旅游目的地?

•?天际楼|约139米天际线,全落地玻璃?

•?全配套|会所·泳池·宴会·央厨·车位等?

??【绝版区位|天府中轴心脏】??

•立足150KM天府北中轴——全球最长城市中轴,城市财富黄金线

•坐拥成都战略门户——成北新消费活力区,承接成渝双核、成德绵一体化红利

??【全城通达 丨 交通便利】??

•三横三纵立体交通——便捷连通全城

•三轨交汇——地铁5号线,27号线,S11

??【千亿圈层 丨 产业齐聚】??

•六大产业链同频发力——坐享上下游资源(商务商贸、体育文创、汽车贸易、智能家居、美食餐饮、医药贸易)

•千亿级企业总部集群——尽享全球财富磁力圈(国际商贸城、中航城、海宁皮革城、传化物流、京东园区、阿里巴巴)

??【赛事红利|人潮爆发】??

凤凰体育公园演唱会、赛事、展览不断——吸引大量星粉,消费潜力巨大。

??【网红景点|旅客必到】??

三星堆、大熊猫基地、金沙遗址黄金三角——网红旅游线路核心打卡地。

??【常住人口|稳固客群】??

项目五公里约100万、三公里约20万人口沉淀。

??【全城瞩目丨标杆级旅游目的地】??

•约25万方苏州园林综合体——15000㎡园林IP商业+外广场+源上湾公园,文旅一体消费体验。

•西南唯一纯正苏州园林——水石相依、亭台楼阁尽显江南韵味,城市级网红打卡地。

•超甲写字楼+宴会厅——自带商务与婚宴人群,稳定导流。

??【豪华配套丨商旅畅享】??

•高端宴会厅——婚宴、会议、聚会全能承载,稳固导入人群。

•天际会所+泳池——城市之巅,尊贵社交场。

•9梯27户高速电梯——高效通行,舒适体验。

•地上+地下专属车位——配比充足,畅停无忧。

•星级酒店大堂——恢弘形象,尊崇接待。

•中央厨房——全能支持,满足餐饮宴会全场景需求

??【1层】艺术办公大堂??

(层高6米)

??【2层】宴会厅+会议厅+VIP接待??

面积:3517.62㎡,层高:6米

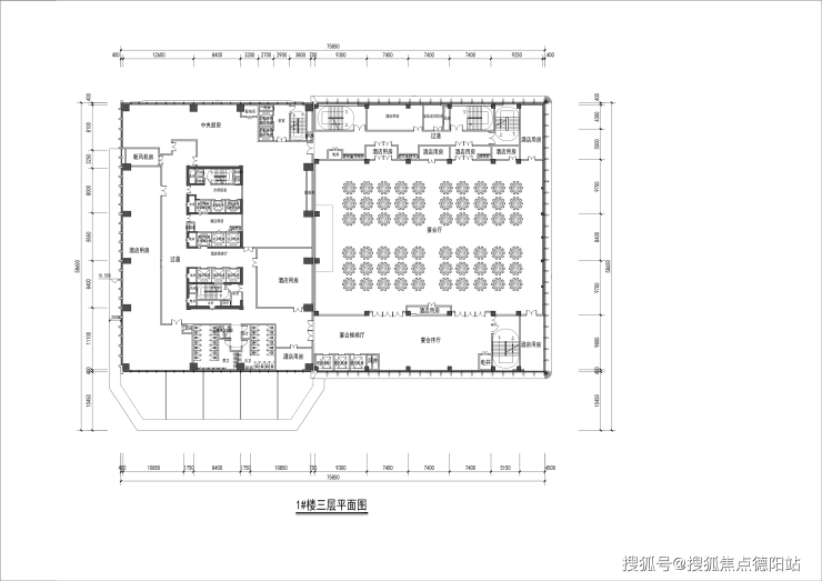
??【3层】挑高宴会厅+中央厨房+全日制餐厅??

面积:3648.91㎡,层高:4.5米,局部8.7米挑高

??【4层】私宴+中厨房+约500㎡共享空间??

面积:2133.84㎡,层高:4.5米

??【5层】棋牌+娱乐(赠送超大露台)??

面积:1882.49㎡,层高:4.2米

??【绝版酒店丨全城唯一】??

•25层~30层,单层面积:1658.08㎡

•31层面积:1658.08㎡

•层高:3.6/4.2米

??【酒店共计产权面积丨24661㎡】??

??【买增值买预期|稳健资产闭眼入】??

呈现进度80%,酒店需求超高

??限时售卖|区域唯一|稳定收益<<<<

☎售楼处电话028-83516246「来电尊享优惠活动」☎

☎【置业经理】:15928896133「微信同步」☎

温馨提示:为了给您提供更高更好的接待服务质量,看房请提前致电售楼处预约!

【有免费看房车接送服务,如需预约,请致电售楼处】

免责声明:(本文章所用信息图片来源于网络,如有侵权请联系本网站及时删除)

全部

相关资讯

报名成功
稍后会有专业的置业顾问联系您
返回楼盘

频道导航

返回首页

看房小程序

APP下载

电话拨通后,请您手动拨打分机号

确定拨打电话

电话号码:

分机号:(可能需要拨分机号)