首页【中杰·海德花园·翡翠院】售楼处电话→【中杰·海德花园·翡翠院】售楼中心首页网站→【中杰·海德花园·翡翠院】楼盘详情—海德花园·翡翠院+售楼处位置

搜狐焦点鄂州站

2025-08-02 12:15:36

购房群

买房如何避坑,加入购房群,看看他们怎么说

立即进群

中杰·海德花园

中杰·海德花园售楼处电话:400-112-0302【售楼中心】

咨询高峰期请耐心等待,预约来电尊享内部优惠,专业一对一热情服务,让您用专业眼光去买房。

时代所向,心之所望!

作为海安家喻户晓的城芯豪宅—— 中杰·海德花园,在五一期间惊艳推出了 二期翡翠院作品,一经面世,就凭借自带的爆款基因热销全城, 一批次仅剩少量房源在售,本月底二批次楼栋即将载誉加推!

选择中杰海德花园二期翡翠院,是海安人对海安热土的向往,也是人们对珍稀藏品的无限憧憬!

从来没有无缘无故的爆火,海德花园翡翠院究竟为何能引发市场如此疯狂?接下来我们就将之一一解构,解读其热销背后的“硬核逻辑”。

核心区的优质房产

依然是重要的财富仓库与稳定器

资源占有,是置业的根本逻辑。

李嘉诚有句名言:第一是地段,第二是地段,第三还是地段。地段赋予的不可复制的优势非常重要。 好的位置往往意味着优质服务、良好环境、完善配套,以及诱人的升值空间!

在著名美剧《纸牌屋》中,弗兰克总统也说过“权力就像房地产,位置是所有的一切,你离中芯越近,你的财产就越值钱。”

示意图

项目就处在 海安城芯不可复制的超级地段上,地处宁海路与江海中路交汇处。作为城市封面豪宅的中杰海德花园翡翠院,几乎拥有了海安主城芯优质资源配套。

教育配套上,地块目前属于 海安市实验小学、海陵中学施教区。名校环绕,氛围浓厚。

医疗配套上,毗邻海安市 中医院、海安市 人民医院

交通配套上, 江海路、宁海路两条城市主干道交汇,四通八达,拥有城际交通出行优势。

商业配套上,举步可至安达 步行街和文峰大世界。

城芯即心脏,这里栖居着繁华,云集着财富,更珍藏着一座城市的理想生活。

太稀缺!容积率仅1.6

主城芯低密生活 少数人珍藏

笔者观察发现,眼下买房人仍然在争抢的房子,往往有这样一些共性: 中心城区、改善型、低密度。

随着城市开拓发展,城芯土地的“物以稀为贵”不必多言,而 低密可以理解为项目产品力的直观标准——让居住者更舒适,房子就更有价值。

中杰海德花园二期翡翠院打动不少买房人的第二点,是 低至1.6的容积率。仅看容积率,放眼望去,整个南通都十分少见。

二期翡翠院效果图

更低的容积率,代表更高的居住舒适度,让生活轻松拥有充足的阳光,和煦的清风和宽广的视野,让家人自在享受渴望已久的城市宁静时光。

海德花园沿城市中央滨水景观带—— 洋港河两岸分布,玉带环腰,拥有极佳的滨水景观资源,真正的傍水而居!未来,项目将进一步对地块范围滨水景观进行全面升级。

效果图

翡翠院汲在社区中于“城市隐奢艺术酒店”主题相结合, 通过一林溪水岸轴和林影归家带的景观交错方法,打造“一轴一带四园”的景观体系。内外景观双重优势下,小区自带天然氧吧。未来,业主推开窗,即可享受奢阔视野,俯看体验城市里的低密生活。

高端住宅立面 楼市颜值担当

在这个“颜值”当道的时代,试问:谁不喜欢好看的事物?

在颜值即正义的时代,外立面是对一个楼盘的第一印象。擅长打造有质感、有特色立面的中杰,在海德花园二期翡翠院,更是如此。

洋房效果图

中杰·海德花园

中杰·海德花园售楼处电话:400-112-0302【售楼中心】

咨询高峰期请耐心等待,预约来电尊享内部优惠,专业一对一热情服务,让您用专业眼光去买房。

通往经典的伟大建筑,都是曲线连接的。纵观世界标杆项目的外立面,大都逃不开曲线。这不仅是建筑设计大师的共识,也是人类美学的巅峰演绎。

海德花园翡翠院在立面构建的语境中, 大气实用的弧线倒角,水平线脚的精致飞边,独具艺术性又可保障采光日照。弧线的背后,是 极大的工艺难度和人力消耗,但是海德花园不惜成本,只为业主每一次回家的满意度。据悉,整个建筑外立面玻璃幕墙面积较普通建筑增加了数倍,每一处细节的用心,都彰显着开发商中杰的用心。

高端会所 匠心所在

致敬高端圈层不凡人生

无会所,不豪宅。

“百万买房,千万买邻”,终极改善对圈层的执着追求从没有变过! 海德花园翡翠院的出现,让海安人知道,高端的小区,单一的会所是不够的。

对豪宅业主们来说,具有私密性和专属感的私人会所,不仅是多了几处足不出户的体验空间,更多的是一种精神堡垒,也是塔尖圈层社交生活的重要载体。

海德花园翡翠院, 在社区内配置地上地下总计约1700㎡星级泛会所,融入全龄圈层生活理念打造从私董社交场到高定美食餐厅等多元空间相融。

会所效果图

在这里,有专门为您个人量身定制的 私宴服务。你可随时约上生意伙伴,或者招待朋友,尽显大家风范。

会所效果图

在这里,有 高定瑜伽室、静心禅茶室,空间意境宁静致远,这里想必会成为小区女主人的秘密放松基地。

会所效果图

在这里,有 咖啡红酒雪茄吧,罗伯特·史蒂文森曾说:酒是瓶装的诗。红酒雪茄吧凸显情怀与德系工艺的完美结合,在现代变奏的匆忙之中,这里拥有一份处事不惊的诗意生活。兼具实用主义和质感腔调,满足高净值人群对物质世界和精神世界的求知和探索。

中杰·海德花园

中杰·海德花园售楼处电话:400-112-0302【售楼中心】

咨询高峰期请耐心等待,预约来电尊享内部优惠,专业一对一热情服务,让您用专业眼光去买房。

会所效果图

会所内部还设有 游泳池、社区共享餐厅、艺术恒温泳池、高多功能棋牌室、中医理疗室等功能区间,既满足了居住的舒适感,更尽显业主的身份地位。

独一档的产品从来都是实力碾压

刷新主城芯豪宅天际线

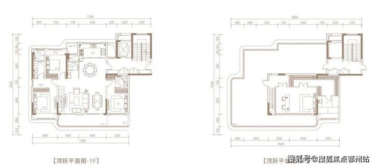
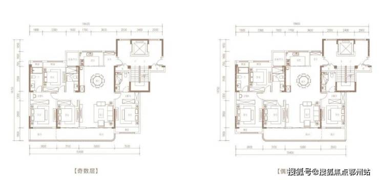
海德花园翡翠院匠心打造 建面约135㎡高层产品,建面约141㎡-193㎡洋房产品,大面积落地玻璃、大尺度景观阳台、顶跃露台等,备受塔尖圈层热捧。

“第一次看完翡翠院,回去想了1天,越想越觉得好。又带着家人来复看。”这是笔者在探盘看样板房时,客户的真实反馈。是什么样的产品,能让阅盘无数的改善客,如此心心念念?

笔者看了建面 约166㎡户型实体样板间,不得不夸空间感和设计感太绝了!

首先是 3.1㎡的层高,高于其它小区20-30cm,超越的不仅仅是建筑本身,是赋予室内空间更佳的采光!建面约166㎡户型约15.4米宽的 四开间朝南格局,呈现出科学的居家动线。餐客厅与阳台连线一体化,空间感更强烈!

实景图

超大阳台与露台相连,作为一个资深阳台控,看到这个户型的时候,笔者内心是无比喜悦与激动的!足够的空间尺度营造了更好的空间体验,而且露台面积是赠送的,“露台+阳台”的完美组合,在这里可以安放下所有的兴趣爱好,晾晒、为萌宠安家、养护植物、甚至是健身锻炼,空间都足够。

实景图

在户型空间的设计中, 南北特有的观景飘窗,创造出更通透、流转的空间底色。三进式的套卧私殿,彰显了生活的优雅仪式感。

并且通过合理的布局规划,打造约83%高得房率,这种在保证各功能空间舒适性的前提下,把每一平方米都做到位的产品,在市场上真的不多见。

翡翠院洋房产品,于首层增设下沉式花园与地下室,顶层增设露台,搭配阳台,露台区域的高附赠,功能更全面的灵动空间,让当代的改善置业更具有性价比!

海璟 建筑面积约163㎡ 底复户型

林深见“院”,诗意也在花园里生长。

翡翠院洋房,赋予了土地更深广的价值。“洋房场景主义”的革新自首层开始,便演绎出理想生活的缤纷姿态。不同于普通架空层设计的楼栋,翡翠院洋房产品首层设计均高附赠采光地下室及下沉式花园空间,围合式的场景设计,立体式造景错落有致,让自然森境与生活空间形成有机链接,创造出沉浸式度假的墅境栖居生活。

海璟 建筑面积约141㎡户型

在有限的空间里,以超乎想象的尺度落笔,营造出的是专属于生活的“领地”。

以开阖的大气尺度丈量,唯有阔达约13.8米的巨幕开间,方能布局出三卧朝南的雍容排面。『海璟』户型更匠心设计约35㎡尊宴宽厅,让派对与宴客主宾尽欢。而整个户型的点睛之笔,当属约18.4米的“空中花园”。以跑道式阳台+星空露台完美组合,流畅的弧形曲面空间,让人仿佛置身于世界名艇的奢华甲板之上,270°美景一览无余。

*建筑面积约141㎡户型图

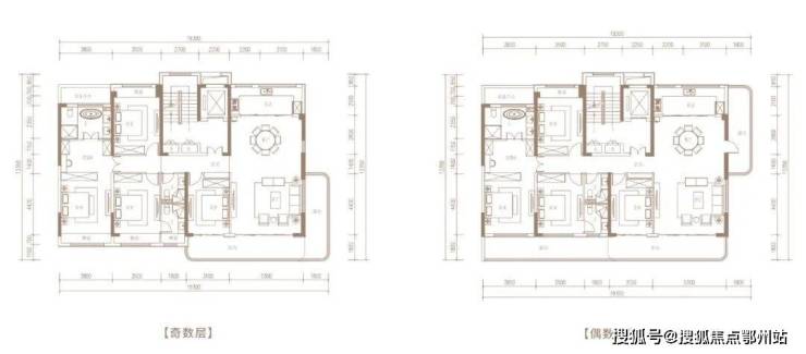
海銘 建筑面积约166㎡户型

翡翠院的生活就如同珍宝,每一扇窗都能折射出不同的“视界”与华彩。

在『海铭』空间的设计中,南北特有的观景飘窗,创造出更通透、流转的空间底色。LDK一体化设计的宴会级大宽厅,拥有约43㎡超尺度的主场吸引力,无论家宴还是私董商务社交,都是宾客的焦点所在。三进式的套卧私殿,彰显了生活的优雅仪式感。“露台+阳台”的专属配置,是城市仰望的存在,更是洋房主人的私藏。

*建筑面积约166㎡户型图

中杰·海德花园

中杰·海德花园售楼处电话:400-112-0302【售楼中心】

咨询高峰期请耐心等待,预约来电尊享内部优惠,专业一对一热情服务,让您用专业眼光去买房。

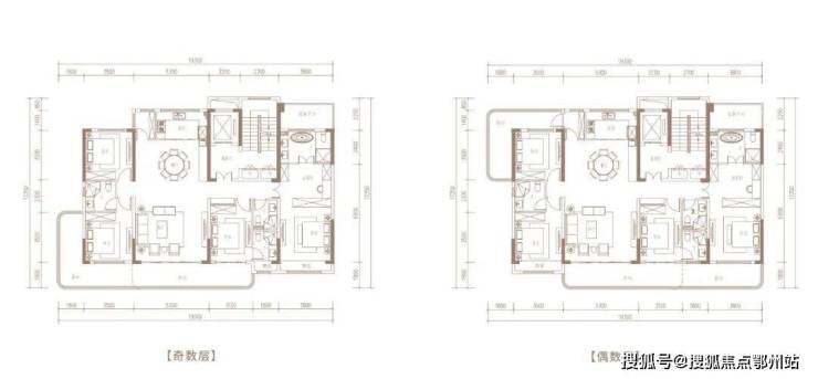
海樾 建筑面积约192㎡户型

在悦己的主场,生活就是闪耀的秀场,奢享总能层层递进。

充满宫廷礼仪的十字洄游动线布局,全南向双套卧的“高配”设计,更有阔达约5.3米轩朗宽厅……“高定空间”的奢华质感,在约192㎡『海樾』的户型设计中被无限放大,创造出无与伦比的“空中殿堂”。“露台+阳台”的凌空瞰台,更像是天地花园中的VIP座席,无论运动、会友、侍花,一抬眼整个世界仿佛就在脚下。

*建筑面积约192㎡户型图

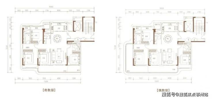
海玺 建筑面积约193㎡户型

生活的每一刻,都值得被尊重。在翡翠院的设计思考中,“仪式感”总是如影随形。

对于洋房而言,空间愈大,秩序感愈强烈。纵览『海玺』的空间设计,约193㎡的奢贵领地中,尊礼玄关圈划起世家生活的鼎级峯范;将全景天幕空中花园当作家的“背景墙”,阳台/露台/飘窗联动的四时风景就是价值不菲的“名画”。在至约56.7㎡的峯境宴客厅中,情感流动无界,更盛放生活不同的精彩想象。当灯火满溢,书声、茗香、笑语、烟火气冉冉交织,就是家最动人的时光。

*建筑面积约193㎡户型图

海璟 建筑面积约192㎡ 顶跃户型

生活的高阶想象力,从不设限。就如翡翠院的“顶层”,以向上的态度致敬天空与世界,专为藏家生活的每一个“大场面”而生。

每个顶层产品皆以墅质理念设计,标志性的错落式布局,营造出森境感十足的复式星空花园。拾级而上的每一层,都是藏家彰显非凡品位的“生活场”。张弛空间的“个性张力”,在此完美释放。

*建筑面积约192㎡顶跃户型图

海璟 建筑面积约180㎡ 顶跃户型

空间的进取之势,从平面到立体。不同维度勾勒出不同年龄阶段的自我精神主张。

三重套卧进阶,社交横厅聚场,一一围合出大家族生活的千姿百态,安放悦己的惬意与舒适。特别是部分整层高定套卧的尊属设计,拥有三进子母式套卧空间,母婴陪伴、独立工作间等灵动需求,一“层”满足。

*建筑面积约180㎡顶跃户型图

造一方天地,聚一群人,享一片天。翡翠院“顶层”的生活就是志趣圈层的“游乐场”。私享屋顶转角露台,无论天幕阳光健身房,还是空中花园暖房,皆能陶冶生活之趣。与友共欢,民谣BBQ、泳池派对、星空露营等,不出家门的狂欢,精彩更不拘一格。

中杰·海德花园

中杰·海德花园售楼处电话:400-112-0302【售楼中心】

咨询高峰期请耐心等待,预约来电尊享内部优惠,专业一对一热情服务,让您用专业眼光去买房。

郑重承诺:此房源信息真实有效,开发商直属全程营销策划,中介勿扰如有问题欢迎来电咨询,来电即可享受买房优惠!

1、本资料为要约邀请,不作为要约或承诺;买卖双方的权利义务以双方签订的《商品房买卖合同》及其补充协议、附件等书面文件为准;相关宣传内容不排除因政府相关规划、规定及出卖人分期规划、未能控制等原因发生变化;出卖人将!不定期对宣传材料进行修改,敬请留意最新资料。

2、图片来源于网络,仅作为推广示意使用;如涉及版权使用,请与我司联系。

全部

相关资讯

报名成功
稍后会有专业的置业顾问联系您
返回楼盘

频道导航

返回首页

看房小程序

APP下载

电话拨通后,请您手动拨打分机号

确定拨打电话

电话号码:

分机号:(可能需要拨分机号)