上海闵行「龙湖天琅」售楼处电话 | -楼盘详情_容积率_电话解析

搜狐焦点鄂州站

2025-06-15 16:36:07

购房群

买房如何避坑,加入购房群,看看他们怎么说

立即进群

上海闵行「龙湖天琅」

龙湖天琅售楼中心: ☎400-788-2939「销售中心」

◆网上售楼中心—— 欢迎来电预约尊享Vip一对一服务!◆

不限购不限贷,商住别墅

上海闵行「龙湖天琅」

稀缺低密度联排别墅产品,开车到虹桥商务区20分钟左右。

面积段:389—400平米

物业类型:商住别墅

楼盘卖点:

上海闵行「龙湖天琅」

龙湖天琅售楼中心: ☎400-788-2939「销售中心」

◆网上售楼中心—— 欢迎来电预约尊享Vip一对一服务!◆龙湖天琅产品参数

总计套数:50 套(2万方)

面积范围:390 ~400平米

单价:2.8-3万

一层 3.9米(局部7.2米挑高),二层 3.3米,三层3.6 米,地下层高2.9米

面宽进深:面宽10 米,进深 6.5米

赠送花园:30-100 平米(中间套主力 30平米)

办公性质:50 年

物业价格:8.5元

上海闵行「龙湖天琅」

龙湖天琅售楼中心: ☎400-788-2939「销售中心」

◆网上售楼中心—— 欢迎来电预约尊享Vip一对一服务!◆价格范围:860-1500万

【龙湖天琅商住大平层】

商业大平层面积:

209-232平层,可居住、可办公。

【极致地段】:新晋主城闵行腹地,5分钟上嘉闵高架,约15分钟直达虹桥交通枢纽,35分钟直达浦东国际机场,约40分钟接驳陆家嘴

【产业红利】闵行经济开发区与紫竹高新科技园,尽享产城结合;985名校,华师大、交大屹立;上海人工智能未来小镇,腾讯,阿里巴巴,百度人工智能板块聚集地,打造科技版的迪士尼,缩小版的雄安新区.

上海闵行「龙湖天琅」

【高端配套】安缦酒店、花园高尔夫俱乐部、网球大师杯比赛场馆、闵行中心商务配套、万达广场

【顶级物业】龙湖物业,国家一级物业资质,礼遇时代巅峰人士

【绝版产品】一梯一户私属尊贵绝版大平层,15.4m超大南采光面,新亚洲主义主调,全石材干挂,葡萄牙米黄简洁高雅。

【百变功能】209㎡-232㎡面积适中,布局灵活,功能百变。

上海闵行「龙湖天琅」

龙湖天琅售楼中心: ☎400-788-2939「销售中心」

◆网上售楼中心—— 欢迎来电预约尊享Vip一对一服务!◆

项目名称:上海龙湖天琅

建设单位:龙湖集团

建筑面积:151894平方米

项目地点:上海市闵行区

上海闵行「龙湖天琅」

龙湖天琅售楼中心: ☎400-788-2939「销售中心」

◆网上售楼中心—— 欢迎来电预约尊享Vip一对一服务!◆建筑设计:上海睿风建筑设计咨询有限公司

上海中森建筑与工程设计顾问有限公司

幕墙顾问:弗思特工程咨询有限公司

项目团队:胡小聪、杨莲、高小雨、朱明、赵云龙、孙海峰

项目简介

龙湖·天琅项目位于有着上海“龙脊之地”美誉的马桥镇。马桥有深厚的文化和人口基础,但是商娱资源匮乏,缺少承载社会活动的物质场所。龙湖针对性打造了集办公、商业、冠寓、养老等多业态为一体的缤纷城,为当地居民带来丰富的生活体验。

星悦荟商业街,是龙湖目前级配最高的社区级商业,囊括餐饮、零售、教育、生鲜超市、健身运动会所以及巨幕影院等多元业态。追溯古马桥镇传统商业空间,旧时光记忆,采用街巷式布局,将购物空间分散在一座座小型独栋与内院中,同时又以连廊进行局部衔接。

上海闵行「龙湖天琅」

龙湖天琅售楼中心: ☎400-788-2939「销售中心」

◆网上售楼中心—— 欢迎来电预约尊享Vip一对一服务!◆花园式办公,舒适的内向型街区,安静、安全而自由的商务环境。

弗思特为本项目提供了全过程的顾问咨询服务。该项目在第十三届“金盘奖”上海赛区评选中,获得上海赛区“年度最佳综合楼盘奖”。

星悦荟商业街

星悦荟商业街建筑设计采用化整为零、内外对话、虚实对比、天际线的原则。基于对建筑设计理念的理解,在幕墙设计中,以通透玻璃幕墙加铝板、花岗石幕墙穿插结合;色彩上采用黑白灰为主的建筑色,将外立面效果与功能性的泛光照明、水、电、暖有机结合,各种风格根据色调的调配,和谐的共生为一个整体。

弗思特在提供顾问服务的过程中,对每一类的幕墙系统的选择,从分格的调整(包含成本的分析),

到拼角的拼缝形式,到与泛光的结合方案选择等,从各个维度对幕墙系统的选择进行分析、考虑,提出最优的解决方案。

上海闵行「龙湖天琅」

龙湖天琅售楼中心: ☎400-788-2939「销售中心」

◆网上售楼中心—— 欢迎来电预约尊享Vip一对一服务!◆

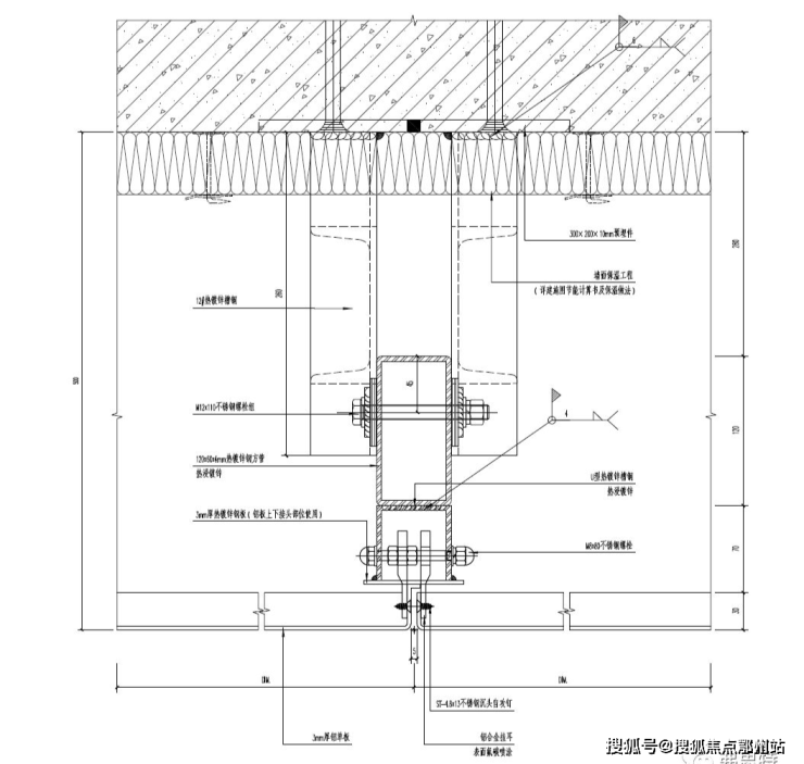
屋顶金属飘蓬为空间折面板对拼,不共面;为了指导钢结构工程的现场施工定位,弗思特重新根据混凝土结构图、钢结构图、建筑图还原了金属屋面表皮、钢龙骨以及金属格栅的模型,并根据模型反提了控制角点的定位坐标、标高,为现场施工提供了强有力的技术支持。

石材幕墙拼缝的形式对比:

弗思特照明事业部的同事,对幕墙与泛光照明结合的形式提供了建议。石材幕墙与泛光照明结合的形式对比:

上海闵行「龙湖天琅」

龙湖天琅售楼中心: ☎400-788-2939「销售中心」

◆网上售楼中心—— 欢迎来电预约尊享Vip一对一服务!◆

上海闵行「龙湖天琅」

根据对比不同的建筑玻璃的分格、玻璃的物理性能、节能的要求、开启形式等因素,在玻璃原片的选择上,项目最终选用双银双超白中空钢化玻璃及双银双超白夹胶中空钢化玻璃。

玻璃原片选择对比:

铝板幕墙系统对比:

根据不同的外立面形式,本项目铝板系统分两种,第一种为常规打胶铝板幕墙,第二种为吊挂铝板幕墙。

花园办公

花园办公采用新亚洲主义建筑风格,以具有浓厚地域特色的传统文化为根基,融入西方文化。把亚洲元素植入现代建筑语系,将传统意境和现代风格对称运用,用现代设计来隐喻中国的传统。在关注现代生活舒适性的同时,让中国传统文化得以传承和发扬。

外立面采用葡萄牙米黄+德国金砂岩石材+铝板+超白玻组成,来彰显整个立面的高贵气质。

上海闵行「龙湖天琅」

龙湖天琅售楼中心: ☎400-788-2939「销售中心」

◆网上售楼中心—— 欢迎来电预约尊享Vip一对一服务!◆

全部

相关资讯

报名成功
稍后会有专业的置业顾问联系您
返回楼盘

频道导航

返回首页

看房小程序

APP下载

电话拨通后,请您手动拨打分机号

确定拨打电话

电话号码:

分机号:(可能需要拨分机号)