2025年虹口·越秀外滩樾(售楼处)首页网站|售楼中心|越秀外滩樾售楼处欢迎您-越秀外滩樾楼盘详情

搜狐焦点鄂州站

2025-07-07 22:36:34

购房群

买房如何避坑,加入购房群,看看他们怎么说

立即进群

越秀外滩樾售楼处电话:400-152-4009【售楼中心】虹口越秀外滩樾官方售楼处电话:400-152-4009【售楼处电话/地址】越秀外滩樾售楼处电话:400-152-4009【官方认证】】

越秀外滩樾售楼处电话:400-152-4009【售楼中心】虹口越秀外滩樾官方售楼处电话:400-152-4009【售楼处电话/地址】越秀外滩樾售楼处电话:400-152-4009【官方认证】】

在上海虹口区,一座顶级高端别墅项目——越秀外滩樾横空出世,重新定义奢华居住体验!

核心地段,稀世之选

越秀外滩樾傲踞虹口北外滩核心区,与外滩商圈直线距离仅约1公里,周边北外滩、四川北路、瑞虹新城三大商圈环伺,尽享陆家嘴、外滩、北外滩“黄金三角”顶级资源。

这里是城市的核心,是财富与繁华的汇聚之地!作为内环内罕见的纯墅社区,容积率仅1.3,规划仅49栋双拼、三拼及多联排别墅,稀缺性不言而喻。

由越秀地产与临港集团两大实力巨头联合开发,70年产权住宅,品质与保障双重加持。

奢华户型,价格彰显价值

建面约238 - 338㎡的主力双拼、三拼别墅,毛坯交付,为您打造个性化的专属空间。总价约4000万 - 9000万元。

【越秀·外滩樾】项目将呈现48套低密风貌里弄住宅,建筑面积约238-338㎡户型。户型图过程稿如下(过程稿仅供参考,最终以实际为准)。

建面约236.25㎡A户型

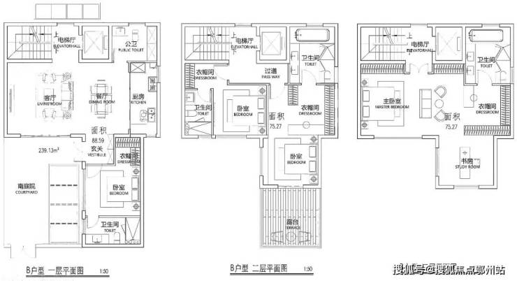
建面239.13㎡B户型▼

建面250.89㎡B-3户型

C户型

建面291.42㎡D户型

独特优势,无可比拟

稀缺设计,创新典范

上海风貌别墅审批可能暂停,已获批项目本就稀少,而越秀外滩樾更是其中的孤品!它突破传统风貌规制,大窗墙比、大开间设计,大幅提升居住舒适度。

由东方主义设计大师程绍正韬、豪宅设计专家李玮珉等大师联袂操刀,融合海派红砖、古典山墙等元素,让历史底蕴与现代美学完美交融。与普通别墅相比,它是艺术与生活的极致结合。

顶级配套,尊崇服务

交通上,邻近地铁4/10/12/19号线(在建),3站直达南京东路,6站畅达新天地,畅行无阻。

社区内配备2500㎡艺术会所,私宴厅、恒温泳池、运动空间一应俱全,提供酒店级服务,让您尽享尊贵生活。

周边还有虹口二中心小学(在建)、上海外国语大学附属外国语学校等优质教育资源,为下一代的成长保驾护航。

区域潜力,无限增值

北外滩总开发面积840万㎡,规划超40栋甲级写字楼、480米浦西第一高楼(北外滩中心),定位为“世界级会客厅”,商业能级对标陆家嘴,预计吸引2100 + 金融企业、4500 + 航运企业入驻。

在此背景下,越秀外滩樾的风貌别墅兼具居住与收藏属性,未来资产增值空间巨大,远超普通房产投资!

立即行动,把握良机

售楼处位于虹口区梧州路235弄,需提前预约参观样板间。官方电话400 - 938 -3568,可咨询房源、预约看房及优惠信息。

机会有限,先到先得,立即联系我们预约实地考察,抢占这限量房源的绝佳机会!

越秀外滩樾售楼处电话:400-152-4009【售楼中心】虹口越秀外滩樾官方售楼处电话:400-152-4009【售楼处电话/地址】越秀外滩樾售楼处电话:400-152-4009【官方认证】】

【故事一:户型之谜】

有天,我去个楼盘看房,销售小哥热情地给我介绍:“先生,这款户型是南北通透,果光好,而目还有大阳台,非常适合您!

我好奇地问:“那您能告诉我,阳台在北边还是南边呢?

销售小哥愣,然后笑噎地说:“哦,北边有北边的阳光,南边有南边的风最,您自己选吧

我哈哈大笑:“那我还是选北边吧,反正我也看不到风景。

【故事二:物业费之谜】

我买了一套新房,入住后才发现物业费超级贵。有一次,我忍不住问物业:“你们这个物业费怎么这么高啊?

物业:“先生,終这是不了解,我们这里的物业费包括了很多服务,比如绿化、安保、清洁等等

我:“那为什么我每次看到保安都在睡觉,清洁工也不怎么打扫呢?

物业:“哦,那是他们工作效率不高,我们会加强管理的。

全部

相关资讯

报名成功
稍后会有专业的置业顾问联系您
返回楼盘

频道导航

返回首页

看房小程序

APP下载

电话拨通后,请您手动拨打分机号

确定拨打电话

电话号码:

分机号:(可能需要拨分机号)