杭州余杭未来芯寓
余杭未来芯寓售楼处电话:400-112-0302(销售中心)
欢迎来电咨询〢专业一对一热情服务
温馨提示:网上售楼中心〢预约销售经理为您安心购好房〢如有侵权请联系删除〢
未来芯寓

租赁总价21万起入住未来科技城!
面积:22-45㎡
租赁持有25年出租收益高达60万!
月付888元坐享西溪精品V居!
未来科技城地铁准现房


一、项目基本信息:
【区域板块】:未来科技城核心
【装修情况】:精装修
【项目地址】:余杭区邱桥路与同顺街交叉口
【面积】 : 22-45㎡尊享品质
【物业】国盈物业 物业费4元
【层高】:平层3.25米 总共13层
【备注】本案地上建筑面积6万平方,地下面积2万平方
准现房
【可包租可自住】:包租稳定收益:包租8年、1-3年按照6⃣6⃣6⃣ ,4-6年:7⃣7⃣7⃣,7-8年:8⃣8⃣固定回报、
【交通】:地铁5号线五常站500米;地铁19号线荆长路站300米,东面绕城高速链接诸永高速、沪昆高速、杭甬高速;绕城高速、 留石高架、上塘高架、文一西路、文二西路。
【水电】:民电商水。
【车位】:684个。
杭州余杭未来芯寓
余杭未来芯寓售楼处电话:400-112-0302(销售中心)
欢迎来电咨询〢专业一对一热情服务
二、周边配套
【商业配套】
未名府源汇坊、西溪龙湖天街、城西宝龙广场、西溪印象城、西溪银泰城、博雅城、城西万达广场。
【医疗资源】
浙一医院余杭分院、浙大医疗中心
【旅游资源】
西溪湿地、西湖、良渚遗址公园、灵隐寺、五常湿地。
【产业配套】
阿里巴巴全球总部:阿里巴巴淘宝城距离项目2公里,总体分为三期建设,目前已有3万+员工入驻 二三期建成之后将会达到10万的人流量。
同花顺:其总部距项目500米,是一家免费网上股票证券交易分析软件,公司3000余人。
海创园:距本项目2公里左右,定位为国内一流的高新技术产业园区。基地规划总面积达到10平方公里,是杭州城区目前最大的高新产业发展连片地块,产业包括软件、信息服务与创意产业等技术领域的高新技术产业园。
恒生科技园:第一批落户杭州城西科创区的企业,主要定位文创、金融、互联网软件开发等产业,截至目前已经拥有赛石园林、石基信息、西朗科技等14家上市公司,优秀成长型企业700余家,共容纳15000多名人才。
梦想小镇:距本项目3.7公里,占地面积约3平方公里,涵盖了互联网创业小镇和天使小镇两大内容,累计引进孵化平台50余家,创业项目2136个,创业人才近18200名。
三、小区位图

四、Soho租赁价值
【 前景地段】:未来科技城东门户,周边集聚独角兽、准独角兽企业,汇聚近百万科创人群,可承接旺盛租赁需求
【高效交通】 :“换乘之王”5号线,机场直通19号线,与城市互联度高,交汇高知人群流量、前沿商业流量和科技创新流量
【舒适产品】:Mini精装公寓,独门独卫
【丰盛配套】:百万方商圈环伺,满足城市客厅般高端享受
【服务保障】:开发商物业保障后期物业服务,规范到位,品质保障
【三宜使用】:“宜自用、宜商、宜租”,可自用、易出租、便投资、可创业等叠加优势,吸引不同置业需求。
【优势政策】:高性价比TOD商业轻资产投资,不占用其他资产购置及贷款名额 。
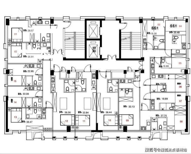
五、Soho样板房户型图鉴赏







杭州余杭未来芯寓
余杭未来芯寓售楼处电话:400-112-0302(销售中心)
欢迎来电咨询〢专业一对一热情服务










杭州余杭未来芯寓
余杭未来芯寓售楼处电话:400-112-0302(销售中心)
欢迎来电咨询〢专业一对一热情服务