开发商:武汉电德悦谷置业有限公司
物业:成都德商产投物业服务有限公司
产品类型:住宅
产权年限:70年
水费:民水
电费:民电
物业费:3.84元/平米/月
交房时间:2024年9月30日
交房标准:高层精装
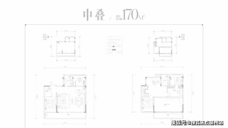
在售情况:141-175㎡高层,147-187㎡叠拼
光谷洺悦天玺,占地面积约4.7万方,总建面约17.3万方,容积率约2.5,共724户,机动车停车位1469个,车位比约1:2,项目共2个地块,包含7栋高层,6栋别墅和1所幼儿园。
户型图展示:
区位:
光谷洺悦天玺位于高科园路与神墩一路交汇处,楼市中属于光谷中心城板块,行政划分属于东湖高新区,环线位置在三环外。
光谷中心城属于东湖高新技术开发区,整个板块都是先规划后建设,所以目前不是很繁华,但是整个产住规划比较合理,产业聚集,商业集中,市政配套也在高新大道一条线上,板块内有如华为、小米等独角兽企业,被公认为武汉发展潜力最好的区域。该项目位于光谷中心城千亿大道高新大道旁。

项目区位图
交通出行:
自驾:项目北面是神墩一路,西临高科园路,沿高科园路可以直接上高新大道,往光谷核心、武昌核心、花山等板块,同时神墩一路可以直达光谷五路,上主干道快,交通出行非常方便
地铁与公交:项目距离地铁11号线的豹澥站最近,约400米,距离光谷六路站约700米,11号线可在光谷五路站与19号线换乘,19号线2023年年底就通车了。
配套:
商业上,项目隔壁的188国际社区已经交房几年了,入住率也很高,所以社区商业非常丰富,满足日常所需没问题。项目距离中建光谷之星商业街约600多米,步行可至。
在2公里范围内还有光谷五路地下空间走廊商业,光谷六路西边的光谷沃德中心、奥山光谷世纪城等办公较多,商业分布也比较密集,以餐饮为主,此外,项目距离光谷中心城唯一的商业综合体光谷大悦城直线距离约2公里,商业配套非常好。
教育上,小区紧挨着光谷十七小,按照2023年划片范围,项目属于学校划片范围,对口光谷一初,以项目与学校的距离,以后变动可能性极小,坊间传言,今年光谷十七小6年级成绩非常亮眼,是个准学区胚子。
医疗上,在高新大道附近有同济医院光谷院区和省妇幼光谷院区。