越秀外滩樾售楼处电话:400-152-4009【售楼中心】越秀外滩樾官方售楼处电话:400-152-4009【售楼处电话/地址】越秀外滩樾售楼处电话:400-152-4009【官方认证】
土寸金的稀缺地段为打造“好房子”提供了独特资源与热销基因,而优秀的住宅产品又可赋予这片土地更高的价值与意义。作为越秀地产“樾”系文化高定奢宅,越秀·外滩樾落址上海市虹口区北外滩核心地段,傲立于黄浦江与苏州河之上,深植海派文化,从建筑规划、建造工艺到生活场景,以49栋风貌别墅为载体,为上海献上来自越秀地产的生活答案。
以传承与开创为笔,为上海打磨“时代限定”之作。项目从人本主义设计思路出发,融合国际视野与东方美学,深度理解海派文化与当代生活方式,在建筑中注入大师哲思,于三重规划层面缔造非凡。
在作品层面,项目以工字形重新规划,打造外滩稀缺双联别墅的天地私享;在风貌层面,承袭百年文脉,复原海派石库门风貌建筑,还原海派里弄韵味;在创新层面,项目在上海中心区匠造山水隐奢之境,将一步一诗一画一园的山水自然体验融入日常。
以手工技法勾勒岁月肌理,借现代工艺突破品质界限,秉持“问师,择物,耗时”的理念,以精益求精的匠心雕琢每一寸空间。
砖,是建筑的“细胞”,也是建筑的起点和载体。海派风韵,从找到合适的红砖开始。项目精选宜兴五色泥矿,经过多轮调配、手工塑形、多轮打样与严格烧制,只为复刻百年红砖色彩与质感;并以非遗工艺精研砖石拼砌,灵活运用清水红砖、老砖、釉面砖等砖材,融合8种拼接技艺,将187种砖型呈现于建筑立面之上。无论是园林里从名山石场中甄选并开采雕琢的原石,还是庭院中自万亩松林中精选而出的象征家族传承的子母松,不惜成本的寻觅与雕琢,只为以极致的品质与匠心,铸就经得起时光淬炼的经典。
越秀外滩樾售楼处电话:400-152-4009【售楼中心】越秀外滩樾官方售楼处电话:400-152-4009【售楼处电话/地址】越秀外滩樾售楼处电话:400-152-4009【官方认证】
在上海虹口区,一座顶级高端别墅项目——越秀外滩樾横空出世,重新定义奢华居住体验!
核心地段,稀世之选
越秀外滩樾傲踞虹口北外滩核心区,与外滩商圈直线距离仅约1公里,周边北外滩、四川北路、瑞虹新城三大商圈环伺,尽享陆家嘴、外滩、北外滩“黄金三角”顶级资源。
越秀外滩樾售楼处电话:400-152-4009【售楼中心】越秀外滩樾官方售楼处电话:400-152-4009【售楼处电话/地址】越秀外滩樾售楼处电话:400-152-4009【官方认证】
越秀外滩樾售楼处电话:400-152-4009【售楼中心】越秀外滩樾官方售楼处电话:400-152-4009【售楼处电话/地址】越秀外滩樾售楼处电话:400-152-4009【官方认证】
这里是城市的核心,是财富与繁华的汇聚之地!作为内环内罕见的纯墅社区,容积率仅1.3,规划仅49栋双拼、三拼及多联排别墅,稀缺性不言而喻。
由越秀地产与临港集团两大实力巨头联合开发,70年产权住宅,品质与保障双重加持。
奢华户型,价格彰显价值
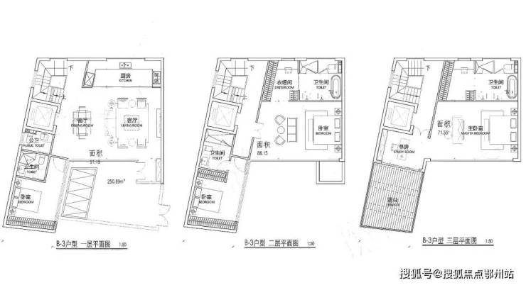
建面约238 - 338㎡的主力双拼、三拼别墅,毛坯交付,为您打造个性化的专属空间。总价约4000万 - 9000万元。
【越秀·外滩樾】项目将呈现48套低密风貌里弄住宅,建筑面积约238-338㎡户型。户型图过程稿如下(过程稿仅供参考,最终以实际为准)。
独特优势,无可比拟
稀缺设计,创新典范
上海风貌别墅审批可能暂停,已获批项目本就稀少,而越秀外滩樾更是其中的孤品!它突破传统风貌规制,大窗墙比、大开间设计,大幅提升居住舒适度。
越秀外滩樾售楼处电话:400-152-4009【售楼中心】越秀外滩樾官方售楼处电话:400-152-4009【售楼处电话/地址】越秀外滩樾售楼处电话:400-152-4009【官方认证】
由东方主义设计大师程绍正韬、豪宅设计专家李玮珉等大师联袂操刀,融合海派红砖、古典山墙等元素,让历史底蕴与现代美学完美交融。与普通别墅相比,它是艺术与生活的极致结合。
顶级配套,尊崇服务
交通上,邻近地铁4/10/12/19号线(在建),3站直达南京东路,6站畅达新天地,畅行无阻。
社区内配备2500㎡艺术会所,私宴厅、恒温泳池、运动空间一应俱全,提供酒店级服务,让您尽享尊贵生活。
越秀外滩樾售楼处电话:400-152-4009【售楼中心】越秀外滩樾官方售楼处电话:400-152-4009【售楼处电话/地址】越秀外滩樾售楼处电话:400-152-4009【官方认证】
周边还有虹口二中心小学(在建)、上海外国语大学附属外国语学校等优质教育资源,为下一代的成长保驾护航。
区域潜力,无限增值
北外滩总开发面积840万㎡,规划超40栋甲级写字楼、480米浦西第一高楼(北外滩中心),定位为“世界级会客厅”,商业能级对标陆家嘴,预计吸引2100 + 金融企业、4500 + 航运企业入驻。
在此背景下,越秀外滩樾的风貌别墅兼具居住与收藏属性,未来资产增值空间巨大,远超普通房产投资!

立即行动,把握良机
售楼处位于虹口区梧州路235弄,需提前预约参观样板间。官方电话400 - 938 -3568,可咨询房源、预约看房及优惠信息。
越秀外滩樾售楼处电话:400-152-4009【售楼中心】越秀外滩樾官方售楼处电话:400-152-4009【售楼处电话/地址】越秀外滩樾售楼处电话:400-152-4009【官方认证】
机会有限,先到先得,立即联系我们预约实地考察,抢占这限量房源的绝佳机会!
越秀外滩樾售楼处电话:400-152-4009【售楼中心】越秀外滩樾官方售楼处电话:400-152-4009【售楼处电话/地址】越秀外滩樾售楼处电话:400-152-4009【官方认证】