奉发云邸售楼处欢迎您-楼盘详情-奉发云邸(售楼处)房价-户型-容积率-售

搜狐焦点鄂州站

2025-06-17 21:27:32

购房群

买房如何避坑,加入购房群,看看他们怎么说

立即进群

奉发云邸

奉发云邸售楼处电话:400-112-0302【售楼中心】

咨询高峰期请耐心等待,预约来电尊享内部优惠,专业一对一热情服务,让您用专业眼光去买房。

地段

「奉发云邸」择址奉贤新城东南板块,坐享自贸新区产城融合和奉贤“三区两镇”双重发展红利。区域将围绕新能源汽车、精准医疗、生物医药和世界级大健康产业发展,打造“宜居、宜业、宜游、宜学”的湾区。

交通方面, 纵横立体路网 闲适与繁华随意切换 林海公路/浦星公路/沪金高速/沪奉高速(建设中)/金海公路多条纵线与绕城高速、

申嘉湖高速双横向干道组成立体路网,辐射大浦东黄金生活圈。规划中的市域奉贤线直抵海湾大学城,项目门口即有公交站点布局,便捷路网,畅享上海主场生活。

生态方面,一湖三公园 推门即享诗意悠然 项目周边布局海湾国际森林公园、碧海金沙、都市菜园等3大国家级4A级景区,以及15公顷星火体育公园约2.7万㎡湖域,形成“一湖三公园”多维生态系统,打造滨海生态宜居宜养住区。

其他方面,项目周边分布有海湾镇政府、奉贤海湾医院、星火学校、海湾小学、上海师大第四附中、上海师范大学奉贤校区、华南理工大学奉贤校区等政务、医疗、教育机构,全维成熟配套触手可及。

奉发云邸

奉发云邸售楼处电话:400-112-0302【售楼中心】

咨询高峰期请耐心等待,预约来电尊享内部优惠,专业一对一热情服务,让您用专业眼光去买房。

2产品

「奉发云邸」以上海“闲仕生活”为精神内核,秉承奉发集团精工匠心与品质,敬呈全周期宽景轻平层与会生长的轻别墅两大主力产品。空间灵动,超宽尺度,打造全龄段家庭的舒适生活空间,尽享公园湖海之间的闲适生活意境。

社区内打造了中轴对称广维景观,酒店级轻奢入户大堂,配以自带商业的下沉广场,给与生活层次丰富的韵律感。

同时还设有五重互动场域,分别是活力场域、健康场域、成长场域、颐养场域、精神场域等,可以满足全龄段住户的活动与社交需求。

整个小区容积率只有1.5,并且规划为南低北高的建筑形态,充分保证了每户的采光和视野,如此低密度社区,大大提高了居住的舒适度!

更令人眼前一亮的还是奉发云邸的两大主力产品:宽尺度全周期轻平层、会生长的轻别墅。

A1下叠 约138㎡

A1上叠约138㎡

A2上叠约138㎡

A2下叠约138㎡

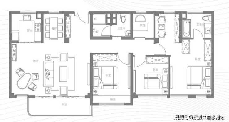
E户型 约126㎡

F户型 约99㎡

B户型 约138㎡

奉发云邸

奉发云邸售楼处电话:400-112-0302【售楼中心】

咨询高峰期请耐心等待,预约来电尊享内部优惠,专业一对一热情服务,让您用专业眼光去买房。

郑重承诺:此房源信息真实有效,开发商直属全程营销策划,中介勿扰如有问题欢迎来电咨询,来电即可享受买房优惠!

1、本资料为要约邀请,不作为要约或承诺;买卖双方的权利义务以双方签订的《商品房买卖合同》及其补充协议、附件等书面文件为准;

相关宣传内容不排除因政府相关规划、规定及出卖人分期规划、未能控制等原因发生变化;出卖人将!不定期对宣传材料进行修改,敬请留意最新资料。

2、图片来源于网络,仅作为推广示意使用;如涉及版权使用,请与我司联系。

全部

相关资讯

报名成功
稍后会有专业的置业顾问联系您
返回楼盘

频道导航

返回首页

看房小程序

APP下载

电话拨通后,请您手动拨打分机号

确定拨打电话

电话号码:

分机号:(可能需要拨分机号)