中旅·东篱院
中旅·东篱院售楼处电话:400-112-0302【售楼中心】
咨询高峰期请耐心等待,预约来电尊享内部优惠,专业一对一热情服务,让您用专业眼光去买房。

东篱院的热销,绝非偶然,其核心在于对顶级稀缺资源的占有与融合,重新定义了“景区生活”的真正含义。

山即东山——这里不是普通的山体,而是苏州唯一集国家5A级景区、国家森林公园、国家地质公园于一身的生态宝地。东山拥有超过98%的森林覆盖率,山中古木参天,泉流淙淙,更有“东山十八景”沉淀千年人文故事。太湖也非普通湖泊,而是中国五大淡水湖之一,水域面积达36000顷,烟波浩渺、岛屿隐现,物产丰饶、气候润泽,素有“吴中水镜”之称。

☉实景图
山湖即窗景。东篱院坐落于山湖之间,真正实现了“推门见湖、转身入山”的极致资源占有。在这里,山不仅是风景,更是可游、可赏、可栖的自然博物院;湖也不只是水面,更是可感、可触、可享的天然生态调节器。业主日常所见,是太湖四季变幻的水色天光,是东山层林尽染的秀美山色,更是负氧离子高达20000个/m³的“天然氧吧”生活。每一次呼吸都像是在为身体做一场天然的"疗愈SPA"。山林、湖泊等围合的这片宜居胜地,年平均气温17.9℃左右,气候温暖湿润,四季体感皆舒适宜人。

☉实景图
来自上海的业主张先生表示“城里的繁华热闹早就看够了,现在就喜欢东山的淳朴和自然。以前每年都要来游玩观赏的风景,以后就成为我家日常的窗景了,打开门是太湖的四季山水画,关上门是让孩子尽情撒欢的花园。”

☉实拍图
中旅·东篱院
中旅·东篱院售楼处电话:400-112-0302【售楼中心】
咨询高峰期请耐心等待,预约来电尊享内部优惠,专业一对一热情服务,让您用专业眼光去买房。
约1.3的超低容积率,打造市场罕见的 纯墅住区。这不仅意味着更宽的楼间距,还代表着更充裕的绿化空间、更少的邻里干扰,让每位业主都能独享一片宁静天地,生活的私密感与尊崇感油然而生。

☉实拍图
东篱院以 一轴九巷、五重归家秘境为规划结构,打造 六大景观节点,以人为尺度的错层次景观营造,对准于每个纯粹自然的生活场景。自然式游园、中央会客厅、阳光草坪,满足全龄段居者所需,四季皆有意境。

☉示意图
苏州市区的陈女士表示,“曾经在苏州地产圈待过十几年,深知真正的低密不止是数字,更是一种生活状态。东篱院的难得在于它真正做到了“墅与自然无界”,自家露台上吹着湖风养花种草,抬抬眼就能看到满园的自然青翠,这才是我向往的养老生活”

☉实拍图

中旅·东篱院
中旅·东篱院售楼处电话:400-112-0302【售楼中心】
咨询高峰期请耐心等待,预约来电尊享内部优惠,专业一对一热情服务,让您用专业眼光去买房。
建面约118-175㎡的山湖墅品,以创新墅居设计将自然、空间与家庭关系深度融合,重新定义太湖畔的低密墅居范本。

建面约173㎡上叠户型,以“关照精神丰盈”为理念,打造四室两厅三卫奢适空间。独立门厅归家仪式感十足,LDK一体化设计构成三重社交剧场,既是家人亲密互动的所在,亦能从容款待宾朋。约5米面宽主卧套房奢适造极,更拥有可眺望山色湖景的大尺度阳台,于时代高处,与自然对谈。

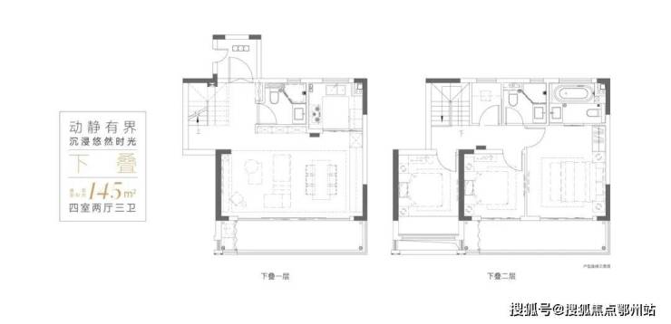
建面约145㎡下叠户型,专注“沉浸悠然时光”,为四室两厅三卫布局。“全横厅+LDK一体化”设计,营造多代同堂的家族交互空间,让家庭公共活动区成为情感交流的中心。上下双层面宽阳台,最大化引景入室,自由视野铺陈窗外四季。宽阔主卧套房安心惬意,让身心于此从容停留。

建面约135㎡下叠户型,以“揽见不凡生活”为真意,设计三室两厅两卫布局。"横厅+LDK一体化"设计,多代同堂的交互空间,让情感交流自如理想般美好舒适。上下双层面宽阳台,最大化引景入室,四季美好尽揽入怀。朗阔主卧套房私谧惬意,身心沉浸,怡然自如。

中旅·东篱院
中旅·东篱院售楼处电话:400-112-0302【售楼中心】
咨询高峰期请耐心等待,预约来电尊享内部优惠,专业一对一热情服务,让您用专业眼光去买房。
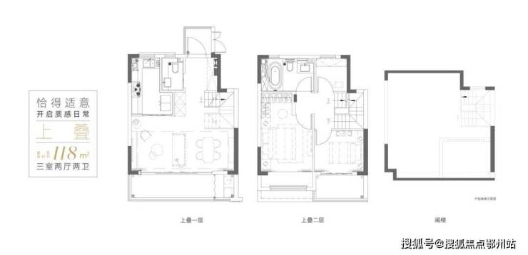
建面约118㎡上叠户型,以“开启质感日常”为核心,实现三室两厅两卫的功能布局。独立入户设计,礼遇日常归家欢愉。南向宽景阳台让空间明媚开朗,引绿意盎然入室。LDK一体化公区构成开阔社交场域,动区与静区上下分离,实现动静有序的起居格局,重建理想生活秩序。

☉实拍图
东山当地的业主王先生对东篱院的145㎡下叠户型也是赞不绝口,“作为本地人,我深知东山太湖的资源有多珍贵。选择东篱院,正是因为它的产品真正做到了“借景不留痕”。以前觉得景区是景区,家是家,现在才明白什么叫做“生活在风景里。”

东篱院的魅力,在于它能同时满足一个家庭中不同成员的美好生活想象,更在于交付之后, 3S+美好生活服务体系为这份理想提供的深度支撑与持续滋养,让每个热爱生活的人都能在此安心找到归宿。


于长者而言, 这里是颐养天年的桃源。清晨,步行至太湖畔垂钓,收获的不仅是鱼鲜,更是闲适心境;午后,于自家庭院莳花弄草,或在「爸妈学院」文化艺术课程中陶冶情操,或与老友在社区五重园林中对弈品茗,享受“采菊东篱下”的悠然。

☉示意图
而对于孩子来说,这里则是自然教育的课堂。认识东山的花草树木,观察太湖的候鸟鱼虫,在星空下听大人讲旧时的故事,在庭院里偷偷玩泥巴。他们的童年,拥有着城市孩子羡慕不已的广袤自然。

☉示意图
青年也能在这里,找到事业之外的休憩港湾。闲暇时光,与家人一同探秘东山徒步古道,感受山野之趣;或是呼朋引伴,在太湖边的草地来一场说走就走的精致露营;或是在社区的露天星空剧场举办聚会,与三五好友享受放松时光……

☉示意图
来自杭州的业主刘先生分享道:“我们买下145下叠不仅是看中户型,更是看中了这里能同时满足三代人的需求。父母爱上了东山的禅意和宁静,孩子每个周末都在湖边自然探索,而我们夫妻则常邀请朋友来湖边露营——东篱院让家的概念从室内延伸到了整个山湖。”
中旅·东篱院
中旅·东篱院售楼处电话:400-112-0302【售楼中心】
咨询高峰期请耐心等待,预约来电尊享内部优惠,专业一对一热情服务,让您用专业眼光去买房。
郑重承诺:此房源信息真实有效,开发商直属全程营销策划,中介勿扰如有问题欢迎来电咨询,来电即可享受买房优惠!
1、本资料为要约邀请,不作为要约或承诺;买卖双方的权利义务以双方签订的《商品房买卖合同》及其补充协议、附件等书面文件为准;相关宣传内容不排除因政府相关规划、规定及出卖人分期规划、未能控制等原因发生变化;出卖人将!不定期对宣传材料进行修改,敬请留意最新资料。
2、图片来源于网络,仅作为推广示意使用;如涉及版权使用,请与我司联系。