首页:上海(佘山溦沨)售楼处→在售房源户型→优惠折扣→佘山溦沨→首页→房源信息-楼盘详情-首页网站

搜狐焦点鄂州站

2025-08-18 18:22:23

购房群

买房如何避坑,加入购房群,看看他们怎么说

立即进群

佘山微风

佘山微风售楼处电话:400-112-0302【售楼中心】

咨询高峰期请耐心等待,预约来电尊享内部优惠,专业一对一热情服务,让您用专业眼光去买房。

上海·松江·佘山

【佘山微风】

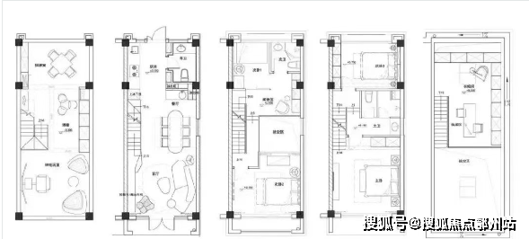
建面约92㎡商业联排别墅

地上三层 送阁楼 送地下室

实用5层 层高约12米(不含地下室)

实际使用面积约200㎡左右

附赠南北花园 总价约480万起

可两套打通 可三套打通 无承重墙

自带4.1万商业 不限购 不限贷

产品性质:商业别墅(不限购不限贷)

总户数:151户

总层高:约12米(不含地下室)

主力面积:92㎡左右(实际使用面积200㎡左右,附赠南北花园)

价格:总价约490万起

水:5.8元/顿

电:1.2元/度

煤气:3.05

物业费:未定

拿地时间:2016

竣工时间:2019

佘山微风

佘山微风售楼处电话:400-112-0302【售楼中心】

咨询高峰期请耐心等待,预约来电尊享内部优惠,专业一对一热情服务,让您用专业眼光去买房。

交房时间:2023年6月30日

停车费:未定

产权年限:40年

商业:自带4.1万㎡商业

项目户型图

样板间效果图

项目实景图

佘山微风

佘山微风售楼处电话:400-112-0302【售楼中心】

咨询高峰期请耐心等待,预约来电尊享内部优惠,专业一对一热情服务,让您用专业眼光去买房。

交通方面:三横三纵三轨 便捷立体交通,三横:沪青平公路、G50(沪渝高速)、G60(沪昆高速),快速连通上海中芯;三纵:G15(沈海高速)、嘉松南路、G1503(上海绕城高速)。

商业方面:项目自带约6万方Shopping mall,拟引进各类潮流业态,匹配塔尖高端消费需求。5km生活圈有奥莱、山姆、合生新天地等商业资源。

生态方面:有佘山森林公园、辰山植物园、广富林遗址、月湖雕塑公园等。

佘山微风

佘山微风售楼处电话:400-112-0302【售楼中心】

咨询高峰期请耐心等待,预约来电尊享内部优惠,专业一对一热情服务,让您用专业眼光去买房。

郑重承诺:此房源信息真实有效,开发商直属全程营销策划,中介勿扰如有问题欢迎来电咨询,来电即可享受买房优惠!

1、本资料为要约邀请,不作为要约或承诺;买卖双方的权利义务以双方签订的《商品房买卖合同》及其补充协议、附件等书面文件为准;相关宣传内容不排除因政府相关规划、规定及出卖人分期规划、未能控制等原因发生变化;出卖人将!不定期对宣传材料进行修改,敬请留意最新资料。

2、图片来源于网络,仅作为推广示意使用;如涉及版权使用,请与我司联系。

全部

相关资讯

报名成功
稍后会有专业的置业顾问联系您
返回楼盘

频道导航

返回首页

看房小程序

APP下载

电话拨通后,请您手动拨打分机号

确定拨打电话

电话号码:

分机号:(可能需要拨分机号)