杭州滨江区(英冠·滨悦城)2026最新价格-楼盘百科详情→24小时热线电话@滨江区(英冠·滨悦城)首页网站-售楼处→产品与价格→最新动态

搜狐焦点鄂州站

2026-02-20 23:44:00

购房群

买房如何避坑,加入购房群,看看他们怎么说

立即进群

蓝城英冠滨悦城

蓝城英冠滨悦城售楼处电话:400-112-0302【售楼中心】

咨询高峰期请耐心等待,预约来电尊享内部优惠,专业一对一热情服务,让您用专业眼光去买房。

楼盘详情

板块:滨江区政府

产品类型:300/480㎡

总价:1200~3500万

总户数:5幢104户

梯户比:两梯一户

层高:3.3/4.1m

产权性质:商业

位置:滨江区国慷街与信诚路交叉口

占地面积:约22687㎡

建筑面积:约117080㎡

层数:12-28层

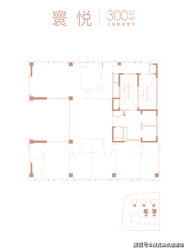
滨悦城:一层一天地|超40㎡空中私家庭院!总价1200万起国际滨300-480㎡瞻江官邸!

“上有天堂,下有苏杭。”作为浙江的省会,又被评定为特大城市和新一线城市的杭州,其经济地位不言而喻。杭州市商务局相关负责人也表示,

“掘金‘首店经济’是杭州培育建设国际消费中心城市的重要路径。”面对消费升级带来的市场新机遇,杭州将进一步落实落细首店政策,加大招引力度。

从某种角度说,买300㎡大平层就是买资源。杭州这一轮的300㎡大平层是从哪里带起来的?答案就是钱塘江边。往北一个路口,就是紧贴钱塘江的闻涛路,站在闻涛路上,

左右张望,一手复兴大桥(四桥),一手钱塘江大桥(一桥),就像是春节张贴门前的两条对联。钱塘江的江景,则成了最好的横批。

一手复兴大桥,一手钱塘江大桥

本案正踞滨江核芯,南接江南大道,一路直达钱江世纪城。毗邻钱塘江畔,步行几分钟即达滨江最美跑道。

项目定位于小而美的精品邻里中心,将满足周边地区居民家门口距离的消费需求,兼具便捷与品质服务的保证。

在 数百人的见证 以及英冠控股旗下浙江中冠物业服务有限公司、杭州英冠温德姆酒店、杭州英冠索菲特酒店的大力支持下 蓝城英冠·滨悦

城市生活美学馆 首开亮相。 随着 蓝城英冠·滨悦 城市生活美学馆的开放, 这个位于滨江核心, 建面约 300/480㎡ 天幕资产项目,终于掀开了神秘的面纱。

蓝城英冠·滨悦城实景

金镶玉灵感让建筑立面充满了珍宝般的贵气和韵味。建筑以“白色铝板镶嵌香槟金色的窗框线条”为特色,巧妙地将现代风格与传统文化相结合,将精致华美的元素融入到建筑的灵魂中。

蓝城英冠·滨悦城所在的位置,距离江岸仅约200多米。全长约7.6公里的闻涛路,是四季皆胜景的杭州最美跑道之一,因春日的浪漫樱花而惊艳,也因一江两岸的璀璨而倾城。

项目本身也精彩纷呈,它自带约1万㎡的商业,Tims咖啡、董鲜生、知味观等均已入驻,健身、桌球、美容护理、艺术空间等也都包容在内,下楼即得。

蓝城英冠·滨悦城

蓝城英冠·滨悦城售楼处电话:400-112-0302【售楼中心】

咨询高峰期请耐心等待,预约来电尊享内部优惠,专业一对一热情服务,让您用专业眼光去买房

以近5万方的商业建筑面积,涵盖人气餐饮、精品超市、女性医疗、健身会所、商务办公等等业态,

集生活休闲与商业繁盛于一体。并且,项目根据自身定位、特质、客群打造出原创专属IP小鲤鱼,其将被应用于艺术化地标打卡及周边产品开发。目前,项目计划于今年五一前开业。

蓝城英冠·滨悦城样板间的落地窗前,大江横陈,一片金光笼罩在江面上。对于想要购买豪华住宅的人来说,滨悦城绝对是一个不可错过的选择

。它不仅拥有得天独厚的地理位置和一线江景房源,还提供了丰富的配套设施和智能化系统。

蓝城英冠·滨悦城样板间实景

洞悉上流阶层的生活观与世界观,缔造难以复制的多主题会所式大堂,多功能空间设置,匹配一个阶层的荣耀。360°寰幕空间,在室内环行一周,

360°俯瞰杭州,拔地而起的高楼、稠密的街市、墨色的西湖群山尽收眼底,置身大都会中心的奇幻感,莫过于此。

自从限价后,即便最贵的住宅,也很难做到这点。滨悦城用石材用到什么程度?基本上所有公区以及卫生间,都被覆盖到了,并且用到多达8种以上名贵进口大理石。

为什么要选用不同的大理石,只因滨悦城严格遵循了“一室一系”标准,不同的空间用途,不同的装修重点,饰以不同色系的大理石,真正做到石材与环境的一统,而不是简单堆砌。

一层一席,双电梯入户

德系高端品牌:选用MIELE、Hansgrohe、Villeroy&Boch、BOSCH等精装品牌,从餐厨、卫浴、洁具,全方位定制与国际生活相融通的奢华人居。

12种进口石材:产地巴西的潘多拉、产地柬埔寨的星耀灰、产地阿曼的阿曼玫瑰......以稀有石材铺陈多重空间,造就奢居风骨。

——正滨江·豪宅轴·360°寰幕空间——

一层一户一境界沿袭世界顶尖豪宅严苛标准,原创约300/480㎡寰幕空间,约3.3-4.1米奢适层高,定义上层格局;最大约26米奢阔面宽,

以极致奢华空间,礼献当代城市贵胄。内装更是一曲精工与奢华的协奏,约1.1-1.3万元/㎡的装标,足证诚意。

滨悦城户户都有约40㎡的深U形空中花园。除了室外的景观,滨悦城还在每层都设计了花园露台,约480㎡的户型更是做到了每户配置宽约5.3米,深约8.1米的空间私家花园。

滨悦城样板房U形空中花园实景图

全屋智能系统也是滨悦城不可忽视的一部分,包括地暖、新风、中央空调、智能家居控制系统、可视对讲系统,

以及厨房全套蒸煮电器交付、全屋台柜交付等配置,让置业者的生活更加便捷、高效。

滨悦城样板房茶歇厅实景图

蓝城英冠·滨悦城

蓝城英冠·滨悦城售楼处电话:400-112-0302【售楼中心】

咨询高峰期请耐心等待,预约来电尊享内部优惠,专业一对一热情服务,让您用专业眼光去买房

其他的诸如德国顶尖家电品牌 MIELE,高端卫浴品牌 Hansgrohe、Villeroy&Boch,以及欧洲著名厨房电器品牌 BOSCH等,

都为塔尖精英提供完美的定制化与国际生活相融通的奢华人居。

此外,滨悦城还采用12种进口石材进行铺陈,这些产自巴西、柬埔寨和阿曼等地的稀有石材,让居住空间更加优雅独特。

项目由5幢12-28层的高层公馆、1幢六星级写字楼以及1幢5层商业配套组成的综合体项目,总规划户数105户。

容积率:3.5,绿地率:25%+!在售面积:300-320-480方,总价1200万起!赠送面积约40㎡空中私家花园!不限购不限贷,准现房!

滨悦城的5幢大户型公寓,总共只有104套,户型面积分为300㎡、480㎡两种,

一层一户、两梯一户的设计,全杭州难有匹敌。

蓝城英冠滨悦城

蓝城英冠滨悦城售楼处电话:400-112-0302【售楼中心】

咨询高峰期请耐心等待,预约来电尊享内部优惠,专业一对一热情服务,让您用专业眼光去买房。

郑重承诺:此房源信息真实有效,开发商直属全程营销策划,中介勿扰如有问题欢迎来电咨询,来电即可享受买房优惠!

1、本资料为要约邀请,不作为要约或承诺;买卖双方的权利义务以双方签订的《商品房买卖合同》及其补充协议、附件等书面文件为准;

相关宣传内容不排除因政府相关规划、规定及出卖人分期规划、未能控制等原因发生变化;出卖人将!不定期对宣传材料进行修改,敬请留意最新资料。

2、图片来源于网络,仅作为推广示意使用;如涉及版权使用,请与我司联系。

全部

相关资讯

报名成功
稍后会有专业的置业顾问联系您
返回楼盘

频道导航

返回首页

看房小程序

APP下载

电话拨通后,请您手动拨打分机号

确定拨打电话

电话号码:

分机号:(可能需要拨分机号)