杭州大象·国际中心
杭州大象·国际中心售楼处电话:400-112-0302【售楼中心】
咨询高峰期请耐心等待,预约来电尊享内部优惠,专业一对一热情服务,让您用专业眼光去买房。
大象国际中心
DAXIANGGUOJIZHONGXIN
杭州钱江世纪城大象国际
大象·国际中心 写字楼
钱江世纪城核心地段
地铁2号线盈丰路站C口
超高性价比一手现房写字楼
钱塘江畔,商业佳地,繁华汇聚处,大象国际,因地利而生

【项目区位】:杭州市萧山区钱江世纪城民和路
【装修情况】:精装修

【产权性质】:40年
【项目地址】:地铁2号线盈丰路站C口
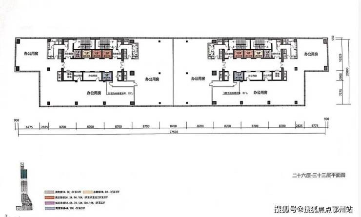
【项目信息】:地上37层,总面积92941㎡

杭州大象·国际中心
杭州大象·国际中心售楼处电话:400-112-0302【售楼中心】
咨询高峰期请耐心等待,预约来电尊享内部优惠,专业一对一热情服务,让您用专业眼光去买房。
房源情况

●【项目概况】:总建筑面积92941平米(含地下),建筑高度150米,由西班牙著名的建筑设计机构——GCA中国荷亚瑟建筑咨询事务所担纲方案设计,是未来钱江世纪城CBD内一座体现绿色生态办公理念的国际化标准高端写字楼。

富有意趣的“人”型外立面,超高五层“人”型挑空大堂,三大雅致景观空中花园,新颖的板式创新户型设计,贴心的行政酒廊和健身双会所,18台高速电梯,宽绰停车位空间配置,5A智能楼宇管理系统,完善的商务服务配套等产品特色,将充分满足新锐企业商务办公的高尚品质追求。

●【区位优势】:
距离地铁2号线盈丰路站仅100余米,地铁6号线、7号线在区域内贯穿而过
二条隧道二座大桥 庆春路隧道、青年路隧道、钱江二桥、钱江三桥无缝对接杭州主城、钱江新城,奥体中心、国际博览中心、国际会议中心、市民中心、万象城、杭州大剧院等国际级城市配套近在咫尺。
高速路网周边交通便捷,无缝对接机场快速路,经沪杭甬高速萧山出口,杭金衢高速新街出口,即可相连长三角高速路网。

【商业配套】:项目1-3楼自带商业,直线距离奥体中心、国际博览中心1000米,开车10分钟万象城、杭州大剧院等国际级城市配套近在咫尺。


杭州大象·国际中心
杭州大象·国际中心售楼处电话:400-112-0302【售楼中心】
咨询高峰期请耐心等待,预约来电尊享内部优惠,专业一对一热情服务,让您用专业眼光去买房。
郑重承诺:此房源信息真实有效,开发商直属全程营销策划,中介勿扰如有问题欢迎来电咨询,来电即可享受买房优惠!
1、本资料为要约邀请,不作为要约或承诺;买卖双方的权利义务以双方签订的《商品房买卖合同》及其补充协议、附件等书面文件为准;相关宣传内容不排除因政府相关规划、规定及出卖人分期规划、未能控制等原因发生变化;出卖人将!不定期对宣传材料进行修改,敬请留意最新资料。
2、图片来源于网络,仅作为推广示意使用;如涉及版权使用,请与我司联系。