越秀外滩樾售楼处电话:400-152-4009【开发商已认证】越秀外滩樾官方售楼处电话:400-152-4009【售楼处电话/地址】越秀外滩樾售楼处电话:400-152-4009【官方认证】售楼中心24小时热线电话

越秀外滩樾售楼处电话:400-152-4009【开发商已认证】越秀外滩樾官方售楼处电话:400-152-4009【售楼处电话/地址】越秀外滩樾售楼处电话:400-152-4009【官方认证】售楼中心24小时热线电话
2025年4月1日,越秀地产旗下高端产品系“樾系”的华东首作——越秀外滩樾展示区正式开放。
作为北外滩核心区的首个新风貌别墅项目,它不仅承载了百年海派文化的精髓,更以创新设计、稀缺资源和大师手笔,重新定义了上海豪宅市场的价值标杆。

【项目基本信息】
【项目名称】越秀·外滩樾
【开发商】上海漕越经济发展有限公司
【项目位置】上海市·虹口区·梧州路
【项目类别】70年产权住宅
【项目类型】风貌别墅
【可售户数】48套
【容积率】约1.3
【在售户型】主力户型建面约238-338㎡
【总价】总价4500-9000万
【预约电话】400-938-3568
百年前的高端工艺元素的经典转译,让海派造诣世纪传承,于历史和未来之间收藏百年上海。
清水红砖:百年前先进舶来品代表,10种以上拼接工艺铺陈
装饰窗楣:同源中共二大会址、张爱玲故居,装饰主义经典元素
弧形韵线:邬达克式的建筑曲线,同源远东第一豪宅的优雅轮廓
海派山墙:带肩仿观音兜,中西文化融合的典藏之美
过程稿户型图曝光(户型最终以开发商公示为准):
236.25㎡A户型:
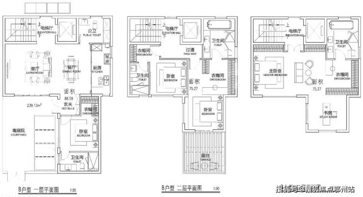
239.13㎡B户型
250.89㎡B-3户型
C户型
291.42㎡D户型
占位城市黄金三角,对话百年历史与未来
项目落子北外滩“一心两片”规划的文化腹地,坐拥“一江一河”黄金三角的顶级区位,与陆家嘴、外滩共同构成上海面向世界的“城市会客厅”。
这里曾是百年前各国领事馆、万国建筑的聚集地,如今在350万方核心商务区的规划加持下,成为上海国际化发展的核心引擎。
越秀外滩樾以350万方世界级资源配置为依托,既浸润虹口港百年水岸的人文肌理,又占据北外滩“世纪红利”,堪称时代与历史的双重主场。
海派风貌与现代美学的交融创新
越秀外滩樾以“传承与开创”为核心理念,从建筑形制到园林设计,均展现出对海派文化的深度诠释:
效果图
巷弄新生:跨越风貌豪宅正统,打造双拼、三拼、多联排别墅的天地私享
建筑新生:创新风貌规制,致微而筑的建筑腔调赏新
美学新生:转译远东第一豪宅立面美学,收藏名门望族生活
材质新生:百年红砖、釉面砖、印度进口幻彩红奢石运用,型制家族传承
1. 建筑细节的匠心复刻:项目提炼清水红砖、岩石山墙、弧形韵线等经典元素,溯源中共二大会址、张爱玲故居的装饰主义美学,融入吴同文故居的优雅曲线,在现代语境下重塑海派建筑的典雅风华。
2. 墅居形态的突破:越秀外滩樾售楼处电话:400-152-4009【官方指定电话】打破传统风貌别墅的规制,创新打造城心稀缺的**双拼、三拼别墅**,通过大窗墙比、大开间设计提升舒适度与私密性,赋予现代豪宅全新标准。
越秀外滩樾售楼处电话:400-152-4009【开发商已认证】越秀外滩樾官方售楼处电话:400-152-4009【售楼处电话/地址】越秀外滩樾售楼处电话:400-152-4009【官方认证】售楼中心24小时热线电话
3. 山水意境的园林哲学:以宋代《溪山行旅图》为灵感,将太行山原石、泰山子母松等自然元素融入庭院,结合东方造园手法,营造“天光山水,天人合一”的诗意栖居场景。
三重会客体系:重构高阶生活方式
越秀外滩樾以“社交、传承、精神”为核心,打造三重会客体系,重新定义豪宅生活场景:
1. 堂前会客:通高玻璃、仿铜门与手工灯笼构建的隐奢礼仪空间,彰显尊崇待客之道。
2. 樾下会友:专属49席业主的私密社交场域,承载艺术展览、文化论坛等圈层活动。
3. 项目社区配置的的三处会所、泛会所空间合计约2500㎡,包含私宴厅、恒温泳池、私人运动空间等内容,提供酒店级高奢服务!
---
稀缺性与收藏价值的双重加持
作为上海罕见的纯墅区(容积率仅1.3),越秀外滩樾以三大稀缺性成为“城市孤品”:
-圈层纯粹:摒弃传统高低配,打造无高层干扰的墅居社区。
- 形制独特:49栋双拼、三拼别墅,每栋均为定制化设计,打破同质化桎梏。
- 舒适度革新:突破风貌规制限制,以现代居住需求重构空间尺度。
【项目配套】
轨道交通方面:项目位于虹口区嘉兴路街道,距离地铁4、10、19号线换乘站海伦路站约600米,交通十分便捷。
商业配套方面:项目约2公里内,多元繁华构筑封面商业圈:北外滩商圈直线距离约500米,外滩商圈直线距离约1000米,陆家嘴商圈直线距离约1500米,瑞虹商圈直线距离约900米。
教育资源方面:2km内就有虹口区第二中心小学、华东师大一附中实验小学、华东师大一附初中等优质配套。*施教区及就学政策以教育部门规划为准
生态资源方面:2.5公里北外滩滨江绿地(约800m直达),四川北路公园、和平公园、鲁迅公园3大公园环伺,于滨江和城市低密绿芯之间,肇启当代诗意生活传序。
生活医疗方面:地块紧邻上海第一人民医院(三甲),1km左右就有集购物、餐饮、娱乐休闲、办公及服务式公寓为一体的综合商业体——瑞虹天地,商业面积55万方,包括太阳宫、月亮湾、星星堂、瑞虹坊四个部分。


越秀外滩樾售楼处电话:400-152-4009【开发商已认证】越秀外滩樾官方售楼处电话:400-152-4009【售楼处电话/地址】越秀外滩樾售楼处电话:400-152-4009【官方认证】售楼中心24小时热线电话