桐乡云河墅售楼处电话→营销中心电话→楼盘百科官方网站→24小时电话

搜狐焦点鄂州站

2026-01-22 19:06:18

购房群

买房如何避坑,加入购房群,看看他们怎么说

立即进群

云河墅

云河墅售楼处电话:400-112-0302【售楼中心】

咨询高峰期请耐心等待,预约来电尊享内部优惠,专业一对一热情服务,让您用专业眼光去买房。

「云河墅」

所在板块: 凤凰湖科技城板块

产品类型: 197-234㎡叠墅、202-333排屋

最低折后单价:18794元/㎡ ,面积:235.68㎡,总价4429416元

【云河墅】

【区域板块】:振东新区板块

【楼盘地址】:桐乡市金晖路99号

【占地面积】:23448㎡(约35亩)

【建筑面积】:25790㎡

【物业公司】:绿城物业

【建筑类型】:双拼、联排/叠墅

【建筑特色】:框架式结构

【产品亮点】:三开间朝南、10.15米超宽阳台、10.5米超宽客厅

【休闲配套】:凤凰湖公园、灵悟宠物公园、植物园

【商业配套】:吾悦广场,万象汇、振石商业广场(在建中)

【学区配套】:中山小学、君匋实验学校、凤凰湖幼儿园

云河墅

云河墅售楼处电话:400-112-0302【售楼中心】

咨询高峰期请耐心等待,预约来电尊享内部优惠,专业一对一热情服务,让您用专业眼光去买房。

择址|振东板块核芯住宅区

高定|私家定制&圈层定制&高定社区&高定匠工&高定品质

全维|一站式精英教育&醇熟城市配套&多维立体交通网&一线河景景观&3大生态园环绕

产品|建面约197-333㎡河景别墅

格局|总占地约35亩,总建筑面积约2.5万㎡,规划楼栋23栋,总户数102户

低密 | 约1.1低容积率,约35%高绿化率

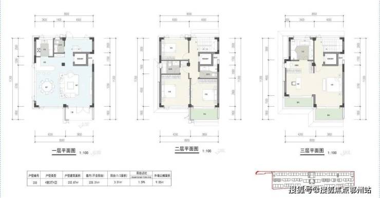
户型面积

| 排屋户型

云河墅

云河墅售楼处电话:400-112-0302【售楼中心】

咨询高峰期请耐心等待,预约来电尊享内部优惠,专业一对一热情服务,让您用专业眼光去买房。

云河墅

云河墅售楼处电话:400-112-0302【售楼中心】

咨询高峰期请耐心等待,预约来电尊享内部优惠,专业一对一热情服务,让您用专业眼光去买房。

| 叠墅户型

云河墅

云河墅售楼处电话:400-112-0302【售楼中心】

咨询高峰期请耐心等待,预约来电尊享内部优惠,专业一对一热情服务,让您用专业眼光去买房。

住宅一房一价表

(备案预售价格)

云河墅

云河墅售楼处电话:400-112-0302【售楼中心】

咨询高峰期请耐心等待,预约来电尊享内部优惠,专业一对一热情服务,让您用专业眼光去买房。

郑重承诺:此房源信息真实有效,开发商直属全程营销策划,中介勿扰如有问题欢迎来电咨询,来电即可享受买房优惠!

1、本资料为要约邀请,不作为要约或承诺;买卖双方的权利义务以双方签订的《商品房买卖合同》及其补充协议、附件等书面文件为准;相关宣传内容不排除因政府相关规划、规定及出卖人分期规划、未能控制等原因发生变化;出卖人将!不定期对宣传材料进行修改,敬请留意最新资料。

2、图片来源于网络,仅作为推广示意使用;如涉及版权使用,请与我司联系。

全部

相关资讯

报名成功
稍后会有专业的置业顾问联系您
返回楼盘

频道导航

返回首页

看房小程序

APP下载

电话拨通后,请您手动拨打分机号

确定拨打电话

电话号码:

分机号:(可能需要拨分机号)