首页:上海虹口区(越秀外滩樾·别墅)2026最新折扣-2026楼盘详情-房价-户型→配套资源@上海(越秀·外滩樾)售楼处地址-项目新动态-请看

搜狐焦点鄂州站

2026-02-23 12:52:00

购房群

买房如何避坑,加入购房群,看看他们怎么说

立即进群

越秀·外滩樾

越秀·外滩樾售楼处电话:400-112-0302【售楼中心】

咨询高峰期请耐心等待,预约来电尊享内部优惠,专业一对一热情服务,让您用专业眼光去买房。

越秀·外滩樾位于上海内环核心区域,地处由外滩、陆家嘴与北外滩构成的“黄金三角”腹地。项目匠心打造了一处覆盖238㎡-338㎡面积段、容积率仅为1.3的低密度风貌里弄住宅。

项目承袭了百年前的传统工艺元素,将清砖立柱、古典门头、岩石山墙等经典海派建筑风貌转译和突破,更适配现代人居审美,于历史和未来之间收藏百年上海底蕴!

保留历史肌理的老砖为基底,项目们以现代陶艺重译传统,研发陶砖。

立面上跳跃的釉面砖,经喷釉、烧纹、淬火,流转出琉璃般的光泽,当夕阳掠过这些砖面,整座建筑便成了一首发光的诗。

越秀·外滩樾

越秀·外滩樾售楼处电话:400-112-0302【售楼中心】

咨询高峰期请耐心等待,预约来电尊享内部优惠,专业一对一热情服务,让您用专业眼光去买房。

越秀·外滩樾

越秀·外滩樾售楼处电话:400-112-0302【售楼中心】

咨询高峰期请耐心等待,预约来电尊享内部优惠,专业一对一热情服务,让您用专业眼光去买房。

公区:首开先河的山水庭院,私密尊贵的会所

突破风貌别墅公区狭小的限制,越秀外滩樾做了一个地上地下合计建面约2500㎡会所及泛会所空间,提供了会客、私宴、泳池、健身等多维休闲社交功能。

越秀·外滩樾

越秀·外滩樾售楼处电话:400-112-0302【售楼中心】

咨询高峰期请耐心等待,预约来电尊享内部优惠,专业一对一热情服务,让您用专业眼光去买房。

越秀·外滩樾

越秀·外滩樾售楼处电话:400-112-0302【售楼中心】

咨询高峰期请耐心等待,预约来电尊享内部优惠,专业一对一热情服务,让您用专业眼光去买房。

地下一层泛会所与特别设置的艺术展廊连通,让艺术与生活完美融合;地下二层可以直达地下车库,与地下归家大堂相连通;地下三层会所主体,通过下沉庭院进行采光,错落有致的布局环绕其间,保证采光的通透和视野的幽静。恒温泳池、多功能健身区、休闲SPA区的悠然氛围,营造既独立又相互呼应的空间体验的同时提升价值感。

越秀·外滩樾

越秀·外滩樾售楼处电话:400-112-0302【售楼中心】

咨询高峰期请耐心等待,预约来电尊享内部优惠,专业一对一热情服务,让您用专业眼光去买房。

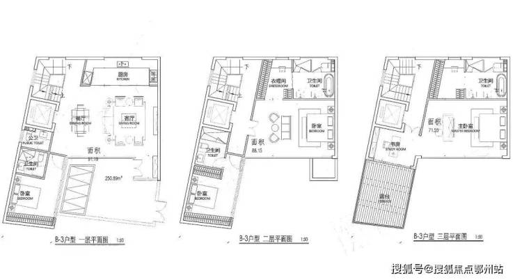
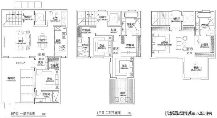
236.25㎡

239.13㎡

250.89㎡

C户型

291.42㎡

越秀·外滩樾

越秀·外滩樾售楼处电话:400-112-0302【售楼中心】

咨询高峰期请耐心等待,预约来电尊享内部优惠,专业一对一热情服务,让您用专业眼光去买房。

郑重承诺:此房源信息真实有效,开发商直属全程营销策划,中介勿扰如有问题欢迎来电咨询,来电即可享受买房优惠!

1、本资料为要约邀请,不作为要约或承诺;买卖双方的权利义务以双方签订的《商品房买卖合同》及其补充协议、附件等书面文件为准;相关宣传内容不排除因政府相关规划、规定及出卖人分期规划、未能控制等原因发生变化;出卖人将!不定期对宣传材料进行修改,敬请留意最新资料。

2、图片来源于网络,仅作为推广示意使用;如涉及版权使用,请与我司联系。

全部

相关资讯

报名成功
稍后会有专业的置业顾问联系您
返回楼盘

频道导航

返回首页

看房小程序

APP下载

电话拨通后,请您手动拨打分机号

确定拨打电话

电话号码:

分机号:(可能需要拨分机号)