无锡宜兴(安居·朗诗溪山院)2025最新优势-24小时热线→售楼部地址→房价@无锡(安居·朗诗溪山院)2025最新优势-售楼处→产品与价格

搜狐焦点鄂州站

2025-11-12 17:23:40

购房群

买房如何避坑,加入购房群,看看他们怎么说

立即进群

安居朗诗·溪山院

安居朗诗·溪山院售楼处电话:400-112-0302【售楼中心】

咨询高峰期请耐心等待,预约来电尊享内部优惠,专业一对一热情服务,让您用专业眼光去买房。

宜兴东氿梅林 溪山院现代精奢艺术中心的正式开放,现场的人流涌动已经告诉了我们答案。

国企护航+朗诗科技溪山院示范区正式开放

产品力内卷时代,各家开发商在精装标准的比拼上不遗余力。

回顾到2022年6月30日的那一场土拍,宜兴艺术家街区东侧地块被无锡安居以成交楼面价 12367.67元/㎡,总价 9.58亿成功获取。

(土拍截屏)

这里就不得不说一句: 买房选对有实力的房企很重要

无锡市安居投资发展有限公司,为无锡城建发展集团有限公司所属一级全资子公司,以"悦居处 心安然"为品牌愿景,致力无锡人居建设近40载,打造地产开发、集住房保障、住房金融、资产运营为一体的协同发展业务体系。于无锡更是打造了夹城里、桂香里、云山院等一众口碑项目。

安居朗诗·溪山院

安居朗诗·溪山院售楼处电话:400-112-0302【售楼中心】

咨询高峰期请耐心等待,预约来电尊享内部优惠,专业一对一热情服务,让您用专业眼光去买房。

不管是软件升级还是配套改善, 科技人居才是居住主流趋势。

而专注做绿色科技的朗诗,成功脱颖而出。很多房企争相和朗诗合作,目的就是为了给项目贴上绿色科技住宅标签。

(实拍图)

无锡安居,作为具有房地产开发一级资质的市属国企朗诗地产,作为擅长打造绿色科技住宅的品牌房企。双匠联袂,强强联合,在宜兴东 匠造容积率约1.2的低密墅居,归还生活居住尺度,以「 自由方舟」的硬核科技实力,营造健康与高舒适度的室内环境品质和个性化的居住体验。

本项目叠墅产品为毛坯交付,叠墅产品的自由方舟等科技系统的最终实现,需业主自行购买相关端口设备,详情请至案场咨询。买卖双方的权利义务以《商品房买卖合同》及附件等协议为准。本宣传资料于2024年5月制作。

溪山院采用的全新一代智控科技系统「自由方舟」拥有 独立知识产权,包括发明专利、实用新型专利和著作权等100+项专利

「自由方舟」以生活八大自由主张为核心,更智慧地营造健康、舒适、节能的室内人居体验。居者通过 可调节、可开关、可计量、可远程预约等控制方式自主决定生活环境品质,真正做到“因人制宜”。

令人惊喜的是,溪山院产品由「 大宅专家HWCD、崇尚精神文化追求的北斗星景观、荣获第三届日本IDPA国际先锋设计大奖的初度辰一」三大团队共同执笔。

安居朗诗·溪山院

安居朗诗·溪山院售楼处电话:400-112-0302【售楼中心】

咨询高峰期请耐心等待,预约来电尊享内部优惠,专业一对一热情服务,让您用专业眼光去买房。

在“ 极简隐奢”的美学理念中,以“ 四轴-六进-两园-九院-六巷”为基础,打造出独属于溪山院的立体先锋美感和自然多样、优雅立体的诗意岛屿。

宜兴城市级封面作品

王炸户型引爆宜兴

户型是一个房子的灵魂所在,也是居住是否适宜的硬性指标。

据了解,溪山院由 12栋8层电梯洋房32栋4层叠墅组成,容积率约为 1.2,绿地率约 30%,从这几组数据来看,以后业主的居住环境会比较舒适。

洋房为精装交付,有建面约120㎡、140㎡、180㎡三种户型。

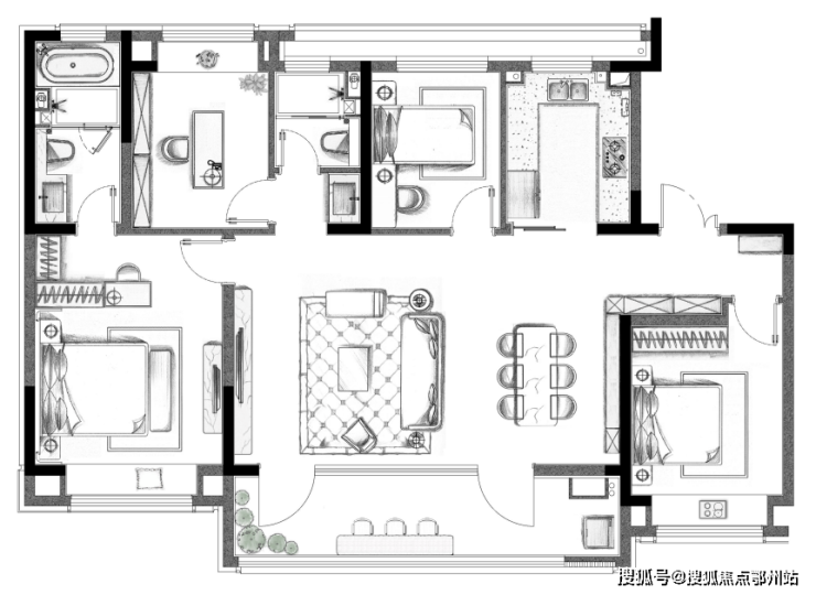
建面约120㎡户型:三室两厅两卫,大三房设计, 四开间朝南,餐客厅一体,放大居住的尺度感和舒适度,三房配置更适合精英家庭的居住生活品味。

(建面约120㎡户型图)

建面约140㎡户型:四房两厅两卫,大横厅 约7.8米配有巨幕阳台,U型厨房设计, 约3.9米面宽主卧套房,步入式衣帽间,静享从容生活。

(建面约140㎡户型图)

建面约180㎡户型:四房两厅三卫双套房5开间朝南,全明采光,写意自然生活雅趣。 约7.7*10.3米L型瞰湖景巨幕阳台,南向双套房主卧,整体户型格局方正,南北通透。

(建面约180㎡户型图)

安居朗诗·溪山院

安居朗诗·溪山院售楼处电话:400-112-0302【售楼中心】

咨询高峰期请耐心等待,预约来电尊享内部优惠,专业一对一热情服务,让您用专业眼光去买房。

叠墅为毛坯交付,下叠建面约209㎡,上叠建面约189㎡。一处庭院,一方露台,“拥湖而居,与山为邻”。

安居朗诗·溪山院

安居朗诗·溪山院售楼处电话:400-112-0302【售楼中心】

咨询高峰期请耐心等待,预约来电尊享内部优惠,专业一对一热情服务,让您用专业眼光去买房。

好的建筑,除了妥善表达居住者的需求,更应该延伸家庭和社交,丰富愉悦的人生。

选择一个品质房子, 无形中就选择了某种圈层,而圈层价值是房子的关键附加值所在

溪山院匹配品质人群的需求,打造了高定会所,有 桌球室、儿童活动室、健身室、棋牌室、私宴厅等多场景生活空间,满足全年龄段家人生活的空间需求。

让邻里更有温度和人情的同时也聚合了高净值人群,实现品质圈子的相互链接,放大了社交的价值。

城市发展的潜力板块

面氿而居的人居高地

买房选对板块真的很重要,因为我们大多数人是没有试错成本的。

从教育环境来讲,从 幼儿园到小学、初中、高中等,板块拥有着丰富且优秀的教育资源。

从地段来讲,溪山院项目北临东氿湖胜境,南倚龙背山灵脉,是宜兴重点打造的板块。 万达、八佰伴、科技馆、保利大剧院、图书馆、宜兴市中医医院等都在周边环绕。

不管是地段还是科技住宅的定位,都是时代风口下的新宠

试想一下,在家有科技系统,出门有自然资源,这才是健康、舒适的生活场景。

(实拍图)

市场缺的不是房子,而是好房子。而房子好不好? 判断标准很简单,走进它,感受它!

安居朗诗·溪山院

安居朗诗·溪山院售楼处电话:400-112-0302【售楼中心】

咨询高峰期请耐心等待,预约来电尊享内部优惠,专业一对一热情服务,让您用专业眼光去买房。

郑重承诺:此房源信息真实有效,开发商直属全程营销策划,中介勿扰如有问题欢迎来电咨询,来电即可享受买房优惠!

1、本资料为要约邀请,不作为要约或承诺;买卖双方的权利义务以双方签订的《商品房买卖合同》及其补充协议、附件等书面文件为准;相关宣传内容不排除因政府相关规划、规定及出卖人分期规划、未能控制等原因发生变化;出卖人将!不定期对宣传材料进行修改,敬请留意最新资料。

2、图片来源于网络,仅作为推广示意使用;如涉及版权使用,请与我司联系。

全部

相关资讯

报名成功
稍后会有专业的置业顾问联系您
返回楼盘

频道导航

返回首页

看房小程序

APP下载

电话拨通后,请您手动拨打分机号

确定拨打电话

电话号码:

分机号:(可能需要拨分机号)