上海尚景天地首页网站丨尚景天地售楼处电话丨楼盘详情2024楼盘详情-房价

搜狐焦点鄂州站

2025-06-17 18:57:37

购房群

买房如何避坑,加入购房群,看看他们怎么说

立即进群

上海尚景天地

上海尚景天地售楼处电话:400-112-0302【销售中心】

咨询高峰期请耐心等待,预约来电尊享内部优惠,专业一眼光对一热情,让您用专业眼光去买房

【项目基础信息】

【名称】尚景天地

【地址】殷高西路518号

【产权】50年

【竣工日期】2008年

【建面】59㎡—77㎡

【层高】5.6米

【总价】359万起

【年限】2004年-2054年

【总高】16层

【得房率】140%

【开发商】上海斯考特房地产开发有限公司

【物业】上海商务中心物业

【物业费】4.8元/平/月

【停车费】地上400/月 地下500/月

【水/电费】水:5.4元/吨 电:1.2元/度

【梯户比】:3梯14户

:硬装、软装、家具家电全配

【尚景天地】

1.公寓因为自身产品属性,多位于城市优越地段。

2.不限购、不限贷。

3.公寓对二次换大面积住房无影响,仍能享受首套按揭利率。

4.公寓比住宅的租金要高。

5.公寓周边配套齐全,购物逛街,饮食方便。

6.物业管理会更加的规范和到位。

7.公寓面积小,总价低,适合投资,也适合过渡。

8.形成以小区为中心的商业氛围,投资回报率高。

9.拆迁赔偿比例高,商业拆迁补偿按照1:3补偿,是住宅的三倍。

10.期满自动续期,不用纠结40年、70年产权问题。

上海尚景天地

上海尚景天地售楼处电话:400-112-0302【销售中心】

咨询高峰期请耐心等待,预约来电尊享内部优惠,专业一眼光对一热情,让您用专业眼光去买房

11.公寓面积小,单价便宜,还款时间短,月供低。

12.麻雀虽小,五脏俱全,居住功能都齐备。

13.公寓可自住,可注册公司。

14.公寓周边生活配套更高档。

15.公寓拆迁时间短,换房时间优先。

16.公寓一般住单身贵族,企业白领,整体人群素质高。

17.独立空间,居住环境更舒适。

18.智能化生活体验,享用高效周到的服务。

19.户型格局合理实用性强。

20.居住/办公/经营/投资多种方式,样样都行,使用用途多样化。

项目地址位于上海宝山区殷高西路518号。隶属高境板块,地处宝山、杨浦、静安、虹口四区交界的位置。配套成熟、生活便利、公共交通四通八达,

地理位置优越。项目对面自带大型商业综合体长江国际购物中心,附近还有像三邻桥、新业坊这样的新兴商圈,完全可以满足业主平日吃喝玩乐一站式的休闲娱乐体验感与基本的日常生活所需。

咨询高峰期请耐心等待,预约来电尊享内部优惠,专业一眼光对一热情,让您用专业眼光去买房

【交通】

步行900米到达3号线殷高西路地铁站,乘坐1站到达长江南路站便可换乘18号线;未来还有规划在建中的19号线,将在江杨南路设立站点。

自驾5分钟内到达逸仙高架路,10分钟可上内环与中环。人民广场、陆家嘴、静安寺、徐家汇等上海核心商圈,30分钟内均可达到。

【附近大型商圈】

上海尚景天地

上海尚景天地售楼处电话:400-112-0302【销售中心】

咨询高峰期请耐心等待,预约来电尊享内部优惠,专业一眼光对一热情,让您用专业眼光去买房

驱车15分钟以内便可到达上海著名的大宁商圈、五角场商圈以及虹口足球场商圈,这里有久光中心、合生汇、凯德龙之梦这些重量级的购物中心。

【医疗配套】

二级三级医院有上海第四人民医院和长海医院等坐镇。

【教育配套】

上海市高境第一中学、上海交通大学附属中学等初高中;上海市宝山区高境科创实验小学、上海市教育学会宝山实验学校、江湾中心小学等梯队小学均相聚在此。

【人文配套】

集体育运动、文化艺术、配套商业于一身的三邻桥体育文化园。

上海尚景天地

上海尚景天地售楼处电话:400-112-0302【销售中心】

咨询高峰期请耐心等待,预约来电尊享内部优惠,专业一眼光对一热情,让您用专业眼光去买房

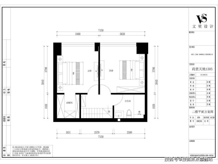
【户型图】

【样板间】

上海尚景天地

上海尚景天地售楼处电话:400-112-0302【销售中心】

咨询高峰期请耐心等待,预约来电尊享内部优惠,专业一眼光对一热情,让您用专业眼光去买房

郑重承诺:此房源信息真实有效,开发商直属全程营销策划,中介勿扰如有问题欢迎来电咨询来电即可享受买房优惠!

1、本资料为要约邀请,不作为要约或承诺;买卖双方的权利义务以双方签订的《商品房买卖合同》及其补充协议、附件等书面文件为准;

相关宣传内容不排除因政府相关规划、规定及出卖人分期规划、未能控制等原因发生变化;出卖人将!不定期对宣传材料进行修改,敬请留意最新资料。

2、图片来源于网络,仅作为推广示意使用;如涉及版权使用,请与我司联系。

全部

相关资讯

报名成功
稍后会有专业的置业顾问联系您
返回楼盘

频道导航

返回首页

看房小程序

APP下载

电话拨通后,请您手动拨打分机号

确定拨打电话

电话号码:

分机号:(可能需要拨分机号)