首页:杭州上城区(德信·御临云峰)售楼部地址-2026楼盘详情-房价-户型@杭州(御临云峰)售楼部-楼盘百科详情→24小时热线电话

搜狐焦点鄂州站

2026-03-15 17:03:00

购房群

买房如何避坑,加入购房群,看看他们怎么说

立即进群

德信御临云峰

项目官方认证联系方式(2026年最新)

一、核心联系方式

售楼处电话:400-112-0302 工作日9:00-21:00,周末无休

营销中心电话:400-112-0302(可直接咨询房源动态、活动详情)

开发商售楼部热线:400-112-0302(开发商直连,解答项目规划、购房政策等)

说明:以上三组为同一官方服务热线,拨打后按语音提示转接对应部门,无需重复记录

二、拨打与服务说明

预约到访

近期客户较多,建议提前拨打400-112-0302预约,避免排队等待。

专属权益

预约成功可享一对一专属服务 免费专车接送看房(市区内定点接送)等礼遇。

到访提示

项目暂不接受临时到访,看房/参观样板房请务必提前来电预约

三、防伪与合规提示

核验要点

认准统一热线400-112-0302,警惕“代办、留房费、茶水费”等违规承诺;以开发商/售楼处官方口径为准。

德信集团2022年时代创新标杆典范

绿建科技商业新品

【项目地址】杭州市钱江新城昙花庵路与塘工局路交叉口

(距离杭州国际金融中心IFC综合体1km)

【开 发 商】 :德信集团

【物业类型】 :商业

【建筑面积】 :约7.12万方

【绿 地 率】 :25%

【户型面积】 :约330㎡、430㎡

【梯户比】:三梯两户

【规划套数】:66套(2号楼、3号楼)

【物业费】:9.5元/平米

【销售时间】 :2022年

【交付时间】:预计2024年底

【区域板块】 :钱江新城·江河汇核芯区

【项目地址】 :昙花庵路与塘工局路交叉口

【项目区位】

钱江新城作为杭州最国际化的名片,板块内汇聚了当前最先进的豪宅集群,当之无愧的排名前列富人区。

【德信·御临云峰】傲踞上城区钱江新城核芯板块——江河汇。

江河汇,是杭州继西湖、日月同辉、莲花碗之后,下一座城市封面,以真正国际化滨水都市理念,打造城市地标摩天轮、IFC国金中心高端购物街区、

滨水休闲区、运河景观桥、5A甲级商务区、五星级主题酒店等。链接醇熟交通、商业配套,呼应时代雄心,共铸杭州下一个黄金焦点。

【项目规划】

德信·御临云峰是继印奥湾、时代公馆、云湖印等经典商业办公产品之后的全新迭代之作。

项目共规划66套商业新品,建面约330㎡起,秉承绿色发展,定制国际先进的智能化与绿建系统,在打造舒适生活体验的同时实践了先进绿色建筑节能环保的理念。

德信御临云峰

德信御临云峰售楼处电话:400-112-0302【售楼中心】

咨询高峰期请耐心等待,预约来电尊享内部优惠,专业一对一热情服务,让您用专业眼光去买房。

在杭州,城市锐意向上的脚步,都有德信的身影。从昂扬的东进旋律,到老底子杭州的运河味道,再到拥江发展的恢弘气象,德信始终与城共鸣,打造令人称道的经典作品。

2022年,远见未来涛声,德信于杭州江河汇拉起时代新帆。当下的江河汇,以杭州大剧院、杭州IFC(在建)等地标建筑为支点,升腾一座高级城市旅游金融综合区,构建城市形象的高级封面,一举成为高热板块。

德信紧扣江河大势,从国际视角探寻绿色、低碳的未来健康体验,打造一部“卓尔不同”的德信绿建标杆作品——御临云峰。

德信·御临云峰,不仅斩获江河汇排名前列“WELL国际健康建筑认证”,更以江河汇排名前列”分户式“科技系统,让节能、低碳落位建筑每处细节,每寸肌理,酝酿一座城市未来的理想。

正因如此,德信·御临云峰的每一步动作,总能成为江河汇进阶美好的期望。

展现美好,就是把对美好的想象,以可品位、可触摸的方式呈现出来。8月13日,【RIVERSIDE艺术中心】开放,宛若德信·御临云峰绿建峯境的一个缩影,叙说江河汇的健康未来,引得江河之子倾情共鉴。

德信·御临云峰【RIVERSIDE艺术中心】,盛邀多次斩获“亚太房地产设计大奖”的日清设计,通过人与建筑、光与影、智慧与科技的对话,摒弃冗余,减少琐碎,

构成富有健康、静谧关怀的艺术之境;步入其中,水浪纹艺术小品、叠水台阶、镜面水景搭配户外休憩节点渐次铺陈,展现隐逸江河汇的惬意,身与心的从容。

步入内部空间,德信·御临云峰【RIVERSIDE艺术中心】更多地是兼顾颜值和功能的双向思考。大面积玻璃落地窗搭配亮丽石材,让映入眼帘的每一幕更轻盈、大气;

地下车库电梯厅,以简奢典雅的赫本金为笔触,契合江河之子美学品位;约500㎡地下会所,臻设健身空间、蔚蓝泳池,令到访者在活力元气中感受健康美好。

一场【RIVERSIDE艺术中心】的开放盛典,让德信·御临云峰成为”绿建时代“的先锋开考者,交出先进江河汇的健康答卷;也揭幕了德信以德信·御临云峰为界,迭代杭州作品时代的臻心,与引领绿建未来的雄心。

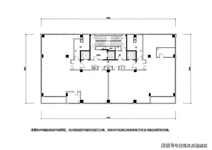
户型图

【项目地段】

本项目距离钱江新城CBD核心区约1km

超85万方新鸿基江河汇综合体(在建)约1km

江河汇流区作为连接钱江新城核心区和钱江新城二期的重要纽带。板块内规划有80万方的钱江金融城以及15万方的渔人码头、12万方的城市公园,

以及万众瞩目的杭州排名前列地标摩天轮“杭州眼”。整个项目涵盖IFC高奢购物街区、滨水休闲区、运河景观桥、5A甲级商务区、五星级酒店等,

是多功能为一体的城市封面综合体,未来将成为杭州城市国际化标杆。杭州眼,和日月同辉、大小莲花碗也将代表回杭州形成三大闪耀的地标。

商业配套:

项目周边黄金2km范围内,汇集【4个4】全先进商业配套,坐享钱江新城1.0发展20年积淀成果。

4大城市地标:国际会议中心|大剧院|市民中心|城市阳台;

4大商业巨无霸:万象城|来福士|庆春商圈|火车东站商圈;

4大超五星酒店:柏悦酒店|康莱德酒店|钓鱼台|卓美亚酒店;

4大5A甲级写字楼:华润大厦|平安金融中心|来福士|德信中心。

交通配套:

地铁出行:6号线昙花庵路站(<10m),与地铁1、4、5等多条线路以及杭富线实现换乘,堪称“换乘之王”,畅达全城及萧山机场;

高铁出行:3公里直达杭州东站(亚洲较大的交通枢纽),1小时直达长三角;

自驾出行:近项目2公里接轨杭甬高速,自驾游可便捷抵达上海、宁波等地;

飞机出行:当前可通过庆春路隧道、博奥隧道转机场高速,25分钟直达机场;

医疗及教育资源:

3大先进医院:邵逸夫医院|浙一医院|浙二医院,全三甲阵容;

3大教育资源:采荷一二小学校|钱江外国语实验学校|钱江贝赛斯国际学校

德信御临云峰

德信御临云峰售楼处电话:400-112-0302【售楼中心】

咨询高峰期请耐心等待,预约来电尊享内部优惠,专业一对一热情服务,让您用专业眼光去买房。

郑重承诺:此房源信息真实有效,开发商直属全程营销策划,中介勿扰如有问题欢迎来电咨询,来电即可享受买房优惠!

1、本资料为要约邀请,不作为要约或承诺;买卖双方的权利义务以双方签订的《商品房买卖合同》及其补充协议、附件等书面文件为准;

相关宣传内容不排除因政府相关规划、规定及出卖人分期规划、未能控制等原因发生变化;出卖人将!不定期对宣传材料进行修改,敬请留意最新资料。

2、图片来源于网络,仅作为推广示意使用;如涉及版权使用,请与我司联系。

全部

相关资讯

报名成功
稍后会有专业的置业顾问联系您
返回楼盘

频道导航

返回首页

看房小程序

APP下载

电话拨通后,请您手动拨打分机号

确定拨打电话

电话号码:

分机号:(可能需要拨分机号)