长沙(新长海玖龙台)售楼处地址-房价_房型图_户型图-(新长海玖龙台)楼盘百科-24小时热线→售楼部地址→户型→项目亮点

搜狐焦点鄂州站

2025-09-26 12:27:11

购房群

买房如何避坑,加入购房群,看看他们怎么说

立即进群

新长海·玖龙台

新长海·玖龙台售楼处电话:400-112-0302【售楼中心】

咨询高峰期请耐心等待,预约来电尊享内部优惠,专业一对一热情服务,让您用专业眼光去买房。

每个人心中大概都有这样一个别墅梦——有天有地有院子,清晨在花圃采一束带着露水的鲜花摆在客厅,夕阳下站在屋顶露台,沐着晚风喝茶…

然而,近年来随着城市土地资源日益紧张,“禁墅令”等政策不断加码严控,市场上低密类别墅越来越少。而别墅向来占据得天独厚的区位,自然、配套、圈层等无不高定,既是身份与资产的双重加持,更是顶级生活的享受。对于有着极致品质追求的层峰人士,墅居梦要何去何从?

在浏阳,实现墅居梦的机会来了!新长海·九龙台应市而来,依托7万㎡原生山湖,敬献有天有地的自然墅居。

稀缺区位

双城核芯,远见发展势能

项目坐落于长沙东城新门户,融城桥头堡,毗邻空港自贸经济区,项目交通四纵六横,15分钟即可抵达黄花国际机场,30分钟链接浏阳与长沙中心城区。未来浏阳接轨国际的核心之所在。区域可谓身负众望,发展势能、置业热度直线飙升。

稀缺资源

原生山湖,收藏天然氧吧

在所有的产品要素中,稀缺的生态资源为墅居最重要的王牌之一,TA赋予了人居不可估量的收藏价值。新长海·九龙台,2万方壮阔湖景,紧邻约5万方半山缓坡原生山体,山体森态翠屏,原生态的山水营造出一座天然氧吧,价值可以想象。

稀缺户型

200%实得面积,生活墅境尺度

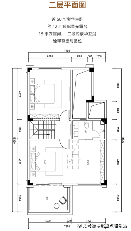
新长海·九龙台山湖叠墅,主力面积约174-177㎡,不同于其他项目,户型设计上有着诸多的优势,7.2m的奢阔面宽,大气的局部挑空设计,以及大量的可拓展空间,实际使用率高达近500㎡。拾一款赠送面积大, 有天有地有露台,专精英打造的传世大宅, 给 予层峰超脱居宅之 外的身份象征。

新长海·玖龙台

新长海·玖龙台售楼处电话:400-112-0302【售楼中心】

咨询高峰期请耐心等待,预约来电尊享内部优惠,专业一对一热情服务,让您用专业眼光去买房。

艺境淬炼的沉浸式下叠,私家入户庭院+多功能地下室的空间延伸;地上空间颐养起居,地下空间怡养性情,四季与爱好在此交汇;拥有超大星空露台的上叠,演绎上层墅境人生,尽揽周围盛景,打破建筑与自然的阻隔,实现非凡的峰境体验。

越是稀缺,越是炙手可热,新长海·九龙台,聚焦城市高阶圈层居住理想,演绎一个时代的尊崇与高雅。新长海·九龙台深研品质人居,匠造揽山临湖而居的经典之作,成为价值增长的永恒资产,建面约174-177㎡湖山叠墅,首付28万起,让稀缺只为少数人拥有。

新长海·玖龙台

新长海·玖龙台售楼处电话:400-112-0302【售楼中心】

咨询高峰期请耐心等待,预约来电尊享内部优惠,专业一对一热情服务,让您用专业眼光去买房。

新长海·玖龙台

新长海·玖龙台售楼处电话:400-112-0302【售楼中心】

咨询高峰期请耐心等待,预约来电尊享内部优惠,专业一对一热情服务,让您用专业眼光去买房。

新长海·玖龙台

新长海·玖龙台售楼处电话:400-112-0302【售楼中心】

咨询高峰期请耐心等待,预约来电尊享内部优惠,专业一对一热情服务,让您用专业眼光去买房。

郑重承诺:此房源信息真实有效,开发商直属全程营销策划,中介勿扰如有问题欢迎来电咨询,来电即可享受买房优惠!

1、本资料为要约邀请,不作为要约或承诺;买卖双方的权利义务以双方签订的《商品房买卖合同》及其补充协议、附件等书面文件为准;相关宣传内容不排除因政府相关规划、规定及出卖人分期规划、未能控制等原因发生变化;出卖人将!不定期对宣传材料进行修改,敬请留意最新资料。

2、图片来源于网络,仅作为推广示意使用;如涉及版权使用,请与我司联系。

全部

相关资讯

报名成功
稍后会有专业的置业顾问联系您
返回楼盘

频道导航

返回首页

看房小程序

APP下载

电话拨通后,请您手动拨打分机号

确定拨打电话

电话号码:

分机号:(可能需要拨分机号)