上海静安(静安·紫苑)2025最新房源-2025楼盘详情-房价-户型-配套-上海(静安·紫苑)售楼部电话-房价-户型-容积率-售楼处→区位交通

搜狐焦点鄂州站

2025-08-22 14:36:55

购房群

买房如何避坑,加入购房群,看看他们怎么说

立即进群

上海市静安区【静安紫苑】

咨询高峰期请耐心等待,看房需提前预约!

静安紫苑售楼处电话:400-112-0302【售楼中心】(欢迎来电咨询内部底价)

地段简介

静安区属于上海市中心城区的核心区域,静安区也是目前上海发展最好的区域,

无论是商圈的定位还是五星级酒店的数量,都是上海市最高端的。本案位置属于上

海市中心核心地段-老静安,而且在老上海人眼里老静安南区更是核心地段中的佼佼者!

在售信息

板块区位:静安区南京西路商圈

产权:50年(2003年—2053年)

总高:29层

在售建面:96~108~152平

总价:820-1180万

梯户比:2梯3户

上海市静安区【静安紫苑】

咨询高峰期请耐心等待,看房需提前预约!

静安紫苑售楼处电话:400-112-0302【售楼中心】(欢迎来电咨询内部底价)

拿地时间:2003年

竣工时间:2009年

物业公司:金晨物业

水费:5.99元

电费: 0.71元

物业费:8元

停车:临停15元/小时 、封顶120元/天,月租1000元/月

市场租金:2房20000元、3房25000元

周边配套

交通配套

地铁:2号线南京西路站(1号口)约1KM,12号线南京西路站(2号口)

约1.1KM,13号线自然博物馆站(2号口)约1.1KM,1号线汉中路站(10号口)约1.2KM

自驾:自驾距南北高架入口约1KM,距延安路高架1.4KM

公交:多条公交线路,四通八达

商业配套

静安紫苑 售楼处电话:400-112-0302【营销中心】隶属上海最高端的商

圈-南京西路商圈,距离全中国最高端的商场-恒隆广场仅700米周边还有中信泰富、梅龙镇广场等,可谓是吃喝游娱购一应俱全

距离静安寺商圈约1.5公里、淮海路商圈约2公里、南京东路商圈约2公里、人民广场商圈约3公里,商圈环绕,繁华尽享商业配套

医疗配套

静安区中心医院(三级乙等)约529米,长征医院(三级甲等)约1.3公里。

还有两所专科医院,上海市眼病防治中心(约700米),上海中佑肛肠医院(约600米)。另外华山医院和瑞金医院两所综合性三甲医院距离本案3公里

生活配套

联华超市196米,全家200米,康定菜市场637米,昌化菜市场756米

生态资源

西康公园500米,蝴蝶湾花园570米,上海玫瑰花园810米,静安雕塑公园960米

项目优势

项目位于内环内-静安区南京路板块,区域价值高

拥有南京西路商圈、静安寺商圈、淮海中路商圈,人民广场商圈

四条轨交环绕,自驾1公里即是南北高架入口,交通四通八达

上海市静安区【静安紫苑】

咨询高峰期请耐心等待,看房需提前预约!

静安紫苑售楼处电话:400-112-0302【售楼中心】(欢迎来电咨询内部底价)

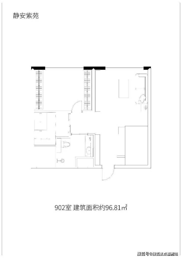
户型图

上海市静安区【静安紫苑】

咨询高峰期请耐心等待,看房需提前预约!

静安紫苑售楼处电话:400-112-0302【售楼中心】(欢迎来电咨询内部底价)

样板图片

上海市静安区【静安紫苑】

咨询高峰期请耐心等待,看房需提前预约!

静安紫苑售楼处电话:400-112-0302【售楼中心】(欢迎来电咨询内部底价)

郑重承诺:此房源信息真实有效,开发商直属全程营销策划,中介勿扰如有问题欢迎来电咨询,来电即可享受买房优惠!预约来电尊享内部优惠,专业一对一热情服务,让您用专业眼光去买房。

1、本资料为要约邀请,不作为要约或承诺;买卖双方的权利义务以双方签订的《商品房买卖合同》及其补充协议、附件等书面文件为准;

相关宣传内容不排除因政府相关规划、规定及出卖人分期规划、未能控制等原因发生变化;出卖人将不定期对宣传材料进行修改,敬请留意最新资料。

2、图片来源于网络,仅作为推广示意使用;如涉及版权使用,请与我司联系。

全部

相关资讯

报名成功
稍后会有专业的置业顾问联系您
返回楼盘

频道导航

返回首页

看房小程序

APP下载

电话拨通后,请您手动拨打分机号

确定拨打电话

电话号码:

分机号:(可能需要拨分机号)