杭州上城(融信中心)2025最新优惠-电话、位置、配套、环境-上城(融信中心)售楼处地址-2025楼盘详情-房价-户型→配套资源

搜狐焦点鄂州站

2025-11-17 14:18:23

购房群

买房如何避坑,加入购房群,看看他们怎么说

立即进群

杭州上城【融信中心】

售楼处电话:400-112-0302【贵宾热线】

看房可提前预约,如有问题欢迎来电咨询!一对一为您热情服务,让您用专业的眼光去买房。

面积300-1200平方米

均价2.4万至3万左右

总价750万起

毛坯交付

PART

项目简介

年两回的交付高峰期,在今年也没有例外,从江南岸到城西,从200万级到1000万级,2020年的「年中秀」大幕已经拉开。

这一届的「豪宅代表团」来自申花——首开杭州金茂府前脚刚交付,融信公馆·ARC马上就接上了。再过三天,ARC会迎来它的高层业主。

和杭州此前的楼盘都不一样,这一次,融信公馆·ARC交出了一份极具风格性的答卷。

先看一眼整体「定妆照」——

弧线、撞色、高明度——ARC的风格非常突出,把这些元素搭配在一起的外立面,是杭州此前从未出现过的住宅风格。

用融信的话来说,「豪宅,不一定要棱角分明、轴线对称」,ARC就是一个将「弧线美学」进行到底的楼盘。

事实上,楼盘的案名后缀——ARC,本身就是弧线的英文释义。

再仔细看一眼它的外立面——

大面白色铝板的墙体都做了弧形转角,整体建筑因此有了不一样的表情;窗户也一样,全都化角为弧。整合在一起,多了一种流线质感。

这样的弧线美学,不止于外立面,从小区入口处开始,每一步都可以相遇——

☝融信公馆·ARC人行西入口

这是ARC的人行西入口,一个向外挑出的弧线铝板,形态宛若一艘超级游艇的舱门。

融信说,ARC的设计灵感就来自于超级游艇的形象:甲板、舱门、海洋等元素,充满了整个小区。 这些元素,又和弧线彼此呼应。

杭州上城【融信中心】

售楼处电话:400-112-0302【贵宾热线】

看房可提前预约,如有问题欢迎来电咨询!一对一为您热情服务,让您用专业的眼光去买房。

区域价值

○融信中心效果图

而作为最靠近钱江新城1.0且唯一可供完整片开发的土地,钱江新城2.0已然成为城市的风口。同时,面对钱江新城1.0区域内写字楼单价动辄5万/㎡起的高价,

融信中心以约六折价格即可享受同量级配套。地铁4号线上盖,2站即达钱江新城核芯区,直线距离约2.5公里范围内拥揽市民中心、万象城、来福士广场及江河汇综合体(在建)等丰沛资源。

此外, 融信中心2站地铁直达亚洲最大的交通枢纽之一杭州东站,更直线距离约2.5公里幸会江河汇璀璨崛起。依托钱塘江、

大运河两大世界级水体及其汇流处打造的综合体航母江河汇城市综合体 (在建) 、世界级摩天轮等地标及其都市豪宅区,一同构筑江河汇板块矗立时代的风口浪尖。

○杭州东站效果图 伫立钱江新城2.0,同时近揽钱江新城、江河汇流区块,融信中心蕴含着巨大潜能。 而此刻,作为城市能级迭升前的价格洼地,

入手融信中心正是远见之举。根据克而瑞最近数据, 融信中心所在的商务区空置率在杭州所有商务区中位列最低,约为10.5%。且融信中心近处写字楼稀少,周边办公几乎满租。旺盛的写字楼需求,为后续持有租赁提供了充足的保障。

为此,融信中心将成为分享城市发展红利的优质之选。融信中心城市会客厅现已开放,期待与你共赴未来。

项目信息

【项目名称】:融信中心艮新融信大厦)

【区域板块】:杭州钱江新城

【项目地址】:杭州上城区艮山西路与新塘路交叉口,地铁4号线新塘路站

【建筑规划】:商务办公写字楼(1幢20层主楼+1幢5层辅楼)+1F商铺

【项目户数】:商办写字楼88套+商铺25套

【产权性质】:40年

【户型面积】:商铺面积30-80㎡

商办面积300-1200㎡

【拿地时间】2020年9月

【预计价格】:2.3-3万

【容积率】:3.5

【车位】:336 可售80个,其他机械车位

负一层报价35-40万 负二层30-35万

【层高】:3.6米 大堂6.8米

【得房率】:主楼73% 裙楼76%

【电梯】:主楼4+2 裙楼2+1

【开发商】:融信集团

【物业】:融信物业

【交通】:艮山西路/新塘路

PART

项目配套

【交通】:艮山西路/新塘路

【地铁】:4号线新塘路站(地铁上盖)

2站即达杭州火车东站

项目优势

【区域核心】融信中心落子杭州钱新2.0,连接钱江新城、武林、城东三大核心CBD,区域世界500强名企云集,一流商务环境,打造城市商业新地标。

【多维配套】

项目自带千余方体量商业

项目对面保利中心约1.4万方商业(含餐椅娱乐美容健身服务等)

庆春商圈(南向1.5KM):

天虹购物中心、庆春银泰、杭州大厦501

钱江新城核心区&江河汇(南向2.5KM):

市民中心、万象城、来福士、洲际酒店、江河汇城市综合体(在建)

东站商圈(北向1.5KM):

杭州东站、港龙城(在建)、东站万象汇

武林商圈(西向4KM):

杭州大厦、西湖文化广场、银泰百货

【地铁上盖】地铁4号线上盖,仅2站直达杭州东站&钱江新城核心区,3站万象城。无缝换乘地铁1号线、2号线、5号线,出则繁华通畅,

抢占城市价值制高点。地上一纵一横连接新塘路、艮山西路两大城市中轴,无缝对接庆春隧道,通达一江两岸;更借艮秋立交与机场高速,迅捷往返萧山国际机场,通达全国。

【总部大楼】融信浙江首座总部办公大楼,精研甲级写字楼商务需求,打造符合精英人群的智慧办公空间。

外立面:银灰色铝板+LOW-E中空玻璃

景观:彩虹装置 +屋顶花园+活力广场

智慧服务:视频监控、入侵报警、访客集成等智能化安防系统?

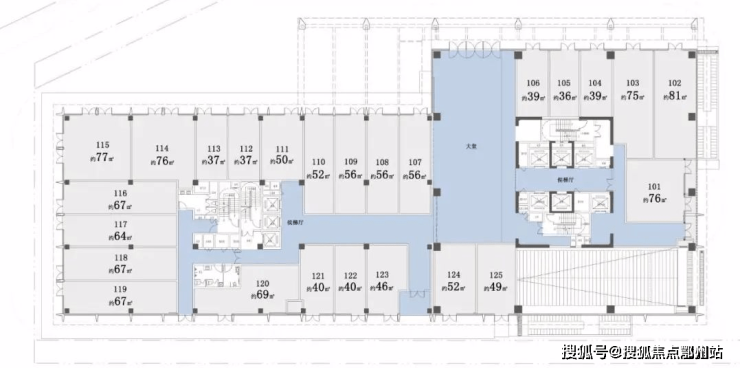
05

PART

项目户型图鉴赏

杭州上城【融信中心】

售楼处电话:400-112-0302【贵宾热线】

看房可提前预约,如有问题欢迎来电咨询!一对一为您热情服务,让您用专业的眼光去买房。

杭州上城【融信中心】

售楼处电话:400-112-0302【贵宾热线】

看房可提前预约,如有问题欢迎来电咨询!一对一为您热情服务,让您用专业的眼光去买房。

郑重承诺:此房源信息真实有效,开发商直属全程营销策划,中介勿扰如有问题欢迎来电咨询,来电即可享受买房优惠!

1、本资料为要约邀请,不作为要约或承诺;买卖双方的权利义务以双方签订的《商品房买卖合同》及其补充协议、附件等书面文件为准;

相关宣传内容不排除因政府相关规划、规定及出卖人分期规划、未能控制等原因发生变化;出卖人将!不定期对宣传材料进行修改,敬请留意最新资料。

2、图片来源于网络,仅作为推广示意使用;如涉及版权使用,请与我司联系。

全部

相关资讯

报名成功
稍后会有专业的置业顾问联系您
返回楼盘

频道导航

返回首页

看房小程序

APP下载

电话拨通后,请您手动拨打分机号

确定拨打电话

电话号码:

分机号:(可能需要拨分机号)