首页:武汉黄陂区(山海观)2025最新折扣-电话、位置、配套、环境@武汉(山海观)2025最新优势-配套→产品特色→项目概况

搜狐焦点鄂州站

2025-10-09 15:55:21

购房群

买房如何避坑,加入购房群,看看他们怎么说

立即进群

武汉【山海观】

武汉【山海观】售楼处电话:400-112-0302【售楼中心】

咨询高峰期请耐心等待,预约来电尊享内部优惠,专业一对一热情服务,让您用专业眼光去买房。

楼盘整体数据

山海观占地面积约18.8万方,总建面约73.5万方,容积率约2.87,总户数4606户,住宅机动车停车位5255个,车位比约1:1.14。项目高层共分5期开发,目前一、二、三、四期已交付,基本售罄,仅剩少量房源,主推五期高层以及洋房、别墅产品。

项目整体鸟瞰图

项目地址:黄陂盘龙大道汤云海路

开发商:武汉恒安投资有限公司

物业:浙江绿城物业管理有限公司武汉分公司

产品类型:住宅

产权年限:70年

水费:民水

电费:民电

物业费:2.5元/平米/月

交房时间:2024年2月8日

交房标准:毛坯

在售情况:94-138㎡高层,122-142㎡洋房,177-181㎡别墅

均价:高层折后均价8500元/平

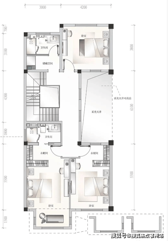
户型图展示:

武汉【山海观】

武汉【山海观】售楼处电话:400-112-0302【售楼中心】

咨询高峰期请耐心等待,预约来电尊享内部优惠,专业一对一热情服务,让您用专业眼光去买房。

洋房

别墅:总建面约4万方,容积率约0.55,总户数195户,地上三层,地下总高5.4米,每户送地下双车位,物业费4元/平米/月。

武汉【山海观】

武汉【山海观】售楼处电话:400-112-0302【售楼中心】

咨询高峰期请耐心等待,预约来电尊享内部优惠,专业一对一热情服务,让您用专业眼光去买房。

「一层平面及样板装修实景」

「二层平面及样板装修实景」

「三层平面及样板装修实景」

武汉【山海观】

武汉【山海观】售楼处电话:400-112-0302【售楼中心】

咨询高峰期请耐心等待,预约来电尊享内部优惠,专业一对一热情服务,让您用专业眼光去买房。

「样板地下两层装修实景」

区位与交通

区位:

山海观位于汤云海路以南,机场高速以东,紧挨露甲山和汤仁海路,楼市中既属于盘龙城奥莱片,又靠近宋家岗板块,行政划分属于黄陂区。

该板块由于生态环境优美,属于盘龙城开发较早的板块,周边也主要以低密产品为主,距离大汉口核心常青片、后湖片较近。

项目区位图

交通出行:

自驾:项目东面是盘龙大道,西面是机场高速,沿汤云海路右转到盘龙大道可直达三环线、后湖塔子湖板块,走露甲山或航城东路都可以上机场高速直达汉口常青、三环线、二环线,现在宋家岗收费站已免费,这条路线全城高速无红绿灯比较快。

交通示意图

武汉【山海观】

武汉【山海观】售楼处电话:400-112-0302【售楼中心】

咨询高峰期请耐心等待,预约来电尊享内部优惠,专业一对一热情服务,让您用专业眼光去买房。

地铁与公交:项目最北面的四期距离2号线盘龙城站约1.1公里,距离7号线汤云海路站约1公里,周边居民一般都是骑电动车去坐地铁。

地铁换乘示意图

另外,项目门口有微公交,主要停靠小区和2号线地铁站。

配套:

商业上,项目前几期已经交付了,所以社区内的驿站、药店、小吃餐饮、便利店、生鲜店等都比较齐全,日常所需没问题,汤云海路以北的露甲山路社区商业也比较热闹。

大型商业上,距离项目比较近的就是奥莱商圈,同时走机场高速自驾到金银潭永旺会比较快。

百联奥特莱斯图源网络

教育上, 项目自带18班双语幼儿园,距离项目比较近的学校是盘龙城三小(佰倡小学),同时项目距离九年一贯制学校盘龙城实验学校也比较近,前期交付对口这两所学校。

盘龙城实验学校效果图

医疗上,项目距离武汉市一医院盘龙城院区直线距离约1公里,还比较近。

休闲娱乐上,沿着项目的湖岸线就是山海观篮球公园,此外项目距离佰倡文化艺术公园约几百米,距离盘龙城文化遗址公园约1公里。

实景图:

武汉【山海观】

武汉【山海观】售楼处电话:400-112-0302【售楼中心】

咨询高峰期请耐心等待,预约来电尊享内部优惠,专业一对一热情服务,让您用专业眼光去买房。

郑重承诺:此房源信息真实有效,开发商直属全程营销策划,中介勿扰如有问题欢迎来电咨询,来电即可享受买房优惠!

1、本资料为要约邀请,不作为要约或承诺;买卖双方的权利义务以双方签订的《商品房买卖合同》及其补充协议、附件等书面文件为准;相关宣传内容不排除因政府相关规划、规定及出卖人分期规划、未能控制等原因发生变化;出卖人将!不定期对宣传材料进行修改,敬请留意最新资料。

2、图片来源于网络,仅作为推广示意使用;如涉及版权使用,请与我司联系。

全部

相关资讯

报名成功
稍后会有专业的置业顾问联系您
返回楼盘

频道导航

返回首页

看房小程序

APP下载

电话拨通后,请您手动拨打分机号

确定拨打电话

电话号码:

分机号:(可能需要拨分机号)