上海黄浦「露香园·云宸」
上海黄浦「露香园·云宸」售楼处电话:400-112-0302【售楼中心】
咨询高峰期请耐心等待,预来电尊享内部优惠,专业一对一热情服务,您用专业眼光去买房。
最新户型图首发!约159-254㎡高层+别墅,
黄浦豫园
露香园二期项目
「露香园·云宸」

露香园二期的可售住宅部分分A、B、C、D四个大地块,
13.3万㎡的住宅总面积中,10.79万㎡为高层住宅,2.44万㎡为低密度特色住宅(别墅),5.22万㎡的商业。

露香园二期预计首推B、D1地块。
B地块:建面约166-254㎡高层,共177套;D1地块:建面约159-208㎡高层、400平以上别墅。
B地块:


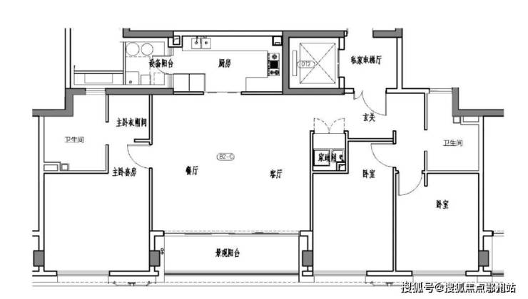
▼建面约253㎡4房2厅3卫

上海黄浦「露香园·云宸」
上海黄浦「露香园·云宸」售楼处电话:400-112-0302【售楼中心】
咨询高峰期请耐心等待,预来电尊享内部优惠,专业一对一热情服务,您用专业眼光去买房。
▼建面约234㎡4房2厅3卫

▼建面约213㎡3房2厅3卫

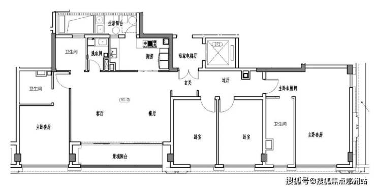
▼建面约182㎡3房2厅2卫

▼建面约186㎡3房2厅2卫

上海黄浦「露香园·云宸」
上海黄浦「露香园·云宸」售楼处电话:400-112-0302【售楼中心】
咨询高峰期请耐心等待,预来电尊享内部优惠,专业一对一热情服务,您用专业眼光去买房。
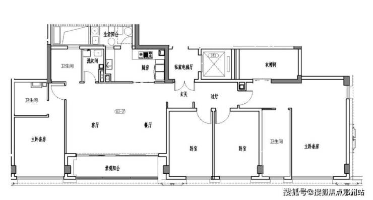
▼建面约166㎡3房2厅2卫

上海黄浦「露香园·云宸」
上海黄浦「露香园·云宸」售楼处电话:400-112-0302【售楼中心】
咨询高峰期请耐心等待,预来电尊享内部优惠,专业一对一热情服务,您用专业眼光去买房。
▼建面约199㎡3房2厅3卫

▼建面约217㎡4房2厅3卫

▼建面约229㎡4房2厅3卫

D1地块:


▼建面约208㎡3房2厅3卫

▼建面约159㎡3房2厅2卫

上海黄浦「露香园·云宸」
上海黄浦「露香园·云宸」售楼处电话:400-112-0302【售楼中心】
咨询高峰期请耐心等待,预来电尊享内部优惠,专业一对一热情服务,您用专业眼光去买房。
▼建面约196㎡3房2厅3卫

▼建面约224㎡4房2厅3卫

▼建面约215㎡4房2厅3卫

▼建面约198㎡3房2厅3卫

上海黄浦「露香园·云宸」
上海黄浦「露香园·云宸」售楼处电话:400-112-0302【售楼中心】
咨询高峰期请耐心等待,预来电尊享内部优惠,专业一对一热情服务,您用专业眼光去买房。
▼建面约164㎡3房2厅2卫

▼建面约177㎡3房2厅3卫

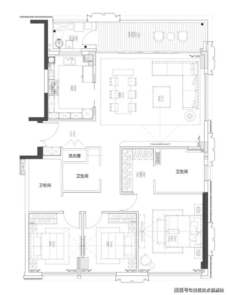
▼别墅 400+㎡

▼别墅 400+㎡

▼别墅 500+㎡

上海黄浦「露香园·云宸」
上海黄浦「露香园·云宸」售楼处电话:400-112-0302【售楼中心】
咨询高峰期请耐心等待,预来电尊享内部优惠,专业一对一热情服务,您用专业眼光去买房。
A地块:约5.45万㎡高层产品,共150套,套均面积364㎡;
B住宅:约3.8万㎡高层产品,共177套,套均面积约216㎡;
C1、C2地块:约1.9万㎡的纯联排及独栋,共46套,套均面积412㎡;
D1地块:约2.1万㎡小高层及联排与独栋,共98套,套均面积282㎡。

二期地块的平均户型面积,比一期大了约20%,特别是二期联排别墅产品,将延续上海传统历史建筑风貌的石库门+现代摩登风格,以一期21万元/㎡的均价计算,预计套均总价接近亿元!

万竹街41号

露香园一期


上海黄浦「露香园·云宸」
上海黄浦「露香园·云宸」售楼处电话:400-112-0302【售楼中心】
咨询高峰期请耐心等待,预来电尊享内部优惠,专业一对一热情服务,您用专业眼光去买房。
郑重承诺:此房源信息真实有效,开发商直属全程营销策划,中介勿扰如有问题欢迎来电咨询,来电即可享受买房优惠!
1、本资料为要约邀请,不作为要约或承诺;买卖双方的权利义务以双方签订的《商品房买卖合同》及其补充协议、附件等书面文件为准;
相关宣传内容不排除因政府相关规划、规定及出卖人分期规划、未能控制等原因发生变化;出卖人将!不定期对宣传材料进行修改,敬请留意最新资料。
2、图片来源于网络,仅作为推广示意使用;如涉及版权使用,请与我司联系。