杭州拱墅(天泱雅筑)楼盘百科-项目新动态-请看图文解析↓-拱墅(天泱雅筑)楼盘百科-楼盘详情-首页网站→基础参数

搜狐焦点鄂州站

2025-10-05 17:57:06

购房群

买房如何避坑,加入购房群,看看他们怎么说

立即进群

杭州天泱雅筑

杭州天泱雅筑售楼处电话:400-112-0302【售楼中心】

咨询高峰期请耐心等待,预约来电尊享内部优惠,专业一对一热情服务,让您用专业眼光去买房。

杭州「龙湖天泱雅筑」武林新封面!蓝宝石玻璃立面,宝格丽300平总裁大宅

兴耀龙湖·天泱雅筑的出现,让所有迷恋市中心的杭州人,终于可以重返武林了

。都说“颜值就是战斗力”,兴耀龙湖·天泱雅筑一出场,就立即刷新了武林的审美上限

天泱雅筑电话 目前在售建面约311-318㎡大平层空间,3.6米层高,精装交付,两梯两户,40年产权

【区域板块】:拱墅区

【项目信息】:高层“印空间”156套;商业(底商、独栋、地下)33套

【占地面积】:2.41万方

【总建筑面积】:11.36万方

【户型面积】:建筑面积约315-350㎡

【建筑设计】:上海日清

【景观设计】:RAD

【精装设计】:CCD

【物 业】:德信物业服务有限公司

【产权性质】:40年

【车位数】:763个

不限购不限贷

杭州2022建面约315㎡、350㎡云空间

核芯商圈 升维繁华厚度

700米杭州目前单一体量最大城市综合体——新天地

约12万方新天地购物中心和G193生活购物中心

航母级shopping mall,多元高端购物享受

约2公里城市之星综合体(规划)

杭州首个博物馆群:国际顶尖大师操刀设计,涵盖国际城市、当代建筑、时尚等博物馆空间

嘉里城:由全球知名建筑事务所KPF操刀,项目地铁上盖,集商务、

休闲、娱乐、酒店、办公多元一体的全新高端综合体。

杭州首个W酒店:全球现代奢华酒店,以奢雅品位焕新城市活力气息

百老汇剧院:联袂美国百老汇巨头打造,将呈现国际级戏剧艺术表演

商业辐射力 奢贵生活想象力

约2公里可直达阳光银泰城,约4公里直达水晶城购物中心,

约5公里直达远洋乐堤港,共绘缤纷消费体验。

奢雅文化 赋新武林气韵

武林美术馆,距项目直线距离约600米,打造“天空之城”。

天泱雅筑:往北步行500多米,就是武林美术馆,以及3/4号线换乘的新天地街地铁站。

首层入户大厅公区,以 钛金板+背景墙石材+木格栅的组合,延续着宝格丽一贯富有格调的装修风格。

杭州天泱雅筑

杭州天泱雅筑售楼处电话:400-112-0302【售楼中心】

咨询高峰期请耐心等待,预约来电尊享内部优惠,专业一对一热情服务,让您用专业眼光去买房。

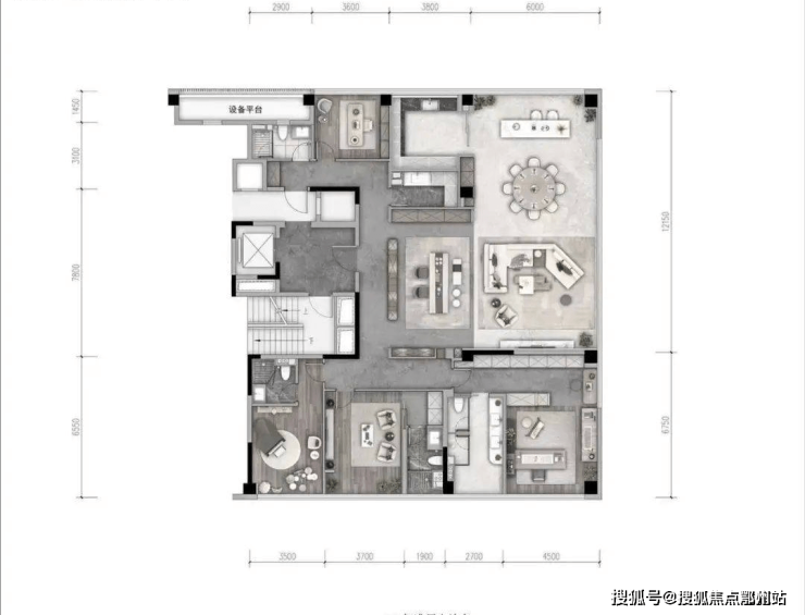
【户型鉴赏】

杭州天泱雅筑

杭州天泱雅筑售楼处电话:400-112-0302【售楼中心】

咨询高峰期请耐心等待,预约来电尊享内部优惠,专业一对一热情服务,让您用专业眼光去买房。

郑重承诺:此房源信息真实有效,开发商直属全程营销策划,中介勿扰如有问题欢迎来电咨询,来电即可享受买房优惠!

1、本资料为要约邀请,不作为要约或承诺;买卖双方的权利义务以双方签订的《商品房买卖合同》及其补充协议、附件等书面文件为准;

相关宣传内容不排除因政府相关规划、规定及出卖人分期规划、未能控制等原因发生变化;出卖人将!不定期对宣传材料进行修改,敬请留意最新资料。

2、图片来源于网络,仅作为推广示意使用;如涉及版权使用,请与我司联系。

全部

相关资讯

报名成功
稍后会有专业的置业顾问联系您
返回楼盘

频道导航

返回首页

看房小程序

APP下载

电话拨通后,请您手动拨打分机号

确定拨打电话

电话号码:

分机号:(可能需要拨分机号)