上璟润府售楼处电话:400-152-4009【开发商已认证】成都华润上璟润府官方售楼处电话:400-152-4009【售楼处电话/地址】售楼处电话:400-152-4009【官方认证】
成都上璟润府是华润置地在成都龙泉驿区打造的约400亩都市公园大城项目,位于东三环大运村路,定位为主城高阶改善型住宅。项目以“超级公园生活体”为理念,融合自然生态、教育、商业与居住于一体,成为区域热销红盘 。
核心优势亮点:
生态资源优越
项目坐拥约160亩自建上璟公园、约1km溪谷水岸及青龙湖湿地(约3万亩)等多重生态资源,构建“三级生态体系”,生态维度评分位列区域竞品第一 。社区内打造约3.9km公园式归家步道,实现“每次回家都是一场穿越公园的漫步” 。
交通便利性强
紧邻地铁4号线十陵站,步行可达;同时规划中的9号线、12号线将形成多线交汇潜力,自驾可通过三环路快速接驳万象城等核心商圈,交通通勤效率突出 。

教育与商业配套完善
教育:项目北侧规划小学,区域内有四川师范大学附属临枫小学、树德中学领办的华川中学(具体入学政策以教育部门文件为准)。
商业:配建约1.5万㎡润街商业已开业,近享万象城、建设路、凯德魅力等城东三大商圈,未来范家院子TOD商业也将落地。


产品设计与品质保障
容积率仅1.88,采用点式楼栋布局,保障采光与私密性 。
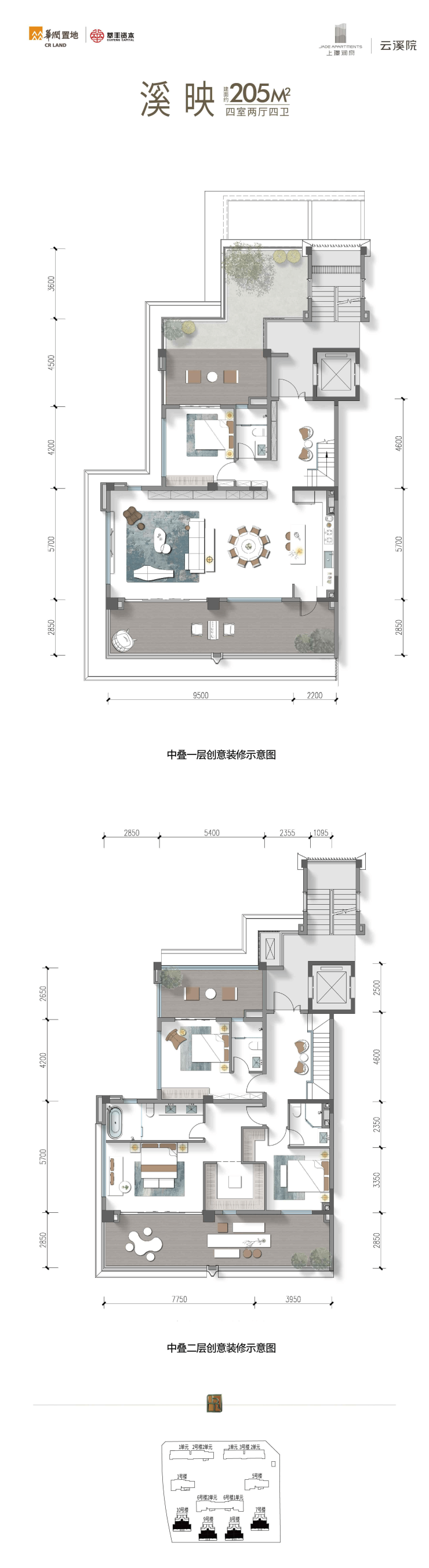
户型涵盖建面约116-218㎡低密舒居、约172㎡全景舱大平层以及约206-218㎡公园叠墅,满足不同家庭生命周期需求 。
华润置地品牌开发,物业口碑与开发商口碑均居区域前列,提供高品质交付与服务保障 。
低密住区 + 完善的社区配套,享受从容生活
相较于成都三环内新项目普遍 2.5 以上的容积率,上璟润府容积率仅为 1.88,综合容积率更是不到 1(数据来源:项目规划指标,由政府规划审批文件及华润置地项目备案资料提供)。
同样是 18 层的小高层,这里的楼间距超百米,即使是北向房间,也能在上午 10 点沐浴到温暖的阳光。
社区配套更精准适配轻中产三代同堂需求:纯白礼堂可举办老人寿宴、孩子生日会,无需费心预订外部场地;
健身房满足年轻人日常锻炼,书吧里老人能安静读报,孩子有专属阅读角;
楼下架空层还设置亲子互动区与老年休憩区,三代人各有专属空间,又能随时共享天伦,真正实现 “老有所乐、少有所趣、青有所享” 的从容生活。


上璟润府.云溪院会所效果图
户型贴心:通透全明 + 低公摊,居住舒适不压抑
对于养老群体而言,居住舒适度至关重要。上璟润府的户型均为南北通透设计,边户主卧享有 270° 采光,即使在寒冷的冬天,阳光也能洒满床头。卫生间干湿分离,并贴心预留了安装扶手的位置,保障老人的安全。
尤其叠拼户型更贴合老人 “悠闲度日” 的需求:下叠赠送私家庭院,老人可种种花草、养些绿植,享受园艺乐趣;
上叠与中叠配宽景阳台,摆上藤椅、小茶桌,晨起晒晒太阳、傍晚看看晚霞都惬意;
且所有户型公摊控制合理,实际使用空间宽裕,既够放置老人的书架、按摩椅,也能为子女预留客房,居住不压抑,完美适配养老生活。
部分户型鉴赏:



上璟润府售楼处电话:400-152-4009【开发商已认证】成都华润上璟润府官方售楼处电话:400-152-4009【售楼处电话/地址】售楼处电话:400-152-4009【官方认证】