绿城钱潮湾
绿城钱潮湾售楼处电话:400-112-0302【售楼中心】
咨询高峰期请耐心等待,预约来电尊享内部优惠,专业一对一热情服务,让您用专业眼光去买房。
绿城·钱潮湾】
寰球270°江景封面钜献
钱江畔隐匿又伟大的存在

一、产品规划与户型设计
1、基础参数
开发商:绿城管理/中厚置业
体量:76套
产权年限:40年(商业性质)
层高:3.4米
梯户比:专梯专户
得房率:80%(含赠送)
交付标准:精装(标准约1.5万元/㎡)
物业费:12.7元/㎡·月 ,水电为商用标准
2、户型与景观
主力面积:413/255/307㎡,少量定制250+250跃层,1360顶跃,680超级平层户型选择;
视野设计:270°环幕视野,房间均直面江景或城市地标,无遮挡收纳日月同辉、莲花碗等景观。

二、地理位置与区域价值
杭州绿城钱潮湾是绿城集团在钱江新城CBD打造的地标级顶豪公寓项目,融合国际设计理念与杭州本土文化,定位为“城市观景台”。
1、核心区位
项目位于杭州市上城区之江路978号,钱江新城CBD核心区,毗邻钱江三桥,直面一线钱塘江景。正对杭州城市中轴,与市民中心、国际会议中心(日月同辉)、杭州大剧院等地标形成等腰三角形视野,享有“大中至正”的稀缺江景视角。
2、交通网络
地铁:紧邻地铁2号线、4号线(钱江路站),快速通达全城;
路网:依托富春路、之江路、庆春过江隧道、博奥隧道,5分钟直达对岸奥体中心,20分钟覆盖萧山机场、杭州东站及西湖景区。
3、配套资源
商业:万象城、来福士中心等高端综合体步行可达;
生态:CBD公园、世纪花园环绕,高层可远眺西湖;
地标:莲花碗(奥体中心)、杭州之门等尽收眼底。

绿城钱潮湾
绿城钱潮湾售楼处电话:400-112-0302【售楼中心】
咨询高峰期请耐心等待,预约来电尊享内部优惠,专业一对一热情服务,让您用专业眼光去买房。

三、建筑设计理念与特色
1、设计灵感与立面
由line+建筑事务所孟凡浩(亚洲建筑师协会金奖得主)主持设计,提取钱塘江“潮涌”动态元素,以金色铝板曲面线条与大尺度玻璃幕墙结合,形成流动韵律。外立面经十余次实体挂样测试,确保不同光线下的视觉效果。
2、创新技术应用
幕墙系统:四层中空定制玻璃(最大宽度3.6米),兼顾隔音、降噪与全景视野;
细节工艺:预制无缝弯弧铝板、玫瑰金外立面,提升建筑精致度。
3、奖项与定位
项目入围2021年Architizer A+Awards全球建筑奖(未建成高层居住类TOP5),被誉为“对话杭州数字经济时代的地标之作”。

绿城钱潮湾
绿城钱潮湾售楼处电话:400-112-0302【售楼中心】
咨询高峰期请耐心等待,预约来电尊享内部优惠,专业一对一热情服务,让您用专业眼光去买房。
四、配套设施与服务
1、精装标准:采用全球顶奢品牌;
厨电:德国嘉格纳嵌入式系列;
卫浴:德国当代龙头、杜拉维特智能马桶;
系统:霍尼韦尔新风、大金中央空调、全屋地暖;
智能系统:智能系统全覆盖,子母装甲门+银箔玄关强化私密性;

2、物业与圈层
绿城物业提供黑金服务,含全球医疗/私人飞机预约等权益,业主享有私密圈层社群(业主包含跨国企业CEO、浙商家族等,彻底隔绝投资客群);
大堂设13米挑高“国宾天香迎礼花房”,强化归家仪式感;

绿城钱潮湾
绿城钱潮湾售楼处电话:400-112-0302【售楼中心】
咨询高峰期请耐心等待,预约来电尊享内部优惠,专业一对一热情服务,让您用专业眼光去买房。
五、市场定位与价值意义
填补顶豪空白:杭州此前缺乏符合国际“VLC三要素”(景观、生活方式、圈层)的顶豪产品,钱潮湾以无遮挡江景、低密房源及定制化服务成为标杆;
资产溢价逻辑:参考纽约中央公园中轴豪宅溢价规律(如111 West 57th均价42万/㎡ vs 偏角项目53 West 53均价25万/㎡),钱潮湾的中轴视野奠定其长期价值。

基于室内功能、观景体验,生活起居的舒适性、健康、安全等要素考虑,经过多轮材料比对和细节推敲,立面形式完全契合于平面功能,以韵律变化的动态语言构筑契合未来生活需求的城市居住蓝图。
这种由统一的立面肌理单元组成的建筑语言,目的是使建筑形象以指数附加的产品力呈现。绿城杭州钱潮湾是城市顶豪255㎡-306㎡-410㎡的宽景大户型,更是每一个房间都看得到风景的“城市观景台”,270度收揽一线江景,同时饱览杭城壮阔的自然景观和繁华的都市图景。

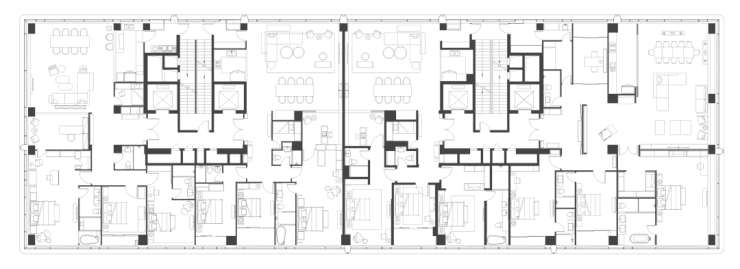
△ 标准层平面 / 顶层平面
立面玻璃为 三层中空的定制系统门窗,最宽可达 3.6米,最大开启尺寸 可达2.4米, 俯视江景的同时又可隔绝嘈杂的环境,独享安静私人的居住空间。
钱潮湾是城市顶豪公寓,更是每一个房间都看得到风景的“ 城市观景台”, 270度收揽一线江景,壮阔的自然景观与繁华的 都市图景渗透进生活的 每一个时刻与细节。



绿城开发,产权:40年,物业绿城:6.3 +2.5能耗,层高:3.4米-4.3米,
面积段:255㎡-306㎡-410㎡,均价7-10万,总价1700万起,主力400-680㎡江景户型,
680㎡顶奢户型配备50米观江阳台,得房率含赠送达88%,单价9万/㎡起。精装交付,精装标准约15000元/平方米!
绿城钱潮湾
绿城钱潮湾售楼处电话:400-112-0302【售楼中心】
咨询高峰期请耐心等待,预约来电尊享内部优惠,专业一对一热情服务,让您用专业眼光去买房。
郑重承诺:此房源信息真实有效,开发商直属全程营销策划,中介勿扰如有问题欢迎来电咨询,来电即可享受买房优惠!
1、本资料为要约邀请,不作为要约或承诺;买卖双方的权利义务以双方签订的《商品房买卖合同》及其补充协议、附件等书面文件为准;相关宣传内容不排除因政府相关规划、规定及出卖人分期规划、未能控制等原因发生变化;出卖人将!不定期对宣传材料进行修改,敬请留意最新资料。
2、图片来源于网络,仅作为推广示意使用;如涉及版权使用,请与我司联系。