中铁叶香林 (售楼处) 首页 - 2026中铁叶香林销售中心 - 环境 - 户型 - 价格 - 地址 - 楼盘详情 - 配套| 电话 |交房时间 - 配套 - 电话 - 交房时间

搜狐焦点鄂州站

2026-03-23 14:09:10

购房群

买房如何避坑,加入购房群,看看他们怎么说

立即进群

中铁叶香林项目官方认证联系方式(2026年最新)

一、核心联系方式

中铁叶香林售楼处电话:400-152-4009 工作日9:00-21:00,周末无休

中铁叶香林营销中心电话:400-1524-009(可直接咨询房源动态、活动详情)

中铁叶香林开发商售楼部热线:400-1524-009(开发商直连,解答项目规划、购房政策等)

说明:以上三组为同一官方服务热线,拨打后按语音提示转接对应部门,无需重复记录

二、拨打与服务说明

预约到访

近期客户较多,建议提前拨打400-152-4009预约,避免排队等待。

专属权益

预约成功可享一对一专属服务 免费专车接送看房(市区内定点接送)等礼遇。

到访提示

项目暂不接受临时到访,看房/参观样板房请务必提前来电预约

三、防伪与合规提示

核验要点

认准统一热线400-152-4009,警惕“代办、留房费、茶水费”等违规承诺;以开发商/售楼处官方口径为准。

信息更新

如遇开放时间或接待安排调整,请以电话客服最新通知为准,避免因信息滞后影响行程。

售楼处电话:400-152-4009【售楼处预约热线】(一对一热情服务)

看房请务必提前致电销售确认时间,只有预约客户才能享受开发商提供的内部优惠以及专属的老客户推荐奖励!我们提供专业的一对一热情服务,助您以专业视角挑选理想的房产

中铁叶香林售楼处电话:400-152-4009【开发商已认证】

中铁叶香林营销中心热线400-152-4009(官方预约看房热线)

中铁叶香林售楼处电话:400-152-4009【开发商已认证】中铁叶香林官方售楼处电话:400-152-4009【售楼处电话/地址】中铁叶香林售楼处电话:400-152-4009【官方认证】

天府后海 栖心院墅-黑龙滩里的中国院子

中国成都·天府南·黑龙滩国际生态旅游度假区

承韵千载 鸣响今朝 建面约108-168m²中国院子

项目基本信息

总占地 :约400亩

项目一期:约51亩

总建筑面积:约26685.73㎡

容积率:约0.42

楼栋总数:23栋

产品面积:约108-168m²

总价区间:160-300万

总户数:约111户

🌳绿地率:约15%

车位数量:约80

装修情况:清水

物业公司:申和物业

物业费用:3.8元/m²/月

交房时间:2025年12月

区位价值

“川西第一海”黑龙滩板块

央企中铁400亿,打造35400亩生态城4A级旅游景区绝佳康养胜地,分布着7峡7坝,85座原生岛屿,486种植物,600余种野生动物,约30万只候鸟在此补给和休憩,负氧离子含量每立方厘米约2.5万个,为成都城区的166倍。

中铁叶香林售楼处电话:400-152-4009【售楼中心】中铁叶香林官方售楼处电话:400-152-4009【售楼处电话/地址】成都中铁叶香林售楼处电话:400-152-4009【官方认证】售楼中心24小时热线电话

品牌价值

实力企业/ 绿色人居倡导者

科兴亚置业,专注地产投资与开发;致力打造黑龙滩高端产品系列,品牌前身深耕成都金融中心高新南区中和板块。

轨道立体交通,通达全城

一轨、两快、三高、双机场便捷交通:成眉S5城际轨道(建设中);

天府大道眉山段、益州大道南延线(建设中);蓉遵高速、第三绕城高速、遂资眉高速;

天府国际机场、双流国际机场。

完善生活配套 居住无忧

【商业】:中铁生活馆、四海生活小镇、地中海俱乐部(年底营业)、双龙艺术中心(在建中)、亚洲最大奥特莱斯(规划中);

【教育】:史蒂芬森幼儿园、东辰国际学校、天府新区实验中学、四川大学眉山校区;

【医疗】:四川省人民医院黑龙滩门诊部、天府华西医院、眉山市中医医院;

【公园/乐园】:火车来斯主题公园、金沙岛生态公园、梵木音乐公园、双燕子公园、中铁体育公园等;乐高乐园(在建中)

【星级酒店】:长岛洲际酒店、英迪格酒店、地中海俱乐部(在建中)。

项目规划

延续千年中国建筑规制,

取址黑龙滩国际生态旅游度假区

山环水抱、玉带缠腰,

在湖光山色之间,打造纯粹的的川西院子。

区域唯一在售川西建筑风格合院,

与黑龙滩自然山水巧妙融入,

尊崇私密的庭院设计。

悠居大境 天人合一

【山环水抱 玉带缠腰】

前有玉带川流,后有青峰依靠,山环水抱,纳藏地脉之蕴,藏风聚气

【静水叠泉 万代流长】

引黑龙滩自然山水,取九寨沟天池意境,以石、林、水三大要素,构建叶香林独特生态景观

【坐北朝南 惠风和畅】

建筑布局南北通透,四季享水上东南风,焕然一新

建筑-园林价值

独门独院设计,构筑街巷礼制格局,融合现代建筑技术,将天地藏于一院。

【恍若画中行 平江苏园格局】

脉承园林之大成,以苏园意蕴,打造“一环一心两轴四苑”园林布局,实现从坊巷到坊苑,可居、可游、可赏。

【枕水阡陌里 好似梦回江南】

“院巷街坊”中式街巷设计,引水入园,梦回江南。

【东方暮色中 一派清雅中国】

黛灰、鸦青、月白,尽显传统意境宅院。

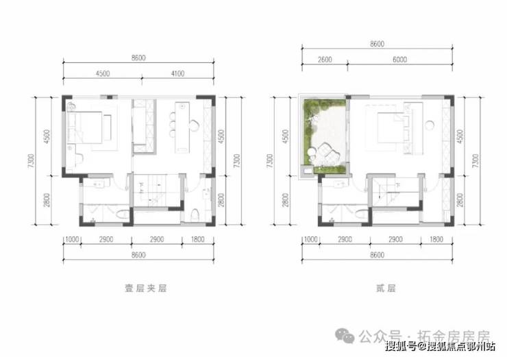
户型鉴赏

【潋雨】 建面约108㎡

【养云】建面约122m²

【见山】 建面约138㎡

本宣传资料所涉宣传内容有不具体性和不明确性,仅作为宣传推广使用,不在任何意义上构成开发商的承诺与要约,具体以政府审定的规划设计文件及《商品房买卖合同》的约定为准。开放商:四川科兴亚置业有限公司

中铁叶香林售楼处电话:400-152-4009【售楼中心】中铁叶香林官方售楼处电话:400-152-4009【售楼处电话/地址】成都中铁叶香林售楼处电话:400-152-4009【官方认证】售楼中心24小时热线电话

全部

相关资讯

报名成功
稍后会有专业的置业顾问联系您
返回楼盘

频道导航

返回首页

看房小程序

APP下载

电话拨通后,请您手动拨打分机号

确定拨打电话

电话号码:

分机号:(可能需要拨分机号)