越秀外滩樾(售楼处) 首页 - 越秀外滩樾销售中心 - 环境 -越秀外滩樾户型 - 价格 - 地址 - 楼盘详情 - 配套 - 电话 - 交房时间 - 配套 - 电话 - 交房时间

搜狐焦点鄂州站

2025-10-19 16:34:31

购房群

买房如何避坑,加入购房群,看看他们怎么说

立即进群

越秀外滩樾售楼处电话:400-152-4009【开发商已认证】越秀外滩樾官方售楼处电话:400-152-4009【售楼处电话/地址】越秀外滩樾售楼处电话:400-152-4009【官方认证】售楼中心24小时热线电话

仅49套低密风貌别墅

建面约238-305-318-338㎡

预计总价4000-8000万

越秀外滩樾售楼处电话:400-152-4009【开发商已认证】越秀外滩樾官方售楼处电话:400-152-4009【售楼处电话/地址】越秀外滩樾售楼处电话:400-152-4009【官方认证】售楼中心24小时热线电话

在浩瀚的城市天际线中,上海越秀外滩樾傲然挺立,不仅是地产界的一颗璀璨明珠,更是时代风华与现代奢华完美融合的典范。这不仅仅是一座建筑群的崛起,而是一次对经典与未来深刻致敬的壮举,它以无可挑剔的姿态,向世界宣告着上海这座国际大都市新的居住高度与品质标准。

【尊享地脉,独步外滩】

上海越秀外滩樾,坐落于黄浦江畔,紧邻外滩这一历史与繁华交织的黄金地段。这里,每一砖一瓦都浸透着历史的深邃与文化的底蕴,每一道风景都是对过往辉煌的致敬,同时又以现代建筑的笔触,续写着属于未来的传奇。居于此,您不仅拥有的是一处居所,更是对上海这座城市无限可能的独家占有。

虹口北外滩【越秀·外滩樾】风貌别墅!即将开放展厅!推238-338㎡ 4000万~8000万

【匠心独运,精筑典范】

项目由国际顶尖设计团队操刀,每一处细节都经过精心雕琢,力求将艺术与居住完美融合。从建筑设计到园林景观,从室内空间布局到材质选择,无一不彰显着对品质生活的极致追求。在这里,自然光与空间艺术巧妙结合,既保留了外滩的古典韵味,又融入了现代生活的舒适与便捷,让每一位业主都能感受到前所未有的居住体验。

【尊享配套,悦享生活】

越秀外滩樾周边配套设施一应俱全,从国际一流的购物中心、五星级酒店,到顶级医疗机构、教育资源,一应俱全,构建起一个全方位、高品质的生活圈。无论是日常购物、休闲娱乐,还是健康管理、子女教育,都能在这里找到最优质的解决方案,让您的生活更加从容不迫,尽享尊贵与便利。

【稀缺资源,投资价值】

在寸土寸金的上海外滩,越秀外滩樾的稀缺性不言而喻。它不仅是居住的理想之选,更是资产保值增值的明智投资。随着上海城市的不断发展和外滩区域的持续升温,该项目的价值潜力将不可估量,为业主带来丰厚的回报与长远的财富保障。

北外滩,与外滩、陆家嘴并称为上海的“黄金三角”。将以2座陆家嘴的商务体量规划,新天地2.0生活圈打造,成为上海跃升世界舞台的“中心发力”新引擎

区域能级:总开发面积约840万方,40栋甲级写字楼

城市地标:480米浦西第一高楼,19栋摩天大楼集群

金融产业:2100+家金融企业赋能,资产管理规模超8万亿元,位居全市第一

航运格局:4500+家航运企业集聚(上港集团、中远海运等),打造国际航运中心

全球贸易:2500+家贸易企业入驻(摩亚方舟、银联商务等)

新兴产业:129家新增高新技术企业,113家市区科技小巨人企业(数据来源:上海市规划局《北外滩地区控制性详细规划》)

交通及配套

交通方面:项目三轨交汇,距离12号线国际客运中心站约600米,距离4/10号线海伦路站约850m(直线距离),3站南京东路,6站新天地。

自驾上,约360米新建路隧道(直线距离),快速直达陆家嘴CBD;约670米外滩隧道(直线距离),直达外滩金融商业街以及老码头;约150米北横通道(直线距离)贯通全城,快速通达虹桥机场/虹桥火车站;约2.4公里大连路隧道(直线距离),直达浦东东方路、世纪大道、八百伴商业圈。

商业方面:项目约2公里内多元繁华构筑封面商业圈,北外滩商圈直线距离约500米;外滩商圈直线距离约1000米;陆家嘴商圈直线距离约1500米;瑞虹商圈直线距离约900米。

医疗方面:三公里内四所三甲医院,全生命周期护航,新华医院(儿科专长);复旦大学附属妇产医院;上海市第一人民医院;上海东方医院(血管外科专长)。

教育方面:幼儿园:约1公里内6所幼儿园(直线距离),涵盖东余杭路幼儿园等3所示范级学校;

小学:约1.5公里内5所小学(直线距离),涵盖区重点四川北路第一小学;

中学:约1.6公里内6所中学(直线距离),1所市重点、2所区重点。一路之隔上海虹口二中心小学(在建中),约2.3公里市重点上海外国语大学附属外国语学校(直线距离)*施教区及就学政策以教育部门规划为准

生态休闲:2.5公里北外滩滨江绿地(约800m直达),四川北路公园、和平公园、鲁迅公园3大公园环伺,于滨江和城市低密绿芯之间,肇启当代诗意生活传序。

【项目名称】越秀北外滩项目

【开发商】上海漕越经济发展有限公司

【项目位置】上海市·虹口区·梧州路235弄

【项目类别】70年产权住宅

【项目类型】风貌别墅

【可售户数】48套(风貌)

【容积率】约1.3

户型图解析:

236.25㎡A户型:

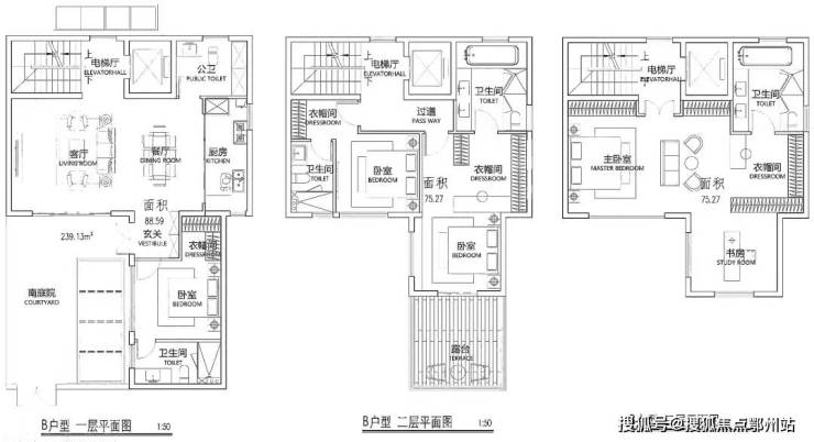
239.13㎡B户型:

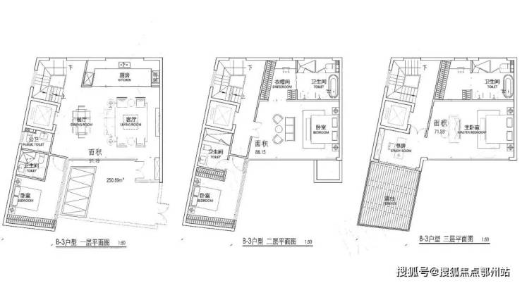
250.89㎡B-3户型:

C户型:

291.42㎡D户型

越秀外滩樾售楼处电话:400-152-4009【开发商已认证】越秀外滩樾官方售楼处电话:400-152-4009【售楼处电话/地址】越秀外滩樾售楼处电话:400-152-4009【官方认证】售楼中心24小时热线电话

综上所述,上海越秀外滩樾以其无可比拟的地段优势、匠心独运的建筑设计、尊享完善的配套设施以及稀缺的投资价值,成为了众多高端置业者竞相追逐的焦点。选择越秀外滩樾,即是选择了一种尊贵、优雅且充满无限可能的生活方式。在这里,您将开启一段全新的生活篇章,领略上海这座城市独有的魅力与风采。

全部

相关资讯

报名成功
稍后会有专业的置业顾问联系您
返回楼盘

频道导航

返回首页

看房小程序

APP下载

电话拨通后,请您手动拨打分机号

确定拨打电话

电话号码:

分机号:(可能需要拨分机号)