上海院子
官方方认证联系方式(2026年最新)
售楼处电话:400-112-0302工作日9:00-21:00,周末无休
营销中心电话:400-112-0302(可直接咨询房源动态、活动详情)
开发商售楼部热线:400-112-0302(开发商直连,解答项目规划、购房政策等)
【信达泰禾上海院子】 位于杨浦区,隶属新江湾城板块,相比杨浦其他板块,新江湾城最大亮点就是ecology绿化,同样也是项目的一大优势,项目周围环伺着三大片湿地。

新江湾是上海传统豪宅区,毗邻五角场城市副中心,拥有9.45平方公里的原生湿地以及约15万㎡的新江湾湿地公园生态稀缺资源。信达泰禾·上海院子位于新江湾城核心位置,家门口就是10号线殷高东路站,步行可达。

「上海院子」 独特的院落式社区打造,融合了“院子系”特点、福州三坊七巷和上海弄堂形制,规划了“三街九坊十八巷”。且以“大门、坊门、院门、宅门”四进系统层层递进。项目精益求精,如吊顶天花雕刻的是龙纹和祥云的图案,寓意吉祥安康。

宫殿峥嵘笼紫气
门第相当石鼓默
一对抱鼓石,彰显着门庭煊赫
出入显贵,一圆一方的上下分布
具有天圆地方的象征意蕴
园林方面
项目则集萃 南北园林精华
以“门、庭、巷、院”的建筑体系
营造出中国大院 “高、深、大、美” 的居住艺术
在细节上,精益求精
如吊顶天花雕刻的是龙纹和祥云的图案
寓意吉祥安康

项目物业会所
物业费:地上12.1块,地下6.05块
泰禾物业 借助泰禾 全球资源服务平台, 追求“精致到极致,极致到厘米级”的高端品质服务,为业主提供个性化的物业服务全价值链解决方案。
泰禾物业人员沉淀 中华传统礼仪文化,从仪容仪表、形体、微笑、规范服务动作到茶艺、诗词、琴乐、儒学, 由内至外塑造物业服务人员的大家气质,与传承中国传统文化礼序的泰禾院子相辅相成,极尽尊崇的名流礼遇。
项目售楼处位置是作为社区文化中芯,于负一层打造了建面约 3000㎡的精品会所, 面宽约75米,拥有 室内外双泳池、健身房、spa房,咖啡吧、vip室, 让业主享受7星级高级定制服务。

上海院子会所咖啡吧实景图

上海院子会所泳池实景图

上海院子会所健身房实景图


项目综合配套如下:
交通出行: 家门口就是10号线殷高东路站,步行几分钟即可到达。
商业方面: 项目步行可快速到达约90万方的铁狮门的商业圈,车行可快速到达五角场商圈。
教育方面: 项目周边中福会幼儿园、延吉幼儿园(区重点)、同济第一附中(市重点)等名校学府林立。
学校方面: 项目与上海音乐学院实验中小学(市重点)距离仅约800米。

上海院子
官方方认证联系方式(2026年最新)
售楼处电话:400-112-0302工作日9:00-21:00,周末无休
营销中心电话:400-112-0302(可直接咨询房源动态、活动详情)
开发商售楼部热线:400-112-0302(开发商直连,解答项目规划、购房政策等)
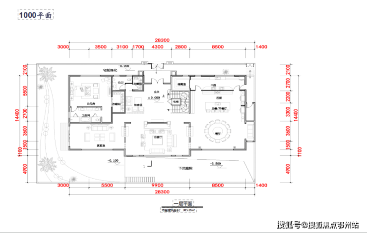
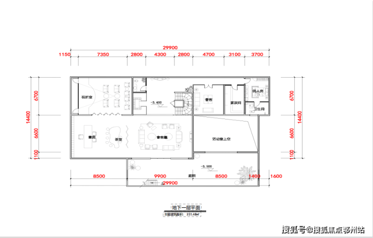
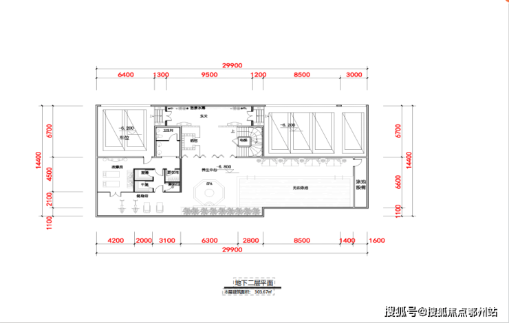
平面户型图如下








上海院子
官方方认证联系方式(2026年最新)
售楼处电话:400-112-0302工作日9:00-21:00,周末无休
营销中心电话:400-112-0302(可直接咨询房源动态、活动详情)
开发商售楼部热线:400-112-0302(开发商直连,解答项目规划、购房政策等)




装修效果图






上海院子
上海院子 售楼处电话:400-112-0302【售楼中心】
咨询高峰期请耐心等待,预约来电尊享内部优惠,专业一对一热情服务,让您用专业眼光去买房。
郑重承诺:此房源信息真实有效,开发商直属全程营销策划,中介勿扰如有问题欢迎来电咨询,来电即可享受买房优惠!
1、本资料为要约邀请,不作为要约或承诺;买卖双方的权利义务以双方签订的《商品房买卖合同》及其补充协议、附件等书面文件为准;相关宣传内容不排除因政府相关规划、规定及出卖人分期规划、未能控制等原因发生变化;出卖人将!不定期对宣传材料进行修改,敬请留意最新资料。
2、图片来源于网络,仅作为推广示意使用;如涉及版权使用,请与我司联系