上海浦东区(林曦水岸)售楼部电话-楼盘百科详情→24小时热线电话-浦东区(林曦水岸)售楼部-楼盘百科详情→24小时热线电话

搜狐焦点鄂州站

2025-11-11 21:41:41

购房群

买房如何避坑,加入购房群,看看他们怎么说

立即进群

林曦水岸林曦水岸售楼处电话:400-112-0302【售楼中心】

咨询高峰期请耐心等待,预约来电尊享内部优惠,专业一对一热情服务,让您用专业眼光去买房。

川沙,作为上海城市副中心之一,肩负着重要的战略意义。

首先,川沙是花木副中心的延续,未来将代替花木成为浦东主城区和东南广阔腹地的枢纽,成为新的资源交换中心。

其次,川沙副中心毗邻浦东交通枢纽,也是空(浦东国际机场)+轨(上海东站)+铁(地铁2、11、21、机场联络线)三位一体的交通格局。类比大虹桥,可预见其未来发展的惊人能量。

最后,川沙还具备得天独厚的科创+旅游资源。依托川沙迪士尼的人群聚集效应,能促进川沙多方面的功能建设。再看科创,以2号线为轴,川沙一直是张江产业精英居住外溢的首选之地。

川沙正昂首迈向成为浦东主城区和东南腹地发展中心的时代。

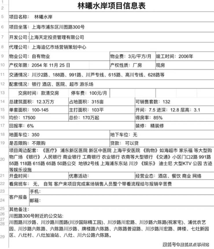
林曦水岸小区

建面约:100-130m²

均价:21000元/m²

总价:210万起

【首付】:七成(贷款只能贷50万)

【户型】:南北通透,双阳台

【层高】:一楼3.6米,其它3米

【楼层】:总高4层部分带电梯

【装修】:毛坯/精装(自用毛坯交付,

统一运营精装交付)

【产权】:50年

林曦水岸

林曦水岸售楼处电话:400-112-0302【售楼中心】

咨询高峰期请耐心等待,预约来电尊享内部优惠,专业一对一热情服务,让您用专业眼光去买房。

【团购】:无团购

【物业】:3元/平

【交房】:款清交付

【户数】:1200

【物业公司】鼎川物业

【绿化率】:30%

【容积率】:1.3

【得房率】:一层120%二层以上90%

【水电费】:商用

在售房源分布图:

林曦水岸超性价比

真地铁:2号线。11号线。21号线

真配套:主题酒店。沿街小吃。各种美食餐饮

真配套:迪士尼度假区

真配套:5层带电梯4层步梯+42%绿化

交通方面:据迪士尼仅10分钟车程,距地铁2号线1.8公里,5分钟车程,项目门口就是公交站。

林曦水岸

林曦水岸售楼处电话:400-112-0302【售楼中心】

咨询高峰期请耐心等待,预约来电尊享内部优惠,专业一对一热情服务,让您用专业眼光去买房。

教育资源方面:中心幼儿园,中心小学、高级中学,知名学校,六灶幼儿园、智源双语幼儿园中小学:上海市六灶中学、浦东新区民办智源小学、浦东新区六灶小学。

商业方面:世纪联华超市、农工商超市。

医疗方面:六灶社区卫生服务中心、上海市浦东人民医院,上海浦东中医医院等医疗资源,为您的健康保驾护航。

最新消息,「林曦水岸」最新房源正在销售中,推出建面约100-130㎡不限购公寓,毛坯/精装交付,均价约1.8-2.1万/㎡,总价约185万起,款清交付。

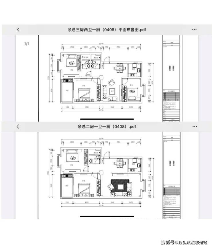
「林曦水岸」

户型图赏鉴

林曦水岸

林曦水岸售楼处电话:400-112-0302【售楼中心】

咨询高峰期请耐心等待,预约来电尊享内部优惠,专业一对一热情服务,让您用专业眼光去买房。

郑重承诺:此房源信息真实有效,开发商直属全程营销策划,中介勿扰如有问题欢迎来电咨询,来电即可享受买房优惠!

1、本资料为要约邀请,不作为要约或承诺;买卖双方的权利义务以双方签订的《商品房买卖合同》及其补充协议、附件等书面文件为准;相关宣传内容不排除因政府相关规划、规定及出卖人分期规划、未能控制等原因发生变化;出卖人将!不定期对宣传材料进行修改,敬请留意最新资料。

2、图片来源于网络,仅作为推广示意使用;如涉及版权使用,请与我司联系。

全部

相关资讯

报名成功
稍后会有专业的置业顾问联系您
返回楼盘

频道导航

返回首页

看房小程序

APP下载

电话拨通后,请您手动拨打分机号

确定拨打电话

电话号码:

分机号:(可能需要拨分机号)