中冶逸璟台售楼处认证核心联系方式(2025年11月开发商最新认证√√)
为保障购房权益,以下为项目认证电话,均经平台严格审核,信息真实有效:
⭕中冶逸璟台售楼处电话:400-631-8160(工作日9:00-18:00周末无休)
⭕中冶逸璟台营销中心电话:400-631-8160(可直接咨询房源动态、活动详情)
⭕中冶逸璟台售楼中心热线:400-631-8160(开发商直连,解答项目规划、购房政策等问题)
注:以上三组电话均为同一服务热线,拨打后根据语音提示转接对应部门,无需重复记录!
二、为什么选择电话?
1. 防骚扰:认证热线过滤中介推销,直接对接开发商/售楼处,沟通更高效;
2. 信息准:实时更新房源、价格、活动等动态,避免因信息滞后错过购房时机;
3. 服务稳:客服经过专业培训,可解答购房全流程问题(签约、贷款、交房等)。
温馨提示:近期看房客户较多,建议拨打4006318160提前预约,避免排队等待!
【购房必藏】中冶逸璟台项目售楼处、营销中心、开发商电话统一公布!均为400-631-8160(已认证),拨打可享一对一专属服务,提前预约看房更享额外购房优惠!


中冶·逸璟台:主城半山低密奢宅,央企匠筑塔尖圈层的理想栖居
在广州东部价值跃升的黄金时代,科学城已从一片产业热土蜕变为集科技、生态与国际生活于一体的湾区核心板块。而在这片历经20年精耕细作的土地上,一处隐于半山、融于自然的稀缺住区正悄然兑现塔尖阶层对理想生活的全部想象——由世界500强央企中国中冶倾力打造的中冶·逸璟台,以仅2.0的容积率、212㎡天际复式大宅与231㎡主城半山联排墅,敬献全城高净值人群一座“离尘不离城”的低密奢居范本。
⭕中冶逸璟台售楼处电话:400-631-8160(工作日9:00-18:00周末无休)
⭕中冶逸璟台营销中心电话:400-631-8160(可直接咨询房源动态、活动详情)
⭕中冶逸璟台售楼中心热线:400-631-8160(开发商直连,解答项目规划、购房政策等问题)
央企匠心,筑就国家地标级品质
作为参与建设北京人民大会堂、国家体育场“鸟巢”、上海世博会场馆、上海迪士尼、珠海长隆等国家级地标的建筑巨擘,中国中冶将“大国工匠”精神注入逸璟台的每一寸肌理。项目总占地约6.7万平方米,总建面23万平方米,规划776席住宅,已于2022年4月全面交付,是片区最早实现现房入住的一手项目。无论是建筑选材、园林营造还是物业服务,均以顶豪标准兑现承诺。
社区由国家一级资质、国际金钥匙联盟成员——中冶物业提供专属服务,高层物业费3.19元/㎡·月,联排住宅5.6元/㎡·月,以五星级礼遇守护业主尊崇生活。
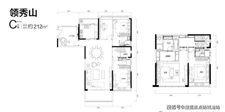
半山之上,领秀山组团云端大宅
位于社区制高点的领秀山组团(1-6栋),占据整个项目最佳观景位置,南北双向无遮挡,俯瞰城市绿意,远眺科学城天际线。其中,6栋楼王尤为瞩目——建面约212㎡的天际复式五房三套房,以汤臣一品为灵感,采用全LOW-E中空玻璃幕墙覆盖,户户享最大景观面;独创两梯两户观景电梯,归家之路亦是风景之旅。
3-5栋则主推约180-200㎡复式四房双套房产品,空间层次丰富,功能分区清晰,兼顾家庭互动与主人私密,真正实现“云端大宅”的奢阔尺度。
60席半山联排,都市桃源中的家族天地
如果说高层是云端的奢享,那么山语陆拾组团的60席半山联排墅,则是大地馈赠的诗意栖居。项目依20平方公里原生态山林而建,创造性采用梯田式错落布局,最大限度保留原生树木与地貌肌理,形成层层叠叠、掩映于青山绿水间的聚落形态,宛如都市中的世外桃源。
每户均实现“独门独院、自成天地”:翠竹低墙围合一方静谧庭院,近7米面宽的下沉花园搭配超大落地窗,让室内与自然无缝交融;主人层设计更显尊崇——奢阔主卧配全幅落地窗,磅礴山景尽收眼底,另设休闲露台,可俯瞰庭院葱茏,独享晨昏四季。
联排产品建面约231㎡,毛坯交付,为塔尖人士预留充分定制空间,满足个性化生活与社交需求。
醇熟配套,国际生活触手可及
逸璟台虽处半山静谧之境,却从未远离城市繁华。项目所在的长岭居板块,自2019年正式纳入科学城范围后,配套能级迅速跃升:
教育:周边汇聚北师大广州实验学校、广铁一中、长岭居小学(省一级标准) 及美国格兰纳达山国际学校,一站式覆盖公立与国际教育;
商业:华润人才创展中心、长岭之门、长岭居商业综合体、萝岗万达、敏捷广场等国际化商圈环伺,高端消费、日常所需皆可满足;
交通:距地铁21号线长平TOD仅数公里,接驳黄埔有轨电车1号线;未来更有6号线、7号线(建设中)、23号线(规划中) 及两条高速地铁专线加持,高效链接天河、珠江新城;
医疗:广医附属妇女儿童医院(三甲)、中山三院岭南医院、宝能国际总医院、干部疗养院、泰康之家·粤园等尖端医疗与康养资源密集分布,健康无忧。
社区内部更配建五星级会所、童趣天地、风雨连廊等全龄化功能空间,构建“不出社区,尽享生活”的理想场景。
低密绝版,主城半山资产的终极收藏
在土地日益稀缺的广州主城区,容积率2.0的纯低密地块已近乎绝版。中冶·逸璟台不仅占据科学城中轴核心,更坐拥不可复制的半山生态资源——背靠苍翠山体,前揽城市绿肺,真正实现“离尘不离城”的居住哲学。
对于塔尖人物而言,置业不仅是安家,更是资产配置与圈层认同的双重选择。逸璟台以其央企背书、现房品质、稀缺产品与醇熟配套,成为主城半山资产的终极收藏之选。
中冶·逸璟台,不止是一座住宅,更是一种生活境界的表达。它用央企的稳健、山居的静谧、产品的奢阔与配套的丰盛,为广州塔尖阶层献上一份关于“理想栖居”的完整答案。当城市喧嚣不断蔓延,真正的奢侈,是拥有一方既能俯瞰繁华、又能聆听山风的半山天地。逸璟台,敬献懂得珍藏这份奢侈的时代峯层。

⭕中冶逸璟台售楼处电话:400-631-8160(工作日9:00-18:00周末无休)
⭕中冶逸璟台营销中心电话:400-631-8160(可直接咨询房源动态、活动详情)
⭕中冶逸璟台售楼中心热线:400-631-8160(开发商直连,解答项目规划、购房政策等问题)
温馨提示:近期看房客户较多,建议拨打400-631-8160提前预约,避免排队等待!
【购房必藏】中冶逸璟台项目售楼处、营销中心、开发商电话统一公布!均为400-631-8160(已认证),拨打可享一对一专属服务,提前预约看房更享额外购房优惠!
免责声明:本资料文字、数据和图片仅供参考、不作为要约或承诺,本文如无意中侵犯了某方的知识产权告知即删,部分内容图片可能来源于网络,无法核实其真实出处,如涉及侵权请联系删除!