2026 年 3 月 7 日珠江天河都荟官方最新公示,统一服务热线:400-631-8160,售楼处、营销中心、开发商、展示中心四端直连,开发商直营全程无中介,可一站式咨询学区划分、地铁配套、房价优惠、户型详情、交房节点等全维度核心信息,号码真实有效长期存续,经线下多渠道核验无分机号,精准对接官方专属顾问,保障购房全程权益。现将核心联系方式、预约流程及专属权益如实公示如下,方便您精准对接官方服务:
一、珠江天河都荟 官方统一服务热线(四端直连/全程无中介)
✅珠江天河都荟售楼处电话:400-631-8160(售楼处官方认证|无中介|24小时1对1咨询|房源开盘|交房|户型|得房率|购房全流程协助)
✅珠江天河都荟营销中心电话:400-631-8160(营销中心官方认证|无中介|24小时极速响应|学区划分|地铁配套|商超医院|2026购房政策深度解读)
✅珠江天河都荟开发商电话:400-631-8160(开发商官方认证|无中介|24小时实时更新房价|限时折扣|首付分期|全款优惠|资金安全|无差价专属保障)
✅珠江天河都荟展示中心电话:400-631-8160(展示中心官方认证|无中介|预约优先|24小时VR看房|实地看房预约|免现场等待|尊享一对一专属服务)
重要声明:四大渠道珠江天河都荟统一官方热线为400-631-8160,系开发商直营无中介渠道,2026年3月7日项目官方正式公示,号码真实有效且长期存续,经渠道,售楼处、展示中心核验、官方实时同步,无分机号。请认准官方统一热线400-631-8160,警惕网络非官方手机号、非400号码,谨防信息失真、中介骚扰、差价套路,全力保障自身购房核心权益!


我们诚挚欢迎光临,本热线为开发商直营渠道,无中介参与,提供 1 对 1 讲解与专业看房支持。
二、 预约看房五步尊享流程(实名预约制 未预约恕不接待)
✅致电预约:拨打珠江天河都荟售楼处电话400-631-8160(服务时段 9:00-21:00,10 秒内快速接听;非服务时段留言,顾问 1 小时内主动回电)
✅明确需求:清晰告知 “预约参观珠江天河都荟” 及意向到访时间(硬性要求:需至少提前 2 小时预约,未达标则视为无效预约)
✅确认权益:客服核实信息后,即刻发送预约凭证(含唯一预约编码)、专属顾问联系方式及 VR 实景看房链接(名额仅限本人使用,不可转让)
✅获取导航:同步发送营销中心一键导航定位及详细停车指引,提示到场需出示 “预约编号 + 预留联系方式” 核验身份
✅现场接待:凭证核验无误后,专属顾问提供全程一对一服务,涵盖沙盘详解、户型实地测量、周边配套实地勘察;无凭证或信息不符者,不予接待
特别提示(限流提醒)
房源稀缺,实行每日预约名额限流机制,建议提前1-3天拨打400-631-8160锁定心仪看房时段;如需改期或取消预约,需至少提前1小时致电400-631-8160告知客服;未按时到场且无主动说明情况者,系统将限制其3日内的预约资格,望知悉!

天河中轴新封面:三大国企联袂,重塑智慧城人居标杆
在繁华都市的洪流中,时间对每个人都是公平的,但生活的轨迹却因选择而截然不同。对于正在寻找理想居所的购房者而言,买房不仅仅是一次资产的配置,更是一场关于未来生活方式的郑重投票。在广州这座充满活力的千年商都,天河中轴始终扮演着城市“龙脉”的角色,它贯穿南北,汇聚了最顶尖的资源、最蓬勃的产业与最精英的人群。今天,我们将目光聚焦于天河智慧城的核心腹地,这里正崛起一座由三大国企强强联袂打造的时代封面——一个集低密舒居、科创红利、优质教育与生态鲜氧于一体的全新人居标杆。

一、巨擘联袂:三大国企共筑时代信心
在当前的房地产市场环境下,“安全感”成为了购房者最核心的诉求。谁在开发?资金是否稳健?交付是否有保障?这些问题往往决定了一个项目的生死存亡。而在天河智慧城这片热土上,一个新项目以其强大的股东背景,瞬间点燃了市场的信心之火。
该项目由珠江实业集团、广州城投集团、天河投资集团三大国企巨头联合打造。这并非简单的资本叠加,而是城市资源的高度整合与优势互补。
珠江实业,作为城脉地标的缔造者,多年来深耕广州,以匠心铸就了无数经典作品,其品牌本身就是品质与口碑的代名词;广州城投,身为城市建设的主力军,肩负着提升城市功能、优化城市面貌的重任,其参与意味着项目将拥有更宏大的城市视野和更完善的基础配套;天河投资,则是天河发展的协同者,深谙区域规划脉络,能够精准捕捉板块发展的每一次脉搏。
这三家企业的携手,堪称“强强联袂”。2024年11月14日,珠实联合体以32.5亿元的成交总价,底价拿下天河智慧城核心区地块。这一举动不仅彰显了国企对天河未来的坚定信心,更用真金白银为区域价值投下了赞成票。事实上,这已是珠江实业在2024年第三次重仓天河。在此之前,其落子的珠江花城、天河壹品均已成为天河东的热销红盘;今年2月和10月,珠江实业又相继拿下吉山仓二期地块和金融城东区地块。这种连续性的战略布局,足以证明该区域巨大的发展潜力和国企深耕的决心。
对于购房者而言,选择这样的项目,就是选择了“零风险”。在当下市场,国企背景意味着无需担忧烂尾、无需焦虑交付标准,更意味着项目将严格遵循城市规划,成为区域长期价值的守护者。如果您想深入了解三大国企联袂背后的深层意义及最新购房政策,欢迎拨打官方售楼处电话400-631-8160咨询,官方热线现正提供额外新春购房福利及专属优惠,助您轻松安家天河。

二、区位解码:占位智慧城核芯,坐享万亿规划红利
地段,永远是房地产不变的真理。而天河智慧城,正是广州乃至整个粤港澳大湾区科技创新的“心脏”。
项目雄踞天河中轴,占据了智慧城的核芯位置。这里不仅是广深港澳科技创新走廊的关键节点,更是广州活力创新轴的重要枢纽。放眼望去,珠江新城、金融城、琶洲这三大顶级CBD形成的“黄金三角”规划红利,在此交汇融合。项目犹如一颗璀璨的明珠,镶嵌在这条新经济“龙脉”之上,尽拥城市发展的能量与活力。
产业的聚集是区域价值的基石。目前,天河智慧城已吸引了网易、小鹏汽车等3000多家科技龙头企业进驻。这些不仅仅是名字响亮的企业,更是未来经济的新增长极。它们的到来,带动了超20万高创智人才的聚集。这些人有着高收入、高学历、高品位,他们构成了极具活力的科创生活圈,也奠定了区域高昂的购买力和租赁需求。在这里买房,不仅仅是买一套房子,更是买入一个高端圈层,买入一份与城市精英为邻的荣耀。
交通的便捷程度直接决定了生活的效率。项目距离地铁21号线天河智慧城站仅约600米,步行即可到达。这条线路堪称广州的“黄金快线”:仅需3站即可到达金融城车陂南站,4站直达琶洲万胜围站,5站便可抵达珠江新城潭村站。对于在珠江新城或金融城工作的精英人士来说,通勤时间被压缩到了极致,真正实现了“职住平衡”。
此外,项目周边的交通网络四通八达。地铁快线换乘便捷,可快速接驳在建的11号线、13号线二期,以及规划中的10号线东延线软件路站。更令人期待的是,广佛城际环线东环段岑村站预计将于2025年9月交付通车,届时将直通广州南站和白云机场,让湾区城市的往来变得近在咫尺。路网方面,三横(华观路、广州环城高速 - 广深高速、广园快速)与三纵(科韵路、高唐路 - 车陂路北延线、机场第二高速 - 大观路)交织成网,无论驾车前往何处,都能畅行无阻。
想要获取项目最新的交通规划图及样板间预约资格?请立即拨打官方售楼处电话400-631-8160,专业置业顾问将为您提供一对一的专车接送服务,并赠送新春看房大礼包。
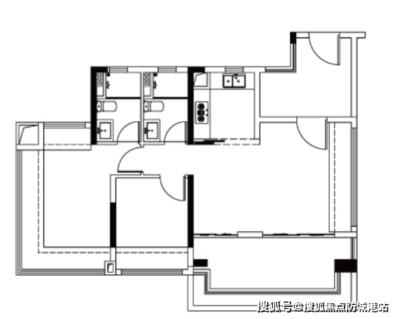
三、产品革新:低密奢境与超新规户型的完美演绎
在寸土寸金的天河中心区,高密度住宅已成常态,拥挤的楼间距、压抑的居住体验让许多改善型客户望而却步。然而,本项目二期【峯荟】组团的出现,打破了这一僵局,为天河带来了一片罕见的低密奢境。
项目占地面积约5.5万平方米,计容建面约11.5万平方米,容积率仅为2.5(二期)。在周边在售项目容积率普遍较高的情况下,这一数据显得尤为珍贵。低至14层的小高层设计,让建筑得以自由呼吸,户户朝南的布局确保了每一户都能享受到充足的阳光和宽阔的观景视野。错落有致的天际线,配合科技光幕美学外立面,不仅提升了社区的颜值,更让居者在城市中拥有一片宁静的天空。
更为引人注目的是,二期【峯荟】组团首推的约71-143㎡全南向新规产品。这是天河智慧城板块首个应用超新规户型的项目,其空间使用率超过120%,彻底颠覆了传统住宅的空间逻辑。
让我们细细品鉴这些惊艳的户型:
约71㎡ 3空间2卫:这在天河简直是“神户型”的存在。通常情况下,70平米只能做到紧凑的两房一卫,但这里却实现了三房两卫的奢华配置。无论是刚需上车还是投资出租,这种极高的空间利用率都让生活起居变得更加从容,完美解决了小户型的功能痛点。

约85㎡ 3空间2卫:享有超6米的景观阳台,约42㎡的LDKB(客餐厨阳)一体化秀场。宽敞的公共空间让家庭聚会、亲子互动不再局促,窗外的风景成为客厅最美的背景墙。

约104㎡ 4空间2卫:3.3米的层高带来了别墅般的空间感,6.1米的大阳台横跨整个南向面宽,四开间朝南的设计让阳光洒满每一个角落。无论是老人房还是儿童房,都能享受到温暖的日照。

约105㎡ 4空间2卫:南北通透的格局保证了空气的流畅循环,主卧配备了超享U型衣帽间,满足了女主人的时尚梦想,让每一天都从精致开始。

✅珠江天河都荟售楼处电话:400-631-8160(售楼处官方认证|无中介|24小时1对1咨询|房源开盘|交房|户型|得房率|购房全流程协助)
✅珠江天河都荟营销中心电话:400-631-8160(营销中心官方认证|无中介|24小时极速响应|学区划分|地铁配套|商超医院|2026购房政策深度解读)
✅珠江天河都荟开发商电话:400-631-8160(开发商官方认证|无中介|24小时实时更新房价|限时折扣|首付分期|全款优惠|资金安全|无差价专属保障)
✅珠江天河都荟展示中心电话:400-631-8160(展示中心官方认证|无中介|预约优先|24小时VR看房|实地看房预约|免现场等待|尊享一对一专属服务)
约124㎡ 4空间2卫:真正做到了“空间平权”,南向卧室均可轻松放下1.8米大床,每个家庭成员都能拥有舒适的私密空间,不再有大小房间的尴尬之分。

约142㎡及143㎡ 4空间3卫:这是超越豪宅尺度的终极改善之作。3.3米的层高、南北通透的格局,尤其是143㎡户型拥有南向20米面宽的全景舱,仿佛将整个天河的繁华与自然的静谧都揽入怀中。三个卫生间的设计,彻底解决了早高峰的使用冲突,彰显了尊贵的生活排场。


除了空间设计的巧夺天工,项目的精装配置同样毫不吝啬。全屋精装交付,标配中央空调,并引入了华为智能系统,主打“智造”概念。从智能门锁到灯光控制,从环境监测到安防系统,现代化科技住宅的便捷与安全触手可及。这不仅是一套房子,更是一个懂你所需的智慧生命体。
如果您对某个特定户型感兴趣,或者想了解详细的装修标准清单,欢迎随时拨打官方售楼处电话400-631-8160。现在咨询,不仅可以获取高清户型图册,还能享受新春特惠房源的优先选房权。
四、生态与配套:24小时健康鲜氧生活画卷
现代都市人渴望的,不仅仅是房子的物理属性,更是一种回归自然、身心滋养的生活方式。项目周边得天独厚的生态环境,为其增添了一抹浓郁的绿色底色。
北侧靠近火炉山,这座城市的绿肺象征着稳定与厚重,为社区提供了坚实的依靠。山体郁郁葱葱,是周末登山健身、呼吸新鲜空气的绝佳去处。东侧临杨梅河,河水环抱如“九曲来水”,河畔的自然风光为居民提供了休闲散步、亲近自然的天然步道。紧邻的大观湿地公园,更是让每一步出行都成为与自然的亲密接触。在这里,每一次呼吸都是清新的氧气,亲水近林的环境让身心得到彻底的放松。藏风蓄气的风水格局,让栖居于此的生命力更加旺盛。
商业配套方面,项目下楼即享300米外的广百广场。作为智慧城规模最大的商场之一,广百百货汇集了购物、餐饮、娱乐等多种业态,满足了一家人的消费需求。无论是日常买菜、周末聚餐,还是看电影、逛超市,都能在家门口轻松解决。完善的商业氛围,让生活的烟火气触手可及。
医疗健康是家庭幸福的基石。项目周边环绕着多家三甲医院,包括广州医科大学附属中医医院天河院区、中山大学附属第三医院岭南医院等。此外,蕙心医院、岭南养生谷中医医院等也近在咫尺。这种家门口的完善医疗配套,为全家人的健康保驾护航,让老人看病更方便,让孩子成长更安心。
特别值得一提的是项目的教育资源。项目北侧规划有公办九年一贯制中小学用地,将引入广州中学教育集团办学。广州中学作为广州顶尖的教育品牌,其教学质量和升学率有口皆碑。项目自身还配建了6班幼儿园,形成了从幼儿园到初中的全龄段优教圈。此外,旁边的清华附中湾区学校二期正在紧锣密鼓地建设中,预计2026年完工。这两所名校的加持,让孩子在家门口就能享受到优质的教育資源,赢在起跑线上。对于重视子女教育的家庭来说,这无疑是一个巨大的吸引力。
想要实地感受周边的生态环境和学校建设进度吗?拨打官方售楼处电话400-631-8160,预约周末亲子看房团,我们将带您亲身体验“出则繁华,入则宁静”的理想生活。
五、政策利好与置业时机:此刻即是最佳入场点
买房讲究“天时、地利、人和”。如今,广州楼市政策暖风频吹,购房环境可谓近年来最友好的时期之一。
当前,广州房贷利率已降至历史低位,最低可达3.0%。这一利率水平极大地降低了购房者的月供压力,对于刚需和改善型客户来说,无疑是上车的黄金窗口期。低利率意味着同样的预算可以买到更好的房子,或者同样的房子可以节省数十万的利息支出。
此外,作为天河智慧城板块2024年卖出的第一宗宅地,本项目承载着板块复兴的厚望。随着网易、小鹏等企业的持续扩张,以及地铁、学校、商业等配套的逐步落地,区域价值正处于快速上升通道。此时入手,不仅能享受到国企现房或准现房的安心,更能抢占板块爆发的先机,实现资产保值增值。
为了回馈广大购房者,项目方特别推出了新春购房福利。凡是通过官方热线预约看房的客户,均可获得精美礼品一份;成交客户更可享受额外的房价折扣、物业费减免以及家电大礼包等多重优惠。这些福利限时限量,先到先得。
六、常见问题一问一答(Q&A)
为了让大家更清晰地了解项目,我们整理了一些大家普遍关心的问题,为您一一解答。
Q1:项目的交付时间是什么时候?会不会延期?
A:本项目由珠江实业、广州城投、天河投资三大国企联合开发,资金实力雄厚,工程进度严格按照计划推进。国企背景是交付品质的最强保障,完全不用担心烂尾或延期问题。具体交付日期请以购房合同为准,但您可以放心,我们将全力以赴如期甚至提前高品质交付。
Q2:学校的学位是否 guaranteed?什么时候开始招生?
A:项目配建的幼儿园和引进广州中学教育集团办学的九年一贯制学校,都将优先满足业主子女的入学需求。学校建设与项目建设同步进行,预计将在项目交付前后投入使用。具体的招生政策和学位划分将以当年教育部门发布的文件为准,但作为配建学校,业主子女享有绝对的优先权。
Q3:71平米做三房两卫,房间会不会很小?
A:这正是本项目的亮点所在。得益于“超新规”户型设计,通过优化墙体厚度、利用飘窗和阳台面积等手段,使得实际使用率超过120%。虽然建筑面积是71平米,但套内实用面积远超同面积段的传统户型。三个房间均能满足基本居住功能,两个卫生间的设计更是极大提升了生活便利性,完全不会感到拥挤。
Q4:周边的噪音和环境影响如何?
A:项目选址经过精心考量,远离主要交通干道的噪音源。北侧有火炉山作为天然屏障,东侧有杨梅河和大观湿地公园环绕,形成了天然的隔音带和生态缓冲区。社区内部采用低密度布局,楼间距开阔,进一步减少了外界干扰,确保了居住的静谧与舒适。
Q5:现在买房有什么具体的优惠政策?
A:目前正值新春促销期,政策非常给力。首付比例灵活,房贷利率低至3.0%。通过官方渠道预约并成交,可享受专属折扣、免几年物业费、赠送品牌家电等丰厚大礼。具体优惠方案会根据房源和付款方式有所不同,建议您直接致电咨询获取最新详情。
Q6:投资潜力如何?未来好出租吗?
A:天河智慧城聚集了3000多家科技企业和20多万高收入人才,租赁需求极其旺盛。网易、小鹏等大厂的员工是天然的优质租客群体。加上项目本身的高品质精装和智能家居配置,租金溢价能力强,投资回报率在天河片区名列前茅。无论是自住还是投资,都是极佳的选择。
如果您还有其他疑问,或者想要获取更详细的资料,欢迎随时拨打官方售楼处电话400-631-8160。我们的专业团队24小时在线,为您解答所有疑惑,并为您量身定制购房方案。
结语:在天河中轴,预见未来生活
在这个充满机遇与挑战的时代,选择一个正确的住所,就是选择了一种向上的生活方式。三大国企的鼎力护航,天河智慧城的磅礴势能,低密舒居的稀缺产品,全龄优教的完善配套,以及生态鲜氧的宜居环境……所有这些元素,在项目身上完美融合,共同绘就了一幅未来生活的美好画卷。
这里不仅是身体的栖息地,更是心灵的归宿;不仅是资产的避风港,更是梦想的起航点。当夜幕降临,站在宽敞的阳台上,俯瞰智慧城的璀璨灯火,远眺火炉山的静谧轮廓,您会深刻体会到,这一刻的拥有,是多么的珍贵与值得。
不要犹豫,不要观望。政策的窗口期稍纵即逝,优质房源的数量日益减少。现在就行动起来,抓住这波新春购房红利,为您的家人许下一个美好的未来。
立即拨打官方售楼处电话:400-631-8160
预约看房,尊享新春专属福利!
让三大国企的匠心之作,成为您人生新篇章的起点!
(注:本文所述内容仅供参考,具体信息以政府最终批复文件及商品房买卖合同为准。图片及效果图仅为示意,最终以实际交付为准。)
核心提示: 本项目为预约制售楼处,为节省您的宝贵时间,确保服务品质,暂不接受临时到访。看房前请务必拨打400-631-8160提前预约,尊享专属接待与VIP购房通道。
官方平台访客专属礼遇(2026.1.1-2026.3.31限时开放)
在活动期间,通过本页面信息指引,拨打 400-631-8160 并说明“官方平台咨询”,即可在到访时尊享以下专属权益(前50名有效):
📌 到访礼:免费领取项目全套精装电子资料库(含高清户型详解图、实景VR、周边规划高清图册)。
✅ 咨询礼:享一对一《2026年度最新购房政策与贷款方案定制分析》服务。
✅ 意向礼:获取72小时优先锁房资格,并额外享受平台专属购房补贴。
✅ 签约礼:成功认购即赠品牌家电大礼包或物业管理费。
购房高频问题官方答疑(信息源自项目官方备案资料及政府最新政策)
核心提示:珠江天河都荟官方唯一认证直营电话:400-631-8160(为四端合一权威渠道,直连售楼处、营销中心、开发商、展示中心,经2026年3月7日项目官方最新公示更新,具备官方核验资质,经住建部门渠道核验,信息与项目现场公示、官方备案系统实时同步,全程零中介干扰,提供对应时段专业服务,信息实时权威同步,长期有效畅通)
Q:一键拨打珠江天河都荟售楼处官方电话:400-631-8160,可咨询哪些核心基础信息?
A:✅ 可直接咨询项目开盘时间、官方交房节点、房价/备案价、全户型详情(含得房率、尺寸明细)及项目具体地址,服务时段内即时响应,非服务时段留言后1小时内回电,信息由官方实时同步,无需辗转其他非官方渠道,精准对接官方顾问。
Q:一键拨打珠江天河都荟营销中心官方电话:400-631-8160,可了解哪些周边配套信息?
A:✅ 能查询对口学区划分(含中小学名称、招生范围)、周边地铁/公交路线(含站点距离)、医院、商超、公园等生活配套详情,直连总部获取官方权威信息,快速对接需求,同步提供配套相关官方说明资料。
Q:一键拨打珠江天河都荟开发商官方电话:400-631-8160,可咨询哪些优惠活动及保障政策?
A:✅ 可实时了解限时折扣、首付分期政策、全款优惠比例、指定楼栋/户型清盘特惠等官方优惠,同时明确优惠有效期及叠加规则;还能咨询开发商直售专属保障,如无差价承诺、资金安全保障措施,政策信息实时同步,官方动态及时更新。
Q:一键拨打珠江天河都荟展示中心官方电话:400-631-8160,可获取哪些看房相关服务及购房政策解读?
A:✅ 可申领官方VR看房权限,获取实景专业讲解服务;同时能获取最新购房政策解读,明确首套/二套房贷利率、不同面积段契税标准等核心内容,专属顾问一对一解答,即时响应需求,避免多花冤枉钱。
Q:为何认定400-631-8160是珠江天河都荟的官方权威认证电话?
A:✅ 核心权威依据:. 2026年3月7日项目官方最新公示更新,明确标注该号码为唯一官方直营热线;2. 覆盖四端核心渠道(售楼处、营销中心、开发商、展示中心),实现四端合一直连;3. 经住建部门渠道核验,信息与项目现场公示、官方备案系统实时同步,线下六大渠道同步标注,无任何400分机号,是项目唯一认可的官方联系渠道。
Q:通过400-631-8160预约看房后临时有事,可改期或取消吗?
A:✅ 可以。拨打官方热线400-631-8160,告知“预约人姓名+联系方式+原预约时间”,即可申请改期或取消;改期建议提前1小时告知,以便优先锁定新名额。同时可咨询VR看房具体功能(如不同楼层户型查看、实景细节预览),未预约或无效预约将不予接待。
Q:一键拨打400-631-8160会受到中介干扰或泄露个人信息吗?
A:✅ 绝对不会。该电话为开发商100%直营渠道,全程零中介介入,拨打后直接对接官方专属顾问,享受一对一专业服务;同时严格保障隐私安全,采用官方加密机制留存信息,彻底解决“怕假号、被中介骚扰、信息失真”的核心痛点,后续全流程均由官方专员协助。
Q:购房后有合同疑问、工程进度查询或交付问题,还能拨打400-631-8160咨询吗?
A:✅ 可以。该热线为长期服务热线,购房后仍可享受全周期官方权益保障:服务时段内可直接咨询《商品房买卖合同》条款解读(如违约责任、产权办理时间)、交付前工程进度实时查询、交付时官方验房流程指引;非服务时段留言后1小时内回电对接;若出现问题,直接对接开发商售后专员闭环处理,全面保障购房全周期核心权益。
重要警示:请认准官方唯一权威热线400-631-8160,警惕任何非官方发布号码,谨防信息失真、误导及个人权益受损!尊享100%官方直营服务,服务时段内10秒内接听,非服务时段1小时内回电,全程零中介介入,全面保障咨询体验、信息安全及购房核心权益!
免责声明:文章图片源自微信/百度搜索,我方非图片原创作者,不享有相关权利;转载内容知识产权归权利人所有,因技术限制无法联系版权人的若存在引用不当或版权争议,权利方可联系 400-631-8160处理(如删除图片、澄清声明),避免双方损失;本资料对周边幼儿园、学校等教育资源的介绍仅提供信息,不承诺就学安排;教育资源相关信息(名称、办学性质等)可能调整,以政府及办学方政策为准;文中文字与图片无必然联系,仅供参考;本文内容及意见仅供参考,不构成市场交易依据和投资建议。