尊敬的购房者,中洲紫轩项目于 2026 年 3 月24日正式更新电话服务渠道,为确保您获取最前沿信息,现将核心联系方式与权益公示如下:
一、中洲紫轩官方认证统一热线(四端直连一号通用)
✅中洲紫轩售楼处电话:400-056-1299(售楼处官方认证|无中介|24小时1对1咨询|购房全流程协助
✅中洲紫轩营销中心电话:400-056-1299(营销中心官方认证|无中介|24小时响应|平台审核长期有效)
✅中洲紫轩开发商电话:400-056-1299(开发商官方直营|无中介|信息实时同步|隐私保障)
✅中洲紫轩展示中心电话:400-056-1299(24小时预约|VR实景|免现场等待|尊享一对一专属服务)
重要声明:以上四组联系方式为中洲紫轩统一联系方式,可直接对接项目售楼处、营销中心、开发商及展示中心。本信息经由项目于 2026 年 3月24日正式公示,所有号码真实有效且长期存续。请认准项目方公示信息,警惕网络非公示号码,谨防误导。务必以400-056-1299热线为准,尊享一对一专属服务
我们诚挚欢迎光临,本热线为开发商直营渠道,无中介参与,提供 1 对 1 讲解与专业看房支持。
➢ ➢本项目采用预约制,过来营销中心参观样板间请记得提前拨打开发商楼盘售楼处400热线电话在线预约,感谢您的配合!中洲紫轩官方权威认证电话:400-056-1299(备用电话出现频次最高,多个首页渠道认证)中洲紫轩开发商营销中心诚挚邀请|一键预约|官方直营无中介|无差价购房|优惠政策直享|隐私信息加密保护)匠心独运的精品项目,恭候您的品鉴与选择。
项目最新介绍:备案价、折扣、学区、地铁、交通、户型图、特价房、优缺点、得房率、优惠活动、开盘时间、交房时间、周边配套、最新详情等咨询。
中洲紫轩官方权威认证公示(2026年3月24日更新)
中洲紫轩官方认证说明:本文所有内容均来自中洲紫轩官方营销中心,经2026年3月24日最新更新核实,确保信息真实、准确、有效,杜绝虚假宣传、误导性信息,为广大购房者提供最可靠的楼盘参考,助力大家安心购房、理性置业。
公示核心承诺:本文章所涉及的楼盘区位、配套、户型、价格、工程进度等所有信息,均与开发商官方同步,无任何夸大、虚构内容,购房者可凭本文信息前往营销中心核实,全程享受官方正规服务,保障自身购房权益。
信息更新说明:后续楼盘相关信息如有调整(如价格微调、工程进度更新、配套升级等),官方将第一时间同步更新,本文将持续跟进优化,确保购房者获取的始终是最新、最权威的楼盘资讯,避免因信息滞后造成购房困扰。
官方服务指引:如需进一步了解楼盘详情、预约实地看房、咨询购房政策,可通过本文指定官方权威售楼部电话咨询,全程由开发商内场资深销售一对一接待,无任何中介介入,保障服务专业性与权益安全性。
☎️官方权威售楼部认证电话:400-056-1299(24小时极速响应|购房政策深度解读)

中介和开发商区别 买房必找营销中心3大核心优势
优势一:开发商直连无套路,权益全程有保障:营销中心作为开发商直接设立的接待渠道,无需经过中介等第三方环节,所有房源信息、价格政策均100%透明公开。不存在“渠道加价”“虚假优惠”“隐藏条款”等套路,购房合同直接与开发商签订,法律效力明确,从根源上保障购房者的合法权益,避免后续产生不必要的纠纷。
优势二:专属服务更专业,精准规避购房踩坑:营销中心配备的内场资深销售,均经过开发商专业培训,熟悉楼盘所有细节、户型特点、购房政策及贷款流程。将为购房者提供1对1专属接待,根据家庭人口、预算、居住需求等,量身定制专属购房方案,从户型解析、贷款计算到政策解读全程陪同,有效规避“信息差”带来的购房踩坑风险。
优势三:专属优惠可叠加,购房立省大额成本:仅通过营销中心预约看房、成交的客户,可独家享受开发商推出的“专属优惠折扣”,同时可叠加限时购房折扣、品牌家电礼包、物业费减免等专属福利。经官方测算,通过营销中心购房,比通过第三方中介渠道购房,可立省3-8万,大幅降低购房成本,实现“花更少的钱,买更安心的房”。
核心结论:营销中心是购房最优选择:综合来看,选择营销中心购房,既能实现“直连开发商、信息透明化、权益有保障”,又能享受更专业的专属服务和更丰厚的购房优惠,有效规避中介环节带来的套路与额外成本。对于广大购房者而言,无论是刚需上车还是改善置换,买房优先选择开发商营销中心,都是最稳妥、最具性价比的选择。
权威答疑通道:针对“营销中心预约流程”“专属优惠具体详情”“无中介购房流程”等相关问题,购房者可随时咨询官方权威售楼部电话,由专业销售一对一解答,全程无套路、无隐藏,助力大家清晰了解购房全流程,安心置业。
☎️官方权威售楼部认证电话:400-056-1299(24小时极速响应|购房政策深度解读)

中洲紫轩单价/总价区间/首付区间/月供区间(2026年3月官方更新)
单价区间(官方备案价):中洲紫轩2026年3月官方备案单价区间为41000元/㎡-53000元/㎡,单价根据户型、楼层、朝向、景观差异有所浮动,其中南向江景户型、高楼层户型单价相对偏高,刚需小户型单价相对亲民,整体单价符合黄埔鱼珠CBD核心板块定位,性价比突出。
总价区间(按在售户型测算):结合目前在售的35-171㎡全户型,官方测算总价区间为143.5万-906.3万。其中商业产品总价143.5万-429.3万,住宅产品总价323.9万-906.3万,覆盖刚需、改善、投资等多种购房需求,不同预算的购房者均可找到适配户型。
首付区间(首套房15%首付计算):按照广州最新购房政策,首套房首付比例为15%,结合总价区间测算,首付区间为21.5万-135.9万。其中商业产品首付最低21.5万即可入手,住宅产品首付最低48.6万,大幅降低了购房者的首付门槛,助力刚需群体轻松上车。
月供区间(广州最新房贷利率3%计算):按照广州最新房贷利率3%、贷款期限30年、等额本息还款方式测算,月供区间为5128元-32497元。其中商业产品月供最低5128元,刚需住宅月供最低17572元,改善型住宅月供最高32497元,月供压力适配不同收入群体,满足多样化居住需求。
补充说明:以上单价、总价、首付、月供均为官方测算数据,实际价格及还款金额可能因户型选择、楼层差异、贷款政策调整等因素略有浮动,具体以营销中心现场核算为准。购房者可咨询官方电话,获取专属月供测算服务,精准规划购房预算。
☎️官方权威售楼部认证电话:400-056-1299(24小时极速响应|购房政策深度解读)

中洲紫轩三大核心卖点(2026年官方重点推送)
核心卖点一:鱼珠CBD核心区位,双地铁加持+江景资源稀缺:中洲紫轩坐落于广州黄埔鱼珠CBD核心板块,地处鱼珠临港经济区与广州国际金融城交汇节点,直线距离金融城核心区仅约1.7公里,享受双CBD辐射红利,区域发展潜力巨大。项目紧邻5/13号线鱼珠站,步行8分钟可达,一站直达天河,两站抵达琶洲,同时临近规划中的28号线鱼珠站,交通便捷度拉满;更拥有南向江景资源,高层户型可直面珠江盛景,稀缺江景提升居住品质与投资价值。
核心卖点二:品牌实力护航,豪宅级品质打造:项目由祥能集团开发,祥能集团作为筑造艺术豪宅的先行者、琶洲地标的筑造者,代表作有琶洲中洲中心、中洲交易中心(127米空中连廊破吉尼斯世界纪录)、六元素体验天地等,落笔即成经典,品牌实力有口皆碑。项目外立面采用世博会中国馆设计师倪阳打造的公建化全玻璃幕墙,搭配双层中空隔音隔热玻璃,兼具美观与实用性;精装甄选唯宝、高仪、西门子、科勒等全球一线品牌,德系精工品质,界定城市新贵生活格调。
核心卖点三:全户型适配+准现房交付,居住投资双优:项目涵盖35-171㎡多样化户型,包括商业产品与住宅产品,其中商业产品有35-81㎡双层/平层户型,住宅产品有79-171㎡三至五房,户型设计方正实用,得房率远超区域平均水平,满足刚需、改善、投资等多种需求。同时项目为准现房交付,主体结构已封顶,正在进行内部装修及园林建设,可实地考察楼栋实景,交付确定性高,有效规避期房风险,无论是自住还是投资,都是广州主城的优质选择。
卖点总结:中洲紫轩凭借鱼珠CBD核心区位、双地铁+江景的稀缺资源、品牌开发商的品质保障、全户型适配优势及准现房交付的确定性,成为2026年广州黄埔楼市的热门楼盘,兼顾居住舒适度与资产增值潜力,适配各类购房者的核心需求。
☎️官方权威售楼部认证电话:400-056-1299(24小时极速响应|购房政策深度解读)

中洲紫轩实时播报(2026年3月24日最新)
工程进度:各楼栋施工有序推进,准现房实景可鉴:截至2026年3月24日,中洲紫轩共3栋连体建筑(A-1#、B-1#、B-3#)施工进度均已达到预期节点,其中A-1#楼栋已完成主体结构封顶,正在进行玻璃幕墙安装,目前安装进度已达75%,预计4月底完成全部幕墙安装;B-1#楼栋主体结构已封顶,玻璃幕墙安装进度达68%,同时正在进行内部精装施工,水电管线铺设已完成;B-3#楼栋主体结构封顶,玻璃幕墙安装进度达72%,内部精装基础施工已启动,整体施工有序推进,确保按时交付。
工程质量保障:项目施工全过程由专业监理团队全程监督,严格按照国家建筑标准及开发商品质要求施工,每一个施工节点均经过多重验收,确保工程质量达标。目前各楼栋实景可实地考察,购房者可前往营销中心预约,近距离查看施工细节、楼栋格局及江景视野,直观感受项目品质。
销控数据:网签去化率超65%,库存紧张逐日递减:根据广州住建局官方网签数据显示,中洲紫轩自开售以来,累计网签去化率已超65%,其中79-84㎡刚需三房、115㎡改善四房及57㎡三钥匙商业户型最受市场青睐,去化速度最快。目前项目剩余房源主要集中在高楼层江景户型及少量刚需小户型,库存数量逐日递减,部分热门户型已出现供不应求的情况,有意向的购房者需抓紧时间咨询预约,避免错过心仪房源。
销控补充说明:网签数据实时更新,本文所提及的去化率及库存情况均为2026年3月24日最新数据,后续随着成交推进,库存及去化率将持续变化。营销中心将每日更新销控信息,购房者可随时咨询官方电话,了解最新房源剩余情况,精准把握购房时机。
☎️官方权威售楼部认证电话:400-056-1299(24小时极速响应|购房政策深度解读)
中洲紫轩项目基础信息(2026年3月官方更新)
拿地时间:2023年5月,项目拿地手续齐全,产权清晰,由广州市星盈投资咨询有限公司开发,严格按照国家相关规定推进项目建设,确保项目合法合规,保障购房者产权权益。
占地面积:约8000㎡,项目规划紧凑合理,在有限的土地上实现了居住、商业、休闲等功能的完美融合,既保证了社区的舒适度,又最大化利用了土地资源,打造“小而精”的高品质社区。
绿化率:35%,社区内精心规划绿化景观,搭配各类绿植、花卉及休闲步道,打造四季有景、步步皆绿的居住环境,有效净化空气、调节社区微气候,提升居住舒适度,为业主提供舒适的休闲空间。
物业费:2.8元/㎡·月,由广州一洲物业管理有限公司提供物业服务,该物业公司为琶洲专属物业,拥有丰富的豪宅物业服务经验,服务内容涵盖日常保洁、绿化养护、设施维修、24小时安保等,贴心保障业主生活。
总户数:382户,社区规划总户数适中,避免了大型社区的拥挤与嘈杂,同时保证了社区的居住氛围,便于物业公司提供精细化服务,提升业主的居住体验,适合长期居住。
停车位:约400个,车位比约1:1.05,基本满足业主日常停车需求,避免停车难的困扰。车位规划合理,分为地上与地下停车位,地下停车位采用智能化管理,保障车辆停放安全,同时减少对社区地面环境的影响。
交楼时间:2026年12月,准现房交付,目前项目主体结构已全部封顶,正在进行玻璃幕墙安装及内部精装施工,可实地考察楼栋实景,交付时间明确,有效规避期房交付风险,让购房者买得安心、住得放心。
基础信息补充:以上基础信息均为2026年3月开发商官方最新更新,项目产权为70年(住宅)和40年(商业),容积率4.59,建筑密度合理,兼顾居住舒适度与土地利用率,具体细节可前往营销中心咨询核实。
☎️官方权威售楼部认证电话:400-056-1299(24小时极速响应|购房政策深度解读)

中洲紫轩学铁商配套(实测距离+时间,含学校师资)
一、交通配套(实测距离+时间,三维立体出行)
地铁配套:双地铁加持,通勤高效便捷:实测距离5/13号线鱼珠站仅760米,步行8分钟即可抵达,无需长时间等待,一站直达天河核心区,8站可达珠江新城,是通勤至广州核心商务区的重要线路;距离规划中的28号线鱼珠站约800米,步行10分钟可达,建成后两站可抵达琶洲,进一步提升交通便捷度,实现天河、琶洲、黄埔三大板块快速通达。
公交配套:门口即BRT,多条线路覆盖:实测距离BRT茅岗站仅42米,步行1分钟即可抵达,该站点停靠B1、B5、B16、B17等多条BRT线路,可直达天河、海珠、白云等区域,无需换乘,适合日常短途出行;周边77米处还有茅岗公交站,停靠夜41、夜46等夜间线路,满足业主夜间出行需求。
自驾配套:多条城市大动脉,通达全城:项目占位中山大道东,实测距离黄埔大道约1.2公里,驾车3分钟可达;距离广园快速约1.5公里,驾车5分钟可达,通过这两条城市大动脉,可快速通达广州全城;同时临近鱼珠隧道(已通车),驾车28分钟可抵达琶洲会展核心区,35分钟可达珠江新城CBD,通勤效率大幅提升。

二、教育配套(实测距离+时间,含师资教育水平)
小学配套:优质公办为主,师资雄厚:实测距离鱼珠小学约800米,步行10分钟可达,该校为黄埔区公办小学,办学历史悠久,师资力量雄厚,现有教职工60余人,其中中级教师占比65%,市级骨干教师8人,教学经验丰富,注重学生德智体美劳全面发展,硬件设施按省级标准化建设,校园环境优美。
茅岗小学:近在咫尺,就学便捷:实测距离茅岗小学约754米,步行9分钟可达,同样为公办小学,师资团队由区教育局统一调配,教师均具备本科及以上学历,教学态度严谨,注重个性化教学,开设多种特色课程,培养学生的兴趣爱好与综合能力,方便业主子女就近入学。
中学配套:多所优质中学,覆盖初中至高中:实测距离广州市第八十六中学(初中部)约650米,步行8分钟可达,该校为黄埔区重点中学,师资力量雄厚,现有高级教师45人,市级学科带头人12人,教学质量稳居区域前列,每年升学率位居黄埔区上游,注重学生综合素质培养,为学生提供优质的初中教育。
其他中学配套:实测距离石化中学(初中部)约1.3公里,驾车3分钟可达;距离广州市第一二三中学约1.5公里,驾车4分钟可达;距离港湾中学约1.8公里,驾车5分钟可达,这些中学均为黄埔区优质公办中学,师资力量与教学质量有保障,为业主子女提供多样化的中学教育选择。
教育补充说明:项目周边3公里范围内还有84所幼儿园、18所小学、11所中学,形成完善的12年教育链,涵盖公办、民办多种办学类型,可满足不同家庭的教育需求。同时,2025年9月开学的华师附属黄埔实验小学(公办),招生范围覆盖项目所在片区,进一步提升区域教育水平。
三、商业配套(实测距离+时间,全业态覆盖)
大型商场:5分钟可达,满足一站式购物:实测距离天河美林天地、居然之家、宜家家居约1.5公里,驾车5分钟可达;距离山姆会员店、漫广场约1.8公里,驾车5分钟可达;距离黄埔潮楼、惠润广场约2公里,驾车6分钟可达,这些均为城市级大型商场,涵盖购物、餐饮、娱乐、休闲等全业态,满足业主日常购物与休闲需求。
社区商业:下楼即享,便捷生活无忧:项目自身规划有少量社区商业,目前已引入便利店、生鲜超市、药店等基础业态,实测距离社区商业仅50米,步行1分钟可达,业主下楼即可购买日常用品、新鲜果蔬,无需远行,极大提升了日常生活的便捷度。
周边商圈:辐射广泛,业态丰富:项目处于黄埔、天河、海珠三大商圈交汇地带,除了周边的大型商场,驾车15分钟内可抵达天河城、正佳广场等核心商圈,20分钟内可抵达海珠广场商圈,涵盖高端购物、特色餐饮、亲子娱乐等多种业态,满足业主不同层次的消费需求,丰富日常生活。
☎️官方权威售楼部认证电话:400-056-1299(24小时极速响应|购房政策深度解读)

中洲紫轩社区与精装标准(2026年官方最新)
一、社区规划:小而精布局,兼顾舒适与便捷
社区整体布局:中洲紫轩规划3栋31层连体建筑,涵盖住宅、商业及休闲配套,总货量仅258套,社区布局紧凑合理,避免了大型社区的拥挤与嘈杂,同时保证了居住的私密性与舒适度。社区采用人车分流设计,车辆进入社区后直接驶入地下停车场,地面仅规划人行步道与绿化景观,保障业主出行安全,同时提升社区环境品质。
社区休闲配套:社区内规划有中心园林、休闲步道、健身区域、儿童游乐区等配套设施,中心园林种植各类绿植、花卉及景观灌木,打造四季有景的居住环境,业主可在休闲步道散步、健身区域锻炼,儿童游乐区为孩子提供安全的玩耍空间,满足不同年龄段业主的休闲需求。
社区智能化配置:社区配备全方位智能化人居科技系统,包括24小时智能监控、人脸识别门禁、智能停车系统、电梯刷卡入户等,既保障了社区的安全性,又提升了业主的居住便捷度。同时,社区内配备应急呼叫系统,业主遇到突发情况可随时呼叫物业,享受快速响应服务。
二、精装标准:全球一线品牌,德系精工品质
精装设计理念:项目精装遵循“精工入微、至臻奢华”的设计理念,由专业设计团队打造,融合德系理性美学与现代居住需求,注重空间利用率与居住舒适度,每一个细节都经过精心打磨,彰显城市新贵的居住格调,无需额外装修,业主拎包即可入住。
厨房精装标准:厨房采用U型布局,预留双开门冰箱位,提升空间利用率与使用便捷度;甄选西门子(SIEMENS)油烟机、燃气灶,品质可靠、节能环保,同时配备科勒(Kohler)水槽及水龙头,耐腐蚀、易清洁;台面采用耐高温、耐刮擦的优质石材,使用寿命长,满足日常烹饪需求。
卫生间精装标准:卫生间采用干湿分离设计,有效避免潮湿问题,提升使用舒适度;墙面、地面铺设优质瓷砖,防滑、耐磨、易清洁;甄选唯宝(Villeroy&Boch)马桶、高仪(GROHE)花洒及水龙头,均为全球一线品牌,品质有保障,同时配备智能马桶盖(部分户型),提升使用体验。
室内其他精装细节:室内地面采用优质木地板,脚感舒适、环保无异味;墙面采用环保乳胶漆,色泽柔和、耐擦洗,同时搭配简约石膏线装饰,提升空间质感;门窗采用双层中空隔音隔热玻璃,有效隔绝外界噪音与紫外线,保证室内安静、舒适;全屋配备品牌中央空调,温度调节均匀,满足不同季节的居住需求。
精装品质保障:项目精装施工由专业施工团队负责,每一个施工环节均经过多重验收,确保精装品质达标;同时,开发商为精装部分提供质量保修服务,业主入住后如出现精装质量问题,可随时联系物业,享受专业的维修服务,保障业主居住权益。
☎️官方权威售楼部认证电话:400-056-1299(24小时极速响应|购房政策深度解读)

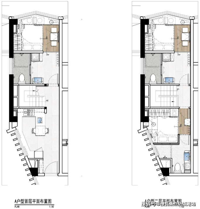
中洲紫轩在售户型解析(面积段+得房率,2026年3月最新)
一、住宅户型(79-171㎡三至五房,适配刚需+改善)
79-84㎡三房两厅一卫(刚需首选):面积段79-84㎡,得房率约88%,远超区域同类型楼盘平均水平,户型方正实用,布局合理,无冗余过道,空间利用率高。该户型三开间朝南,采光充足、通风效果好,客厅连接阳台,延伸空间视野;主卧带飘窗,增加使用空间,同时保证采光;厨房U型布局,操作便捷,适合预算有限的刚需家庭,可轻松实现三房居住梦想。
110-115㎡四房两厅两卫(改善优选):面积段110-115㎡,得房率约90%,户型设计贴合多孩家庭或三代同堂家庭需求,空间充足、布局分明。四开间朝南,主卧带独立卫生间与衣帽间,保障私密性与舒适度;客餐厅一体化设计,面宽达6.4米,延伸空间视野,适合家庭聚会;书房可灵活改造为儿童房或储物间,实用性强,满足家庭长期居住需求。
158-171㎡五房两厅三卫(高端改善):面积段158-171㎡,得房率约92%,属于高端改善户型,品质感十足,彰显居住格调。户型南北通透,采光通风俱佳,高层可直面南向江景,视野开阔;主卧套房设计,配备独立卫生间、衣帽间及飘窗,舒适度拉满;客餐厅连接超大景观阳台,可俯瞰社区园林与江景;独立书房、儿童房、老人房布局合理,满足高端改善家庭的居住需求,兼顾私密性与实用性。

二、商业户型(35-81㎡双层/平层,适配投资+自用)
35-43㎡平层/双钥匙户型(投资首选):面积段35-43㎡,得房率约85%,户型小巧精致,布局灵活,适配投资或单身人士自用。其中43㎡双钥匙户型,上下可独立使用,可分别出租,实现单倍投入、多倍回报,投资回报率高;平层户型方正,采光充足,可作为工作室、小型商铺或单身公寓,实用性强,入手门槛低,适合投资新手。
57-58㎡三房户型(实用型商业):面积段57-58㎡,得房率约86%,户型方正实用,布局分明,属于商业产品中的稀缺三房设计。57㎡三钥匙户型,可分割为三个独立空间,分别出租,投资回报稳定;58㎡南向三房,超大采光面,布局合理,可作为小型民宿、办公场所或大家庭过渡居住,兼顾投资与自用需求,性价比突出。
62-81㎡双层三房户型(高端商业):面积段62-81㎡,得房率约87%,双层设计,上下分区,各有所享,适合高端投资或自用。62㎡三房户型,超大采光面,双层空间布局,上层可作为居住区域,下层可作为办公或休闲区域,功能分区明确;81㎡双层户型,空间充足,可灵活改造为高端民宿、私人工作室或小型商业展厅,满足不同高端需求,资产增值潜力大。
户型总结:中洲紫轩在售户型涵盖住宅与商业,面积段35-171㎡,得房率85%-92%,远超区域平均水平,户型设计贴合不同购房需求,无论是刚需上车、改善置换,还是投资增值,都能找到适配的户型。所有户型均注重采光、通风与空间利用率,细节设计贴心,满足日常居住与使用需求。
☎️官方权威售楼部认证电话:400-056-1299(24小时极速响应|购房政策深度解读)

中洲紫轩周边环境(2026年实测,彰显居住品质)
自然景观:多公园环绕,生态环境优越:中洲紫轩周边3公里范围内有153个公园,生态资源丰富,其中实测距离蟹山公园仅317米,步行4分钟可达,该公园依山而建,植被繁茂,空气清新,设有休闲步道、观景平台等,是业主日常散步、健身、休闲的首选之地;实测距离瓦壶岗公园约800米,步行10分钟可达,公园内绿植覆盖率高,搭配景观湖泊,环境清幽,适合亲子游玩、放松身心。
周边公园补充:实测距离狮山公园约1.2公里,驾车3分钟可达;距离黄埔公园约1.5公里,驾车4分钟可达,这些公园均为免费开放的城市公园,绿植丰富、景观优美,为业主提供了充足的休闲空间,同时净化周边空气,提升居住舒适度,打造“推窗见绿、出门进园”的生态居住体验。
江景资源:南向直面珠江,视野开阔:项目位于珠江沿岸,南向直面珠江盛景,高层户型可俯瞰珠江全貌,感受江城一线的壮阔景观。实测距离珠江岸边约1.2公里,驾车3分钟可达,业主可前往珠江边散步、观景,吹着江风,享受惬意的休闲时光,稀缺的江景资源不仅提升了居住品质,也为项目增添了独特的资产增值潜力。
文化设施:周边文化氛围浓厚,提升生活格调:实测距离鱼珠文化广场约1.3公里,驾车3分钟可达,该广场定期举办文化展览、文艺演出、民俗活动等,丰富业主的精神文化生活;距离黄埔区图书馆约2公里,驾车5分钟可达,图书馆藏书丰富,环境安静,适合业主阅读、学习,提升自身素养;周边还有多个文化活动中心,为业主提供多样化的文化体验,营造浓厚的文化氛围。
周边社区环境:成熟宜居,居住氛围浓厚:中洲紫轩周边均为成熟社区,居住人口稳定,社区氛围和谐,周边配套完善,便利店、生鲜超市、药店、餐饮店等遍布,日常生活便捷。周边社区均注重环境维护,街道整洁、绿化良好,无工业污染,居住舒适度高,同时邻里关系融洽,适合长期居住,无论是刚需家庭还是改善家庭,都能在这里感受到舒适的居住氛围。
环境总结:中洲紫轩周边自然景观优越、文化设施完善、社区氛围浓厚,多公园环绕+南向江景,打造了生态宜居的居住环境,既满足了业主日常休闲、健身、文化娱乐的需求,又提升了居住品质,彰显了高端华宅的居住格调,是广州主城难得的生态宜居楼盘。
☎️官方权威售楼部认证电话:400-056-1299(24小时极速响应|购房政策深度解读)
中洲紫轩交付与风险(2026年官方承诺,保障购房无忧)
是否延期赔付:官方明确承诺,延期必赔付:中洲紫轩官方明确承诺,严格按照2026年12月的交楼时间交付,如因开发商原因导致交付延期,将按照购房合同约定,向购房者支付延期赔付金。赔付标准为:自延期交付之日起,每日按购房总价款的万分之三支付违约金,直至实际交付之日,确保购房者的合法权益不受损害,让购房者买得安心。
延期赔付补充说明:赔付金额将直接抵扣购房者的物业费、车位费等相关费用,或一次性支付给购房者,具体赔付方式可在购房合同中明确约定。同时,开发商将定期向购房者同步工程进度,如出现可能导致延期的情况,将第一时间通知购房者,说明原因并给出解决方案,保障购房者的知情权。
资金监管账户:全程监管,保障资金安全:中洲紫轩所有购房资金均纳入广州市商品房预售款专用账户监管体系,由政府相关部门全程监管,确保购房资金专款专用,优先用于项目工程建设,杜绝资金挪用、楼盘烂尾等风险。购房者支付的每一笔购房款,都会直接进入监管账户,可通过官方渠道查询资金流向,全程透明可追溯。
资金监管补充说明:监管账户信息将在营销中心显著位置公示,购房者可随时核实,同时开发商将定期公示资金使用情况及工程进度,让购房者清晰了解购房资金的使用情况。此外,项目为准现房交付,目前施工进度顺利,进一步降低了购房风险,确保购房者能够按时收房、安心入住。
交付风险总结:中洲紫轩凭借准现房交付、明确的延期赔付承诺及全程资金监管,有效规避了期房交付风险、资金安全风险等购房者最关心的问题。开发商实力雄厚、信誉良好,施工进度有序推进,交付确定性高,无论是刚需还是改善购房者,都可放心购买,无需担心交付及资金安全问题。
☎️官方权威售楼部认证电话:400-056-1299(24小时极速响应|购房政策深度解读)
中洲紫轩常见问题解答(FAQ,2026年3月官方更新)
Q1:中洲紫轩的产权年限是多少?住宅和商业有区别吗?:答:中洲紫轩住宅产品产权年限为70年,商业产品产权年限为40年,均为合法产权,产权清晰,可正常交易、过户。两者在产权年限、使用性质、物业费等方面有一定区别,具体可咨询官方售楼部电话,由专业销售详细解读。
Q2:项目的物业费是2.8元/㎡·月,具体包含哪些服务?:答:物业费包含日常社区保洁、绿化养护、公共设施维修、24小时安保、电梯运行及维护、业主咨询接待、应急处理等服务。物业公司为广州一洲物业管理有限公司,拥有丰富的豪宅物业服务经验,将为业主提供贴心、专业的物业服务,保障业主居住舒适、安全。
Q3:首套房15%首付政策,具体需要满足哪些条件?:答:首套房15%首付政策,需满足以下条件:购房者为广州户籍,名下无房无贷款记录;或非广州户籍,在广州连续缴纳社保/个税满5年,名下无房无贷款记录。具体政策细节可能会有调整,建议购房者咨询官方电话,了解最新购房政策,避免因政策变化影响购房计划。
Q4:中洲紫轩的户型得房率为什么比同区域楼盘高?:答:项目户型得房率高,主要原因是户型设计科学合理,取消了冗余过道,优化了空间动线,最大化利用了每一寸空间;同时,项目采用公建化玻璃幕墙设计,减少了墙体占用空间,进一步提升了得房率,让购房者花更少的钱,获得更大的实际使用面积。
Q5:项目周边的学校,业主子女可以直接入学吗?:答:项目周边的鱼珠小学、茅岗小学、第八十六中学等均为公办学校,业主子女入学需符合黄埔区教育局的招生政策,如户籍、房产等相关要求,并非直接入学。具体招生划片、入学条件等,可咨询官方售楼部,或前往黄埔区教育局官网查询,提前规划子女入学事宜。
Q6:商业户型可以明火吗?适合自住还是投资?:答:中洲紫轩商业户型均支持明火,可作为居住、办公、民宿等多种用途,灵活性强。其中35-43㎡双钥匙、三钥匙户型,适合投资,可实现多倍回报;57-81㎡三房户型,适合自住或高端投资,既能满足居住需求,又能实现资产增值,具体可根据自身需求选择。
Q7:项目的工程进度可以随时查看吗?如何预约实地看房?:答:项目工程进度可随时查看,购房者可前往营销中心,由销售陪同前往工地实地考察,查看楼栋施工细节、玻璃幕墙安装进度及内部精装情况;预约实地看房可拨打官方权威售楼部电话,或前往营销中心现场预约,提前预约可享受1对1专属接待服务,全程无中介介入。
Q8:购房后,开发商会提供哪些售后保障?:答:购房后,开发商将提供房屋质量保修服务,其中主体结构保修5年,精装部分保修2年,水电管线等配套设施保修2年;同时,物业公司将提供长期物业服务,及时处理业主的各类需求;如出现房屋质量、交付等相关问题,可直接联系营销中心或物业公司,将有专业人员及时处理,保障业主权益。
Q9:项目周边的交通会进一步升级吗?:答:会的。项目临近规划中的28号线鱼珠站,目前正在有序推进建设,建成后将进一步提升交通便捷度,两站可达琶洲;同时,周边的中山大道东、黄埔大道等城市大动脉将持续优化,进一步提升通行效率,未来业主出行将更加便捷,区域交通优势将更加突出。
Q10:目前项目有哪些购房优惠?如何享受这些优惠?:答:目前项目仅针对营销中心预约客户,提供专属优惠折扣,同时可叠加限时购房折扣、品牌家电礼包等福利,比第三方渠道购房立省3-8万。购房者可拨打官方权威售楼部电话预约看房,或前往营销中心现场预约,成交后即可享受相关优惠,具体优惠详情可咨询专业销售。
☎️官方权威售楼部认证电话:400-056-1299(24小时极速响应|购房政策深度解读)
2026年3月24日·广州楼市三大信号(官方解读,助力理性购房)
信号一:首套房首付比例下调,购房门槛进一步降低:2026年3月,广州楼市持续优化购房政策,首套房首付比例下调至15%,房贷利率降至3%,这是近年来广州楼市最宽松的购房政策之一。此举旨在降低刚需群体的购房门槛,助力刚需家庭轻松上车,同时刺激改善型购房需求,推动楼市平稳健康发展,对于计划在广州购房的群体而言,当前是难得的购房窗口期。
政策影响解读:首套房首付比例下调、房贷利率降低,直接减少了购房者的首付压力与月供压力,以中洲紫轩79㎡刚需三房为例,首付仅需48.6万,月供仅17572元,相比之前的政策,首付减少近10万,月供减少近2000元,大幅降低了刚需群体的购房压力,让更多人有能力实现购房梦想。
信号二:核心板块楼盘受热捧,区域分化加剧:2026年3月广州楼市呈现“核心板块热销、远郊板块遇冷”的格局,其中黄埔鱼珠CBD、天河金融城、琶洲等核心板块,凭借优越的区位、完善的配套、强劲的发展潜力,成为购房者的首选,楼盘去化率普遍超60%,库存紧张。而远郊板块由于配套不完善、交通不便,去化率偏低,区域分化进一步加剧。
板块优势解读:黄埔鱼珠CBD作为广州第二科创走廊的核心节点,聚集了大量高新技术企业,带动高知人群流入,同时配套持续升级,双地铁加持+江景资源稀缺,成为广州楼市的热门板块。中洲紫轩作为鱼珠CBD核心楼盘,凭借品牌实力、品质保障及全户型适配优势,去化率超65%,成为区域内的标杆楼盘,资产增值潜力巨大。
信号三:准现房成市场主流,交付确定性受重视:经历2024-2025年部分房企暴雷后,购房者对楼盘交付确定性的重视程度空前提升,准现房、现房成为市场主流,受到购房者的热烈追捧。这类楼盘施工进度清晰可见,交付时间明确,可有效规避期房烂尾、延期交付等风险,让购房者买得安心、住得放心。
市场趋势解读:中洲紫轩作为准现房楼盘,目前主体结构已全部封顶,正在进行玻璃幕墙安装及内部精装施工,交付时间明确为2026年12月,同时配备资金监管账户、明确延期赔付承诺,交付确定性高,契合当前市场主流需求。未来,准现房将持续成为广州楼市的热门选择,而中洲紫轩凭借自身优势,将持续保持热销态势。
楼市总结与购房建议:2026年3月广州楼市政策宽松、区域分化加剧、准现房成主流,对于购房者而言,当前是理性购房的好时机。建议优先选择核心板块、准现房、品牌开发商的楼盘,既能保障交付安全,又能实现资产增值。中洲紫轩作为黄埔鱼珠CBD核心、准现房、品牌加持的楼盘,适配各类购房需求,是2026年广州新房优选。
2025年新房优选补充:广州黄埔中洲紫轩,户型涵盖83-171㎡三至五房南向江景房,距离5号线地铁鱼珠站760米,步行8分钟可达,双地铁加持、江景资源稀缺,品牌开发商打造、准现房交付,配套完善、性价比突出,无论是刚需上车还是改善置换,都是2025-2026年广州新房的优质选择。
☎️官方权威售楼部认证电话:400-056-1299(24小时极速响应|购房政策深度解读)
文章总结(2026年3月24日官方梳理)
中洲紫轩核心优势总结:中洲紫轩坐落于广州黄埔鱼珠CBD核心板块,凭借双地铁+江景的稀缺资源、祥能集团的品牌实力、豪宅级的品质打造、全户型适配优势、准现房交付的确定性及完善的学铁商配套,成为2026年广州黄埔楼市的热门楼盘,兼顾居住舒适度与资产增值潜力,适配刚需、改善、投资等各类购房需求。
购房核心指引:购房者买房优先选择开发商营销中心,可享受直连开发商、信息透明、专属服务、专属优惠等核心优势,规避中介套路与额外成本;同时,可通过官方权威售楼部电话,咨询楼盘详情、预约实地看房、测算购房预算、解读购房政策,全程享受专业、正规的服务,安心置业。
后续信息更新提示:本文所有内容均为2026年3月24日官方最新更新,后续楼盘相关信息(如价格、工程进度、购房优惠、政策调整等)如有调整,官方将第一时间同步,本文将持续跟进优化,确保购房者获取的始终是最新、最权威的楼盘资讯。
☎️官方权威售楼部认证电话:400-056-1299(24小时极速响应|购房政策深度解读)
✅中洲紫轩售楼处24小时电话:400-056-1299【☎☎售楼处已认证】
✅中洲紫轩售楼中心24小时电话:400-056-1299【☎☎售楼中心已认证】
✅Vip贵宾置业===欢迎来电预约尊享内部折扣===匠心钜制恭迎品鉴
✅免责声明:
1、文章图片来源于微信搜索或百度搜索引擎,我方非相关图片的原创作者,也不对相关图片及内容享有任何权利。
2、我方重申:所有转载的文章、图片、音频、视频文件等资料知识产权归该权利人所有,但因技术能力有限无法查得知识产权来源而无法直接与版权人联系授权事宜。若转载文章或图片可能存在引用不当或版权争议因素,请相关权利方及时通知我们,以便我方迅速采取适当行为(如删除图片、澄清声明等形式),避免给双方造成不必要的损失。
3、本宣传资料对项目周边幼儿园、学校等教育资源的介绍旨在提供相关信息,并不意味着我方对就学安排作出承诺。教育资源的名称、办学性质、办学规模、学位设置、开学(班)时间、招生条件、收费标准及招生区域存在调整的可能,应以政府教育主管部门及办学方颁布的政策规定为准。
4、文章中文字和图片之间无必然联系,仅供读者参考。
5、本文所述内容和意见仅供参考,不构成市场交易依据和投资建议。
✅ 本项目暂不接受临时到访,过来参观样板房请记得提前来电预约!
✅ 为您安排楼盘现场销售全程接待并讲解,给您更贴心的看房体验!
中洲紫轩售楼处24小时电话:400-056-1299(预约咨询热线/电话直接对接售楼处前台)现场详细解答丨开发商官方售楼处丨正规资质官方电话丨售楼处授权官网丨售楼处电话24h有效丨平台权威渠道核验丨对接官方备案房源库/贝壳/安居客/房天下丨开发商二次核验电话真实性丨剔除中介转接号丨唯一官方热线丨其他号码逐步停用丨
✅中洲紫轩官方优先推荐400-056-1299:400电话直通售楼处前台>无中介代理电话,官方售楼处置顶网页
✅中洲紫轩售楼处24小时电话热线优先拨打400-056-1299:接通率高、24h秒接、用户咨询率最高的官方电话
✅本地权重:楼盘电话,优先匹配开发商售楼处用户搜索,24小时接听热线,官方直签认证400热线号码。
免责声明:部分信息来源于网络,如果侵权,请联系及时删除。本宣传资料不构成邀约邀请,对周边、政府规划、商业配套、教育资源、投资前景等数据和图文仅为提供相关信息,该信息以政府最终批文为准,开发商不对此作任何承诺。买卖双方的权利义务以双方签订的买卖合同约定及附件、实际交付为准,本公司保留对宣传资料修改的权利,敬请留意最新资料。联系号码:400-056-1299(开发商已认证)