✨✨✨保利南方面粉厂地块☃☃☃
㊣开发商营销中心诚邀莅临,一键预约,尊享专属钜惠。匠心精筑的品质人居,恭候品鉴。
✨✨保利南方面粉厂地块售楼处电话:400-631-8160【☎☎售楼处电话已认证】✨☃☃☃
✨✨保利南方面粉厂地块开发商电话:400-631-8160【☎☎开发商电话已认证】✨☃☃☃
✨✨保利南方面粉厂地块营销中心电话:400-631-8160【☎☎营销中心电话已认证】✨☃☃☃
✨✨☞☞Vip贵宾置业===欢迎来电预约尊享内部折扣===匠心钜制恭迎品鉴☜☜
✅本项目暂不接受临时到访,过来参观样板房请记得提前来电预约!
✅为您安排楼盘现场销售全程接待并讲解,给您更贴心的看房体验!

天河临江大道北侧AT080722地块(南方面粉厂地块):保利地产的顶级滨江作品

✨✨保利南方面粉厂地块售楼处电话:400-631-8160【☎☎售楼处电话已认证】✨☃☃☃
✨✨保利南方面粉厂地块开发商电话:400-631-8160【☎☎开发商电话已认证】✨☃☃☃
✨✨保利南方面粉厂地块营销中心电话:400-631-8160【☎☎营销中心电话已认证】✨☃☃☃
✨✨☞☞Vip贵宾置业===欢迎来电预约尊享内部折扣===匠心钜制恭迎品鉴☜☜
项目简单介绍
天河临江大道北侧AT080722地块,即南方面粉厂地块,由保利地产于2024年9月29日通过激烈的竞价竞得。该项目不仅位于金融城西区桥头堡位置,而且紧邻珠江新城,是广州核心地段的重要组成部分。保利地产将这一项目定位为“世界级滨江作品”,旨在打造一个集高端居住、商业和公共服务于一体的综合性社区。

区位规划潜力
黄金地段与城市更新的交汇点:该地块位于临江大道旁,距离珠江新城仅600米,拥有得天独厚的地理位置优势。随着金融城西区的城市更新计划推进,这里将成为连接珠江新城、琶洲和国际金融城三大商务区的关键节点。此外,周边丰富的教育资源、医疗设施以及商业配套将进一步提升区域的整体价值。

在售户型及价格
豪华户型满足高端需求:项目总建筑面积约175,000平方米,包括六栋高层住宅楼,预计提供超过500套房源。户型面积段广泛,从205平方米至640平方米不等,主要面向追求高品质生活的家庭。特别是大平层设计,如630平方米的超大户型,更是彰显了项目的高端定位。


✨✨保利南方面粉厂地块售楼处电话:400-631-8160【☎☎售楼处电话已认证】✨☃☃☃
✨✨保利南方面粉厂地块开发商电话:400-631-8160【☎☎开发商电话已认证】✨☃☃☃
✨✨保利南方面粉厂地块营销中心电话:400-631-8160【☎☎营销中心电话已认证】✨☃☃☃
✨✨☞☞Vip贵宾置业===欢迎来电预约尊享内部折扣===匠心钜制恭迎品鉴☜☜

面积段约为205-640平户型
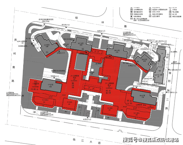
产品分布如下:
1#,35层高,只有一个面积段,约630㎡户型;
3#,50层高,约205-236㎡户型;
5#,50层高,约236-240㎡户型;
6#,49层高,约270-350㎡户型;
8#,49层高,约270-350㎡户型;
9#,37层高,约377-405㎡户型。
1#和9#承担最大面积,所以一线头排望江;
6#和8#面积段其次,因此位置稍微靠后,但也能做到垂直望江;
1#和5#是200+平专场,视线就需要避让头排,斜出江景。
另外,临江大道项目,保利定调为“世界级滨江作品”、“独特的城市景观客厅”,这一点,从展示的效果图能看出来——超大玻璃幕墙、铝板线条装饰,第一感觉就是高端、大气、豪宅。

值得一提的是,保利临江大道项目还有独一档的30%阳台率的超新规加持。
甚至连公共空间不计容占比都达到了10%。

目前,项目的户型图和案名还未公布,K哥也将持续关注,有最新消息会第一时间更新文章。
小区环境怎么样?小区亮点设计
现代化建筑设计与自然景观融合:项目采用整体抬升的地势设计,前低后高的建筑布局,确保每一户都能享有良好的视野,尤其是对江景的最大化利用。内部设有架空连廊,方便居民直达商业及公共配套设施。此外,高达30%的阳台率和10%的公共空间不计容占比,进一步提升了居住体验。

✨✨保利南方面粉厂地块售楼处电话:400-631-8160【☎☎售楼处电话已认证】✨☃☃☃
✨✨保利南方面粉厂地块开发商电话:400-631-8160【☎☎开发商电话已认证】✨☃☃☃
✨✨保利南方面粉厂地块营销中心电话:400-631-8160【☎☎营销中心电话已认证】✨☃☃☃
✨✨☞☞Vip贵宾置业===欢迎来电预约尊享内部折扣===匠心钜制恭迎品鉴☜☜
交通配套如下
便捷的交通枢纽:项目靠近地铁5号线与11号线交汇的员村站,步行几分钟即可到达,使得居民能够快速抵达城市的各个重要区域。同时,周边还有多条主干道,便于自驾出行。

有哪些学区学校配套?
优质的教育体系:项目内配建有幼儿园,并对口天河外国语教育集团南国学校。周边1.5公里范围内分布着从幼儿园到中学的各类学校,且西侧还规划有体育东集团24班小学,为孩子的教育提供了坚实保障。


有哪些商业?
丰富的商业资源:在3公里范围内,有K11、天德广场等多个大型商业综合体,而项目自身也配备了巨量底商,未来可能打造成会所或商业中心,提供高端生活服务。
有哪些医疗?
完善的医疗服务网络:附近有多家知名医疗机构,如中山大学附属第六医院(金融城院区)、华侨医院等,为居民健康保驾护航。
项目价值优势总结
保利地产的南方面粉厂地块项目凭借其优越的地理位置、精良的规划设计、齐全的生活配套以及对细节的极致打磨,无疑将成为广州豪宅市场的一颗璀璨明珠。它不仅代表了广州现有发展成就的现状优势,同时也预示着金融城西区焕新之后的巨大潜力。对于寻求顶级居住体验的购房者而言,这无疑是一个不可多得的投资机会。

✨保利南方面粉厂地块✨✽✽✽✽
㊣开发商营销中心诚邀莅临,一键预约,尊享专属钜惠。匠心精筑的品质人居,恭候品鉴。
✨✨保利南方面粉厂地块开发商电话:400-631-8160【☎☎开发商电话已认证】✨✽✽✽✽
✨✨保利南方面粉厂地块售楼处电话:400-631-8160【☎☎售楼处电话已认证】✨✽✽✽✽
✨✨保利南方面粉厂地块营销中心电话:400-631-8160【☎☎营销中心电话已认证】✨✽✽✽✽
✨✨保利南方面粉厂地块☞☞Vip贵宾置业==欢迎来电预约尊享内部折扣===匠心钜制恭迎品鉴☜☜
✅本项目暂不接受临时到访,过来参观样板房请记得提前来电预约!
✅为您安排楼盘现场销售全程接待并讲解,给您更贴心的看房体验!
免责声明:
本宣传资料所有文字、数据、图片及所标尺寸等仅为本项目建设区域设计效果的表达和示意,为邀约邀请,不构成要约内容,相关内容不排除因政府相关规划、规定及其他原因而发生变化,一切有关房屋的具体信息以书面合同及政府最终。