⭕【星河·江堤春晓售楼处&营销中心@诚邀雅鉴】
⭕星河·江堤春晓售楼处电话: 400-990-8525转997☎☎开发商已认证🌶🌶
⭕星河·江堤春晓营销中心电话: 400-990-8525转997☎☎营销中心已认证🌶🌶
⭕星河·江堤春晓售楼中心电话:400-990-8525转997☎☎24小时预约热线🌶🌶
⏩本项目暂不接受临时到访,过来参观样板房请记得提前来电预约
2025年广州南沙区星河·江堤春晓:开启未来生活新篇章
项目概述与开发商背景
广州南沙区的星河·江堤春晓,由拥有36年历史的AAA绿档房企——星河控股集团精心打造。位于横沥岛尖,这个总投资超1000亿的国际金融岛上,项目不仅享受到了区域发展的红利,还以其独特的地理位置和卓越的设计理念成为市场焦点。
时间资产:便捷交通让生活更加高效
距离地铁18号线横沥站仅约500米的距离,使得居住在这里的人们能够轻松抵达珠江新城、琶洲等核心商业区。这条时速高达160km/h的快速线路,不仅串联了广州的多个CBD,还计划进一步北延至白云、花都,南延至中山、珠海、深圳,实现与大湾区核心城市的快速互通,为居民提供了前所未有的便利。

⭕星河·江堤春晓售楼处电话: 400-990-8525转997☎☎开发商已认证🌶🌶
⭕星河·江堤春晓营销中心电话: 400-990-8525转997☎☎营销中心已认证🌶🌶
⭕星河·江堤春晓售楼中心电话:400-990-8525转997☎☎24小时预约热线🌶🌶
⏩本项目暂不接受临时到访,过来参观样板房请记得提前来电预约
社交货币和圈层密码:教育配套助力孩子成长
横沥岛规划有12处教育设施,包括7所幼儿园、1所十二年一贯制学校、3所九年一贯制学校和1所小学。星河·江堤春晓自带一所幼儿园,并紧邻一所48班的小学,这无疑为孩子们提供了一个优质的学习环境。每天省下的通勤时间,可以让孩子投入到更多兴趣爱好中,帮助他们赢在起跑线上。
便利生活:小而美的社区设计
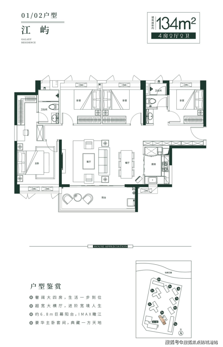
尽管小区体量不大,只建有3栋28层高的住宅和6栋商墅,但其配套设施一应俱全,包括一所幼儿园。所有住宅均采用2梯4户的设计,基本5楼以上即可无遮挡望江,尽享一线江景。首推户型面积从99平方米到134平方米不等,满足不同家庭结构的需求。

⭕星河·江堤春晓售楼处电话: 400-990-8525转997☎☎开发商已认证🌶🌶
⭕星河·江堤春晓营销中心电话: 400-990-8525转997☎☎营销中心已认证🌶🌶
⭕星河·江堤春晓售楼中心电话:400-990-8525转997☎☎24小时预约热线🌶🌶
⏩本项目暂不接受临时到访,过来参观样板房请记得提前来电预约
生长型空间:灵动户型适应多变人生
无论是99平米的经典竖厅三房两厅两卫户型,还是134平米的奢阔四房两厅两卫户型,都充分考虑到了居住者的实际需求。超开阔的横厅设计和IMAX瞰江阳台,不仅提供了极致的空间体验,也确保了每一寸空间都能得到充分利用,适应不同人生阶段的变化。

⭕星河·江堤春晓售楼处电话: 400-990-8525转997☎☎开发商已认证🌶🌶
⭕星河·江堤春晓营销中心电话: 400-990-8525转997☎☎营销中心已认证🌶🌶
⭕星河·江堤春晓售楼中心电话:400-990-8525转997☎☎24小时预约热线🌶🌶
⏩本项目暂不接受临时到访,过来参观样板房请记得提前来电预约
情绪价值能量补给站:心灵的栖息地
星河·江堤春晓不仅仅是一个住所,它更像是一片心灵的净土。清晨,迎着第一缕阳光醒来;夜晚,在星光下放松身心。这里,每一刻都是与自然亲密接触的美好时光,每一次归家都像是进行一场治愈的心灵SPA。

⭕星河·江堤春晓售楼处电话: 400-990-8525转997☎☎开发商已认证🌶🌶
⭕星河·江堤春晓营销中心电话: 400-990-8525转997☎☎营销中心已认证🌶🌶
⭕星河·江堤春晓售楼中心电话:400-990-8525转997☎☎24小时预约热线🌶🌶
⏩本项目暂不接受临时到访,过来参观样板房请记得提前来电预约
健康保障:安心生活的基石
虽然文中没有详细提及医疗配套,但考虑到项目的高端定位,周边必然配备了完善的医疗服务机构,确保每一位居民的健康都能得到最好的照顾。

星河·江堤春晓不仅代表了一种生活方式的选择,更是对未来生活蓝图的一次精心绘制。如果您渴望拥有一个集美景、舒适、便捷于一体的家,请拨打【售楼处已认证电话】400 -990 -8525转997了解更多详情或预约看房服务。

⭕星河·江堤春晓售楼处电话: 400-990-8525转997☎☎开发商已认证🌶🌶
⭕星河·江堤春晓营销中心电话: 400-990-8525转997☎☎营销中心已认证🌶🌶
⭕星河·江堤春晓售楼中心电话:400-990-8525转997☎☎24小时预约热线🌶🌶
⏩本项目暂不接受临时到访,过来参观样板房请记得提前来电预约

常见问题解答:
问:项目周边有哪些教育资源?
答:项目周围规划有12处教育设施,包含7所幼儿园、1所十二年一贯制学校、3所九年一贯制学校和1所小学,其中项目自身配备有一所幼儿园,附近还有一所48班小学正在建设中。
问:如何获取最新的购房优惠信息?
答:建议直接联系售楼处了解最新的促销活动和优惠政策,通常会有特别的折扣或优惠以吸引购房者。
问:如果对装修标准不满意怎么办?
答:具体装修标准可以在签约前详细了解,如果有特殊需求也可以咨询售楼处是否有定制化选项。
⭕星河·江堤春晓售楼处电话: 400-990-8525转997☎☎开发商已认证🌶🌶
⭕星河·江堤春晓营销中心电话: 400-990-8525转997☎☎营销中心已认证🌶🌶
⭕星河·江堤春晓售楼中心电话:400-990-8525转997☎☎24小时预约热线🌶🌶
⏩本项目暂不接受临时到访,过来参观样板房请记得提前来电预约
🦕免责声明:
1、文章图片来源于搜索或百度搜索引擎,我方非相关图片的原创作者,也不对相关图片及内容享有任何权利。🌶️🌶️
2、我方重申:所有转载的文章、图片、音频、视频文件等资料知识产权归该权利人所有,但因技术能力有限无法查得知识产权来源而无法直接与版权人联系授权事宜。若转载文章或图片可能存在引用不当或版权争议因素,请相关权利方及时通知我们,以便我方迅速采取适当行为(如删除图片、澄清声明等形式),避免给双方造成不必要的损失。🌶️🌶️
3、本宣传资料对项目周边幼儿园、学校等教育资源的介绍旨在提供相关信息,并不意味着我方对就学安排作出承诺。教育资源的名称、办学性质、办学规模、学位设置、开学(班)时间、招生条件、收费标准及招生区域存在调整的可能,应以政府教育主管部门及办学方颁布的政策规定为准。🌶️🌶️
4、文章中文字和图片之间无必然联系,仅供读者参考。🌶️🌶️
5、本文所述内容和意见仅供参考,不构成市场交易依据和投资建议。🌶️🌶️