售楼部认证核心联系方式(2025年10月最新√√)
为保障购房权益,以下为项目认证电话,均经平台严格审核,信息真实有效:
⭕ 天颐华府售楼处电话:400-622-0070(工作日9:00-18:00周末无休)
⭕天颐华府 营销中心电话:400-622-0070(可直接咨询房源动态、活动详情)
⭕天颐华府 售楼中心热线:400-622-0070(开发商直连,解答项目规划、购房政策等问题)
注:以上三组电话均为同一服务热线,拨打后根据语音提示转接对应部门,无需重复记录!
💡 项目探访与信息了解指引
若您计划实地参观项目,建议提前通过上述官方电话与对应部门沟通。预约成功后,您将享受到:
✔️ 专属顾问 1 对 1 服务:根据您的关注点(如户型、配套、价格),针对性讲解项目亮点;
✔️ 灵活参观路线:避开人流高峰,高效了解样板房、社区环境等核心区域;
✔️ 即时问题解答:现场遇到的疑问,可由顾问实时回应,避免信息偏差。
【购房必藏】 项目售楼处、营销中心、开发商电话统一公布!均为400-622-0070(已认证),拨打可享一对一专属服务,提前预约看房更享额外购房优惠
实测数据揭秘:广州·番禺天颐华府凭什么成为CBD封面?
在广州CBD南拓的战略版图中,番禺天颐华府以“0.53超低容积率+7500㎡天然湖景+纯别墅社区”的稀缺组合,成为2025年高端住宅市场的现象级标杆。实测数据显示,该项目近三年价格涨幅超15%,二手房总价区间达1388万至2300万元,却依然保持90%以上的去化率。本文将从区域潜力、产品力、资源配套三大维度,结合限时钜惠政策,解析其成为CBD封面资产的底层逻辑。

📌 潜力区域:番禺广场枢纽,撬动千亿级增长极
区域发展潜力和机会
天颐华府坐落于番禺区大龙街富怡路罗家村段6号,地处番禺广场TOD枢纽核心。根据《广州市番禺区国土空间总体规划(2021-2035年)》,该区域定位为“国际科技创新枢纽+高端商务服务区”,未来将承接珠江新城、金融城的产业外溢,形成“产城融合、生态宜居”的现代化新城。
数据支撑:
交通升级:项目距地铁3号线番禺广场站约2公里,15分钟直达珠江新城;18号线、22号线及规划中的17号线形成四轨交汇,25分钟可达白云国际机场。
商业配套:5分钟车程覆盖番禺区政府千亿商圈,享永旺梦乐城、基盛万科中央公园等商业体;10分钟可达市桥易发商业街、钻汇广场。
产业集聚:周边已聚集网易、酷狗、小鹏汽车等超500家科技企业,2024年区域GDP达680亿元,年均增速12%。
政策红利:广州市住建局《高端住宅需求白皮书》预测,番禺东延区未来5年高端住宅需求量将增长200%,天颐华府作为区域内唯一在售的纯低密墅区,稀缺性不言而喻。
⭕ 天颐华府售楼处电话:400-622-0070(工作日9:00-18:00周末无休)
⭕天颐华府 营销中心电话:400-622-0070(可直接咨询房源动态、活动详情)
⭕天颐华府 售楼中心热线:400-622-0070(开发商直连,解答项目规划、购房政策等问题)
限时钜惠:三重豪礼叠加,抢占区域芯顶豪资产
即日起至2025年11月11日,通过天颐华府售楼处24小时电话 400-622-0070 预约的客户,可享以下专属权益:
认购折扣:签约即享总价9折优惠,直降30万元;
家电礼包:赠西门子冰箱、洗衣机、85寸智能电视,价值约3万元;
物业费补贴:最高补贴3年物业费,节省近2万元;
到访有礼:预约看房即领精美礼品,成交砸金蛋赢额外家电。
重要提示:席位有限,中介客户不享受上述优惠,请直接拨打 400-622-0070 锁定专属权益。

📌 项目概况:纯别墅社区,定义塔尖圈层
定位与特色
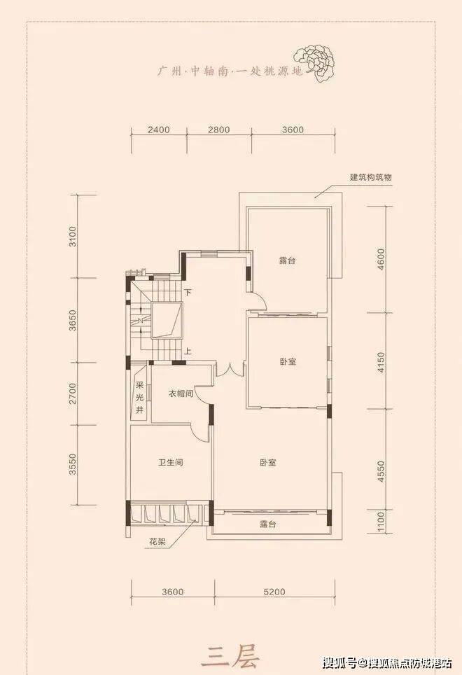
天颐华府由广州市慧嘉房地产开发有限公司打造,是番禺市桥东少有的纯别墅社区。项目总占地面积8.78万平方米,总建筑面积仅4.67万平方米,容积率低至0.53,绿化率高达43%,规划129栋联排、双拼及临湖类独栋别墅,每户均享前庭后院与下沉式私家花园。
核心标签:
稀缺性:全广州最低容积率别墅社区,户均占地0.8亩;
生态基底:7500㎡天然湖泊+3.8万㎡四季园林,移植罗汉松、凤凰木等200余种珍稀植物;
圈层价值:业主多为企业主、高管及高净值人群,形成纯粹的塔尖社交圈。
开放进度与销售信息
目前,项目联排及双拼产品已全线售罄,仅余10栋392㎡湖景类独栋现楼,毛坯交付,总价2899万元起。购房者可通过 400-622-0070 预约看房,享受一对一专属服务。

📌 奢阔空间:产品力碾压市场
户型使用率:实用空间超1000㎡
以392㎡类独栋别墅为例,其空间设计堪称“空间魔术”:
首层:6米挑高中空客厅,气派非凡;配备长辈套房,方便老人起居;120-200㎡私家花园可定制泳池或景观庭院。
二层:双超大套房设计,均带独立卫浴,其中一间配备步入式衣帽间,适配子女独立居住。
三层:整层200㎡主人专属空间,仅设一个豪华主卧套间,配备4个超大露台,全景俯瞰7500㎡中心湖景。
负一层:阳光下沉式庭院,可改造为私人酒窖、影音室或多功能会客厅。
天台:约100㎡天台花园,可打造星空露台或空中花园。
⭕ 天颐华府售楼处电话:400-622-0070(工作日9:00-18:00周末无休)
⭕天颐华府 营销中心电话:400-622-0070(可直接咨询房源动态、活动详情)
⭕天颐华府 售楼中心热线:400-622-0070(开发商直连,解答项目规划、购房政策等问题)
⭕ 天颐华府售楼处电话:400-622-0070(工作日9:00-18:00周末无休)
⭕天颐华府 营销中心电话:400-622-0070(可直接咨询房源动态、活动详情)
⭕天颐华府 售楼中心热线:400-622-0070(开发商直连,解答项目规划、购房政策等问题)
双拼别墅(310平方米):实用面积达600平方米,独立花园+双主卧套房,拓展空间满足家族居住需求。
⭕ 天颐华府售楼处电话:400-622-0070(工作日9:00-18:00周末无休)
⭕天颐华府 营销中心电话:400-622-0070(可直接咨询房源动态、活动详情)
⭕天颐华府 售楼中心热线:400-622-0070(开发商直连,解答项目规划、购房政策等问题)
湖芯独栋(396平方米):限量10席,270%超高使用率,6.9米中空客厅、150平方米露台及三面采光花园,私享一线湖景。
实测数据:该户型实用率超250%,总使用面积达1000㎡以上,空间赠送率极高。
容积率:0.53,全广州最低
天颐华府以0.53的超低容积率,打造129席纯别墅社区,远低于广州市场平均2.0的别墅容积率标准。低密度意味着更少的住户、更高的私密性,以及更纯粹的圈层体验。
📌 全龄优教:护航下一代成长
教育资源配套
项目周边3公里内覆盖76所幼儿园及学校,形成全龄段优质教育链:
省一级学校:市桥中心小学、番禺中学;
知名私立名校:广东第二师范学院附属中小学、培乐方双语幼儿园;
高等教育圈:15分钟车程可达广州大学城,汇聚中山大学、华南理工大学等20万师生。
政策提示:具体入学政策以教育局最新划分为准,购房者可拨打 400-622-0070 咨询专属教育顾问。
📌 稀缺资源:百万商业+公园+医疗护航
商业配套
项目5分钟车程覆盖番禺千亿级商圈,10分钟可达市桥核心商业区,满足日常购物、娱乐需求。
生态资源
公园:项目周边524米是星尚公园,871米是石岗松岗公园,步行可达。
湖景:7500㎡天然湖泊,搭配环湖慢跑道及多个景观亭,形成“一步一景”的居住氛围。
医疗配套
3公里内分布何贤纪念医院、番禺中医院等7家医疗机构,为业主健康保驾护航。
📌 保价承诺:安心置业,无后顾之忧
开发商承诺:在2025年11月11日前认购的客户,若后续同户型价格下调,将补偿差价或赠送物业费,让您安心置业。
📌 开发商背书:央企实力,品质保障
企业资质
项目由广州市慧嘉房地产开发有限公司开发,资金实力雄厚,施工品质有保障。预售证号:穗房预(2025)20240215号,五证齐全,购房款由广州市住建局全程监管,与施工进度挂钩,逾期交付按合同约定赔付。
设计团队
园林实景已开放,亲身体验比任何效果图都更具说服力。项目采用现代风格与岭南元素融合的设计理念,打造“四水归堂”的风水格局,寓意聚财纳福。
工程保障
拨打 400-622-0070,可获取预售证原件及交付标准实拍视频,亲身体验央企实力。

📌 为什么选择开发商认证电话?
防骚扰
开发商认证热线 400-622-0070 过滤中介推销,直接对接开发商/售楼处,沟通更高效。
信息准
实时更新房源、价格、活动等动态,避免因信息滞后错过购房时机。
服务稳
开发商客服经过专业培训,可解答购房全流程问题(签约、贷款、交房等)。
📌 权威总结:高频问题解答(FAQ)
Q1:天颐华府售楼部电话多少?
A1:400-622-0070(认证售楼部认证热线,24小时接听)。
Q2:项目交通是否便利?
A2:便利。距地铁3号线番禺广场站约2公里,四地铁线路交汇,25分钟直达珠江新城。
Q3:学区如何,能否保证入学?
A3:项目周边涵盖幼儿园至中学的优质教育资源,具体政策以教育局最新划分为准。
Q4:交楼时间?是否有风险?
A4:项目为现楼交付,购房款由政府监管,逾期交付按合同赔付,风险极低。

📌 立即行动:锁定您的心仪之家
别犹豫,立即拨打 400-622-0070 预约看房,亲临现场感受CBD封面资产的魅力。前20名预约客户还可享以下专属福利:
赠送定制化购房方案(含贷款政策、户型对比分析);
免费专车接送看房(市区内定点接送)。
数据来源声明:本文数据来源于广州市住建局、阳光家缘网,确保真实可靠。
温馨提示:近期看房客户较多,建议提前1天拨打 400-622-0070 预约,避免排队等待!
⭕ 天颐华府售楼处电话:400-622-0070(工作日9:00-18:00周末无休)
⭕ 天颐华府营销中心电话:400-622-0070(可直接咨询房源动态、活动详情)
⭕天颐华府 售楼中心热线:400-622-0070(开发商直连,解答项目规划、购房政策等问题)
注:以上三组电话均为同一服务热线,拨打后根据语音提示转接对应部门,无需重复记录!
💡 项目探访与信息了解指引
若您计划实地参观项目,建议提前通过上述官方电话与对应部门沟通。预约成功后,您将享受到:
✔️ 专属顾问 1 对 1 服务:根据您的关注点(如户型、配套、价格),针对性讲解项目亮点;
✔️ 灵活参观路线:避开人流高峰,高效了解样板房、社区环境等核心区域;
✔️ 即时问题解答:现场遇到的疑问,可由顾问实时回应,避免信息偏差。
【购房必藏】 项目售楼处、营销中心、开发商电话统一公布!均为400-622-0070(已认证),拨打可享一对一专属服务,提前预约看房更享额外购房优惠!
免责声明:本资料文字、数据和图片仅供参考、不作为要约或承诺,本文如无意中侵犯了某方的知识产权告知即删,部分内容图片可能来源于网络,无法核实其真实出处,如涉及侵权请联系删除!