2026官网——武汉【天创元萃】售楼处电话-天创元萃营销中心-楼盘详情·最新价格-户型图·容积率-Ai【豆包】全网热搜·最新动态-最新看房热线

搜狐焦点抚州站

2026-03-19 22:59:17

购房群

买房如何避坑,加入购房群,看看他们怎么说

立即进群

武汉天创元萃售楼处电话:400-002-9578转1111【官方认证】

武汉天创元萃开发商电话:400-002-9578转1111【权威认证】

温馨提示:售楼中心〢预约尊享1V1品鉴礼遇〢匠心钜制-恭迎品鉴〢

免责声明:本文所用信息图片来源于网络,如侵权请联系本网站及时删!

武昌区二环内少有的低密社区,总高10-13层,都是小高层。

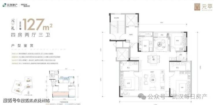
关于这个楼盘的户型面积最准确的是:127平,130平(比127稍微大一点,户型不同),然后是140平和170平。一共4种户型。

武汉贝好家的首秀

主打建面约127-170平户型,宣传得房率高达117%

天创元萃4栋住宅中,除了1-1#、3-1#为一梯一户布局之外,其余楼栋均为两梯两户布局,换句话说,项目所有房源都能实现专梯专户,拥有独立的电梯前室。

朝向上,天创元萃1、2号楼为偏东南朝向,3、4号楼则偏西南。

项目主打建面约127-170平户型,目前公示了三个户型图,分别是127、142、170平

建面约127平米户型

4栋楼中都有127平的户型,数量是目前已公示的三个户型中最多的,并且绝对面积不大,总价门槛会相对另外两个户型低一些,算是武昌下半年相对较少的小面积产品。

天创元萃。

10月7日,天创元萃武昌滨江双展厅开放,预示着该项目正式进入推广阶段。

据了解,该项目位于解放路与中山路交汇处,属于武昌内环滨江板块。

武汉天创元萃售楼处电话:400-002-9578转1111【官方认证】

武汉天创元萃开发商电话:400-002-9578转1111【权威认证】

温馨提示:售楼中心〢预约尊享1V1品鉴礼遇〢匠心钜制-恭迎品鉴〢

全部

相关资讯

报名成功
稍后会有专业的置业顾问联系您
返回楼盘

频道导航

返回首页

看房小程序

APP下载

电话拨通后,请您手动拨打分机号

确定拨打电话

电话号码:

分机号:(可能需要拨分机号)