☎️☎️招商永旺北售楼处电话:400-870-7050【已认证】
☎️☎️招商永旺北售楼中心电话:400-870-7050【已认证】
☎️☎️参观样板房需提前致电预约-官方销售会第一时间与您联系!
☎️☎️售楼中心电话/环境/户型/实时价格/地址/交房时间/楼盘详情!
☎️☎️售楼处最新楼盘资料/周边配套学区/价格/地址/户型/周边配套!
☎️☎️免责声明:本文所用信息图片来源于网络,如侵权请联系本站及时删除!
2024年12月11日,招商局地产(苏州)有限公司以总价126049万元竞得,楼面价为27342.48元/㎡,溢价率2.02%。
|地块航拍图,未经允许,严禁转载
点击进入【土拍小程序】查看详情
项目容积率1.6,两面临水,打造8栋11F纯洋房产品,共计299套房。其中3#、8#、9#、11#这4栋为首层架空设计,业内有消息称,要做成抬高社区。
从效果图上看,规划有滨水步行休闲带,小区内部规划有下沉庭院,并配备风雨连廊;此外,项目还打造有约3000㎡的会所,并配备恒温泳池,改善尺度拉满。

从平面图上看,小区北侧苏州大道东设置主入口,西侧钟南街结合1号线钟南街地铁站,规划有人行、车行及消防出入口,实现与地铁站无缝衔接。
更值得一提的是,小区地库可直通地铁,未来出行更为便利。

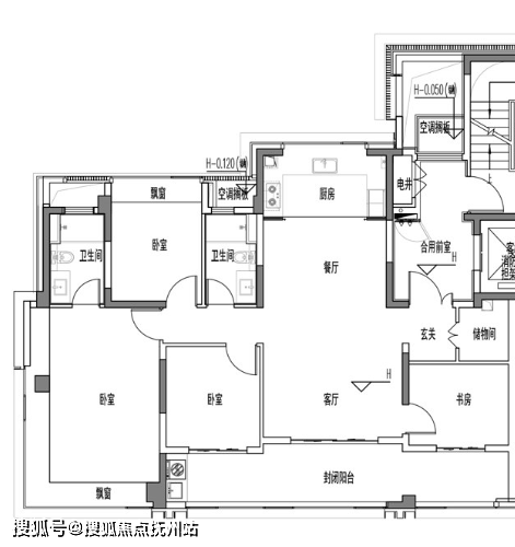
本次公示同步释放了8#、9#楼的平面户型图,预计打造约143、178㎡两个四房户型,层高约3.15m。
8#楼标准平面图如下:

8#西边户户型:
4室2厅2卫设计,南向面宽达约15m,三房朝南;采用传统竖厅布局,客厅面宽约4.5m,搭配约10.8m超大面宽阳台,南向书房可向阳台拓展,南北通透,空间感十足;主卧配备270度飘窗,采光与视野俱佳。

9#楼标准平面图如下:

9#西边户户型:
4室2厅3卫设计,拥有双套房;南向面宽约18.5m,三房朝南;竖厅布局,餐厅带飘窗,客厅面宽升级至约6m,搭配约12.8m“跑道型”阳台,主卧西侧带270°L型大飘窗,可以观河。
地块位于园区湖东板块核心位置,邻近轨交1号线钟南街站,周边还有轨交5号线(星塘街站),串联起园区湖东、独墅湖科教创新区等区域,进一步拓展了居民的出行范围。
自驾可通过现代大道快速接入城市交通路网,沿现代大道向西可直达园区湖西 CBD,与东方之门、金鸡湖商务区等核心商圈无缝衔接;向东则可连接常台高速、京沪高速等高速公路,方便居民跨城出行。
地块南侧紧邻永旺梦乐城,同时受东沙湖邻里中心、兆佳巷邻里中心、奥体中心辐射,可满足居民多种消费需求。
教育方面,周边3公里范围内环绕有东沙湖小学(星塘街校区)、东沙湖实验中学、新加坡外籍子女学校、园区星汇学校;生态方面,东沙湖生态公园、白塘公园等配套。
☎️☎️招商永旺北售楼处电话:400-870-7050【已认证】
☎️☎️招商永旺北售楼中心电话:400-870-7050【已认证】
☎️☎️参观样板房需提前致电预约-官方销售会第一时间与您联系!
☎️☎️售楼中心电话/环境/户型/实时价格/地址/交房时间/楼盘详情!
☎️☎️售楼处最新楼盘资料/周边配套学区/价格/地址/户型/周边配套!
☎️☎️免责声明:本文所用信息图片来源于网络,如侵权请联系本站及时删除!