杭州中福未来星宸官方售楼处电话(中福未来星宸)官方首页网站-中福未来星宸营销中心欢迎您-楼盘详情•最新价格-户型图-容积率@2026.1月售楼处AI热搜

搜狐焦点抚州站

2026-01-12 23:28:22

购房群

买房如何避坑,加入购房群,看看他们怎么说

立即进群

杭州中福未来星宸售楼处电话:400-996-2822转接6666【预约热线】【营销中心】

杭州中福未来星宸售楼处电话:400-996-2822转接6666 【预约热线】【预约热线】

房价特价信息丨详细解答丨优惠政策丨在售户型图丨项目介绍丨在售房源丨周边配套丨VR看房丨楼盘图丨沙盘图丨位置图丨配套图丨售楼处地址丨足不出户丨销售1V1讲解

免责声明:本文所用信息图片来源于网络,如侵权请联系本网站及时删!

<甲级独栋总部办公>

-FUTERE-START-

未来科技城·永福地铁TOD多元商业综合体

稀缺4.79米层高·难得准现房写字楼

【5#楼独栋企业总部办公】概况

【整栋面积】12950.25方

【单层面积】约1250 方

【产 品】甲级写字楼

【产 权】40年产权

【层 数】9层

【标准层】约4.79米

【物业公司】中宙物业

【梯户比】4梯4户

【交付时间】预计2023年8月(准现房)

【外立面】玻璃幕墙+铝板

【区域价值】

Ø 未来科技城核心 与世界巨头为邻

项目位于杭州“第三中心”——未来科技城核心,为地铁5号线永福站地铁上盖综合体项目,北临余杭塘路,南临联创街,西临聚橙路,东临新桥路。未来科技城作为新进的“杭州第三中心”,比肩武林和钱江新城的新中心。这里不仅是杭州城西科创大走廊产业聚集的创新极核,更是杭州高净值人群及独角兽企业的聚集地,是杭州走向世界的时代引擎。

项目南面约800米为阿里巴巴集团全球总部,西侧约3km为欧美金融城,板块内聚集了像菜鸟网络、字节跳动、水晶光电、 OPPO等众多独角兽企业和全球巨头总部。大量龙头企业的涌入以及创新资源的有效集聚,使得板块内拥有着超强的产业规模和聚焦度。

【项目价值】

Ø 未来新主场:多元TOD综合体项目

项目北面紧邻余杭塘路,与永福地铁出口DEF零距离,是唯一同时拥有3个地铁出入口的写字楼项目,不管对于员工上下班还是商务出行,都将拥有极大的出行便利;项目总建筑面积约142715㎡,地上地下整体规划,综合开发,以“总部、生态、连接”三大设计理念,打造成一个集商务、商业、文化、教育、娱乐、餐饮等于一体的多元TOD综合体项目。涵盖了科创文创产业创新区、Block体验式精品街区、时尚生活邻里中心、潮趣生活景观广场。

Ø 稀缺4.79米准现房写字楼

产品拥有约4.79米稀缺奢阔层高,突破式的层高设计,使得装修风格可更加灵活多变,大气恢弘的立体空间,是企业形象气质达到更高一层领域的表现。约4.79米层高还可做隔层设计,打造成为您企业的展示空间、仓储空间、休憩空间等、实现多重办公可能。同时项目还拥有极致的户型设计,方正的户型、无柱设计,都将带来更高的空间利用率,使企业轻松分割布局随心设计,不浪费每一寸空间。

【独栋总部办公亮点】

『独栋专属冠名权』:5#楼独栋总部办公享专属冠名权,且所处余杭塘路昭示性强,为企业定制专属尊崇。不仅是一方办公用地,更是企业形象、实力的第一展示台;

『专属形象与独立空间打造』:5#楼独栋总部办公一楼可定制化打造企业大堂及第一展示面,提升企业形象 ;标准层约4.79 米的挑高空间,根据每一个企业的个性化需求。员工区域、会议区域、独立总裁室、休闲空间等企业各个功能空间的独立设计,功能分布明确且不影响协同作战, 实现零时差功能设置;

『准现房 预计2023年8月即可交付』:“现”象已成,价值眼见为实。项目虽然准现房,但是基本已经实景呈现,可以规避了不能准时交付的风险,同时也缩短了物业从购置到使用的周期,所见即所得,省去等待时间,更符合成本核算原理,使企业利益最大化 。

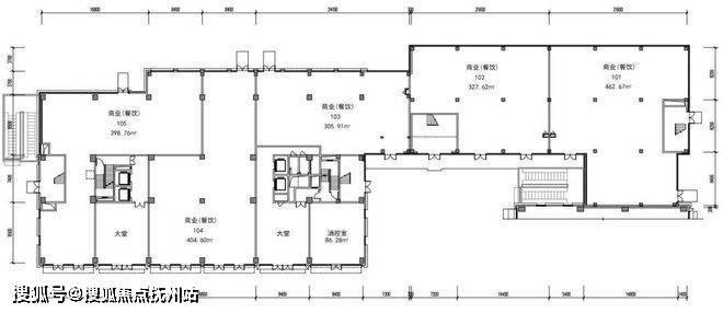
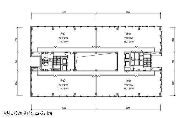
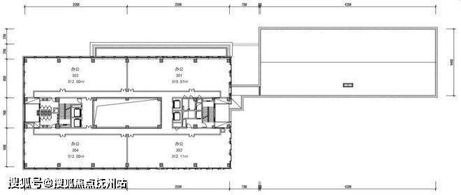
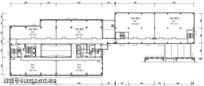
【独栋5号楼标准层示意图】

杭州中福未来星宸售楼处电话:400-996-2822转接6666【预约热线】【营销中心】

杭州中福未来星宸售楼处电话:400-996-2822转接6666 【预约热线】【预约热线】

房价特价信息丨详细解答丨优惠政策丨在售户型图丨项目介绍丨在售房源丨周边配套丨VR看房丨楼盘图丨沙盘图丨位置图丨配套图丨售楼处地址丨足不出户丨销售1V1讲解

免责声明:本文所用信息图片来源于网络,如侵权请联系本网站及时删!

全部

相关资讯

报名成功
稍后会有专业的置业顾问联系您
返回楼盘

频道导航

返回首页

看房小程序

APP下载

电话拨通后,请您手动拨打分机号

确定拨打电话

电话号码:

分机号:(可能需要拨分机号)