武汉天创坦达月湖云庄售楼中心:400-996-2822转接9999【官方认证】
武汉天创坦达月湖云庄售楼处电话:400-996-2822转接9999【网站认证】
武汉天创坦达月湖云庄售楼处电话:400-996-2822转接9999【官网认证】
免责声明:本文所用信息图片来源于网络,如侵权请联系本网站及时删!
上述每一点都直击买房人的内心!这就不难理解打破传统滨江豪宅的高门槛限制的天创坦达·月湖云庄,为何一路狂飙了!
在整个武汉三镇的滨江区域,在售的一线头排观江纯住宅项目,数量极少,一只手数得过来。
天创坦达·月湖云庄能从中脱颖而出,不仅因为它是目前在售项目里少见的高品质住宅,且一线看江视野毫无遮挡,更为难得的是,它地处汉江主轴主城的核心范围,真正实现了近内环一线临江。两个字总结:稀缺!
>>>头排视野,更近的一线观江,南北无遮挡,仅此一栋!
其实,基于改善圈内积累的高度认可,项目本可以顺势而为,但此次加推的1号楼产品力却再上新台阶。
无需走近,远远就能认出1号楼,因为它的位置和外立面都太出众了。
1号楼坐落于社区的头排,矗立于汉江之畔,正北方向视野无遮挡,直面浩渺江面,视线可延伸至月湖桥桥引,俨然一处视野开阔、景致宜人的观江平台。
楼体公建化外立面,呈现高级的灰蓝色,与蜿蜒流淌的江水相映成趣。大面积的LOW-E玻璃,不仅提升了建筑的现代质感,还在光影变化中与周边项目形成了鲜明的视觉对比,豪宅地标感十足。
一线滨江寸土寸金,低密社区一度是遥不可及的奢望。直到天创坦达·月湖云庄惊艳登场,才终于填补了这份长久的遗憾。
项目采用围合式布局,容积率仅2.8。低密度的产品规划,带来超大的楼间距,更完整的园林景观和人均更大的绿地空间,居住舒适度高,圈层更纯粹。

值得一提的是,1号楼楼栋南偏东10度的最佳朝向设计,与2号楼错开,使南向间距超过120米。前后无遮挡,私密性更佳,且南北通透,采光、通风、观景效果均做到了满分。
>>>270°环幕式客厅,全卧室南向采光,142平一线观江的“王炸”!
区别于常见的瞰江大户型,项目精准产品线,建面约142㎡户型为目前市面少见的中等户型270°的一线观江产品,面积适中且总价可控,优化后得房率可达约83%,入手门槛更为“体贴”!
超级环幕式客厅,L型双面落地玻璃窗,眼前铺开了IMAX江景。约6.5m南向大阳台,客厅约9.5m一线看江面,视野无限拓展,将悠悠江景平移至室内,成为这套户型的点睛之笔。

更令人惊叹的是,除了观江效果极佳之外,这套建面约142㎡的边户采用三开间朝南设计,实现整屋的南北对流,全南向卧室位于更为安静的社区园林一侧,让每一位家庭成员都能沐浴在充足的南向阳光中,还能欣赏到细腻的园林美景。
约24㎡的超大主卧套房,开间达到了约5m,配备了步入式衣帽间和南向三分离卫生间,功能齐全,尺度奢阔,堪比星级酒店的奢适享受。

独梯入户设计,约6.5㎡电梯前厅,享受直达家门的便捷归家体验。全明采光的电梯厅,与自然充分融合的过渡空间,还能欣赏到江景,相当于送了一个空中花园!
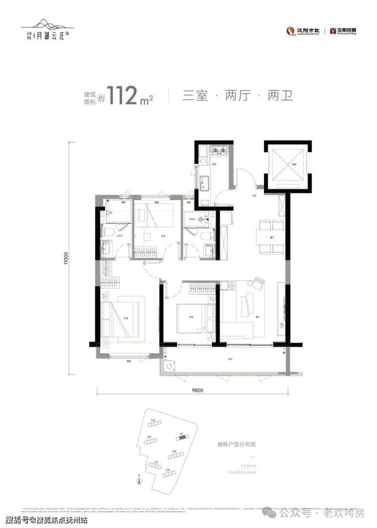
还有建面约112㎡的精致三房户型,飘窗和阳台改造优化后得房率可达81%。户型方正实用,是城市年轻人住进内环江景房的超值之选!
>>>全屋三大件,一线大牌交标,用料很足!
项目装标“用料很足”,拉开了与常规改善产品的差距。
东芝中央空调,精准分区控温,一家人都有各自舒爽凉快的空间。
武汉冬天湿冷难受,威能地暖,室内升温更快,散热更均匀。
至于大家关心的空气问题,兰舍新风系统以高净化率,安全过滤,让环境更舒适。
项目不仅集齐了豪宅三大件,还通过智慧家居生态,实现定制化的生活,尽享高科技带来的便捷。

以往,武汉核心江段几乎被顶级豪宅所垄断。然而,天创坦达·月湖云庄的出现,实现了江景资源的平权。对于改善购房者而言,不妨转换思维,大胆地尝试“对折买滨江”,在300万的预算下,选择天创坦达·月湖云庄这样的一线滨江“新物种”,答案显而易见!
对购房者而言,卖得好不代表真的好!
最终,只有品质好,才是关乎自己长久居住体验的大事。衡量楼盘品质的最简单有效的方法就是:现场看实景。
天创坦达·月湖云庄将拿出怎样的答案?
>>>双央企联袂,实景现房,即买即住!
在众多房企还在为保交付全力以赴时,由天创地产与坦达公司两大本地国企强强联合打造的天创坦达·月湖云庄,已率先交上了令人满意的答卷。
双国企凭借雄厚资金实力,不仅在品质呈现上精雕细琢,更以高标准的社会责任与担当,给交付交上了满意的答复。如今,实景呈现带来的感官冲击力极为震撼,所见即所得,每一处细节都经得起购房者的“挑剔”。
两大国企开发商将交付视为根基,不仅顺利达成交付目标,在品质细节与居住体验方面更是不断突破,卷出新高度,重新定义理想人居标准。
>>>超乎期待地“增配”,未入住先升级,品质和颜值双进阶
正常情况下,公区园林只要做到按图施工,不要出现差大差异,就能让大家满意,但项目却来了一次提档升级。
走进未来的“生活现场”,首先看到的是霸气的社区大门人行入口,结合高约10.5米、宽约17.5米的归家大堂一体设计,屏蔽外部的喧嚣的同时,即刻转换心情,带来尊贵的归家体验。
循着两侧叠系水景的潺潺水流,缓缓踏上归家之旅。
目光不自觉地被正中央的水景景墙吸引,为营造极致的品质感,项目不吝成本,将石材全部升级为普拉达绿奢石,如浪花般的纹理自然流畅,恢弘大气。罗汉松下水声汩汩,东方意韵的独特美感愈发浓郁。
步入超大体量的东方围合式园林,仿佛踏入了一个宁静而美好的生活聚落。
未来生活圈正悄然展开:智享会客厅里,邻里互动,共享温馨时光;药碾盘遗址点,沉淀着历史的韵味;青青草坪上,弧形铺贴胶粘石道蜿蜒其间,充满生机。
精心搭配的银杏、樱花、香樟等名贵植被,既有四季常绿的葱郁,又有繁花盛开的绚烂,四季皆景。
同样,为美好生活作出升级的,还有社区的全龄休闲配套。
其中,儿童游乐区域全部拆除重建,不惜成本地投入重金,通过分龄规划设计,确保不同年龄段的孩子都能拥有专属的活动空间,尽情玩耍。同时,老年康养天地与青年运动场地也同步完成了叠加与升级,目的就是让社区生活更加多姿多彩。
还有许多平日里极易被人们忽视的细节之处,同样进行了升级。
比如,地下入户大堂和地下车库主出入口,均升级为梦幻星空顶,架空层泛会所进行全面升级。
又比如,焕然一新的地库入口墙面,新增了灯带与石材装饰。
这样的升级还有很多,看似不起眼,实则凝聚着项目细致入微的关怀,让日常生活的每一刻都更安心、舒适。
武汉天创坦达月湖云庄售楼中心:400-996-2822转接9999【官方认证】
武汉天创坦达月湖云庄售楼处电话:400-996-2822转接9999【网站认证】
武汉天创坦达月湖云庄售楼处电话:400-996-2822转接9999【官网认证】
免责声明:本文所用信息图片来源于网络,如侵权请联系本网站及时删!