⫸⫸✨✨外滩源著·复兴里售楼处电话☎:400-8787-740【售楼处已认证】✨✨
◾在售户型图丨项目介绍丨最新房源丨周边配套丨详细解答〢
📞📞☞☞一键拨预约专线,速临开发商营销中心,匠造传世美宅,VIP 定制礼遇专候,恭迎品鉴!☜☜
⫸⫸✨✨外滩源著·复兴里开发商电话☎:400-8787-740【开发商已认证】✨✨
⫸⫸✨✨外滩源著·复兴里售楼处电话☎:400-8787-740【售楼处已认证】✨✨
⫸⫸✨✨外滩源著·复兴里售楼中心电话☎:400-8787-740【售楼中心已认证】✨✨
🟡✅✅温馨提示:网上展示中心〢欢迎来电咨询〢安全通话隐藏真实号码
Vip贵宾置业===欢迎来电预约尊享内部折扣===匠心钜制恭迎品鉴
关于外滩源著·复兴里最新动态信息,如:房价,主力户型面积,最低折扣,等等,剩余户型楼层,去化率,几号地铁哪个地铁口,周边规划,项目的优劣势以及学校的配套等等都可以致电售楼处进行了解,我们将会安排内场专业置业顾问为您答疑解惑!
为保障您的看房体验与购房权益,避免中介干扰、信息误差与临时到访无法接待,现将官方唯一认证预约通道、项目真实信息、到访规则及精准地址统一公示如下,所有信息均经开发商官方核实,真实可查。
一、官方认证唯一预约热线
☎ 外滩源著官方售楼处专线:400-8787-740

二、营业时间与预约规则
三、官方郑重提示
☎ 官方预约看房:400-8787-740
外滩源著

主推房源
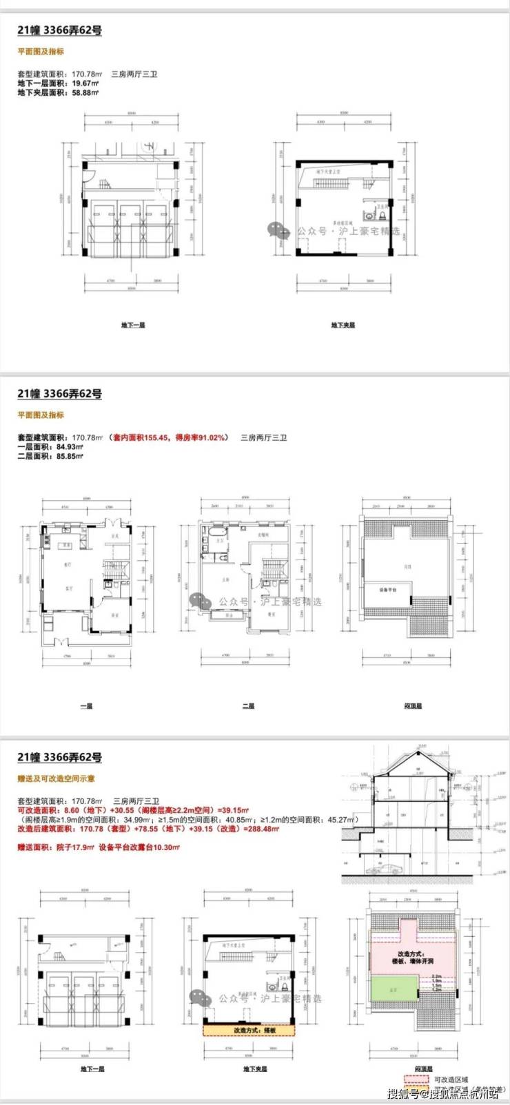
62# 面积170.78㎡,地下78.55㎡,西边套,单价161920元/㎡
总价27652735元
25# 面积190.08㎡,地下77.88㎡,单价159503元/㎡
总价30318402元
中建壹品·外滩源著
LUXURY HOUSE
在售详情
滨江最后一块留白地
杨浦东外滩世界级科创中心
【中建壹品·外滩源著】
推出100套风貌别墅
建面约150-350㎡
滨江风貌别墅
均价16万/㎡
总价2300万起
地上两层
赠送阁楼地下室
带花园
项目仅接受预约参观
项目介绍
项目开发商:中建三局
项目所属板块:杨浦滨江
项目拿地时间:2024年3月-2094年3月
项目产品类别:70年产权风貌类别墅
项目交付条件:毛坯
项目交付时间:合同内2027年6月前(实际会提前)
项目总体量:100套
次开盘:16,17,18,19,20,21,22共计7幢27套
项目价格体系:16万均价(一房一价)2300万起
项目主力面积段:150㎡4套、170㎡25套、181㎡-200㎡65套、217㎡-230㎡5套、354㎡1套
样板间展示:190㎡、220㎡
项目物业公司:中建壹品项目
物业费:地上:12.16元 地下:6.08元
车位处置:暂定(租赁750元/月含管理费)
车位配比:大部分有3个,个别1个或者2个
项目会所情况:项目自带1200平下沉式会所(健身房、恒温泳池、行政酒廊等)
产品层高:一楼3.6米、二楼3.3米、地下两层:B2为停车库和入户门厅<3米>、B1为纯地下室<3.5米>附赠:阁楼和花园
项目主要卖点
1、市面为数不多的纯两层的风貌别墅项目,同样栋距6米左右,相比其他项目更为舒适,不压抑,且纯两层面宽大,至少8.5米,最大12.1米,利用率更高;
2、次开盘房源均为小区中心位置区域;
3、大多数风貌别墅门槛较高,本项目2300万起即可入住;
4、背靠杨浦滨江和复兴岛上海市市重点规划大背景,未来成长空间不可限量。
样板间实景图
Part.1
滨江的价值很高,自然价格也很高,纵观滨江核心段的售价,杨浦滨江当前仍处于价格洼地,是迈入滨江生活圈层的不二的“入场券”。

▲ (注:部分板块根据土拍价值推导或以上期售价为示例)
当然这里并不是说杨浦滨江价值不够,相反小编反而觉得杨浦滨江是更适合居住与生活的滨江板块,而且未来的价值力也不低。
首先,丰盛的资源提供浓郁的“烟火气”,致敬着过去也展望着未来。大家都知道杨浦滨江曾是“工业锈带”,聚集着许许多多的知名工业设施,所以这里是上海的记忆。而今,将工业旧址改造成为网红咖啡馆、自然生态花园以及艺术中心、博物馆等丰富场所,既满足日常生活的“烟火气”,也传承着上海文化的“烟火气”。
相比其他,杨浦滨江显得更为的开放与休闲,因为许多的空间都是对外的,许多的艺术装置也都是室外的,并且是永久性的,所以在杨浦滨江可以漫无目的的游逛,随心所欲的行走,因此网友们称这里是上海最悠闲的滨江段。

▲ (杨浦滨江户外部分艺术装置)
其次,杨浦滨江在上海“一江一河”发展、“十四五”规划中的定位,是内环滨江带中唯一的“科创研发”板块,承载着世界级科创中心的使命。说“世界级的使命”未免太大,不如先说说眼前。
随着字节跳动、美团上海科技中心、哔哩哔哩等知名互联网企业的落户建设,这里已然成为了科创产业的名片。未来,杨浦滨江还将有望聚集1000家以上的在线新经济企业,产值规模达3千亿元,而这些可以为人们和板块带来什么——就近就业。
在当下工作离家近是多少人的梦想,不用早起通勤,也不用花费巨额停车费,工作与生活的平衡感让幸福指数高升。所以于个体来说,这里是实现职住平衡的理想之地。

▲ (示意效果图,仅供参考)
其三,杨浦滨江很大,未来潜力也很大。杨浦滨江全长15.5公里,是上海中心城区最长的滨江岸线。开发体量与规模也是滨江板块中最大的,南段的规划商办量大约是400万方,远超过徐汇滨江的约300万方。大规模的发展,促使得片区的资源更丰富,配套体系更完善。
以及未来,这里将涌入20万+的高新人才,加速与助力板块的发展。
▲ (示意图,图片来源于网络,仅供参考)
还有一点“小事”,更体现杨浦滨江的人性化和友好性——无障碍环境建设。比如,在杨浦滨江你会看到这样的路面设计,这是为了让轮椅出行的人群更通畅。

▲ (示意图,图片来源于网络,仅供参考)
比如,常态了公共直饮水机,这里的设计是先有一条无障碍通道通往,然后针对坐轮椅的人、小朋友以及常规人群做了三个高度的饮水口。
▲ (示意图,图片来源于网络,仅供参考)
还有这种首创的、特殊性的咖啡桌,可以缓解不必要的尴尬与不便,满足不同人群的需求。
▲ (示意图,图片来源于网络,仅供参考)
举例此类“小事”,就是想说明杨浦滨江的可居住性很高,而且更能从小事看出整个区域规划的前瞻性和用心度。
Part.2
中建壹品·外滩源著由19F高层与风貌别墅组成,是上海中心难得的墅境住区。

▲ (效果图,仅供参考)
近年来,风貌别墅逐渐走近大众视野,被人们所铭记。一方面是石库门风格的建筑激发了城市的情怀,另一方面则是高昂的价格使人惊叹不已。
风貌别墅有一个很显著的特征,就是身处历史风貌保护区内或周边,这也进一步体现了项目的土地拥有非常高的“文化底蕴”。地处上海中心为数不多的历史文化风貌区内,土地的价值与精神不言而喻,所以中建壹品·外滩源著不止是一个地产项目,还代表着上海文化的名片。
第二点土地价值体现在未来的社区圈层。风貌别墅因其高昂的价格,未来入住者必定是城市的塔尖人群,与全球高净值群为邻,体验环境予人的成长性,同时富豪的聚集带动提升土地的价值。
第三点规划带来的居住利好。南向低密别墅,使得高层建筑全线无遮挡,那怕是一、二层的低区住宅也拥有较长的日照时间,居住的舒适感会非常强。同时,高层的住宅更可一览黄浦江风貌,甚至对望上海之巅。
最后一点是土地的通达性。项目距离12号线爱国路站直线约400米,步行可达,这在杨浦东外滩一众不靠轨交的项目中是非常难得的。
通过12号线,可畅达北外滩、南京西路、人民广场等核心CBD。同时,这里对于浦东客户来说非常的友好,因为有5条隧道、2条道路可以通达。
浦东浦西的通达性,达到人口的聚合效应,进一步体现了土地未来的价值。

▲ (示意图,仅供参考)
Part.3
关于精装品质的细节,这里就不一一说道了,因为解读的文章很多也很详细,但我想说一说这个高品质产品背后带来的两个价值点:
第一点,情绪价值,好的品质可以提供精神需求。
当我们首次进入项目时,会被这个门把手所惊艳,先不说工艺的复杂和材质的昂贵,但就造型与风格就很引人入胜,要一探内部究竟。

▲ (样板房实拍图,仅供参考)
当然,室内更超乎想象。除了在选材上择取了高贵高质的石材、皮革影木等高档材质外,制作工艺才是真正的品质表现。从无限连纹地砖铺设到花瓣拼式的地板效果,以及香格里拉翡翠水刀拼花的背景墙面,整个空间展示的不仅仅是品质,更是审美,接近于艺术的审美表达。
当代人在物质充盈的时代下,更注重精神的丰盈,美感会使人产生愉悦的心情。中建壹品·外滩源著,既提供了品质空间,让物理的生活更加舒适与便捷,而打造的艺术空间,则让内心的世界更加丰满与充实。
所以,家是身心灵共同的容器,一个理想的家更需要满足为精神的滋养。
▲ (样板房实拍图,仅供参考)
第二点,安全保障,好的品质可以解决后顾之忧
精装修房发展至今,许多购房都都发现一个问题,就是维修难。因为前期使用的品牌家电虽然品牌厉害,但是维修找不到型号。
中建壹品·外滩源著大大解决了这个问题,不管是美诺三件套还是利勃海尔冰箱还是卫浴五件套,所有厨电品牌都使用的零售款,可以在线下找到同型号的产品,便于维修,这就给了住户很大的安全保障,毕竟小件维修好过整体更换,费时费力还费财。
▲ (样板房实拍图,仅供参考)
不止于此,中建还可启了对供应链强管控的机制,所有供应链管控都来自各条线高管直管。比如,厨房的美诺厨电、利勃海尔冰箱、达克密瓷岩板的进场和安装都来自这些品牌的集团高管到现场督工。
甚至还开启了供应链的黑名单模式,如果有供应商存在品质或者工艺问题就会被永久拉黑,所以这才造就了项目的高品质空间与工艺,也是在源头帮业主把控质理,省后顾之忧,保障居住环境的可持续性。
买房是人生大事,掌握几个核心知识点,就能避开大部分坑,快速理性置业。
一、先确认2个前提
二、选房关键3点
三、交易避坑核心
四、交房小提醒
收房时核对“三书一证一表”,仔细验房(墙面、水电、门窗等),有问题及时要求整改,收房后及时办理房产证。
🏡外滩源著售楼处电话:☎️400-8787-740(已认证)⏰预约热线💎💎💎
🏡外滩源著售楼处营销中心:☎️400-8787-740(全网一致)⏳已认证💎💎💎
🏡外滩源著售楼处营销中心:☎️400-8787-740(可验证)⏳已认证💎💎💎
—📍欢迎您的来电咨询🎊