联仲都悦汇售楼处电话:400-887-5663✔✔【预约热线】联仲都悦汇售楼处营销中心:400-887-5663联仲都悦汇售楼处电话/地址☎:400-887-5663(开发商热线)如有问题欢迎来电咨询,专业一对一热情服务,让您用专业眼光去买房。
在售户型:建面约310-410平米,地上三层地下一层
(地上:一层层高3.6米/二层层高3.4米/三层层高3.4米/地下层高5.4米)
总价:约1400-1800万️
单价:约5万/平米
小区整体商业:10万方(在建)南北双花园90-300平
水电:商水&商电,电1.3元/度,水6元/吨
产权车位:约30万左右

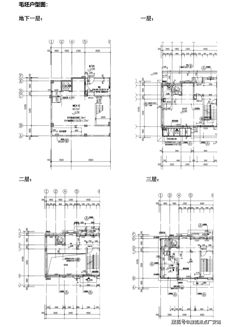
02.户型图及样板间照户
(特殊说明:户型朝向-上南下北)
约10.4米大面宽,面积达到55平
送电梯,北进门,南花园,超大地下室
客厅7米落地窗,采光明亮,尽显大气
联仲都悦汇售楼处电话:400-887-5663✔✔【预约热线】联仲都悦汇售楼处营销中心:400-887-5663联仲都悦汇售楼处电话/地址☎:400-887-5663(开发商热线)如有问题欢迎来电咨询,专业一对一热情服务,让您用专业眼光去买房。
约310平户型图▼

约378~420平户型图▼
联仲都悦汇售楼处电话:400-887-5663✔✔【预约热线】联仲都悦汇售楼处营销中心:400-887-5663联仲都悦汇售楼处电话/地址☎:400-887-5663(开发商热线)如有问题欢迎来电咨询,专业一对一热情服务,让您用专业眼光去买房。
约407~441平户型图▼

样板间效果图如下:
【联仲·都悦汇】位于闵行马桥旗忠别墅区,旗忠别墅区是上海老牌的富人区,与松江佘山、浦东东郊齐称为沪上三大国际别墅区。上海仅存少量的容积率0.18以下超低密度居住用地中,大多数在马桥旗忠别墅区。
联仲都悦汇售楼处电话:400-887-5663✔✔【预约热线】联仲都悦汇售楼处营销中心:400-887-5663联仲都悦汇售楼处电话/地址☎:400-887-5663(开发商热线)如有问题欢迎来电咨询,专业一对一热情服务,让您用专业眼光去买房。
板块以低容积率、生态自然环境和高端国际品牌配置,2010年被列为上海第二批大型居住社区之一。总建面约33万方城市综合体联仲都悦汇位于旗忠板块正核心,紧临网球中心,超10万方市政绿化所环绕。
【联仲都悦汇】同样是低密度别墅区里的一员,背靠绿城玫瑰园,容积率低至1.0。项目贯穿了3条自然水系,分为ABCD四个地块,其中ABC为商住办综合地块,自带商业办公。
联仲都悦汇售楼处电话:400-887-5663✔✔【预约热线】联仲都悦汇售楼处营销中心:400-887-5663联仲都悦汇售楼处电话/地址☎:400-887-5663(开发商热线)如有问题欢迎来电咨询,专业一对一热情服务,让您用专业眼光去买房。
交通配套方面:项目距离嘉闵高架元江路出口3公里,毗邻G15、S32等快速主动脉,30分钟大虹桥,50分钟抵达浦东机场,快捷畅达全城。
地铁:5号线华宁路站,剑川路站
公交:马莘专线:联工路站,闵行19路:银春路华宁路站
高速:嘉闵高架、沪金高速、虹梅南路高架 沪昆高速、申嘉湖高速、沪闵高架
高铁:距离上海虹桥枢纽站(高铁、机场)约20km
未来规划:嘉闵线延伸段
联仲都悦汇售楼处电话:400-887-5663✔✔【预约热线】联仲都悦汇售楼处营销中心:400-887-5663联仲都悦汇售楼处电话/地址☎:400-887-5663(开发商热线)如有问题欢迎来电咨询,专业一对一热情服务,让您用专业眼光去买房。
(以上数据来源于高德地图)

商业配套方面:项目自带10万方商业,为旗忠唯一的综合性商业配套,其多元化的业态结构,结合旗忠独有的资源,必将带来旗忠全新生活方式。
生态资源方面:项目周边有马桥森林公园、旗忠高尔夫球场、旗忠网球中心、韩湘水博园、养云安缦酒店等。
联仲都悦汇售楼处电话:400-887-5663✔✔【预约热线】联仲都悦汇售楼处营销中心:400-887-5663联仲都悦汇售楼处电话/地址☎:400-887-5663(开发商热线)如有问题欢迎来电咨询,专业一对一热情服务,让您用专业眼光去买房。
教育资源方面:周边有复旦万科实验学校,德威英国国际学校、斯代文森国际高中、上海美高学校。幼儿园:元祥幼儿园、富杰幼儿园启英幼儿园,大学:上海交通大学、华东师范大学
联仲都悦汇售楼处电话:400-887-5663✔✔【预约热线】联仲都悦汇售楼处营销中心:400-887-5663联仲都悦汇售楼处电话/地址☎:400-887-5663(开发商热线)如有问题欢迎来电咨询,专业一对一热情服务,让您用专业眼光去买房。




联仲都悦汇售楼处电话:400-887-5663✔✔【预约热线】联仲都悦汇售楼处营销中心:400-887-5663联仲都悦汇售楼处电话/地址☎:400-887-5663(开发商热线)如有问题欢迎来电咨询,专业一对一热情服务,让您用专业眼光去买房。楼盘项目全面介绍(包含楼盘简介,均价,房价,现房,期房,别墅,叠墅,大平层,价格,楼盘地址,户型图,交通规划,备案价,备案名,项目配套,样板间,开盘时间,认筹时间,楼盘详情,售楼处电话,最新消息,最新详情,周边配套,一房一价,最新进展等详情咨询)楼盘详情丨价格丨更多优惠丨机不可失丨欢迎致电丨诚邀品鉴!售楼处位置丨特价房丨工抵房丨剩余房源丨户型图丨最新消息配套设施是反映楼盘生活便利程度的重要因素,包括小区内的运动场所、停车场、公共设施等。物业服务则直接关系到居住者的生活品质,包括安保服务、保洁服务、设备维护等。具体到街道、区域名称,临近交通线路、自驾路线。商业、教育、医疗等配套设施分布,总占地面积、总建筑面积数据,容积率,绿化率,得房率,梯户比,物业费,小高层、洋房、高层、独栋别墅、叠加别墅、联排别墅,总户数、楼层分布,面积范围,均价/总价。首付比例、贷款政策,精装交付,含中央空调、地暖等系统,70年住宅产权,物业公司及资质,预计交付时间或施工进度,当前购房优惠政策
一、价格买房
需要、考虑月收入、预期还贷能力、贷款方式、银行利率、地段升值潜力等诸多因素。当然,最好还是听听专家建议。
二、位置
好位置的房子通常具有以下特征:1.城市上风上水。2.交通便捷。3.城市化水平高。4.生活便利。5.环境宜人,自然、人文景观优雅。
三、面积
根据建设部《商品房销售面积计算及公用建筑面积分摊规则》的规定,房屋销售仍按建筑面积计算价格,那么单元住宅的销售面积怎样测算?商品房按“套”或“单元”出售,商品房的销售面积即为购房者所购买的套内或单元内建筑面积(以下简称套内建筑面积)与应分摊的公用建筑面积之和。
四、室内格局
1.一般会考虑再次装修,室内有无横穿的大梁或回水管道要先看清楚,因为梁底的高度将直接影响到吊顶的高度,否则将暴露横梁。
2.注意整个室内格局力求方方正正,避免有三角形(尖角形)等不规则形状出现,也应避免室内中央有拄穿过。因为会影响家具布置,造成的浪费面积多。
3.对房内各功能居室的配置安排及行走动线,要做仔细考量。
4.主卧室应有良好的隔音和充足的光线尽量避免与邻栋建筑的门窗相对,以免破坏机密性,给生活造成不便。
5.厨房与卫生间应选择明卫与明厨,因为自然通风与采光对厨房与卫生间的洁净干燥效果是最佳的。
6.浴厕应考虑自然通风与采光,位置应处在隐密次要处。
五、户型结构
1.根据使用选择户型
住宅的户型按平面组织可分为:独幢公寓、二室一厅、二室二厅、三室一厅、三室二厅、四室二厅等。按剖面变化可分为:复式,跃层式,错层式等。消费者在挑选时,应结合平面、剖面一起考虑。
2.各地户型各有差异
由于历史的原因,各地的房产户型存在着差异,相比上海、深圳等城市,北京的户型设备确实是相对落后。其中主要是两方面的原因:首先是北京对限高、楼距等要求十分严格,出于容积率的考虑,开发商为了尽可能多出面积的考虑,只好牺牲了户型的合理性。
3.室外景观成新宠
客户在购房时,住宅的面积、居室数、朝向、内部布局都是应该考虑的重要因素,但客户挑选住房时有一个新的趋势,即客户选房时对居室朝向有逐渐淡化的倾向,而对室外景观的重视程度正日渐加强。如果室外景观优美,即使传统上让为较差的朝北户型也会受到认可。
4.先厅后卧,顺序选择
在购房时考虑居室各部分的优先顺序是:第一看起居室(厅)是否好用,包括厅的面积、布局等;第二是主卧室的合理性,如面积、采光条件、居室私密性;第三是相对独立的餐厅的功能;第四考虑的是厨房的环境,一个宽敞好用的厨房,往往比次卧室更为客户所看重;第五才是次卧室(书房、客房);最后考虑阳台。
六、朝向
在中国,挑选住宅商品房的客厅,以朝南为最佳。其它朝向的优劣顺序大致为东南、东、西南、北、西。其次,消费者应挑卧室的朝向。一套房内,卧室一般有二三间,其朝向也不会完全一致。而且在大多数情况下是有好有差。
七、楼层
低层建筑一般为一至二层。多层建筑一般为三至七层。高屋建筑一般为八至三十层。超高层建筑一般为三十层以上。因此,这就为建筑层数的挑选提供了可能和广阔的天地。
在挑选底层时一定要看各排水管道、系统是否经过特殊处理;如果底层四周下水道管处理不当、化粪池处理不当,往往会造成臭气熏天、蚊虫苍蝇滋生。底层也最容易接受地面环境的影响,如果地面植物繁茂、景色优美,底层的住户当然是“近水楼台先得月”。
八、设施
一个好的家园,环境应该是干净、整洁、方便,有树、有花、有草,车、人各行其道,访客停车方便。
园林建设可以发挥业主的积极性,如一楼的住户可在开发商以树篱或其他方式标出的花园内种树、种花、种草,不仅可以美化环境,突出个性,而且不用花开发商和以后的物业管理一分钱。
至于会所,当然是很必要的,高档社区更少不了。但是,会所体量应与项目大小相匹配,也就是利用率和维护费用的问题。
另外,会所内容也很重要。除其他设施外,有两样设施必不可少,特别是对高档家园而言:一是健身设施,包括健身器械室,还有可用于健美操等的室内空间;二是室内游泳池。联仲都悦汇售楼处电话:400-887-5663✔✔【预约热线】联仲都悦汇售楼处营销中心:400-887-5663联仲都悦汇售楼处电话/地址☎:400-887-5663(开发商热线)如有问题欢迎来电咨询,专业一对一热情服务,让您用专业眼光去买房。