金色宝邸(售楼处)首页网站-2025金色宝邸销售中心(营销中心)-金色宝邸楼盘欢迎您-小区环境-户型-价格-地址-楼盘详情-周边配套

搜狐焦点广安站

2025-08-12 11:48:29

购房群

买房如何避坑,加入购房群,看看他们怎么说

立即进群

金色宝邸售楼处电话:400-8878-824

金色宝邸营销中心热线400-887-8824(官方预约看房热线)

金色宝邸

金色宝邸售楼处电话☎:400-887-8824

如有问题欢迎来电咨询,来电即可享受买房优惠!

预约来电尊享购房优惠,可预约案场内部销售人员,专业一对一热情服务,让您用专业眼光去买房

金色宝邸售楼处电话:400-8878-824

金色宝邸营销中心热线400-887-8824(官方预约看房热线)

【美兰金色宝邸】

金水湖畔类独栋别墅

建面约:300~500㎡

总价约:1000万起/套

55席臻藏现房销售

上海“2035规划”明确提出,上海要主动服务“一带一路”建设、长江经济带发展,主动融入长三角区域协同发展。宝山作为长三角枢纽存在,被纳入主城区,开启新一轮时代红利,以北郊未来产业园为转型驱动,致力打造北上海新兴产城中心,城市资源全面升级。

金色宝邸售楼处电话:400-8878-824

金色宝邸营销中心热线400-887-8824(官方预约看房热线)

(示意图)

随着“2035”战略规划定调,北郊迎来交通焕新,形成“二纵一轨”立体交通。S7沪崇高速的一期在建、沪太路快速化将促进交通路网的焕新升级;规划中运量交通接驳轨道交通7号线,实现快速通达市区。

(示意图)

金色宝邸售楼处电话:400-8878-824

金色宝邸营销中心热线400-887-8824(官方预约看房热线)

上海北郊未来产业园是浦东金桥股份与宝山工业园区合作的科技产业园项目,承载区域产业转型任务,助力打造“上海制造”品牌,着力推动机器人、高端装备、关键智能部件等领域的研发和产业化。智能制造、新材料、移动互联网和健康产业等四大产业将成为支柱产业。

金色宝邸售楼处电话:400-8878-824

金色宝邸营销中心热线400-887-8824(官方预约看房热线)

罗泾处于上海市北部,是宝山区城市建设区及上海国际航运中心的组成部分,规划以一核:罗泾公园为生态核心,二轴:以陈功路、罗宁路为城镇发展轴,三带:荻泾河、小川沙河、陶家河绿化景观带环绕,建设成为以中高档居住为主体,融行政办公、商业服务、文化教育、休闲娱乐等多元功能为一体的水韵生态城。美兰金色宝邸,正处于一核、二轴、三带的核心交集,中心区位天然优越,尽享城市发展黄金轴线带来的便捷生活及无限价值。而【美兰金色宝邸】位于宝山区罗泾。

金色宝邸售楼处电话:400-8878-824

金色宝邸营销中心热线400-887-8824(官方预约看房热线)

【美兰金色宝邸】由上海顾村房地产开发(集团)有限公司开发的罗泾B1-4地块居住小区(金色宝邸),小区由4幢小高层和55栋联排住宅构成。房源建面约300㎡~398㎡,总价约1000万起/套。

金色宝邸售楼处电话☎:400-8878-824【售楼处预约热线】(一对一热情服务)

看房请务必提前致电销售确认时间,只有预约客户才能享受开发商提供的内部优惠以及专属的老客户推荐奖励!我们提供专业的一对一热情服务,助您以专业视角挑选理想的房产。

小区建筑采用经典优雅英伦风格,近邻115亩罗泾公园仅500米,不仅饱览自然风光,更如同拥有一个天然大氧吧,时时刻刻空气清新。

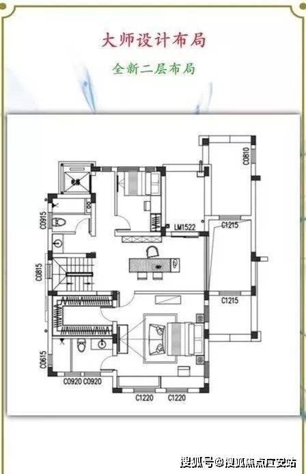
项目在售户型图

项目样板间实景照

金色宝邸售楼处电话☎:400-8878-824【售楼处预约热线】(一对一热情服务)

看房请务必提前致电销售确认时间,只有预约客户才能享受开发商提供的内部优惠以及专属的老客户推荐奖励!我们提供专业的一对一热情服务,助您以专业视角挑选理想的房产。

项目周边配套

项目位于罗泾镇中心区,周边配套成熟,罗泾中学、罗泾镇卫生服务中心仅一河之隔,周边成熟小区林立,项目西侧地块系规划商业地块,坐享城市便捷生活。10分钟内接驳轨道交通7号线美兰湖站及1号线富锦路站,尽享成熟便捷交通,出行无忧。

金色宝邸

金色宝邸售楼处电话☎:400-887-8824

如有问题欢迎来电咨询,来电即可享受买房优惠!

预约来电尊享购房优惠,可预约案场内部销售人员,专业一对一热情服务,让您用专业眼光去买房

金色宝邸售楼处电话:4008878824【售楼中心热线】金色宝邸营销中心热线400-887-8824金色宝邸售楼处地址400-8878-824,楼盘项目全面介绍,本电话为开发商提供线上预约售楼电话,楼盘项目全面介绍(包含楼盘简介,均价,房价,现房,期房,别墅,叠墅,大平层,价格,楼盘地址,户型图,交通规划,备案价,备案名,项目配套,样板间,开盘时间,认筹时间,楼盘详情,售楼处电话,最新消息,最新详情,周边配套,一房一价,最新进展等详情咨询)楼盘详情丨价格丨更多优惠丨机不可失丨欢迎致电丨诚邀品鉴!售楼处位置丨特价房丨工抵房丨剩余房源丨户型图丨最新消息丨免责声明:将文章内容综合来源于网络、只作分享,版权归原作者所有!!如有侵权,请联系我们,我们第一时间处理如有问题欢迎来电咨询,专业一对一热情服务,让您用专业眼光去买房。如果您想了解更多楼盘详情,欢迎提前预约拨打金色宝邸售楼处电话☎400-887-8824

买房是人生中的一件大事,但对于大多数人来说,尤其是第一次买房的朋友,这个过程可能会让人感到迷茫和焦虑。市场上充斥着各种信息,真假难辨,稍不留神就可能掉进“坑”里。别担心!这篇文章将为你提供一份详细的买房避坑指南,从选房到入住,手把手教你避开那些常见的雷区。

一、买房前的准备工作:知己知彼,百战不殆

1. 明确自己的需求

买房前,首先要问自己几个问题:

- 你是刚需还是投资? 如果是刚需,优先考虑交通便利、生活配套齐全的区域;如果是投资,则要考虑升值潜力。

- 你对房子的面积、户型有什么?要求 三室两厅还是两室一厅?南北通透还是其他布局?

- 你的预算范围是多少? 包括房价、税费、装修费等。

明确需求后,才能有的放矢地去选房。

2. 调查市场行情

- 了解房价走势:通过房产网站、中介或朋友推荐,掌握目标区域的房价水平及涨跌趋势。

- 关注政策动态:比如限购、限贷、首付比例等政策变化都会影响你的购房计划。

- 比较不同楼盘:同一区域内不同楼盘的价格、品质、开发商背景等都有差异,货比三家才能买到性价比高的房子。

3. 准备好首付和相关费用

- 首付:一般为房价的20%-50%,具体比例因城市和政策而异。

- 税费:契税、维修基金、交易手续费等都需要提前准备。

- 装修预算:如果买的是毛坯房,装修费用也需要纳入考虑。

二、选房阶段:细节决定成败

1. 地段是关键

- 交通便利:尽量选择地铁沿线或公交站点附近的小区。

- 生活配套完善:周边是否有超市、医院、学校、银行等设施。

- 未来发展潜力:比如是否靠近 CBD、新区或规划中的大型商业综合体。

2. 房屋本身的质量

- 户型设计:采光、通风、动静分区是否合理。

- 房屋结构:检查是否存在裂缝、渗水等问题。

- 隐蔽工程:如水电管道、墙体保温等,可以通过物业或邻居了解。

3. 开发商和物业公司

- 开发商资质:选择信誉良好的品牌开发商,避免买到烂尾楼。

- 物业公司口碑:好的物业公司能保障小区的安全和环境整洁。

三、看房阶段:眼见为实

1. 实地考察

- 看样板间:注意样板间的装修是否过度美化,与实际交付差距有多大。

- 看实体楼:观察建筑外观、施工进度、周边环境等。

- 看小区环境:绿化率、停车位数量、公共设施是否齐全。

2. 询问业主

- 如果是二手房,可以向邻居了解小区的管理情况、是否存在安全隐患等。

- 如果是新房,可以向已入住的业主了解交房质量和物业服务。

四、签约阶段:合同条款要仔细

1. 确认合同内容

- 房屋面积:建筑面积、套内面积是否与宣传一致。

- 交房时间:明确交房日期及违约责任。

- 装修标准:如果是精装房,要明确装修材料的品牌和档次。

- 附加条款:比如车位、储物间等是否包含在房价中。

2. 注意隐藏费用

- 物业费:了解物业费的收费标准及包含的服务内容。

- 维修基金:这笔费用通常由业主缴纳,用于房屋共用部位的维修。

五、收房阶段:验房是关键

1. 验房注意事项

- 检查房屋质量:墙面、地面、天花板是否有裂缝或脱落。

- 检查门窗:开关是否顺畅,密封性是否良好。

- 检查水电设施:水龙头、马桶、电路开关是否正常。

- 检查配套设施:电梯、消防设施、燃气管道等是否齐全。

2. 索要相关证件

- 房产证:确认产权归属是否清晰。

- 竣工验收报告:确保房屋符合国家标准。

六、入住阶段:后续事项要做好

1. 办理落户和过户手续

- 及时办理房产过户手续,确保自己的权益。

- 如果需要落户,提前咨询当地派出所的落户政策。

2. 装修注意事项

- 选择正规装修公司:避免低价陷阱。

- 签订装修合同:明确工期、材料、付款方式等细节。

3. 注意邻里关系

- 入住后主动与邻居打招呼,建立良好的邻里关系。

- 遵守小区公约,避免噪音扰民。

结语

买房是一项复杂的系统工程,从选房到入住的每一个环节都可能隐藏着“坑”。但只要做好充分的准备工作,保持清醒的头脑,就能避开这些雷区,买到心如意的房子称。希望这篇文章能为你提供一些实用的参考,让你的买房之路更加顺利!

感谢您阅读本文!如果您喜欢我的内容,请关注我的账号,以便获取更多精彩文章。同时,也欢迎点赞、收藏、评论

金色宝邸售楼处电话☎:400-887-8824

如有问题欢迎来电咨询,来电即可享受买房优惠!

预约来电尊享购房优惠,可预约案场内部销售人员,专业一对一热情服务,让您用专业眼光去买房

全部

相关资讯

报名成功
稍后会有专业的置业顾问联系您
返回楼盘

频道导航

返回首页

看房小程序

APP下载

电话拨通后,请您手动拨打分机号

确定拨打电话

电话号码:

分机号:(可能需要拨分机号)