紫金翡丽甲第售楼处电话:400-9988-414
紫金翡丽甲第营销中心电话:400-9988-414
紫金翡丽甲第售楼中心:400-998-8414
项目地址:园区中心大道北、西洛巷南、锦溪街东
项目名称:紫金·翡丽甲第(备案名:紫金翡丽雅筑)
紫金翡丽甲第售楼处电话☎:400-9988-414✔✔欢迎来电咨询! (预约看房热线)可预约销售人员,专业一对一热情服务,让您用专业眼光去买房。
紫金翡丽雅筑最新一批次房源取证了。
在相隔了近3个月的时候,工业园区湖东板块的

紫金翡丽甲第售楼处电话:400-9988-414
紫金翡丽甲第营销中心电话:400-9988-414
紫金翡丽甲第售楼中心:400-998-8414
5#、7#、8#、18#
97套住宅房源,全装修交付
整体备案均价63199元/平
备案总价区间在795-1971万元
建筑面积段165.77-272.77平
紫金翡丽甲第售楼处电话:400-9988-414
紫金翡丽甲第营销中心电话:400-9988-414
紫金翡丽甲第售楼中心:400-998-8414
项目基础档案
地块信息:苏园土挂(2023)04号
项目地址:园区中心大道北、西洛巷南、锦溪街东
项目名称:紫金·翡丽甲第(备案名:紫金翡丽雅筑)
开发品牌:北京金隅&保利置业
地块指标:占地约4.9万方,容积率1.5,总建11.9万方
住宅指标:规划打造6-9F洋房
户型配置:约190㎡/225㎡/260㎡
精装标准:装修标准不低于5000元/平
价格信息:23.11.29楼面价39027元/㎡,备案均价63595元/㎡(苏州首个不限价地块)
▲项目规划图
01-湖东核芯

紫金翡丽甲第售楼处电话:400-9988-414
紫金翡丽甲第营销中心电话:400-9988-414
紫金翡丽甲第售楼中心:400-998-8414
02-产品规划
甲第系,是保利置业旗下TOP级产品系,秉持严苛的择址标准和产品标准,打造塔尖世家经典豪宅藏品。紫金·翡丽甲第,集湖东国际繁华与金鸡湖优雅诗意于一体,打造约1.5容积率,6-9F低密洋房大平层,高阶圈层纯粹的居住领地。
▲项目鸟瞰图
全球大师 经典和鸣
致敬经典,成为经典。在这片深得天时地利的天赋贵脉之上,紫金·翡丽甲第邀请到五大世界级设计天团操刀,让穿越时空的世界经典美学,于此极致呈现。
携手goa大象设计,再现建筑经典。在整个建筑格局规划方面,取意东方藏宝盒的灵感,结合世界前沿设计手法,让东意西境的秩序美学经典再现。
联袂朗道国际设计,再现景观经典。向世界经典瑰宝阿尔罕布拉宫、意大利托斯卡纳花园等,汲取景观的创作灵感,原创出一座超越时间的园林经典。
邀请CCD全球事务所操刀,再现会所经典。借鉴伦敦及上海半岛酒店、海鸥丽晶酒店等高奢酒店化生活方式,重构层峰圈层的高奢生活场域。
无间设计、梁志天设计集团同行呈鉴,再现空间经典。臻选名贵奢石,全球顶级精装品牌,在户型空间功能及艺术审美,打造忠于塔尖人物内心的静奢宅邸。

紫金翡丽甲第售楼处电话:400-9988-414
紫金翡丽甲第营销中心电话:400-9988-414
紫金翡丽甲第售楼中心:400-998-8414
灵感之源 臻萃世界经典
紫金翡丽甲第做的是16栋6-9F纯洋房社区,容积率仅约1.5,产品形态极其纯粹。
借鉴了新古典学院派的建筑风格,严循“三段式”建筑结构,同时搭配古铜色的弧形格栅,大面的落地玻璃,铝板线条勾勒出鎏金曲线,简洁又庄重的艺术表现,注定能成就抵御岁月的经典。
紫金翡丽甲第售楼处电话:400-9988-414
紫金翡丽甲第营销中心电话:400-9988-414
紫金翡丽甲第售楼中心:400-998-8414
大门对标伦敦半岛酒店,宽约100米(含沿街景墙),门头高约6.3米,景墙用了上海欧丽晶酒店同款工艺。
紫金翡丽甲第售楼处电话:400-9988-414
紫金翡丽甲第营销中心电话:400-9988-414
紫金翡丽甲第售楼中心:400-998-8414
叠水墙用了范思哲黑奢石,整体看来很沉稳。
落客区的接待门也是海鸥丽晶酒店同款,据说门扇中用到了造价约2万/㎡的蓝翡翠石材👇
公区对标高奢酒店,打造双精装大堂、电梯轿厢、地下光厅等,现场每一处都是颜值暴击。

紫金翡丽甲第售楼处电话:400-9988-414
紫金翡丽甲第营销中心电话:400-9988-414
紫金翡丽甲第售楼中心:400-998-8414
2、会所细节
紫金翡丽甲第约3000㎡会所,包括私宴厅、恒温泳池、健身中心、行政酒廊、红酒雪茄吧等。

在这里,你可以看到造价超百万的绿水晶奢石吧台、手工打磨璀璨水晶灯↓
紫金翡丽甲第售楼处电话:400-9988-414
紫金翡丽甲第营销中心电话:400-9988-414
紫金翡丽甲第售楼中心:400-998-8414
海鸥丽晶酒店的同款艺术旋转楼梯↓
半岛酒店式的无边泳池↓
甚至在一个临时休憩的长椅中,都能够看到金箔↓
紫金翡丽甲第售楼处电话:400-9988-414
紫金翡丽甲第营销中心电话:400-9988-414
紫金翡丽甲第售楼中心:400-998-8414
更不用提随处可见的范思哲黑、绿水晶、蓝翡翠等顶级奢石。
3、园林细节
园林景观打造也非常有创意,借鉴了“意大利托斯卡纳”的理念,以对称格局,强调中轴尊贵仪式感。
浮岛花园的设计灵感来自意大利法尔奈斯庄园,让业主每一次的归家,犹如进入欧洲庄园的既视感。
紫金翡丽甲第售楼处电话:400-9988-414
紫金翡丽甲第营销中心电话:400-9988-414
紫金翡丽甲第售楼中心:400-998-8414
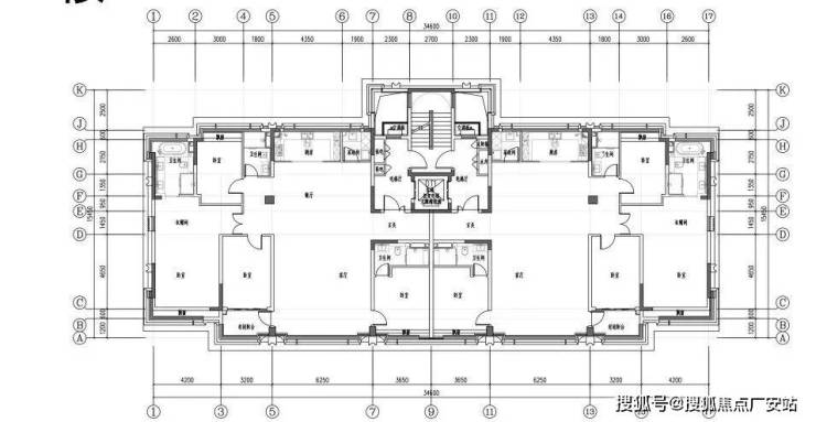
户型鉴赏
▲楼栋布局图
建面约190㎡户型,四房两厅三卫:
紫金翡丽甲第售楼处电话:400-9988-414
紫金翡丽甲第营销中心电话:400-9988-414
紫金翡丽甲第售楼中心:400-998-8414

建面约225㎡户型,四房两厅三卫:

紫金翡丽甲第售楼处电话:400-9988-414
紫金翡丽甲第营销中心电话:400-9988-414
紫金翡丽甲第售楼中心:400-998-8414
建面约290㎡户型,四房两厅三卫:
一房一价表
紫金翡丽甲第售楼处电话:400-9988-414
紫金翡丽甲第营销中心电话:400-9988-414
紫金翡丽甲第售楼中心:400-998-8414
关于品牌
保利置业&金隅地产
双匠联袂 镌刻经典藏品
保利置业&金隅地产,双国匠携手同行呈鉴,精粹经验大成,镌刻苏州经典人居藏品。在2023年11月29日的苏州第八批集中供地中,北京金隅集团股份有限公司。在与15家房企的激烈争夺中,以总价28.97亿元拿下此次出让中唯一溢价地块,成交楼面价39027元/平方米,溢价率超30%。
项目笔记为开发商、销售人士创作,本号仅做分享学习,不做任何购买建议。如有侵权,联系即删。
苏州紫金翡丽甲第
紫金翡丽甲第售楼处电话☎:400-9988-414✔✔欢迎来电咨询! (预约看房热线)可预约销售人员,专业一对一热情服务,让您用专业眼光去买房。
紫金翡丽甲第售楼处电话:400-9988-414紫金翡丽甲第营销中心电话:400-9988-414紫金翡丽甲第售楼中心:400-998-8414楼盘项目全面介绍,本电话为开发商提供线上预约售楼电话,楼盘项目全面介绍(包含楼盘简介,均价,房价,现房,期房,别墅,叠墅,大平层,价格,楼盘地址,户型图,交通规划,备案价,备案名,项目配套,样板间,开盘时间,认筹时间,楼盘详情,售楼处电话,最新消息,最新详情,周边配套,一房一价,最新进展等详情咨询)楼盘详情丨价格丨更多优惠丨机不可失丨欢迎致电丨诚邀品鉴!售楼处位置丨特价房丨工抵房丨剩余房源丨户型图丨最新消息丨免责声明:将文章内容综合来源于网络、只作分享,版权归原作者所有!!如有侵权,请联系我们,我们第一时间处理如有问题欢迎来电咨询,专业一对一热情服务,让您用专业眼光去买房。如果您想了解更多楼盘详情,欢迎提前预约拨打紫金翡丽甲第售楼处电话☎400-9988-414