中兴路壹号售楼处电话:400-811-8224
中兴路壹号售楼处电话☎:400-8118-224(预约看房热线)
在上海买房 重点是什么 :是地段 地段 还是地段。其次是小区品质,万科地产开发的中兴路一号品质不可质疑,上海内环内的产品就是上海最保值也最有价值的产品,中兴路一号不容错过。
『中兴路壹号』
新静安内环核心板块
建面约77-106㎡高阶住宅
国际大师级团队打造 封面作品
少量房源 不限售 可直接选
五星级豪华会所高端物业
中兴路壹号售楼处电话:400-811-8224
中兴路壹号售楼处电话:400-811-8224
样板房实拍如下


中兴路壹号售楼处电话:400-811-8224

中兴路壹号售楼处电话:400-811-8224








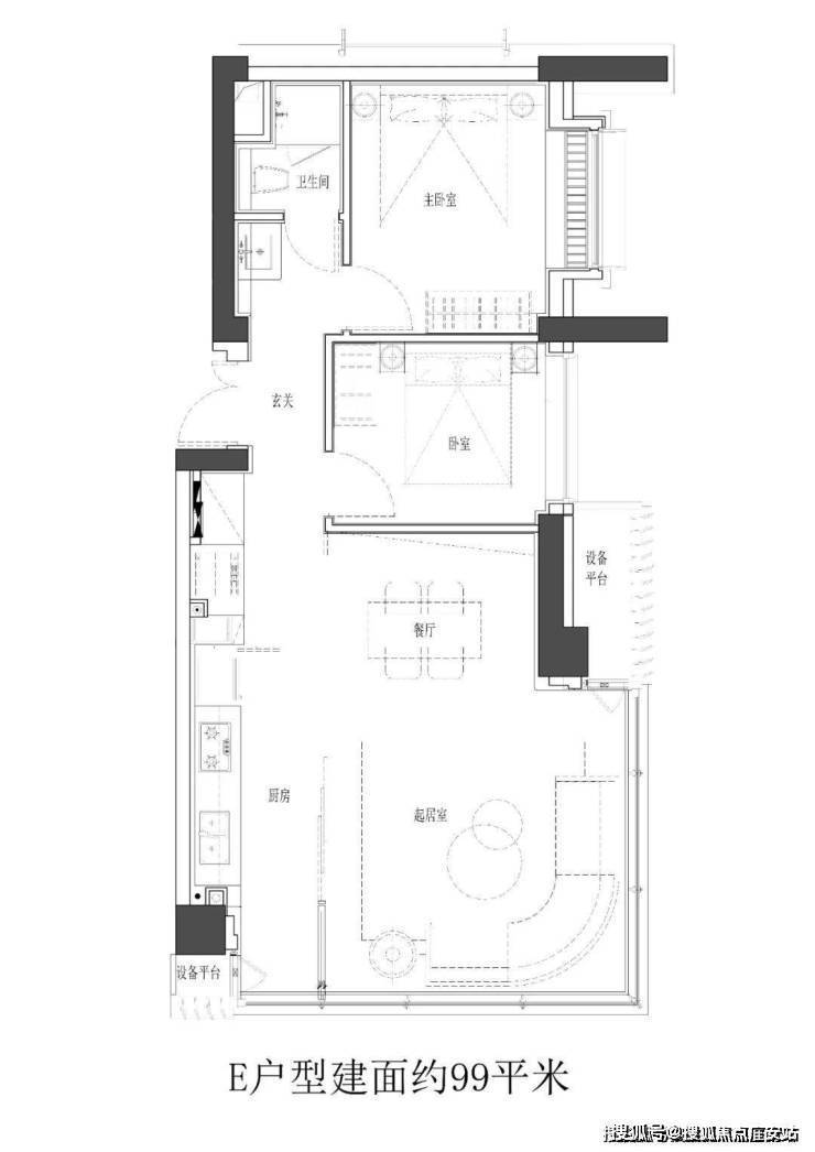
全套户型图如下


创意体验间实景图







中兴路壹号售楼处电话:400-811-8224



开篇先说几句:

2016年6月17日,经过近两个小时中兴路壹号售楼处电话:400-811-8224、452轮竞价,融信击退中粮+建发+首开、仁恒等“劲敌,,以总价110.1亿元竞得静安区中兴社区商住地,成交楼面价100218元/㎡。16年上海地王!之后,万科支付地价款约53.95亿元拥有该项目49%权益。2017年7月,上海静安规土网站已公示该项目东地块设计方案,东地块项目案名为『中兴路一号』。
中兴路一号作为在上海内环内的重磅作品,在建筑、景观、室内等各个方面都按照极高的标准予以打造。

中 中兴路壹号售楼处电话:400-811-8224
中兴路壹号售楼处电话:400-811-8224


2020年,上海静安区规划资源局公示静安区中兴社区。
N070202 单元332-01-A 地块、333-01-A 地块新建商品房项目(西地块)设计方案。
中兴路壹号售楼处电话:400-811-8224项目由上海恺冠臻房地产开发有限公司建设,建设范围鸿兴路以西、现状临山路以北、公兴路以东、中兴路以南。

根据规划方案显示,西地块拟规划建设4幢高楼以及菜场、商业、老年活动/文化活动室等配套。
其中1#楼高为32层、2#楼高为26层、9#楼高为27层、10#楼高为23层,机动车出入口位于临山路和公兴路。
中兴路壹号售楼处电话:400-811-8224中兴路一号西地块即将加推的产品主力建面依旧约77-106平左右,主力总价约850W+!房源193套,已过会,即将入市
中兴路壹号售楼处电话:400-811-8224



售楼处实拍

中兴路壹号售楼处电话:400-811-8224

外立面实拍👇
还有更多实拍👇

中兴路壹号售楼处电话:400-811-8224


中兴路壹号售楼处电话:400-811-8224

中兴路壹号售楼处电话:400-811-8224



1“超级底盘”
微缩版“英式自然风景”
中兴路壹号售楼处电话:400-811-8224中兴路壹号作为在上海内环内的重磅作品,在建筑、景观、室内等各个方面都按照极高的标准予以打造。创新了“有围墙的开放式小区”,楼宇围合而成内部公园和约9.45米高的“高线公园”,同时每一栋塔楼底部,连通各栋住宅形成了近1万方超级底盘商业,融合复合式文化场域、先锋品牌与生活教育等,下楼梯即可逛公园、休闲娱乐等。
中兴路壹号售楼处电话:400-811-8224
中兴路壹号售楼处电话:400-811-8224交付后这些生活场景都出现了,相较于地面花园和下沉庭院,这里也是业主逗留最久的空间。

中兴路壹号售楼处电话:400-811-8224

中兴路壹号售楼处电话:400-811-8224中兴路一号景观设计请到了Gillespies景观事务所,这又是一个大师级团队,获得英国皇家建筑师学会RIBA奖、国际房地产奖,同时拥有海德公园壹号、NEO Bankside等代表作。
中兴路壹号售楼处电话:400-811-8224

Gillespies景观事务所精心设计打造了这个微缩版“英式自然风景”,整个园林栽种有约百种花草植物!
中兴路壹号售楼处电话:400-811-8224社区内部由朗道景观设计的下沉式花园,将英国风情移植到花园里,复刻伦敦海德公园的戴安娜王妃纪念泉,打造出一片“秘境森林”。

即便是在健身房跑步中兴路壹号售楼处电话:400-811-8224,面前也不是枯燥的屏幕,而是层层叠叠,曲径通幽,起伏山地形态设计的仲夏夜之梦般的英式园林~
中兴路壹号售楼处电话:400-811-8224

2 是会所 更是沉浸艺术空间
除了园林, 中兴路壹号售楼处电话:400-811-8224中兴路一号会所也是邀请由入选美国《室内设计》名人堂的如恩设计研究室(Neri&Hu)打造,泳池、健身房、瑜伽室位于B1,一应俱全。
中兴路壹号售楼处电话:400-811-8224
中兴路壹号售楼处电话:400-811-8224铺满红色马赛克拼砖的休息区,配色足够“大胆”;蓝色色调、异域风情浓郁,极具艺术感的土耳其风游泳池......魅力指数爆表!

中兴路壹号售楼处电话:400-811-8224超前的设计和美学理念,吸引了很多超有个性的“新兴人类”!去年也和销售交流过,业主很多都是海归、留学生、时尚、艺术、广告、金融等领域的从业者——这群业主年轻化、也具有一定的国际化视野,和中兴路壹号的定位不谋而合。



中兴路壹号售楼处电话:400-811-8224

而这群业主中兴路壹号售楼处电话:400-811-8224“爱玩”、“会玩”,相聚在一起已经举办了百余场活动!在中兴路壹号的泛会所空间,可以随时来一场新的跨界活动,在交流中结识一个新朋友……多元化的生活场景,也让社区随时充满惊喜~
中兴路壹号售楼处电话:400-811-8224

这两年的上海新盘,中兴路壹号售楼处电话:400-811-8224设计稳字当头,看完一个项目,很快有能在另一个项目上看到类似的操作,很难令人留下深刻记忆。
上海楼市,太需要“突破”了!单纯的硬件升级,早已无法满足年轻人、精致一族的品味。简而言之:要颜值、要文化、要革新!中兴路壹号,开创了这个先河,如果要给这样一个项目定性,它是一个“先锋豪宅”!
中兴路壹号售楼处电话:400-811-8224
△项目实景图

3 私人订制 高端物业服务
在物业服务上,相比其他类似总价的住宅产品,中兴路一号更为出挑。
中興路一號使用的是广受业内外好评的万科高端物业。
中兴路壹号售楼处电话:400-811-8224万科致力于搭建了社交平台,联合业主共创社区高端圈层,定期举办业主们的圈层活动,让更多的新贵们可以融入到这个年轻化、国际化的社区氛围中。
居住于此,外部是中兴城的高能级城市资源,内部是时尚、国际范的社区,邻里有志趣相投的高端圈层。
这种生活,不正是真正国际社区的腔调吗?!
中兴路壹号售楼处电话:400-811-8224
更何况, 中兴路壹号售楼处电话:400-811-8224万科还搭建全细节关怀定制的物业服务体系,在安防、清洁、环境、秩维及客服社区基础服务之外,创新提供生活服务、出行服务、俱乐部服务、云服务四大特色服务,构建国际接轨的生活社交场景。

如果可以,一定要体验次万科高端物业!
4 静安内环内
百万方中兴城规模已现
中兴路壹号售楼处电话:400-811-8224中兴路壹号的区位不多说了,内环内,3km到外滩、人民广场、陆家嘴,4km到新天地!南京路商圈、人民广场商圈、淮海路商圈、陆家嘴商圈、新天地商圈……繁华配套顷刻即达,碾压多数内环盘!
中兴路壹号售楼处电话:400-811-8224
项目距离内环高架、南北高架1.5km左右,自驾出行还是比较方便。

周边有8号线中兴路站与3号线东宝兴路站、宝山路站,两条轨交均可直达虹口足球场、凯德龙之梦。
中兴路壹号售楼处电话:400-811-8224
交通示意图

中兴路壹号售楼处电话:400-811-8224离项目只有400多米的中兴公园已经改造完成,对外开放。雅宾利四期,也就是北万置业中兴路项目已经净地,航拍中已经基本看不到棚户区了~
整个 中兴路壹号售楼处电话:400-811-8224“中兴城”规划包括雅宾利一到三期、中兴路壹号项目,雅宾利四期为约30万方体量的大型商业、办公、住宅的城市综合体,一街之隔幼儿园+小学教育用地、文化艺术展馆等囊括其中。(本文不承诺教育配套设施,具体以政府及教育局实际划分为准。)
城市界面的提升、配套的完善,还只是表层,事实上,百万方中兴城革新的不只是这些,还有整个片区的业主层次、生活方式!
最后3套保留房源!『中兴路壹号』内环约77-106㎡精致美宅精装现房!总价1000万起!附线上预约通道!
中兴路壹号


买房是人生中的一件大事,但对于大多数人来说,尤其是第一次买房的朋友,这个过程可能会让人感到迷茫和焦虑。市场上充斥着各种信息,真假难辨,稍不留神就可能掉进“坑”里。别担心!这篇文章将为你提供一份详细的买房避坑指南,从选房到入住,手把手教你避开那些常见的雷区。
一、买房前的准备工作:知己知彼,百战不殆
1. 明确自己的需求
买房前,首先要问自己几个问题:
- 你是刚需还是投资? 如果是刚需,优先考虑交通便利、生活配套齐全的区域;如果是投资,则要考虑升值潜力。
- 你对房子的面积、户型有什么?要求 三室两厅还是两室一厅?南北通透还是其他布局?
- 你的预算范围是多少? 包括房价、税费、装修费等。
明确需求后,才能有的放矢地去选房。
2. 调查市场行情
- 了解房价走势:通过房产网站、中介或朋友推荐,掌握目标区域的房价水平及涨跌趋势。
- 关注政策动态:比如限购、限贷、首付比例等政策变化都会影响你的购房计划。
- 比较不同楼盘:同一区域内不同楼盘的价格、品质、开发商背景等都有差异,货比三家才能买到性价比高的房子。
3. 准备好首付和相关费用
- 首付:一般为房价的20%-50%,具体比例因城市和政策而异。
- 税费:契税、维修基金、交易手续费等都需要提前准备。
- 装修预算:如果买的是毛坯房,装修费用也需要纳入考虑。
二、选房阶段:细节决定成败
1. 地段是关键
- 交通便利:尽量选择地铁沿线或公交站点附近的小区。
- 生活配套完善:周边是否有超市、医院、学校、银行等设施。
- 未来发展潜力:比如是否靠近 CBD、新区或规划中的大型商业综合体。
2. 房屋本身的质量
- 户型设计:采光、通风、动静分区是否合理。
- 房屋结构:检查是否存在裂缝、渗水等问题。
- 隐蔽工程:如水电管道、墙体保温等,可以通过物业或邻居了解。
3. 开发商和物业公司
- 开发商资质:选择信誉良好的品牌开发商,避免买到烂尾楼。
- 物业公司口碑:好的物业公司能保障小区的安全和环境整洁。
三、看房阶段:眼见为实
1. 实地考察
- 看样板间:注意样板间的装修是否过度美化,与实际交付差距有多大。
- 看实体楼:观察建筑外观、施工进度、周边环境等。
- 看小区环境:绿化率、停车位数量、公共设施是否齐全。
2. 询问业主
- 如果是二手房,可以向邻居了解小区的管理情况、是否存在安全隐患等。
- 如果是新房,可以向已入住的业主了解交房质量和物业服务。
四、签约阶段:合同条款要仔细
1. 确认合同内容
- 房屋面积:建筑面积、套内面积是否与宣传一致。
- 交房时间:明确交房日期及违约责任。
- 装修标准:如果是精装房,要明确装修材料的品牌和档次。
- 附加条款:比如车位、储物间等是否包含在房价中。
2. 注意隐藏费用
- 物业费:了解物业费的收费标准及包含的服务内容。
- 维修基金:这笔费用通常由业主缴纳,用于房屋共用部位的维修。
五、收房阶段:验房是关键
1. 验房注意事项
- 检查房屋质量:墙面、地面、天花板是否有裂缝或脱落。
- 检查门窗:开关是否顺畅,密封性是否良好。
- 检查水电设施:水龙头、马桶、电路开关是否正常。
- 检查配套设施:电梯、消防设施、燃气管道等是否齐全。
2. 索要相关证件
- 房产证:确认产权归属是否清晰。
- 竣工验收报告:确保房屋符合国家标准。
六、入住阶段:后续事项要做好
1. 办理落户和过户手续
- 及时办理房产过户手续,确保自己的权益。
- 如果需要落户,提前咨询当地派出所的落户政策。
2. 装修注意事项
- 选择正规装修公司:避免低价陷阱。
- 签订装修合同:明确工期、材料、付款方式等细节。
3. 注意邻里关系
- 入住后主动与邻居打招呼,建立良好的邻里关系。
- 遵守小区公约,避免噪音扰民。
结语
买房是一项复杂的系统工程,从选房到入住的每一个环节都可能隐藏着“坑”。但只要做好充分的准备工作,保持清醒的头脑,就能避开这些雷区,买到心如意的房子称。希望这篇文章能为你提供一些实用的参考,让你的买房之路更加顺利!
感谢您阅读本文!如果您喜欢我的内容,请关注我的账号,以便获取更多精彩文章。同时,也欢迎点赞、收藏、评论和转发本文,让更多人看到并受益于我的分享。您的支持是我最大的动力,谢谢!
中兴路壹号售楼处:400-8118-224【售楼中心热线】营销中心热线400-8118-224售楼处地址4008118224楼盘项目全面介绍,本电话为开发商提供线上预约售楼电话,楼盘项目全面介绍(包含楼盘简介,均价,房价,现房,期房,别墅,叠墅,大平层,价格,楼盘地址,户型图,交通规划,备案价,备案名,项目配套,样板间,开盘时间,认筹时间,楼盘详情, 官方售楼处电话,最新消息,最新详情,周边配套,一房一价,最新进展等详情咨询)楼盘详情丨价格丨更多优惠丨机不可失丨欢迎致电丨诚邀品鉴!售楼处位置丨特价房丨工抵房丨剩余房源丨户型图丨最新消息丨免责声明:将文章内容综合来源于网络、只作分享,版权归原作者所有!!如有侵权,请联系我们,我们第一时间处理如有问题欢迎来电咨询,专业一对一热情服务,让您用专业眼光去买房。