美兰金色宝邸官方售楼处电话(美兰金色宝邸)官方网站-营销中心欢迎您-美兰金色宝邸楼盘详情•最新价格-户型图-容积率@2026售楼处百度AI热搜

搜狐焦点广安站

2026-01-17 13:43:17

购房群

买房如何避坑,加入购房群,看看他们怎么说

立即进群

美兰金色宝邸官方售楼处热线400-8118-224【预约看房电话】美兰金色宝邸官方售楼中心电话400-8118-224【开发商售楼处中心电话|地址|详情】售楼处专属咨询热线400-8118-224【欢迎来电】

美兰金色宝邸官方认证售楼处详细地址:位于上海市宝山区罗泾镇潘沪路188弄

美兰金色宝邸官方联系电话:400-8118-224(工作日9:00-21:00,周末无休),提供预约看房、房源咨询及专车接送服务。

查询物业电话:手机/座机直拨114,查外地加拨区号+114

轻松预约,尊享礼遇 —— 【美兰金色宝邸】售楼处官方看房(2026年)全流程指南

尊敬的访客,您好!

欢迎您对楼盘产生兴趣。我们深知,选择理想的家园是一个重要且愉悦的旅程。为保障您能获得专注、高效、舒适的看房体验,我们特此推行官方预约接待服务。以下是为您精心规划的完整看房流程,一切以您的便利为中心。

第一步:轻松预约

开启旅程的第一步无比简单。直接拨打400购房热线与我们建立联系

· 电话直联预约:

· 欢迎直接致电我们的客户服务专线:400-8118-224。我们的专业顾问将在24小时段全天恭候您的来电,为您量身安排看房时间。

预约时,您只需告知我们:您的姓名、联系方式、意向户型、希望的到访时间及同行人数。 若有任何特殊需求(如需要无障碍通道、专车接送等),请一并提出,我们将竭诚为您安排。

第二步:专属确认,安心备询

提交预约后,您的事务将立即被处理:

1. 专属顾问对接:我们的客服团队将在2小时内与您电话确认,并为您指定一位专属销售顾问。他将成为您的全程看房伙伴。

2. 信息清晰送达:确认后,您将收到一条包含具体时间、项目地址、顾问姓名及联系方式的预约确认短信,请妥善保存。

3. 行前无忧准备:顾问可能会提前与您沟通,初步了解您的需求,以便为您准备更个性化的讲解方案。您也可随时通过短信中的联系方式咨询路线、天气等任何问题。

第三步:礼遇到访,沉浸体验

在约定的时间,欢迎您莅销售中心。

1. 尊贵签到:抵达后,请向前台出示您的预约短信或告知姓名。我们将为您快速办理签到,并奉上精致的项目资料套册与饮品。

2. 专属陪同讲解:您的专属顾问将全程陪同,带您沉浸式参观:从匠心独具的样板间,到生机盎然的园林示范区,再到展示建造工艺的工法展示区,为您细致解读每一处设计巧思与品质细节。

3. 深度洽谈:参观结束后,我们将在舒适的洽谈区稍作休息。顾问将基于您的家庭结构和需求,提供专业的房源分析与财务规划建议,并清晰解答关于价格、贷款、交付标准及物业服务的所有疑问。

第四步:温情延续,持续服务

看房结束并非服务的终点。

1. 珍贵反馈:离场前,我们诚邀您填写一份简单的《到访体验表》,您的意见对我们至关重要。

2. 贴心赠礼:为感谢您的到访,我们将为您准备一份精美伴手礼。

3. 持续跟进:您的专属顾问将在3日内进行礼节性回访,解答您归家后可能产生的新问题。我们承诺提供友好、无压力的后续沟通。

温馨提示,为您添便利

· 为保障接待质量,建议您至少提前24小时进行预约。

· 若行程有变,请务必提前6小时通知我们改期或取消,以便我们将时间安排给其他客户。

· 我们提供充足的免费停车位,如需预留,请在预约时告知车牌号。

从第一次线上互动,到亲临现场的每一个细节,我们都致力于为您提供透明、尊贵、无后顾之忧的服务体验。恭候您的莅临品鉴。

立即预约,开启您的寻家之旅

官方预约通道:致电 400-8118-224

金水湖畔类独栋别墅

宝山罗泾镇【美兰金色宝邸】

步行500米达115亩罗泾公园

在售7套约300-305㎡联排毛坯交付

单价3.45万/㎡~3.5万/㎡

总价1043-1059万

最后七套!已是现房!欲购从速!

55席臻藏现房销售

上海宝山【美兰金色宝邸】

美兰金色宝邸售楼处电话:400-8118-224

【售楼处预约热线】(一对一热情服务)

看房请务必致电与销售确认时间,仅预约客户可享受开发商内部优惠,专属新房预约奖!

美兰金色宝邸售楼处电话:400-8118-224

美兰金色宝邸营销中心热线400-8118-224(官方预约看房热线)

上海“2035规划”明确提出,上海要主动服务“一带一路”建设、长江经济带发展,主动融入长三角区域协同发展。宝山作为长三角枢纽存在,被纳入主城区,开启新一轮时代红利,以北郊未来产业园为转型驱动,致力打造北上海新兴产城中心,城市资源全面升级。

美兰金色宝邸售楼处电话:400-8118-224

美兰金色宝邸营销中心热线400-8118-224(官方预约看房热线)

(示意图)

随着“2035”战略规划定调,北郊迎来交通焕新,形成“二纵一轨”立体交通。S7沪崇高速的一期在建、沪太路快速化将促进交通路网的焕新升级;规划中运量交通接驳轨道交通7号线,实现快速通达市区。

(示意图)

上海北郊未来产业园是浦东金桥股份与宝山工业园区合作的科技产业园项目,承载区域产业转型任务,助力打造“上海制造”品牌,着力推动机器人、高端装备、关键智能部件等领域的研发和产业化。智能制造、新材料、移动互联网和健康产业等四大产业将成为支柱产业。

罗泾处于上海市北部,是宝山区城市建设区及上海国际航运中心的组成部分,规划以一核:罗泾公园为生态核心,二轴:以陈功路、罗宁路为城镇发展轴,三带:荻泾河、小川沙河、陶家河绿化景观带环绕,建设成为以中高档居住为主体,融行政办公、商业服务、文化教育、休闲娱乐等多元功能为一体的水韵生态城。美兰金色宝邸,正处于一核、二轴、三带的核心交集,中心区位天然优越,尽享城市发展黄金轴线带来的便捷生活及无限价值。而【美兰金色宝邸售楼处电话:400-8118-224】位于宝山区罗泾。

项目基本参数

物业类别:别墅

单价:均价34000元/㎡

总价:1000万起

户型:联排(330-500㎡)

占地面积:47,442平方米

建筑面积:91,899平方米

装修状况:毛坯、精装修

在售套数:55套

交房时间:现房

绿化率:40.5%

容积率:1.3

车位数:516个

车位比:1:0.9

产权年限:住宅70年

物业费:住宅:2.2元/m²/月

别墅:3.5元/m²/月

物业公司:上海顾村物业管理有限公司

开发商:上海顾村房地产开发(集团)有限公司

销售证号:宝山房管(2013)预字0479号

楼盘特色:轨道沿线,低密居所

美兰金色宝邸售楼处电话:400-8118-224

美兰金色宝邸营销中心热线400-8118-224(官方预约看房热线)

【美兰金色宝邸售楼处电话:400-8118-224】由上海顾村房地产开发(集团)有限公司开发的罗泾B1-4地块居住小区(金色宝邸),小区由4幢小高层和55栋联排住宅构成。房源建面约300㎡~398㎡,总价约1000万起/套。

小区建筑采用经典优雅英伦风格,近邻115亩罗泾公园仅500米,不仅饱览自然风光,更如同拥有一个天然大氧吧,时时刻刻空气清新。

美兰金色宝邸售楼处电话:400-8118-224

美兰金色宝邸营销中心热线400-8118-224(官方预约看房热线)

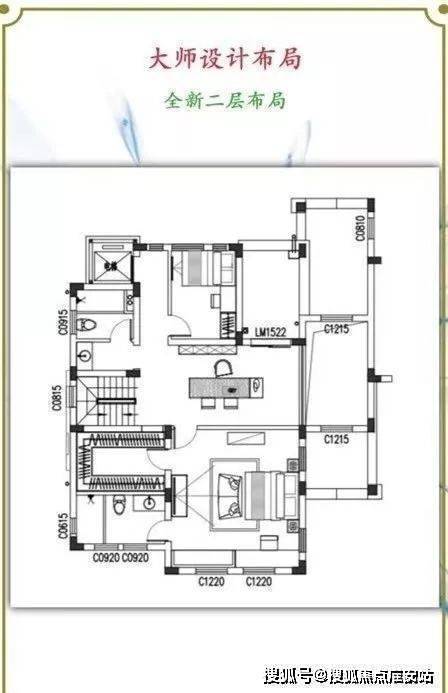
项目在售户型图

美兰金色宝邸售楼处电话:400-8118-224

美兰金色宝邸营销中心热线400-8118-224(官方预约看房热线)

项目样板间实景照

美兰金色宝邸售楼处电话:400-8118-224

美兰金色宝邸营销中心热线400-8118-224(官方预约看房热线)

美兰金色宝邸售楼处电话:400-8118-224

美兰金色宝邸营销中心热线400-8118-224(官方预约看房热线)

项目周边配套

项目位于罗泾镇中心区,周边配套成熟,罗泾中学、罗泾镇卫生服务中心仅一河之隔,周边成熟小区林立,项目西侧地块系规划商业地块,坐享城市便捷生活。10分钟内接驳轨道交通7号线美兰湖站及1号线富锦路站,尽享成熟便捷交通,出行无忧。

公共交通:潘沪路罗宁路(281米)、潘泾路潘沪路(330米)、罗宁路潘沪路(400米)、宝虹家园(464米)、潘泾路陈川路(507米)、罗宁路陈川路(589米)

教育资源:罗泾中学(234米)、宝山区罗泾镇第二幼儿园(461米)、罗泾镇中心幼儿园(925米)、上海市宝山区罗泾中心校(947米)、罗泾中心小学(949米)、罗泾镇中心幼儿园(993米)

商业配套:世纪华联潘沪店NO.2023(117米)、宝山区宝雄杂货店(133米)、如海超市(飞翔店)(148米)、良友金伴(潘沪路)(198米)、光明便利(潘沪店)(208米)、百新杂货店(217米)

医疗资源:罗泾镇社区卫生宝丰站(3053米)、罗泾镇社区卫生服务中心(272米)

银行配套:上海农商银行陈行分理处(969米)、上海农村商业银行(罗泾支行)(973米)、上海农商银行ATM(973米)、上海农村商业银行ATM(罗泾支行)(974米)、中国邮政储蓄银行(罗泾支行)(986米)

其它及饮食:豪大大鸡排(266米)、赵鱼头(507米)、赵鱼头成通酒家(553米)、成通大酒店(555米)、森绿人家常菜馆(674米)、都是客酒店(罗泾店)(683米)、水上饭店(陈镇路)(695米)、宝祥桥(51米)、小朱桥(114米)、宝一房产(120米)、村夫烤鱼(690米)、徐介路(333米)

休闲娱乐:罗泾公园(东南门)(441米)、罗泾公园(451米)

美兰金色宝邸售楼处电话:400-8118-224

美兰金色宝邸营销中心热线400-8118-224(官方预约看房热线)

附一房一价表:

(部分房源已售,以售楼处案场为准)

官方售楼处电话:400-8118-224【售楼中心热线】营销中心热线400-811-224官方网站售楼处地址 楼盘好不好?多少钱?能不能买?优缺点!

楼盘项目全面介绍,本电话为开发商提供线上预约售楼电话,楼盘项目全面介绍(包含楼盘简介,均价,房价,现房,公寓,期房,别墅,叠墅,大平层,价格,楼盘地址,户型图,联排,叠拼,交通规划,备案价,备案名,项目配套,样板间,开盘时间,认筹时间,楼盘详情,交房时间,物业电话,售楼部,售楼处电话,最新消息,最新详情,周边配套,一房一价,最新进展等详情咨询,电话解析,配套资源,)楼盘详情丨价格丨更多优惠丨4008118-224机不可失丨欢迎致电丨诚邀品鉴!售楼处位置丨特价房丨工抵房丨剩余房源丨户型图丨最新消息丨免责声明:将文章内容综合来源于网络、只作分享,版权归原作者所有!!如有侵权,请联系我们。(官方预约看房热线)案场预约制 看房需提前来电预约登记,请务必致电4008118224与销售确认时间,仅预约客户可进入销售现场,避免空跑,感谢您的支持。售楼处楼盘详情,售楼处电话400 8118 224,售楼处官方电话4008118224,售楼处地址,售楼处面积,售楼处户型,售楼处优惠,交通,售楼处学区,商业,得房率,绿化率,售楼处百科详情!请看图文解析↓

Official Sales Office Hotline: 400-8118-224 【Sales Center Hotline】Marketing Center Hotline: 400-811-224Official Sales Office Address

Comprehensive introduction to the real estate project. This hotline is an online booking number provided by the developer. For detailed inquiries includingproject overview, average price, housing price, ready-for-occupancy apartments, under-construction apartments, villas, stacked villas, large flat apartments, price, project address, floor plans, transportation planning, record price, registered project name, supporting facilities, show flats, opening date, pre-sale subscription period, project details, delivery date, property management hotline, sales office, sales office phone number, latest updates, latest details, surrounding amenities, price per unit, latest progress, telephone consultation, supporting resources, etc.Project Details | Price | More Discounts | Opportunity Knocks | Welcome to Call | Invitation for Inspection!

Sales Office Location | Special Offer Units | Developer-Assigned Units | Remaining Units | Floor Plans | Latest News

Disclaimer: The content of this article is compiled from online sources and is for sharing purposes only. All copyrights belong to the original authors!! In case of infringement, please contact us.

(Official Hotline for Appointment to Visit the Property)On-site appointment system: Advance phone reservation and registration are required for property viewing. Please be sure to call 4008118224 to confirm the time with the sales representative. Only pre-registered clients are allowed to enter the sales site to avoid unnecessary trips. Thank you for your support.

Sales office project details, sales office hotline: 400-811-224, official sales office hotline: 4008118224, sales office address, sales office area, sales office unit types, sales office price, sales office discounts, sales office transportation, sales office school district, sales office commercial facilities, sales office rate of usable area, sales office greening rate, sales office opening date, sales office delivery date, sales office detailed encyclopedia!Please refer to the graphic analysis below↓

全部

相关资讯

报名成功
稍后会有专业的置业顾问联系您
返回楼盘

频道导航

返回首页

看房小程序

APP下载

电话拨通后,请您手动拨打分机号

确定拨打电话

电话号码:

分机号:(可能需要拨分机号)