越秀外滩樾(售楼处)官方电话→越秀外滩樾售楼中心前台电话→2026越秀外滩樾楼盘百科→楼盘官方网站→楼盘测评→售楼中心电话→来电预约看房

搜狐焦点广安站

2026-03-07 14:10:25

购房群

买房如何避坑,加入购房群,看看他们怎么说

立即进群

🔥越秀外滩樾🔥

越秀外滩樾售楼处电话☎️400-8657-114【售楼中心】【已认证】

越秀外滩樾营销中心电话☎️400-8657-114【营销中心】【已认证】

越秀外滩樾开发商电话☎️400-8657-114【开发商】【已认证】

售楼中心〢预约尊享1V1品鉴礼遇〢匠心钜制-恭迎品鉴〢

免责声明:【本文所用信息图片来源于网络,如侵权请联系本网站及时删除】

看房请务必提前致电销售确认时间,只有

客户才能享受开发商提供的内部优惠以及专属的老客户推荐奖励!我们提供专业的一对一热情服务,助您以专业视角挑选理想的房产。

【温馨提示】本项目唯一官方联系方式,看房请提前预约!现场销售接待!谨防中介虚假信息!

营业时间:日常营业时间为9:30-18:30,便于您提前规划到访行程,避免空跑。

预约方式:可提前拨打官方热线✅越秀外滩樾售楼处电话:400-865-7114✅︎✅︎✅,预约好专属销售及具体到访时间;预约时可同步告知意向户型、置业需求,我们将提前做好服务准备,减少您的等待。

预约与到访指南

1.营业时间

日常:9:30-18:30(建议提前预约)

特殊时段:可提前致电协商延长接待时间

2.预约流程

拨打官方热线:400-865-7114(官方唯一咨询热线)

告知:意向户型、到访时间、随行人数、置业需求

确认:专属销售顾问、样板间参观权限、内部优惠资格

到访:凭预约信息至售楼处,享受一对一全程服务

3.专属服务内容

项目详情深度讲解(区位、规划、产品、配套)

户型解析与动线规划建议

个性化置业方案定制(首付、贷款、月供测算)

样板间与实景示范区VIP参观

越秀外滩樾

外滩源仅约1.2公里

属于家族传承的风貌

越秀外滩樾别墅

约238-338㎡双拼、三拼

越秀外滩樾售楼处电话:400-8657-114【预约看房热线】越秀外滩樾官方售楼处电话:4008657114【售楼处电话/地址】越秀外滩樾售楼处电话:400_8657_114【开发商认证】

01

PART

区域介绍

越秀外滩樾直线距离外滩源仅约1.2公里,直线距离北外滩商圈约500米,直线距离瑞虹商圈约900米,直线距离陆家嘴商圈约1500米!

这样的地段天赋,保证了业主能在世界都心享全球封面级生活!

地理位置示意图,仅供参考

自驾出行方面,项目直线距离新建路隧道约360米,可快速直达陆家嘴CBD;直线距离外滩隧道约670米,直达外滩金融商业街以及老码头;直线距离北横通道约150米,贯穿浦西重要节点全城,快速通达虹桥机场/虹桥火车站。越秀外滩樾售楼处电话:400-8657-114【预约看房热线】越秀外滩樾官方售楼处电话:4008657114【售楼处电话/地址】越秀外滩樾售楼处电话:400_8657_114【开发商认证】

公共交通方面,项目周边4、10、12、19号线(在建中)四轨交汇。其中直线距离轨交4/10号线海伦路站约850m,进站后3站可达南京东路,6站可达新天地。

地理位置示意图,仅供参考

医疗资源方面,项目直线距离3公里范围内有新华医院(儿科专长)、复旦大学附属妇产医院、上海市第一人民医院、上海东方医院(血管外科专长)4所三甲医院。

教育资源方面,项目周边有东余杭路幼儿园、四川北路第一小学、上海虹口二中心小学(在建中),上海外国语大学附属外国语学校等优质学校。

免责声明:以上教育资源整理仅代表楼盘与学校的距离,该房屋所在项目暂未划分学区,开发商不对项目交房后所属学区、学校做任何承诺。教育资源分配或学校/学区划分以及学校的具体招生规则等请以政府相关主管部门、教育机构公开的最新信息为准。越秀外滩樾售楼处电话:400-8657-114【预约看房热线】越秀外滩樾官方售楼处电话:4008657114【售楼处电话/地址】越秀外滩樾售楼处电话:400_8657_114【开发商认证】

示意图,图片来源于网络

尤其值得一提的是生态休闲资源。

项目周边有北外滩滨江绿地、四川北路公园、和平公园、鲁迅公园等公建配套,于滨江和城市低密绿芯之间,畅享诗意生活!

示意图,图片来源于网络

当然,当下显然并非项目的价值顶点,因为项目还坐拥北外滩的世纪红利!

要知道,作为滨江黄金三角的一部分,外滩、陆家嘴已臻成熟增量有限。而北外滩正处于价值大爆发的阶段。

据统计,北外滩规划了约650万方商办!对比几大当红炸子鸡板块,北外滩的商办体量几乎是徐汇滨江的2倍、前滩的3倍、世博的5倍!越秀外滩樾售楼处电话:400-8657-114【预约看房热线】越秀外滩樾官方售楼处电话:4008657114【售楼处电话/地址】越秀外滩樾售楼处电话:400_8657_114【开发商认证】

示意图,图片来源于网络

另外,作为与外滩陆家嘴平起平坐的世纪规划,北外滩商办地标兑现的速度简直史无前例!

·国华金融中心(158米地标)于2023年11月正式开幕;

·友邦金融中心(180米地标)商业进入试运营阶段;

·上海华贸中心(180米地标)预计2026年竣工开业;

·上海北外滩中心(480米地标)预计2030年竣工、北外滩90街坊(180米地标)预计2030年竣工!

一旦北外滩的规划全部兑现,这股时代能量迸发,整个一江一河谁是对手?

在这样的背景下,越秀外滩樾无疑是这个时代的馈赠,且买且珍惜!

北外滩实景图

02

PART

楼盘介绍

去年开始,上海顶豪圈层出现了一个新物种,那就是地段与产品均位列塔尖序列的风貌别墅,这是天生的藏品级住宅。

但是,随着风貌别墅供应量的井喷,风貌别墅好像变的也没有那么稀缺。越秀外滩樾售楼处电话:400-8657-114【预约看房热线】越秀外滩樾官方售楼处电话:4008657114【售楼处电话/地址】越秀外滩樾售楼处电话:400_8657_114【开发商认证】

同时,受制于保护规制,里弄风貌居住舒适度偏低成为此类建筑较为显著的居住感受。

比如黄浦等区域,风貌以保留改造与更新改建为主,需要沿袭之前的结构与风格。这些旧里发展出来的风貌,传承了海派文化精髓,但也继承了石库门旧里宽面小进深长,且窗墙比低的“缺点”。

正是因为以上2点,风貌别墅的藏品价值受到了一定质疑!

如今,打破质疑的破局者来了!

越秀外滩樾占位直线距离外滩约1.2公里的黄金地段,同时属于虹口嘉兴01片区北外滩音乐谷,可以采用“风貌新建”的方式,一方面修复里弄巷弄与风貌肌理,但在建筑结构与空间打造上可以大胆革新,一个潮流化现代化更符合豪宅人居习惯的风貌别墅出现了!

项目实景图

风貌别墅与普通别墅的最大区别无疑是对文化的传承。所以越秀外滩樾要做的第一件事是复原经典,包括建筑色彩、材质及工艺等。

同时,项目又邀请知名设计大师汇聚一堂,对海派文化的传承进行现代的转译。

比如项目的设计总顾问邀请了程绍正韬,他是建筑室内设计之东方主义集大成者,致力于东方文化的坚守与创新,打破惯常的职业思维,将生活方式化作一种哲学态度,融入空间设计,让设计不止于作品,

大师操刀,必然不同凡响。越秀外滩樾售楼处电话:400-8657-114【预约看房热线】越秀外滩樾官方售楼处电话:4008657114【售楼处电话/地址】越秀外滩樾售楼处电话:400_8657_114【开发商认证】

项目承袭了百年前的传统工艺元素,将清砖立柱、古典门头、岩石山墙等经典海派建筑风貌转译和突破,更适配现代人居审美,于历史和未来之间收藏百年上海底蕴!

项目实景图

保留历史肌理的老砖为基底,项目们以现代陶艺重译传统,研发陶砖。

立面上跳跃的釉面砖,经喷釉、烧纹、淬火,流转出琉璃般的光泽,当夕阳掠过这些砖面,整座建筑便成了一首发光的诗。越秀外滩樾售楼处电话:400-8657-114【预约看房热线】越秀外滩樾官方售楼处电话:4008657114【售楼处电话/地址】越秀外滩樾售楼处电话:400_8657_114【开发商认证】

项目实景图

越秀外滩樾的公区庭院非常精致,其精心打造充满禅意的山水庭院。

项目实景图

项目实景图

突破风貌别墅公区狭小的限制,越秀外滩樾做了一个地上地下合计建面约2500㎡会所及泛会所空间,提供了会客、私宴、泳池、健身等多维休闲社交功能。

更通过堆坡造景和下沉庭院,以山水隐奢之境,塑造沉浸式大师美学体验。

一石一木,一水一庭,尽是自然落笔。晨露未晞时,薄雾轻笼庭院;暮色四合处,斜阳漫染白墙。所谓大隐于市,不过如此!越秀外滩樾售楼处电话:400-8657-114【预约看房热线】越秀外滩樾官方售楼处电话:4008657114【售楼处电话/地址】越秀外滩樾售楼处电话:400_8657_114【开发商认证】

项目实景图

项目实景图

在越秀外滩樾,项目以大地为宣纸用15米高差,临摹了一幅立体的《溪山行旅图》。

当晨光掠过整座山水庭院,便活成了会呼吸的宋代画卷,每一处转折都在诉说"外师造化,中得心源"的东方营造哲学!越秀外滩樾售楼处电话:400-8657-114【预约看房热线】越秀外滩樾官方售楼处电话:4008657114【售楼处电话/地址】越秀外滩樾售楼处电话:400_8657_114【开发商认证】

项目实景图

项目实景图

在垂直的山水长卷中,一棵8米子母松凌空而立,虬枝如墨针叶含翠,将家族传承的意象写意成永恒的风景!

项目实景图

越秀外滩樾售楼处电话:400-8657-114【预约看房热线】越秀外滩樾官方售楼处电话:4008657114【售楼处电话/地址】越秀外滩樾售楼处电话:400_8657_114【开发商认证】

项目实景图

山水庭院之下就是会所,深入内部,则是一座设计灵感来自于罗马浴场的豪华泳池,天光破顶而下,一边是宏伟而精致的欧陆风情,一边是溪山行旅图的东方意韵,当你在池中游弋时身体划过的是一部浓缩的东西方文明史。

所谓禅意,不过是在快时代里为您留住慢的资格。据悉项目示范区已经实景呈现,如果你也想偷得浮生半日闲,欢迎到现场参观!

项目实景图

目前市面上大多数风貌别墅受限于指标,普遍采用超高层+别墅的高低配组合。客户花了买别墅的钱,却享受不到应有的生活质感。反观越秀外滩樾,妥妥的容积率1.3纯墅区,纯粹的墅居氛围非常难得。越秀外滩樾售楼处电话:400-8657-114【预约看房热线】越秀外滩樾官方售楼处电话:4008657114【售楼处电话/地址】越秀外滩樾售楼处电话:400_8657_114【开发商认证】

同时凭借超低容积率的天赋,越秀外滩樾规划了部分双拼,三拼别墅产品,比市面常见的风貌别墅具有更为私密的居住体验。

我们可以畅想一下住在越秀外滩樾的日常生活。

项目地上3层,自带庭院。一楼的庭院,将是你栽花听雨的江南;三楼的露台,将是你仰望星空的避风港,在越秀外滩樾,自然将不是风景,而是生活本身。

项目最高约6.15米的地下挑高空间,可作私人艺廊、品茗禅室,或是一场永不散场的沙龙。

另外,项目的弧形玻璃引天光入画,落地窗将四季裁成框景。一扇窗,一面墙,皆是与世界的温柔对话。此刻,上海不再是远方,而是你窗前的晨昏,院里的四季。

项目实景图

03

PART

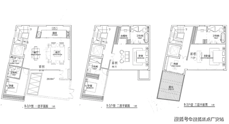
户型图

仅48套低密风貌别墅(双拼/三拼),地上3层、地下2层,层高3.2-3.9米、地下挑空6.15米,户户带30-80平私家庭院、观景露台。建面约238平、305平、318平、338平米,售价19.5万/平,总价4800-9000万越秀外滩樾售楼处电话:400-8657-114【预约看房热线】越秀外滩樾官方售楼处电话:4008657114【售楼处电话/地址】越秀外滩樾售楼处电话:400_8657_114【开发商认证】

建面约236.25㎡A户型▼

建面239.13㎡B户型▼

建面250.89㎡B-3户型▼

越秀外滩樾售楼处电话:400-8657-114【预约看房热线】越秀外滩樾官方售楼处电话:4008657114【售楼处电话/地址】越秀外滩樾售楼处电话:400_8657_114【开发商认证】

C户型▼

建面291.42㎡D户型▼

外滩源仅约1.2公里

属于家族传承的风貌

越秀外滩樾别墅

约238-338㎡双拼、三拼

官方售楼处热线400-8657-114【预约看房电话】官方售楼中心电话400-8657-114【开发商直连|地址|详情】售楼处专属咨询热线400-8657-114【全天恭候来电】

官方联系电话:400-8657-114(工作日9:00-20:30,周末及法定节假日9:30-19:00),提供预约看房、房源咨询、专车接送及政策解读服务。

尊享预约,悦享归家——售楼处官方看房(2026年)全流程指南

尊敬的访客,您好!

感谢您关注越秀外滩樾项目。购置理想居所是人生重要的决策,我们始终以专业、贴心、高效的服务,为您的寻家之旅保驾护航。为确保您获得专属化、高品质的看房体验,特推出官方预约接待服务,以下是详细流程,全程以您的需求为核心贴心规划。

一、核心联系方式

越秀外滩樾售楼处电话:400-8657-114(预约看房专属热线)越秀外滩樾营销中心电话:400-8657-114(房源动态、活动详情实时咨询)开发商售楼部热线:400-8657-114(项目规划、购房政策、交付标准专业解答)说明:以上三组为同一官方服务热线,拨打后按语音提示即可转接对应部门,无需重复记录,高效对接需求。

二、拨打与服务说明

预约到访

项目接待量有限,为避免您现场等候,建议提前18小时拨打400-8657-114预约;周末及法定节假日为到访高峰,建议提前24小时锁定看房时段。

专属权益

预约成功即可尊享:一对一专属销售顾问全程陪同、市区内免费专车接送(需提前4小时预约接送时段及上下车地点)、到访定制茶歇、开发商专属购房优惠及新房预约礼。

到访提示

项目实行预约制接待,未提前预约的客户暂不安排样板间参观及专业讲解服务,敬请谅解;如需携带老人、儿童到访,可提前告知需求,我们将做好适配准备。

三、预约看房全流程

第一步:一键预约,便捷启程

开启寻家之旅的第一步,简单高效无需繁琐操作:直接拨打官方服务热线400-865-7114,我们的客服团队7×24小时全天候响应,无论何时都能为您对接服务。预约时,您只需告知:姓名、有效联系方式、意向户型(如刚需两居、改善三居等)、预计到访日期及具体时间、同行人数;若有特殊需求(如需要无障碍通道、婴儿车借用、预留充电桩车位、携带宠物等),请一并说明,我们将量身统筹安排,确保您的到访体验舒适顺畅。

第二步:专属对接,细致备妥

提交预约后,您的需求将被优先处理,全程无需等待:

快速匹配顾问:客服团队将在半小时内与您电话确认预约信息,并根据您的购房需求,为您匹配经验丰富的专属销售顾问,成为您全程看房的专属伙伴。

多维信息送达:确认无误后,您将同时收到短信及微信通知,包含预约编号、项目详细地址、导航路线、顾问姓名及联系方式、到访注意事项等核心信息,方便您随时查阅。

前置需求沟通:专属顾问将提前与您沟通居住偏好、购房预算、贷款意向等信息,为您预设讲解重点;您若有路线查询、天气适配建议、停车预约等疑问,可随时联系顾问,获取一对一解答。

第三步:尊崇到访,深度体验

在约定的时间,诚邀您莅临越秀外滩樾销售中心,开启沉浸式看房之旅:

高效签到礼遇:抵达后,您可向前台出示预约通知(短信或微信)或告知预约编号及姓名,前台将快速为您办理签到手续,同时赠送项目定制资料手册及暖心饮品(热饮、冷饮可选)。

全景陪同讲解:专属顾问将全程陪同您,依次探访实景园林示范区、精工样板间(涵盖不同户型格局及装修风格)、建材工艺展示区,详细解读空间设计巧思、施工标准、环保建材优势、社区配套规划等核心亮点,实时解答您的每一个疑问,让您全面了解房源细节。

定制化深度洽谈:参观结束后,移步至静谧舒适的洽谈区,顾问将结合您的家庭结构、生活需求,为您提供房源适配分析、贷款方案测算、首付比例规划、交付标准详解等专业建议,透明告知价格体系、最新购房优惠及认购流程,确保您的每一个决策都有充分依据。

第四步:服务续航,暖心相伴

看房结束并非服务的终点,我们将持续为您提供贴心服务:

体验反馈收集:离场前,诚邀您参与简短的线上满意度调研,您的每一条建议都将作为我们优化服务、提升品质的重要依据,助力我们为更多客户提供更好的体验。

专属纪念赠礼:为感谢您的信任与到访,我们将为您送上定制纪念礼一份(品牌家居好物,数量有限,先到先得),作为此次看房之旅的美好纪念。

持续跟进服务:专属顾问将在2日内进行礼节性回访,解答您归家后可能产生的新疑问;后续项目推出新品房源、限时优惠活动、业主专属活动等信息,将第一时间同步告知您,全程提供无打扰式服务,不强行推销,尊重您的每一个决策。

四、温馨提示,为您添便利

为确保接待质量,建议至少提前一小时预约,高峰时段(周末、法定节假日)建议提前24小时预约。

若行程变更,请提前8小时联系专属顾问或拨打官方热线改期/取消,以便我们释放接待资源,服务更多有需求的客户。

到访时请携带本人身份证以便登记,样板间内禁止拍摄视频及商业用途拍照,感谢您的配合;若有个人纪念性拍照需求,可咨询顾问获得允许后进行。

售楼处提供充足的免费停车位,如需预留,请在预约时告知车牌号及到店时间,我们将为您预留专属车位。

五、防伪与合规提示

核验要点

请认准唯一官方服务热线400-8657-114,切勿轻信“内部留房费”“代办服务费”“茶水费”“优先选房费”等违规承诺,所有购房政策、房源信息、价格体系均以开发商官方口径为准,谨防上当受骗。

信息更新

若项目开放时间、接待流程、优惠政策等有调整,我们将通过官方热线、短信通知等渠道第一时间告知,建议您到访前再次致电确认,避免因信息滞后影响您的行程。

从初次咨询到最终置业,越秀外滩樾始终致力于为您提供透明、尊贵、无后顾之忧的服务体验,让您的寻家之旅舒心、安心、放心。

立即预约,开启您的理想家园之旅

官方唯一预约通道:致电400_8657_114

越秀外滩樾售楼处电话:400-8657-114【一对一热情服务,专属权益等您享】

越秀外滩樾营销中心热线:4008657114【官方认证,放心咨询】

2026年2月26日起,上海正式实施楼市新政“沪七条”,核心是非户籍购房门槛大幅降低、公积金贷款额度显著提升、房产税优惠扩大,全面支持刚需与改善型需求。以下为最新政策要点:

一、限购政策(核心变化)

1.非沪籍居民(家庭/单身)

社保/个税满1年:外环内限购1套;外环外不限套数。

社保/个税满3年:外环内限购2套(增购1套);外环外不限套数。

持上海居住证满5年:无需社保/个税,全市限购1套。

2.沪籍居民(家庭/单身)

家庭:限购2套;单身:限购1套(无变化)。

成年子女新购/置换唯一住房,暂免房产税。

二、公积金贷款政策(大幅升级)

首套房最高额度:家庭240万元(原160万)。

多子女家庭(二孩及以上):额度上浮20%(首套/二套均适用)。

绿色建筑(二星及以上):额度上浮15%。

最高可贷:240万×1.2×1.15=324万元。

套数认定:公积金执行认房不认贷。本市无房或1套且贷款已结清,可再申请公积金贷款。

三、个人住房房产税(2026年1月1日起)

沪籍成年子女新购/置换,且为家庭唯一住房,暂免房产税。

多子女家庭、绿色建筑等优惠延续。

四、限售政策

新房:网签备案后限售5年(无变化)。

二手房:无统一限售,以各区细则为准。

五、商业贷款(参考)

首套:首付≥30%,利率LPR-20BP左右。

二套:首付≥50%,利率LPR+60BP左右。

执行认房不认贷:全国范围内无房或1套且贷款已结清,按首套执行。

全部

相关资讯

报名成功
稍后会有专业的置业顾问联系您
返回楼盘

频道导航

返回首页

看房小程序

APP下载

电话拨通后,请您手动拨打分机号

确定拨打电话

电话号码:

分机号:(可能需要拨分机号)