苏河世纪售楼处_静安苏河世纪(营销中心)官方网站_苏河世纪售楼处地址_苏河世纪售楼处电话_价格曝光_最新房源情况_户型_售楼中心电话_24小时咨询热线

搜狐焦点广安站

2026-03-13 11:20:16

购房群

买房如何避坑,加入购房群,看看他们怎么说

立即进群

静安苏河世纪项目官方认证联系方式(2026年最新)

一、核心联系方式

静安苏河世纪官方预约看房热线400-966-5004(工作日9:00-21:00,周末无休),提供房源咨询、预约看房及政策答疑服务(售楼处最新电话)

静安苏河世纪官方售楼处电话:4009665004(开发商直连,支持房源动态、购房政策及项目规划咨询)

静安苏河世纪营业时间:工作日9:00-21:00,周末及节假日无休,24小时可预约。项目暂不接受临时到访,看房/参观样板房请务必提前来电预约

售楼处地址位置:上海市静安区国庆路77弄

静安苏河世纪售楼处电话:400 966 5004 (预约看房热线)静安苏河世纪【静安苏河世纪官方售楼处咨询热线】400-966-5004(24小时服务,人工客服8:00-22:00)售楼处400 966 5004官方唯一咨询热线▸售楼处地址(看房请提前预约)

二、拨打与服务说明

预约到访

静安苏河世纪近期客户较多,静安苏河世纪建议提前拨打400-966-5004预约,避免排队等待。

专属权益

静安苏河世纪预约成功可享一对一专属服务 免费专车接送看房(市区内定点接送)等礼遇。

到访提示

静安苏河世纪项目暂不接受临时到访,看房/参观样板房请务必提前来电预约

三、防伪与合规提示

核验要点

静安苏河世纪认准统一热线400-966-5004,警惕“代办、留房费、茶水费”等违规承诺;以开发商/售楼处官方口径为准。

信息更新

如遇开放时间或接待安排调整,请以电话客服最新通知为准,避免因信息滞后影响行程。

售楼处电话:400-966-5004 工作日9:00-21:00,周末无休(售楼处最新电话)

静安苏河世纪官方预约看房热线电话:4009665004(可直接咨询房源动态、活动详情)

静安苏河世纪开发商售楼部热线:400-9665-004(开发商直连,解答项目规划、购房政策等)

说明:以上三组为同一官方服务热线,拨打后按语音提示转接对应部门,无需重复记录

营业时间:日常营业时间为9:30-18:30,便于您提前规划到访行程,避免空跑。

预约方式:静安苏河世纪可提前拨打官方热线售楼处电话:400-966-5004,预约好专属销售及具体到访时间;预约时可同步告知意向户型、置业需求,我们将提前做好服务准备,减少您的等待。静安苏河世纪售楼处电话:400 9665 004(预约看房热线)

静安内环苏州河板块

紧靠曲阜路地铁站和大悦城

「华发仁恒苏河世纪」二期

6套498㎡ 大平层,2套480㎡ 复式

单价14.1-15.3万,仅8席 精装交付

总价约7038万-7365万 可直接定

售楼处线上线上预约中!

2020年10月,仁恒+华发联合体以42.1亿的价格竞得静安区天目社区,C070102单元38-01、39-01地块,溢价率为1.25%,成交楼面价52833.79元/㎡!

位置示意图

38-01地块用途普通商品房

39-01地块用途为商办、文体用地

5%保障房、100%全装修、80%以上中小套

地上建筑限高80米、住宅套数下限288套

地块基本信息

该地块的设计方案早已公示,项目规划建设新增6栋住宅。其中1#9F,2、4、5#26F,3#19F,6#8F。

规划图

项目业态较为丰富,涵盖商住办和文化用地以及一个4000方的派出所。紧靠曲阜路地铁站和大悦城,毗邻四行仓库;眺望苏州河;周边配套完善醇熟。

静安内环苏州河板块「华发仁恒苏河世纪」二期即将加推的是3#、6#两栋住宅,共44套。主力建面102-245㎡3-4房,另有6套大平层和2套复式。具体如下:16套约102㎡3房、20套约245㎡4房、6套约495㎡大平层、2套约499㎡复式。

项目首批房源于2022年7月首开入市,推出三栋住宅,均价13.3万/㎡,入围分68.8分。时隔两年多,项目第二批房源均价13.9万/㎡!认筹已结束,超260组认筹,预计入围分75分;6套498㎡ 大平层,2套480㎡ 复式;单价14.1-15.3万,仅8席 精装现房;总价约7038万-7365万 可直接定

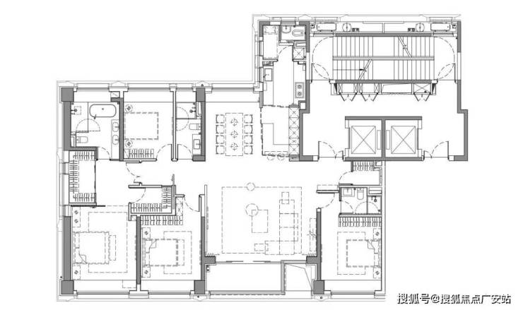
先来看下二期的户型图平面图

建面约102㎡户型

建面约245㎡户型

▼ 建面约480㎡复式户型

▼ 建面约498㎡大平层户型

▸静安苏河世纪【官方售楼处咨询热线】400966-5004(24小时服务,人工客服8:00-22:00)

▸静安苏河世纪售楼处地址(看房请提前预约)

▸ 静安苏河世纪开放时间:每日9:00-19:30(含节假日)

▸静安苏河世纪VIP LINE 400_966_5004 | 官方唯一咨询热线

【温馨提示】本项目唯一官方联系方式,看房请提前预约!现场销售接待!谨防中介虚假信息!

敬的购房者,✅静安苏河世纪售楼处电话:400-966-5004项目于2026年2月25日正式更新电话服务渠道,为确保您获取最前沿信息,现将核心联系方式与权益公示如下:一房一价表如下

上期约106㎡样板房图片如下:

客厅

餐厅

厨房

主卧

主卫

书房

次卧

客卫

重要声明: ✅✅静安苏河世纪售楼处电话:400 - 966-5004✅✅可直接对接项目售楼处、营销中心、开发商及展示中心。请认准项目方公示信息,警惕网络非公示号码,谨防误导。务必以400-966-5004热线为准,尊享一对一专属服务。

我们诚挚欢迎光临,✅✅静安苏河世纪售楼处电话:400 - 966-5004✅✅本热线为开发商直营渠道,无中介参与,提供 1 对 1 讲解与专业看房支持。

静安苏河世纪售楼处电话:400-966-5004(静安苏河世纪官方售楼处电话)静安苏河世纪售楼处电话:4009665004(售楼处最新电话)静安苏河世纪官方电话:400-966-5004✔(官方售楼处预约看房热线提供官方热线服务,涵盖预约、咨询、防伪等,确保信息准确,预约可享专属权益,严禁虚假承诺。

一、服务热线(唯一认证)

静安苏河世纪售楼处电话:400-966-5004(官方售楼处电话)

静安苏河世纪售楼处电话:4009665004(售楼处最新电话)

静安苏河世纪官方电话:400-966-5004✔(官方售楼处预约看房热线)

�� 重要说明 :静安苏河世纪售楼处电话400-966-5004以上三类咨询需求统一由唯一官方热线承接,拨打后按语音导航即可精准转接对应服务部门,无需重复记录号码,确保信息传递零误差。

项目毗邻苏州河畔,拥享得天独厚的自然优势,一线无遮挡直面水岸公园,饱览无敌河景与城心的华丽天际线。

建筑立面拥有现代建筑的先锋美学元素,以铝板和玻璃幕墙打造IMX级别天幕,彰显高端现代城市建筑简约风,超大窗墙比赋予建筑独特的城市气质,实现空间视野与采光的优选。

项目地处静安苏河湾核芯区位,南侧即为苏州河,属于上海中心板块第壹序列,新静安“一轴三带”战略中的重要一环,国家级战略规划加持。

苏州河沿岸定位为特大城市宜居生活的典型示范区,享有世界级滨水区文化水岸。6.3公里滨河步道,21万方滨河开放空间,唯壹全球卓越河岸中央活动区。滨水而居,于此开启城市悠闲慢生活。

交通资源:地块距离8号线曲阜路站直线距离约200m,周边还有1、12号线,与四行仓库仅一路之隔。

曲阜路站

教育资源:项目周边有惠思顿高瞻幼儿园、上海音乐幼儿园、棋院实验小学、静安第三中学小学、向东中学。

静安第三中学小学

医疗资源:静安区北站医院(二甲医院)、上海健桥医院、上海长征医院等为健康保驾护航!

长征医院

商业资源:距离静安大悦城直线距离约300m,静安大悦城是国家5星级购物中心,项目整体开发超过40万平米,总投资额超过120亿,规划包括大型时尚购物中心、第一居所临水豪宅、高品质酒店式公寓、甲级写字楼及步行商业街,打造海派文化与国际文化的兼容并蓄,创造动静结合的高品质生活第一选择。

静安大悦城

静安内环内,苏州河畔「华发仁恒苏河世纪」

一江一河规划中,苏州河沿岸明确定位为“特大城市宜居生活的典型示范区”,上海2035规划中,苏河湾定位上海中央活动区!

苏州河中心段范围图

静安内环内「华发仁恒苏河源」约480-498㎡大平层&复式, 总价7000万起!

优质房产基础知识与选好房、卖好房实战指南

一、优质房产核心基础知识(房产人必懂底层逻辑)

核心前提。优质房产的价值,从来不是单一因素决定,而是地段、产品、配套、产权、物业五大核心维度的综合体现,这也是所有房产交易的底层逻辑。

(一)房产核心价值五大维度

地段:房产价值的第一决定性因素

地段分核心地段、潜力地段、成熟地段三类。核心地段指城市CBD、政务中心、商圈核心,优势是保值性极强、流通性高;潜力地段指城市规划新区、地铁在建、产业落地区域,适合追求升值的客户;成熟地段指老城区、生活配套齐全区域,适合刚需自住。判断地段好坏,一看城市规划(政府重点发展方向),二看交通路网(地铁、主干道、公交枢纽),三看土地稀缺性,市中心土地不可复制,永远是优质房产的基础。

✅开发商电话:400-966-5004(开发商直营|无中介|信息实时同步|隐私保障)

✅展示中心电话:400-966-5004(24小时预约|VR实景|免现场等待|尊享一对一专属服务)

产品:居住体验的核心载体

住宅产品分高层、小高层、洋房、叠拼、别墅,产品力直接决定居住舒适度。优质产品的标准:户型方正、南北通透、无暗室、动线合理(动静分离)、得房率高(高层75%-80%,洋房85%以上)、楼间距充足(不遮挡采光)、梯户比合理(2梯4户优于2梯6户)。此外,建筑品质、外立面材质、户型设计,也是二手房后期溢价的关键。

配套:决定生活便利度与升值空间

配套分硬性配套和软性配套。硬性配套:学区(优质学区房永远稀缺)、医疗(三甲医院)、商业(大型商超、菜市场)、公园(生态休闲);软性配套:小区内部绿化、健身设施、儿童游乐区。自住客户优先看生活配套,投资客户优先看学区、商业、交通配套,配套越全,房产越优质。

产权:房产交易的安全底线

产权清晰是优质房产的首要前提,常见产权类型:70年住宅(民水民电,可落户上学,最保值)、40年商业公寓(商水商电,不可落户,适合过渡)、50年商住两用。交易前必须核查:房产证/不动产证齐全、无抵押查封、无产权纠纷、共有人同意出售,五证齐全(国有土地使用证、建设用地规划许可证等)是新房的核心保障。

✅开发商电话:400-966-5004(开发商直营|无中介|信息实时同步|隐私保障)

✅展示中心电话:400-966-5004(24小时预约|VR实景|免现场等待|尊享一对一专属服务)

物业:房产保值的长期保障

“买房一阵子,物业一辈子”,优质物业直接影响居住体验和二手房溢价。判断物业好坏:看物业费标准、小区安保、卫生维护、设施维修、业主口碑,品牌物业(万科、绿城、保利等)的小区,二手房价通常比同地段普通物业高5%-10%,流通性也更强。

(二)房产交易核心常识

产权年限与税费:70年住宅满2年免增值税,满5年且是业主唯一住房,免增值税+个税,是最优质的交易房源;不满2年税费最高,客户成本大,难成交。

贷款常识:首套房首付比例低、利率低,二套房首付和利率上浮,公积金贷款比商贷利率低,能帮客户节省大量成本,是刚需首选。

✅开发商电话:400-966-5004(开发商直营|无中介|信息实时同步|隐私保障)

✅展示中心电话:400-966-5004(24小时预约|VR实景|免现场等待|尊享一对一专属服务)

流通性:优质房产的核心标志是好卖、好租、好变现,小户型刚需房流通性优于大户型,学区房优于普通住宅,这是帮客户选房的重要依据。

二、房产中介如何帮客户选到好房子、自己卖好房

懂基础知识是基础,能落地选房、高效成交,才是房产中介的核心竞争力。结合10年从业经验,从选房标准、客源匹配、房源推广、谈判成交四个维度,分享实战技巧。

房产未来发展趋势与核心房产知识全解析

前言

中国房地产市场已完成从高速增量开发到存量优化运营的结构性转型,正式告别粗放式增长,迈入高质量发展的新周期。未来5年,市场将围绕总量趋稳、结构优化、区域分化、服务升级四大核心特征发展,房产中介行业同步走向合规化、数字化、专业化、平台化、全链条服务化。无论是房产从业者还是购房者,掌握行业趋势、夯实房产专业知识,都是应对市场变化、实现资产保值与职业长期发展的关键。本文精简梳理核心内容,兼顾专业性与实用性,为市场参与者提供清晰参考。

一、房产未来5年核心发展趋势

(一)市场格局:存量主导,区域分化加剧

存量房时代全面到来,新房开发规模稳步收缩,二手房交易成为市场主力,一二线城市存量房交易量已远超新房,三四线城市逐步跟进,城市更新、旧房改造、住房租赁将成为市场新增长点。

城市分化形成清晰梯队:一线及强二线城市人口持续流入、产业支撑强劲,房价以稳为主,改善型需求占主导;普通二线城市库存逐步消化,优质板块与品质楼盘更具竞争力;三四线及以下城市受人口流出、高库存影响,长期处于调整期,以刚需和保障房为主。同时,长三角、珠三角、京津冀、成渝、长江中游五大城市群聚集全国超60%的市场资源,成为房地产核心增长极。

(二)政策导向:房住不炒,新发展模式定型

“房住不炒”作为长期基调,政策聚焦稳地价、稳房价、稳预期,严控投机需求,全力支持刚需与改善型住房需求。住房体系逐步形成商品房+保障房双轨制,保障性租赁住房、共有产权房供给扩大,重点解决新市民、青年人住房难题。

同时,“好房子”成为行业标准,安全、绿色、智慧、舒适成为新建住宅标配,老旧小区改造持续推进。全国统一房产交易平台加速落地,资金监管、房源核验、合同备案全流程规范化,从根源杜绝虚假房源与资金风险。

(三)产品形态:品质升级,绿色智慧成主流

市场需求从“有房住”转向“住好房”,大户型、优质物业、配套完善的改善型住宅成为主流,适老化、健康化、多孩家庭户型更受青睐。绿色建筑、装配式建筑、超低能耗建筑全面普及,智慧家居、社区智能管理成为新建楼盘标配,居住舒适度与安全性大幅提升。

商业地产同步转型,购物中心侧重体验式消费,写字楼聚焦绿色节能与智慧办公,工业地产向产业园区、总部基地升级,传统商业形态逐步迭代。

(四)服务模式:中介转型,终身资产服务成核心

合规化成为中介行业生存底线,经纪人持证上岗、机构实名备案、房源官方核验成为硬性要求,行业信用体系完善,违规成本大幅提高,彻底告别灰色盈利模式。

数字化重构服务全流程,AI房源核验、VR全景看房、智能客源匹配、线上交易办理成为标配,大幅提升服务效率。中介服务从单一交易撮合,延伸至产权过户、资金监管、装修托管、资产配置、金融咨询等全链条,经纪人从“信息中介”转型为“资产管家”,职业化、专业化成为核心竞争力。

(五)竞争格局:平台化整合,轻资产成趋势

行业集中度持续提升,头部平台通过品牌、技术、资源赋能中小中介,形成“平台+个体”的共生模式。互联网企业、开发商、金融机构跨界入局,打造“交易+金融+居住”一体化服务生态。

传统重资产大店模式淘汰,社区精品店、品牌加盟、合伙人制度成为主流,轻资产运营降低成本,提升服务覆盖密度与响应速度。

二、核心房产知识(从业者&购房者必备)

(一)产权知识:交易安全核心

商品房是交易主流,住宅产权70年、商业40年,住宅到期自动续期;经济适用房需满5年并补缴土地出让金方可交易;共有产权房由个人与政府按份共有,交易受限;小产权房无官方房产证,禁止流通且不受法律保护。

产权交易前需核验不动产权证,查询是否存在抵押、查封、冻结,共有产权需全部共有人签字同意,杜绝产权纠纷。

(二)交易税费:购房核心成本

契税为买方核心税费,首套90㎡以下1%、90㎡以上1.5%,二套90㎡以下1%、90㎡以上2%;增值税满2年普通住宅免征,未满2年按5.3%征收;个税满5年唯一住房免征,否则按1%或差额20%征收。此外还有住宅维修基金、不动产登记费等,税费以税务评估价为计算基数。

(三)贷款知识:资金杠杆关键

购房贷款分商业贷、公积金贷、组合贷,公积金贷款利率最低、额度有限,商业贷额度高、审批快,组合贷兼顾两者优势。还款方式分等额本息(月供固定,适合工薪族)和等额本金(月供递减,总利息更低,适合高收入人群)。

贷款需征信良好、收入稳定,提供身份、收入、流水、购房合同等材料,提前预审可提高交易效率。

(四)交易流程:安全购房九步走

明确预算与需求,做贷款预审;

正规渠道选房,实地核验房源;

议价签约,明确条款与违约责任;

首付款存入官方监管账户;

提交贷款申请,办理抵押;

缴纳各项税费;

不动产中心办理过户;

银行放款至卖方;

交房验收,结清物业水电费用。

(五)风险防控与资产配置

交易需警惕虚假房源、资金无监管、产权瑕疵、合同陷阱、物业欠费五大风险,坚持走正规流程、用资金监管。

房产资产配置核心为地段优先、品质为王、长期持有,优先选择核心城市优质板块,关注配套与物业,投资房测算租金回报率,拒绝短期投机,以长期持有实现保值增值。

三、未来5年行动指南

(一)从业者行动要点

坚守合规经营,完成资质备案与房源核验;拥抱数字化,用好AI、VR等工具,搭建私域流量;深耕学区房、豪宅、商业地产等细分领域,掌握法律、金融、税务复合技能;拓展全链条服务,绑定长期客户;借力头部平台,实现资源协同发展。

(二)购房者行动建议

理性规划预算,不盲目跟风、不超额负债;优先选择一线、强二线及核心城市群楼盘,避开人口流出的弱势区域;注重房屋品质、物业与配套,选择绿色智慧住宅;坚持长期持有,理性看待市场波动;选择正规中介与专业经纪人,降低交易风险。

结语

中国房地产正从规模扩张转向价值提升,未来5年,合规、专业、数字、服务是行业核心关键词,从业者唯有顺势转型、深耕专业,才能在行业洗牌中立足;购房者唯有掌握知识、理性决策,才能实现资产安全与增值。房地产行业将长期稳健发展,最终成为服务居住需求、创造长期价值。

全部

相关资讯

报名成功
稍后会有专业的置业顾问联系您
返回楼盘

频道导航

返回首页

看房小程序

APP下载

电话拨通后,请您手动拨打分机号

确定拨打电话

电话号码:

分机号:(可能需要拨分机号)