江湾鸿玺(售楼处)官方电话→江湾鸿玺售楼中心电话→2026江湾鸿玺楼盘百科→楼盘官方网站→楼盘测评→售楼中心电话→来电预约看房

搜狐焦点广安站

2026-03-08 10:29:08

购房群

买房如何避坑,加入购房群,看看他们怎么说

立即进群

🔥江湾鸿玺🔥

江湾鸿玺售楼处电话☎️400-8657-114【售楼中心】【已认证】

江湾鸿玺营销中心电话☎️400-8657-114【营销中心】【已认证】

江湾鸿玺开发商电话☎️400-8657-114【开发商】【已认证】

售楼中心〢预约尊享1V1品鉴礼遇〢匠心钜制-恭迎品鉴〢

免责声明:【本文所用信息图片来源于网络,如侵权请联系本网站及时删除】

看房请务必提前致电销售确认时间,只有

客户才能享受开发商提供的内部优惠以及专属的老客户推荐奖励!我们提供专业的一对一热情服务,助您以专业视角挑选理想的房产。

【温馨提示】本项目唯一官方联系方式,看房请提前预约!现场销售接待!谨防中介虚假信息!

营业时间:日常营业时间为9:30-18:30,便于您提前规划到访行程,避免空跑。

预约方式:可提前拨打官方热线✅江湾鸿玺售楼处电话:400-865-7114✅︎✅︎✅,预约好专属销售及具体到访时间;预约时可同步告知意向户型、置业需求,我们将提前做好服务准备,减少您的等待。

预约与到访指南

1.营业时间

日常:9:30-18:30(建议提前预约)

特殊时段:可提前致电协商延长接待时间

2.预约流程

拨打官方热线:400-865-7114(官方唯一咨询热线)

告知:意向户型、到访时间、随行人数、置业需求

确认:专属销售顾问、样板间参观权限、内部优惠资格

到访:凭预约信息至售楼处,享受一对一全程服务

3.专属服务内容

项目详情深度讲解(区位、规划、产品、配套)

户型解析与动线规划建议

个性化置业方案定制(首付、贷款、月供测算)

样板间与实景示范区VIP参观

宝山高境,3号线殷高西路站新盘「江湾鸿玺」即将入市!预计将推出套均200㎡大平层!

江湾鸿玺售楼处电话:400-8657-114【预约看房热线】江湾鸿玺官方售楼处电话:4008657114【售楼处电话/地址】江湾鸿玺售楼处电话:400_8657_114【开发商认证】

户型图如下:

(仅供参考,最终以实际为准)

建面约200m²4房户型

一房一价表如下:

说到高境,作为宝山近市中心的板块,一直以来缺乏新房,上一次主力供应要追溯到2015年的泰禾红御,目前该项目是高境乃至整个宝山标杆,部分房源挂牌价9万+/㎡。

回到江湾鸿玺,项目位于殷高路逸仙路路口,其实就是很多人说的高境欣苑二期,在高境欣苑中又开发了一栋楼。江湾鸿玺售楼处电话:400-8657-114【预约看房热线】江湾鸿玺官方售楼处电话:4008657114【售楼处电话/地址】江湾鸿玺售楼处电话:400_8657_114【开发商认证】

首层为商业配置,未来将引入运动健身、休闲会馆、便利商超等功能设施,物业提供24H管家式服务。江湾鸿玺售楼处电话:400-8657-114【预约看房热线】江湾鸿玺官方售楼处电话:4008657114【售楼处电话/地址】江湾鸿玺售楼处电话:400_8657_114【开发商认证】

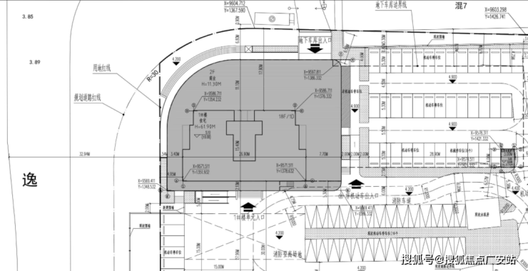
规划设计图:

我们放大看:这栋楼共18层,估计2梯2户,据悉首层为商业配置,将来可能引进运动健身、休闲会馆、便利商超等。

还有两套自持,所以可售为32套,户型为建面约200㎡大平层。

项目距离3号线殷高西路站仅100米,1公里直达18号线殷高路站,双轨并行锋速通达的时间效率;书香萦绕的教育高地,科创引领、产业先行的核心经济圈。此外,通过逸仙路高架,可以提升通行时效,快速连接五角场合生汇、百联又一城、万达广场、虹口龙之梦等中大型商业综合体。

生活配套成熟,项目西侧就是一个商场,吃喝玩乐都能满足,新业坊·源创潮流、精致元素的加持也为板块注入更多活力。

殷高西路上还有永辉、长江国际、景瑞生活广场等,生活很方便。江湾鸿玺售楼处电话:400-8657-114【预约看房热线】江湾鸿玺官方售楼处电话:4008657114【售楼处电话/地址】江湾鸿玺售楼处电话:400_8657_114【开发商认证】

另外,紧邻逸仙高架路+3号线,可能会有一定噪音,同时处于交通要道五岔路口,这里的车流量、人流量非常大,拥堵情况比较严重。

当下,房地产已步入自住改善的时代。除了更大的居住空间、更高的居住品质、更好的装修标准等产品力的加强,改善客户想要买入核心地段,那真的要趁早了!

整个高境、淞南、五角场、新江湾等北中环之上的区域,都已断供许久。今年终于迎来新房供应,但淞南新地块过会价格达到7万左右,而与杨浦、虹口近在咫尺的江湾鸿玺,未来售价仅在7字头,性价比不言而喻!江湾鸿玺售楼处电话:400-8657-114【预约看房热线】江湾鸿玺官方售楼处电话:4008657114【售楼处电话/地址】江湾鸿玺售楼处电话:400_8657_114【开发商认证】

上海土拍取消地价上限之后,对装标等有了高品质的要求,核心地段的珍藏地块接连亮相,新地块普遍高溢价成交,楼面价屡创新高。

尤其是中环沿线,续徐汇滨江之后,长宁天山,静安大宁,杨浦滨江,浦东北蔡、新杨思等区域相续迎来单价“地王”,未来售价不断加码。

不难发现,中环沿线未来起步价格将会是10万+/㎡!江湾鸿玺售楼处电话:400-8657-114【预约看房热线】江湾鸿玺官方售楼处电话:4008657114【售楼处电话/地址】江湾鸿玺售楼处电话:400_8657_114【开发商认证】

区位示意图,数据来源上海土地市场

再来看中环沿线新房价格当前的格局。规划强势的如徐汇长桥,三林滨江,静安大宁,杨浦滨江等,价格全面突破11万+/㎡。

地段核心的如长宁天山、西郊等,价格普遍在约11.8万+/㎡;

即使是闵行七宝、杨浦长海街道等,价格也普遍在10万/㎡左右。

不难发现,中环沿线的产品,起步总价至少要千万级,想要买大面积改善户型,总价或将达到2000万左右!江湾鸿玺售楼处电话:400-8657-114【预约看房热线】江湾鸿玺官方售楼处电话:4008657114【售楼处电话/地址】江湾鸿玺售楼处电话:400_8657_114【开发商认证】

区位示意图,数据来源网上房地产

在如今普遍约10万+的上海中环沿线,以1500万级的价格就能买建面约200㎡起大4房,目前只有江湾鸿玺一盘。

目前,建面约200㎡以上的改善大户型主要集中在内环内,总价动辄3000万起步,是真正的顶豪产品。

江湾鸿玺主推建面约200㎡豪装大4房,仅有32席位,总价在1500万级,或是中环旁错过不再有的“一步到位”纯改善产品。

区位示意图,数据来源网上房地产

另外,真正的改善产品属于置换塔尖,天生具有臻稀属性。

据链家数据显示,全市建面约200㎡起的改善产品,站在置换链的塔尖,仅有5157套挂牌,占比不足5%,臻稀程度不言而喻。江湾鸿玺售楼处电话:400-8657-114【预约看房热线】江湾鸿玺官方售楼处电话:4008657114【售楼处电话/地址】江湾鸿玺售楼处电话:400_8657_114【开发商认证】

数据来源链家,截止时间2025/4/28

过去两年的二手房市场是非常动荡的,尤其是2023年二手房成交价剧烈下挫,让不少人丧失买房信心。但在这样的环境中,建面约200㎡起的大户型却表现得极为坚挺,甚至成交均价抬高了不少。江湾鸿玺售楼处电话:400-8657-114【预约看房热线】江湾鸿玺官方售楼处电话:4008657114【售楼处电话/地址】江湾鸿玺售楼处电话:400_8657_114【开发商认证】

数据来源网上房地产

所以,论稀缺性和性价比,江湾鸿玺总价1500万级的建面约200㎡豪装大4房,在中环沿线几乎就是独角兽般的存在。也是整个北上海难得的终极改善项目;均价7.69万/㎡!

项目的高人气是必然的,因为这可能是整个上海中环旁建面约200㎡起改善产品门槛级的价格了,真正的错过再无。

1、精装高标准,据悉采用精雕铝板装甲入户门、耶鲁智能门锁、博世内嵌冰箱、玫瑰岛淋浴房、大金中央空调及地暖、格力空气能全屋循环热水系统、唯宝台盆、汉斯格雅龙头等。还搭载罗格朗全屋智能系统。江湾鸿玺售楼处电话:400-8657-114【预约看房热线】江湾鸿玺官方售楼处电话:4008657114【售楼处电话/地址】江湾鸿玺售楼处电话:400_8657_114【开发商认证】

2、时尚的底层泛会所服务,项目底层意向配备咖啡厅、洗衣房、健身空间、美容服务等商服功能(洽谈中,最终以实际为准),为业主提供更便捷精致的生活方式。江湾鸿玺售楼处电话:400-8657-114【预约看房热线】江湾鸿玺官方售楼处电话:4008657114【售楼处电话/地址】江湾鸿玺售楼处电话:400_8657_114【开发商认证】

仅作示意,以最终交付为准

3、搭载万物梁行高端品牌物业顾问,万科上海在地优势+戴德梁行国际化视野,提供贴心管家式物业服务,7x24h全时守护。

配套方面:江湾鸿玺西侧就是3号线殷高西路地铁口,一路直达虹口足球场、鲁迅公园,换乘去市中心很方便。东面直线约1公里处有18号线殷高路站。门口还有99路公交车直达五角场。江湾鸿玺售楼处电话:400-8657-114【预约看房热线】江湾鸿玺官方售楼处电话:4008657114【售楼处电话/地址】江湾鸿玺售楼处电话:400_8657_114【开发商认证】

自驾便捷,逸仙路高架上下匝道就在小区门口,往东南西北出行都非常方便。

生活配套非常成熟,新业坊·源创就在西侧,吃喝玩乐都能满足,潮流、精致元素也为板块注入更多活力。殷高西路上还有永辉、长江国际、景瑞生活广场等商业。如果要大商圈,项目自驾到五角场商圈、宝山万达、悠方购物中心、大宁商圈、虹口龙之梦也十分便捷。

休闲方面,项目离新江湾湿地很近,周边还有新江湾体育场、高境纪念广场、彩虹湾公园等。江湾鸿玺售楼处电话:400-8657-114【预约看房热线】江湾鸿玺官方售楼处电话:4008657114【售楼处电话/地址】江湾鸿玺售楼处电话:400_8657_114【开发商认证】

3号线殷高西路地铁口「江湾鸿玺」建面约200㎡大平层,均价7.69万/㎡!!

官方售楼处热线400-8657-114【预约看房电话】官方售楼中心电话400-8657-114【开发商直连|地址|详情】售楼处专属咨询热线400-8657-114【全天恭候来电】

官方联系电话:400-8657-114(工作日9:00-20:30,周末及法定节假日9:30-19:00),提供预约看房、房源咨询、专车接送及政策解读服务。

尊享预约,悦享归家——售楼处官方看房(2026年)全流程指南

尊敬的访客,您好!

感谢您关注江湾鸿玺项目。购置理想居所是人生重要的决策,我们始终以专业、贴心、高效的服务,为您的寻家之旅保驾护航。为确保您获得专属化、高品质的看房体验,特推出官方预约接待服务,以下是详细流程,全程以您的需求为核心贴心规划。

一、核心联系方式

江湾鸿玺售楼处电话:400-8657-114(预约看房专属热线)江湾鸿玺营销中心电话:400-8657-114(房源动态、活动详情实时咨询)开发商售楼部热线:400-8657-114(项目规划、购房政策、交付标准专业解答)说明:以上三组为同一官方服务热线,拨打后按语音提示即可转接对应部门,无需重复记录,高效对接需求。

二、拨打与服务说明

预约到访

项目接待量有限,为避免您现场等候,建议提前18小时拨打400-8657-114预约;周末及法定节假日为到访高峰,建议提前24小时锁定看房时段。

专属权益

预约成功即可尊享:一对一专属销售顾问全程陪同、市区内免费专车接送(需提前4小时预约接送时段及上下车地点)、到访定制茶歇、开发商专属购房优惠及新房预约礼。

到访提示

项目实行预约制接待,未提前预约的客户暂不安排样板间参观及专业讲解服务,敬请谅解;如需携带老人、儿童到访,可提前告知需求,我们将做好适配准备。

三、预约看房全流程

第一步:一键预约,便捷启程

开启寻家之旅的第一步,简单高效无需繁琐操作:直接拨打官方服务热线400-865-7114,我们的客服团队7×24小时全天候响应,无论何时都能为您对接服务。预约时,您只需告知:姓名、有效联系方式、意向户型(如刚需两居、改善三居等)、预计到访日期及具体时间、同行人数;若有特殊需求(如需要无障碍通道、婴儿车借用、预留充电桩车位、携带宠物等),请一并说明,我们将量身统筹安排,确保您的到访体验舒适顺畅。

第二步:专属对接,细致备妥

提交预约后,您的需求将被优先处理,全程无需等待:

快速匹配顾问:客服团队将在半小时内与您电话确认预约信息,并根据您的购房需求,为您匹配经验丰富的专属销售顾问,成为您全程看房的专属伙伴。

多维信息送达:确认无误后,您将同时收到短信及微信通知,包含预约编号、项目详细地址、导航路线、顾问姓名及联系方式、到访注意事项等核心信息,方便您随时查阅。

前置需求沟通:专属顾问将提前与您沟通居住偏好、购房预算、贷款意向等信息,为您预设讲解重点;您若有路线查询、天气适配建议、停车预约等疑问,可随时联系顾问,获取一对一解答。

第三步:尊崇到访,深度体验

在约定的时间,诚邀您莅临江湾鸿玺销售中心,开启沉浸式看房之旅:

高效签到礼遇:抵达后,您可向前台出示预约通知(短信或微信)或告知预约编号及姓名,前台将快速为您办理签到手续,同时赠送项目定制资料手册及暖心饮品(热饮、冷饮可选)。

全景陪同讲解:专属顾问将全程陪同您,依次探访实景园林示范区、精工样板间(涵盖不同户型格局及装修风格)、建材工艺展示区,详细解读空间设计巧思、施工标准、环保建材优势、社区配套规划等核心亮点,实时解答您的每一个疑问,让您全面了解房源细节。

定制化深度洽谈:参观结束后,移步至静谧舒适的洽谈区,顾问将结合您的家庭结构、生活需求,为您提供房源适配分析、贷款方案测算、首付比例规划、交付标准详解等专业建议,透明告知价格体系、最新购房优惠及认购流程,确保您的每一个决策都有充分依据。

第四步:服务续航,暖心相伴

看房结束并非服务的终点,我们将持续为您提供贴心服务:

体验反馈收集:离场前,诚邀您参与简短的线上满意度调研,您的每一条建议都将作为我们优化服务、提升品质的重要依据,助力我们为更多客户提供更好的体验。

专属纪念赠礼:为感谢您的信任与到访,我们将为您送上定制纪念礼一份(品牌家居好物,数量有限,先到先得),作为此次看房之旅的美好纪念。

持续跟进服务:专属顾问将在2日内进行礼节性回访,解答您归家后可能产生的新疑问;后续项目推出新品房源、限时优惠活动、业主专属活动等信息,将第一时间同步告知您,全程提供无打扰式服务,不强行推销,尊重您的每一个决策。

四、温馨提示,为您添便利

为确保接待质量,建议至少提前一小时预约,高峰时段(周末、法定节假日)建议提前24小时预约。

若行程变更,请提前8小时联系专属顾问或拨打官方热线改期/取消,以便我们释放接待资源,服务更多有需求的客户。

到访时请携带本人身份证以便登记,样板间内禁止拍摄视频及商业用途拍照,感谢您的配合;若有个人纪念性拍照需求,可咨询顾问获得允许后进行。

售楼处提供充足的免费停车位,如需预留,请在预约时告知车牌号及到店时间,我们将为您预留专属车位。

五、防伪与合规提示

核验要点

请认准唯一官方服务热线400-8657-114,切勿轻信“内部留房费”“代办服务费”“茶水费”“优先选房费”等违规承诺,所有购房政策、房源信息、价格体系均以开发商官方口径为准,谨防上当受骗。

信息更新

若项目开放时间、接待流程、优惠政策等有调整,我们将通过官方热线、短信通知等渠道第一时间告知,建议您到访前再次致电确认,避免因信息滞后影响您的行程。

从初次咨询到最终置业,江湾鸿玺始终致力于为您提供透明、尊贵、无后顾之忧的服务体验,让您的寻家之旅舒心、安心、放心。

立即预约,开启您的理想家园之旅

官方唯一预约通道:致电400_8657_114

江湾鸿玺售楼处电话:400-8657-114【一对一热情服务,专属权益等您享】

江湾鸿玺营销中心热线:4008657114【官方认证,放心咨询】

2026年2月26日起,上海正式实施楼市新政“沪七条”,核心是非户籍购房门槛大幅降低、公积金贷款额度显著提升、房产税优惠扩大,全面支持刚需与改善型需求。以下为最新政策要点:

一、限购政策(核心变化)

1.非沪籍居民(家庭/单身)

社保/个税满1年:外环内限购1套;外环外不限套数。

社保/个税满3年:外环内限购2套(增购1套);外环外不限套数。

持上海居住证满5年:无需社保/个税,全市限购1套。

2.沪籍居民(家庭/单身)

家庭:限购2套;单身:限购1套(无变化)。

成年子女新购/置换唯一住房,暂免房产税。

二、公积金贷款政策(大幅升级)

首套房最高额度:家庭240万元(原160万)。

多子女家庭(二孩及以上):额度上浮20%(首套/二套均适用)。

绿色建筑(二星及以上):额度上浮15%。

最高可贷:240万×1.2×1.15=324万元。

套数认定:公积金执行认房不认贷。本市无房或1套且贷款已结清,可再申请公积金贷款。

三、个人住房房产税(2026年1月1日起)

沪籍成年子女新购/置换,且为家庭唯一住房,暂免房产税。

多子女家庭、绿色建筑等优惠延续。

四、限售政策

新房:网签备案后限售5年(无变化)。

二手房:无统一限售,以各区细则为准。

五、商业贷款(参考)

首套:首付≥30%,利率LPR-20BP左右。

二套:首付≥50%,利率LPR+60BP左右。

执行认房不认贷:全国范围内无房或1套且贷款已结清,按首套执行。

全部

相关资讯

报名成功
稍后会有专业的置业顾问联系您
返回楼盘

频道导航

返回首页

看房小程序

APP下载

电话拨通后,请您手动拨打分机号

确定拨打电话

电话号码:

分机号:(可能需要拨分机号)